Unterfangung Stützmauer / Tiefbau

Diskutiere Unterfangung Stützmauer / Tiefbau im Tiefbau Forum im Bereich Neubau; Hallo zusammen, ich habe hier mal etwas richtig Kompliziertes. Wir haben ein in ca. 4 Metern Höhe im Hang gebautes EFH, dieses wurde im vorderen...

  1. #1 marcidarci175, 25.12.2024
    marcidarci175

    marcidarci175

    Dabei seit:
    21.12.2021
    Beiträge:
    89
    Zustimmungen:
    9
    Hallo zusammen,

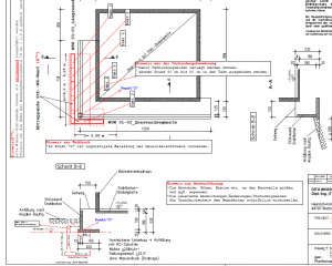
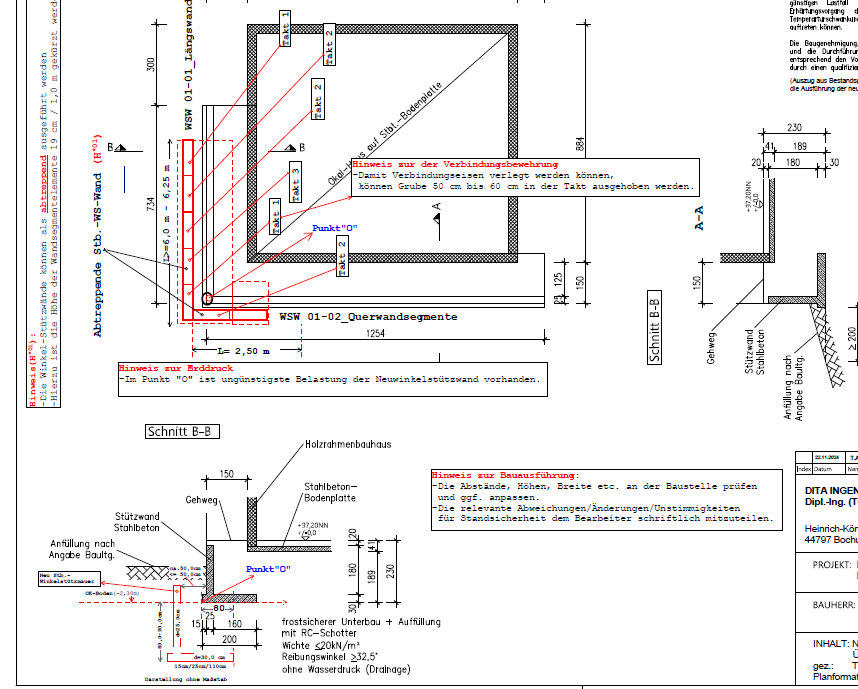
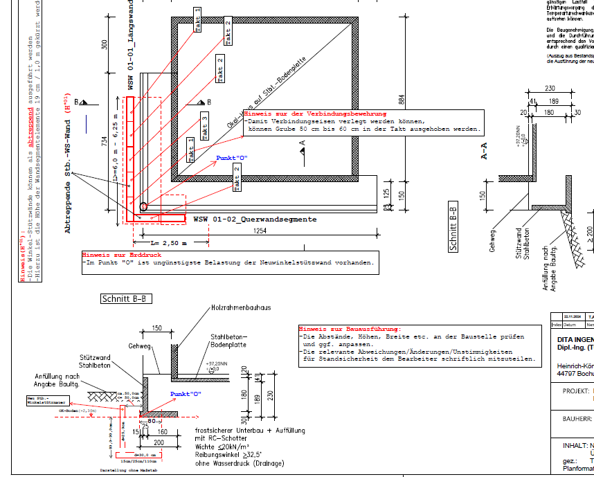
    ich habe hier mal etwas richtig Kompliziertes. Wir haben ein in ca. 4 Metern Höhe im Hang gebautes EFH, dieses wurde im vorderen Bereich mit einer Stützmauer 2 Meter hohe L-Form vorne/links abgefangen. Nach hinten läuft es gerade raus. Leider wurde die Stützwand etwas zu niedrig geplant und ausgeführt. Da jetzt eine Zufahrt links am Haus vorbei bis hinter das Haus mit der % maximal zulässigen Steigung dann die Stützwand an der vordersten Ecke quasi in der Luft schweben lässt, muss das irgendwie unter/abgefangen werden. Das Bauamt möchte einen statischen Nachweis und wir natürlich auch alles sicher/richtig machen. Der Statiker hat das Ganze berechnet, aber Galabauer und Architektin meinen das kann man so nicht ausführen. Wie soll verdichtet werden usw. Theorie und Praxis halt. Zwei Vorschläge hat er gemacht a) In mehreren Steps unterkoffern und Stück für Stück L-Wand unter die vorhandene Stützwand betonieren b) L-Wand verkehrt herum unter die Auffahrt. Er meint selber b) wäre viel zu überdemensioniert und meint, dass was er vorgeschlagen hat, ist nicht so schwer umsetzbar. Der Galabauer schlägt jedoch die Hände über dem Kopf zusammen. Unser Statiker ist da leider auch recht wenig kooperativ auf der Suche nach anderen Lösungen. Naja, er muss ja auch seinen Kopf dafür hinhalten. Zur linken Seite hat der Statiker außerdem zusätzlich noch eine Stützwand zum tiefergelegenen Nachbarn geplant. 21 Meter mal 1m L-Wand obwohl da schon ein Mauerkonstrukt des Nachbarn steht und den Höhenunterschied abfängt. Wir können nicht beurteilen ob das wirklich nötig ist. Da fahren ja keine LKW´s hoch. Maximal 1-2 mal am Tag ein Auto. Egal wie, wir haben zwar noch kein konkretes Angebot. Können uns aber über den Daumen schon denken, was sowas in Summe alles ungefähr kosten wird und absolut unsere Mittel sprengen wird. Händeringend suchen wir nach Alternativen oder guten Ideen, wie man das Ganze dennoch mit wenig Arbeitsaufwand und sicher lösen könnte. Die Zufahrt hinter das Haus ist aufgrund einer körperlichen Beeinträchtigung für uns ein absolutes Muss. Anbei ein paar Bilder zur Verdeutlichung. Vielleicht habt ihr ja noch Lösungen. Wichtig ist, dass der Statiker das auch für gut befinden muss und nachher seine Unterschrift drunter setzt.
     

    Anhänge:

    • 6.png
      6.png
      Dateigröße:
      237,5 KB
      Aufrufe:
      349
    • 5.png
      5.png
      Dateigröße:
      76,6 KB
      Aufrufe:
      211
    • 4.png
      4.png
      Dateigröße:
      107,1 KB
      Aufrufe:
      219
    • 3.png
      3.png
      Dateigröße:
      264,4 KB
      Aufrufe:
      304
    • 2.png
      2.png
      Dateigröße:
      206,9 KB
      Aufrufe:
      205
    • 1.png
      1.png
      Dateigröße:
      263,3 KB
      Aufrufe:
      214
Thema:

Unterfangung Stützmauer / Tiefbau

Die Seite wird geladen...

Unterfangung Stützmauer / Tiefbau - Ähnliche Themen

  1. Abdichten einer neuen Unterfangung (Beton) am Streifenfundament

    Abdichten einer neuen Unterfangung (Beton) am Streifenfundament: Hallo Zusammen, wir haben ein altes Haus aus den 60er Jahren gekauft und möchten den niedrigen Keller unterfangen. Der Keller liegt ca. 1,20 m...
  2. Fundament Garage unterfangen/ Stabilisieren notwendig?

    Fundament Garage unterfangen/ Stabilisieren notwendig?: Ich habe eine Garage aus den 60er Jahren, welche einen ziemlich fetten Riss durch die betonierte Bodenplatte und beide Seitenwände hat. Ich...
  3. Unterfangung für Pflaster

    Unterfangung für Pflaster: Hallo zusammen, wir leben auf einen älteren Anwesen mit allerhand alter Nebengebäuden. Dieses Jahr würden wir gerne in einem dieser Nebengebäude...
  4. Unterfangung bei Neubau einer DHH

    Unterfangung bei Neubau einer DHH: Hallo zusammen, ich bin aktuell in der zweiten Runde des Genehmigungsprozesses für den Neubau einer DHH in BaWü. Mein Nachbar versucht dies mit...
  5. An alle Statiker: würde diese Unterfangung funktionieren?

    An alle Statiker: würde diese Unterfangung funktionieren?: Hallo liebes Bauexpertenforum, Wir bauen innerstädtisch ein MFH. Ja ich weiß, es gibt die DIN 4123, da ist alles geregelt. Unser Nachbar vom MFH...