Unterzug / Stütze / Eingelassener Träger

Diskutiere Unterzug / Stütze / Eingelassener Träger im Übungsraum Forum im Bereich Sonstiges; Guten Abend zusammen, ich bin Silas und lese schon länger in diesem tollen Forum mit. :-) Wir haben für ein EFH in Ziegelbauweise unseren...

  1. #1 Evandure, 13.10.2025
    Evandure

    Evandure

    Dabei seit:
    05.02.2025
    Beiträge:
    3
    Zustimmungen:
    0
    Guten Abend zusammen,
    ich bin Silas und lese schon länger in diesem tollen Forum mit. :-)
    Wir haben für ein EFH in Ziegelbauweise unseren Grundriss über die letzten Monate aufgebaut und erarbeitet und sind mittlerweile an einem Punkt an dem wir recht zufrieden sind.
    Es gibt allerdings noch ein Problem und das ist der offene Küchen/Ess/Wohnbereich.

    Voraussichtlich wird die statische Ausführung nicht so unproblematisch wie erhofft und unser GU hat bei einer kurzen Durchsicht der aktuellen Pläne schon angedeutet, dass ein Unterzug und/oder eine Stütze benötigt werden könnte.

    Vielleicht habt ihr noch eine zündende Idee / Vorschläge / Erfahrungen für uns.
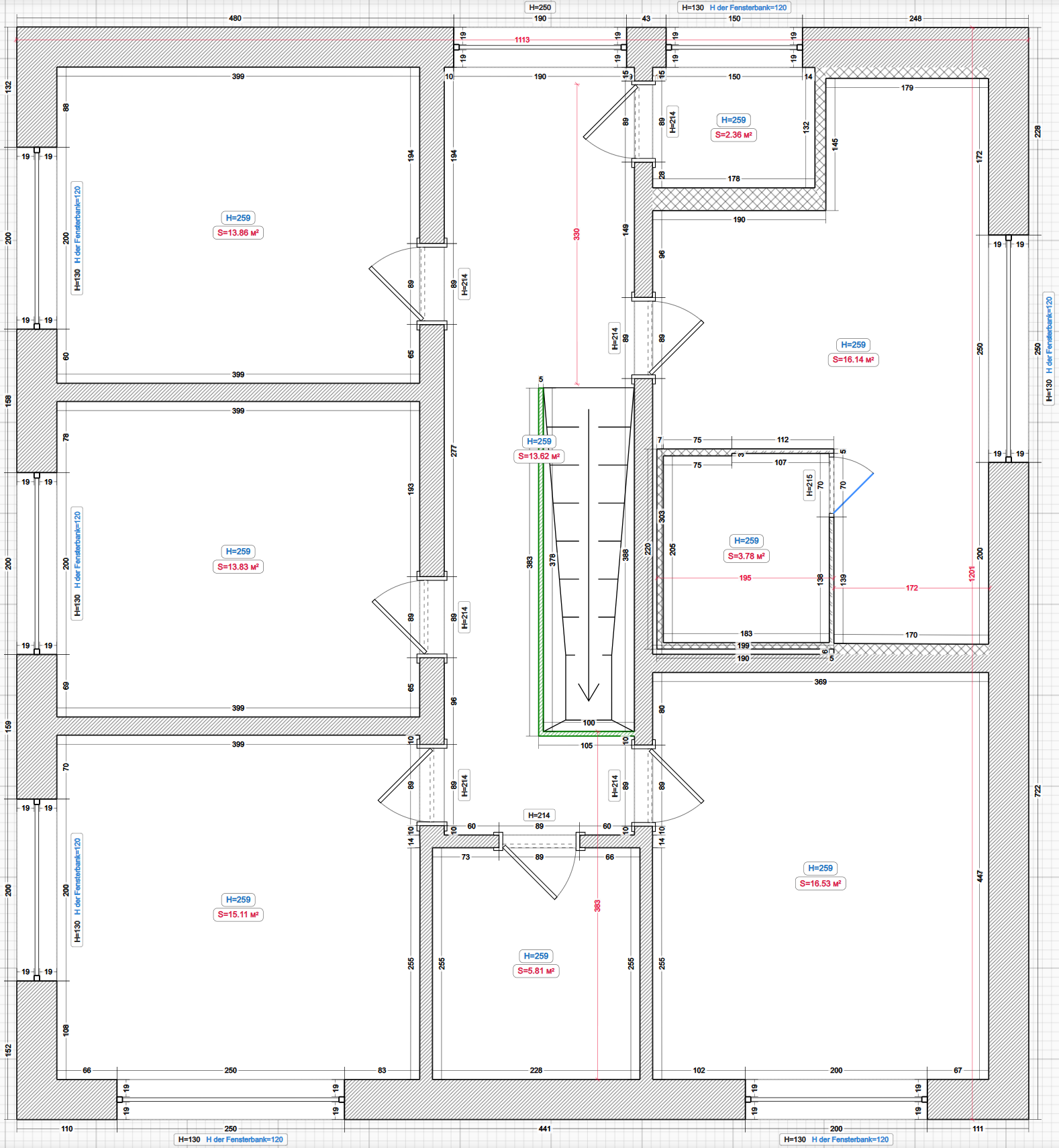
    Zur Erläuterung habe ich EG und OG Grundrisse angehängt, wobei der Rot markierte Bereich der Deckenausschnitt für den Treppenaufgang darstellt.
    Beim blauen Bereich habe ich eingezeichnet, wie ich mir eine mögliche Lösung erhoffe. Ein in die Decke (ca. 24 cm + 16 cm Fußbodenaufbau) unsichtbar eingelassener Stahlträger. Die zu überbrückende Länge ist mit 7,5 m sicherlich nicht ohne.
    Ein Oberzug ist leider nicht möglich, wegen der Türen in der darüberliegenden Wand.

    Vielen Dank im Voraus und schöne Grüße :-)
     

    Anhänge:

  2. #2 Jo Bauherr, 13.10.2025
    Jo Bauherr

    Jo Bauherr

    Dabei seit:
    19.06.2018
    Beiträge:
    1.049
    Zustimmungen:
    516
    Beruf:
    (Ex)-Vermieter
    Ort:
    Randberlin
    Wo ist das Problem? Evtl. braucht der Statiker an den Auflagern Stb-Stützen für den Stahlträger.
    Bei 7,5 m Spannweite und 24 cm Deckenstärke(!) sollte auch ein deckengleicher UZ passen.

    Billiger wird es allerdings mit einer Stütze ein der Mitte :shades.



    .
     
    Evandure gefällt das.
  3. #3 Evandure, 13.10.2025
    Evandure

    Evandure

    Dabei seit:
    05.02.2025
    Beiträge:
    3
    Zustimmungen:
    0
    Danke für deine Einschätzung :28:
    Deinem Ausrufezeichen entnehme ich, dass 24er Decken wohl eher am oberen Ende anzusiedeln sind. Ich habe diesen Wert einfach vom GU übernommen, der gemeint hat, dass die Decke im Bereich zwischen 22 und 24 liegen wird.
    Einen deckengleichen UZ werde ich ihm mal vorschlagen.

    Das mit der Stütze wollen wir wenn möglich gerne vermeiden. :D
     
  4. #4 Jo Bauherr, 13.10.2025
    Jo Bauherr

    Jo Bauherr

    Dabei seit:
    19.06.2018
    Beiträge:
    1.049
    Zustimmungen:
    516
    Beruf:
    (Ex)-Vermieter
    Ort:
    Randberlin
    OT: Normale Stb-Decke wäre eine 16er Decke - von einem engagierten Statiker gerechnet (man muss halt leider fast jede Wand als tragend berechnen) - würde vollkommen ausreichen.
    Eine 18er wäre normale Blümchenstatik.
    Eine 24er ist entweder Materialschlacht oder maximalster Schallschutz (... kann ja durchaus berechtigt sein!).
    Bei Fertigteildecken sieht es sicherlich anders aus, da kann ich aber nix zu beitragen.
     
  5. #5 Evandure, 13.10.2025
    Evandure

    Evandure

    Dabei seit:
    05.02.2025
    Beiträge:
    3
    Zustimmungen:
    0
    Ach entschuldige, das hätte ich vielleicht erwähnen sollen. Angedacht ist eine Elementdecke / Fertigteildecke / Filigrandecke, oder wie auch immer die noch heißen mögen.
     
  6. SIL

    SIL

    Dabei seit:
    06.05.2018
    Beiträge:
    10.865
    Zustimmungen:
    4.212
    Beruf:
    M. Sc. Dipl. Ingenieur
    Ort:
    6210
    Mach Mal, siehe Grundriss worüber soll gespannt werden...
    Keines von beiden.
    Bestimmt 18 cm wa.
    Bei deiner Wahl geht deckengleicher Balken , auch ein Überzug wäre möglich du hast ja 16 cm Aufbau noch als FB, die Türen stellen also kein Problem dar.
    Alternativ wäre eine Spannbetondecke die sich aber auch im Bereich 20cm + als Dicke darstellt.
    Nein , hier muss 'unten' und 'oben' gleichfalls zusätzliche Bewehrung eingebracht werden , im ungünstigen Fall bis in die Gründung verstärkt.
    Ziegel vermutlich Poroton , was passiert mit der AW hinsichtlich Thermik auch die 'innere' Lagerung wird mit solch einseitig angeschlossener tragender Wand konstruktiv eher schwierig.
     
    simon84 gefällt das.
Thema:

Unterzug / Stütze / Eingelassener Träger

Die Seite wird geladen...

Unterzug / Stütze / Eingelassener Träger - Ähnliche Themen

  1. Dickere Decke oder Unterzug

    Dickere Decke oder Unterzug: [ATTACH] [ATTACH] Hallo, unser Architekt meint dass das ganze mit einer dickeren Decke funktioniert und dass wir keinen Unterzug brauchen. Er...
  2. Unterzug Decke selbst beschädigt

    Unterzug Decke selbst beschädigt: [ATTACH] Hallo, Wir Sanieren gerade unsere Wohnung. Und haben in einen unterzug in der decke, ein Flachkabel verlegt, welches wir aber jetzt...
  3. Hilfe - wie kann ich den Unterzug im EG vermeiden??

    Hilfe - wie kann ich den Unterzug im EG vermeiden??: Hallo, mein Mann und ich stecken gerade mitten in den Planungen. Der Bauantrag liegt beim LRA und wir führen fortgeschrittene Gespräche mit den...
  4. Stahlbetonsturz sanieren, Stahl in Unterzügen rostet

    Stahlbetonsturz sanieren, Stahl in Unterzügen rostet: Hallo Forum, ich habe ein Problem in einem Heizungskeller: Bei einigen Unterzügen sprengt der Rost der Armierung den Putz ab. An einigen Stellen...
  5. Abrechung der Wände als Stütze und Unterzüge

    Abrechung der Wände als Stütze und Unterzüge: Hallo, ich habe folgende Frage: Ist es möglich folgende Bauteile als Stützen und Unterzüge, statt als Wand nach VOB abrechnen? 1. In erstem Fall...