Verlauf der neuen Wasserleitungen

Diskutiere Verlauf der neuen Wasserleitungen im Sanitär Forum im Bereich Haustechnik; Hallo Bauexperten ich werde in der kommenden Woche ein Haus kaufen, die Übergabe ist aber leider erst am 01 März, und eine Fragen gehen mir...

  1. #1 norrbert, 12.01.2020
    norrbert

    norrbert

    Dabei seit:
    12.01.2020
    Beiträge:
    1
    Zustimmungen:
    0
    Hallo Bauexperten

    ich werde in der kommenden Woche ein Haus kaufen, die Übergabe ist aber leider erst am 01 März, und eine Fragen gehen mir einfach nicht aus den Kopf - daher schildere ich mal meine Gedanken hier im Forum.

    Die Trinkwasserleitungen sind ca 40 Jahre alt, und bevor wir einziehen, möchten wir diese neu verlegen lassen.
    Ich möchte nur so wenig wie möglich die Wände aufstemmen, daher dachte ich mir, ist eine Aufputzverlegung die bessere Variante. Die Leitungen möchte ich vom Fachbetrieb verlegen lassen, öffnen und verschliessen der Wände kann ein Verwandter der im Innenausbau recht erfahren ist.

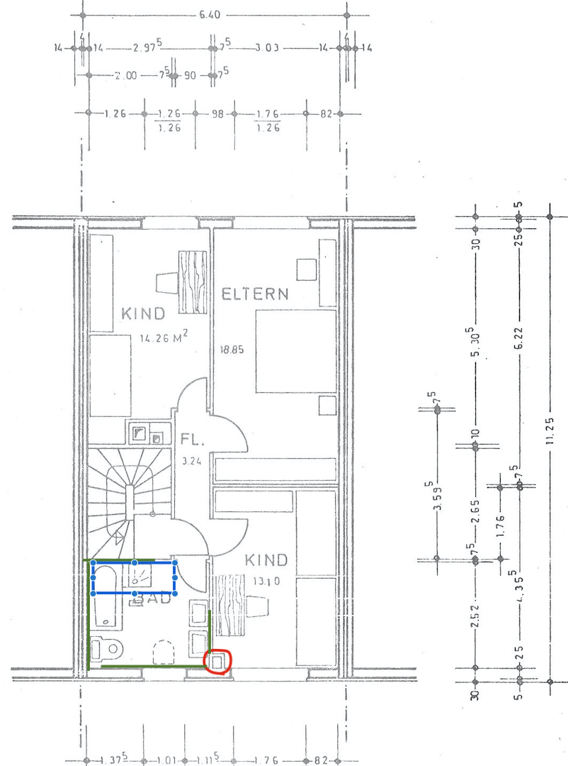
    Vom Erdgeschoss bis zum Dachgeschoss verläuft eine gemauerte Ecke (im Plan OG rot umkreist), ich bin mir ziemlich sicher, dass hier die Abflussrohre liegen, da im Keller 2 Abflussrohre mit einem Revisionsschacht zu sehen sind. In Gästebad verläuft diese gemauerte Ecke, an dieser Mauer sind auch die Absperrhähne für Kalt/Warmwasser. Kann man davon ausgehen, dass durch diesen Schacht auch die Trinkwasserleitungen neben den Abflussrohren verlaufen?
    Dann bräuchte man nur dieses Gemäuer aufschlagen, und den Sanitärfachmann die neuen Leitungen auf Putz verlegen lassen.
    Im Bad (Plan OG habe ich die Leitungen grün eingezeichnet, und die neu geplante Wanne in blau) würde ich dann die Fliesen entfernen, und die Leitungen ebenfalls auf Putz verlegen lassen und dann eine Trockenwand davor verlegen.
    Zur Küche im Erdgeschoss, da wird man um ein aufstemmen der Wand wohl nicht umhin kommen, aber der Weg ist ja nicht weit
    Das dürfte doch eine Kostengünstige Lösung sein, oder? Bisher habe ich immer als ca Preis 35€ je qm Wohnfläche gelesen?!?!

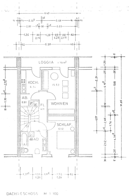
    Einzig für die Küche in der EInliegerwohnung untern Dach habe ich keine Vorstellung, wo dort das Wasser hin und wieder ablaufen könnte? Vielleicht durch den Schornsteinschacht?

    In der Hoffnung mich halbwegs verständlich ausgedrückt zu haben, und ein Feedback von euch zu erhalten.

    Grüße
    Norbert
     

    Anhänge:

Thema:

Verlauf der neuen Wasserleitungen

Die Seite wird geladen...

Verlauf der neuen Wasserleitungen - Ähnliche Themen

  1. Horizontalsperre - Wie verlaufen die Leitungen?

    Horizontalsperre - Wie verlaufen die Leitungen?: Hallo zusammen, ich möchte in den Kelleraußenwänden eine Horizontalsperre mittels Injektion anbringen. Dazu habe ich Fragen bezüglich der...
  2. schräg verlaufende Brandwand RLP

    schräg verlaufende Brandwand RLP: Hallo Zusammen, wir sollen die Möglichkeit für einen Umbau bzw. die Umnutzung eines Gebäudes in Rheinland Pfalz prüfen. Das Gebäude steht schrüg...
  3. verlauf der Abwasserrohre unklar (Altbau) + Verstopfung

    verlauf der Abwasserrohre unklar (Altbau) + Verstopfung: Moin zusammen, ich bräuchte einmal ein Rat bzw guten Tipp zu folgender Sache. Wir haben ein 2 Familienhaus mit Vollkeller und Tiefgarage aus dem...
  4. Holzbalkendecke und ihr Verlauf

    Holzbalkendecke und ihr Verlauf: Hallo zusammen, ich hoffe dieses Unterforum ist korrekt, denn es geht um allgemeine Frage (für mein besseres Verständis) zum Thema...