Vorschläge für einen Grundriss von ca. 120 bis 135 m2

Diskutiere Vorschläge für einen Grundriss von ca. 120 bis 135 m2 im Bauen mit Architekten Forum im Bereich Architektur; Klar nein. Danke. Hier habe ich aber eine Empfehlung für den Grundriss von Danwood für die Point 119.1 und 128.1 erhalten. Es gibt auch das...

  1. #21 prm2021, 10.06.2021
    Zuletzt bearbeitet: 10.06.2021
    prm2021

    prm2021

    Dabei seit:
    14.05.2021
    Beiträge:
    9
    Zustimmungen:
    0
    Danke. Hier habe ich aber eine Empfehlung für den Grundriss von Danwood für die Point 119.1 und 128.1 erhalten. Es gibt auch das TC-Raumwunder 100, eine verkleinerte 1,5-stöckige Variante. Oder zu erwähnen zb das ScanHaus Marlow SH 155 S Variante A mit 150m2 (welches einen EG eingefügten Raum und somit eine kleine HWR hat, und OG darüber 3 vergrößerte Räume und Toilette.)
     
  2. #22 prm2021, 29.07.2021
    Zuletzt bearbeitet: 29.07.2021
    prm2021

    prm2021

    Dabei seit:
    14.05.2021
    Beiträge:
    9
    Zustimmungen:
    0
    Hallo zusammen,
    Ich sollte demnächst mit dem Architekten für den Vorentwurf sprechen.
    Nach den Vorschriften in meinem Land kann das ursprüngliche Projekt später nicht mehr geändert werden.

    Laut Bebauungsplan müssen wir eine geschlossene Garage bauen (2 Stellplätze pro Wohnung, davon 50% in einer geschlossenen Garage).
    Das verteuert unsere Konstruktion und deshalb müssen wir von der "idealen" Größe von 150 qm mindestens ca. 10-15qm und natürlich ohne Keller abziehen.
    Ich habe viele Foren gelesen und festgestellt, dass das Wichtigste ist, dass mein Wohn- und Esszimmer sind nicht schmaler als 4 Meter (mindestens 35 qm).
    Dort und in der Küche werden wir 90% der Zeit verbringen.
    Wir wollen eine offene Küche nach Osten mit möglichst viel Licht (vorzugsweise in zwei Zeile).
    Wir möchten, dass HWR mit mindestens 10 m2, Treppen so komfortabel wie möglich sind und nicht zu viel Platz einnehmen.
    Auch eine Gästetoilette ohne Dusche davor wäre ein Kleiderschrank (für IKEA PAX Tiefe 70 cm).
    Oben hätten sie gerne Licht im Flur, 2 Kinderzimmer von ca. 13-14 qm nach Süden, ein Schlafzimmer nach Nordosten, wo wir den IKEA PAX-Schrank meiner Frau platzieren müssen 200x70cmx240cm.
    Im Schlafzimmer sollte auch mein Kleiderschrank stehen, aber er kann kleiner sein als der meiner Frau.
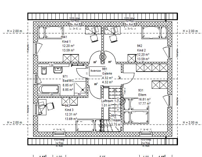
    Ich würde gerne 2 Vollgeschosse und rechtekig bauen, mit Satteldach, ähnlich wie Jaydees Grundriss-im Anhang (von ähnlicher Breite und Länge), aber ihr Grundriss ist nicht 2 vollgeschossig.
    Meine Frau hätte gerne 2 Badezimmer, oder ein Gäste-WC mit Dusche, ich versichere ihr, dass ein Badezimmer mit 2 Waschbecken ausreicht.
    Ich entschuldige mich in schlechtem Deutsch, verfolge dein Forum seit Monaten und habe viel gelernt.
    Danke für jede Hilfe.
     

    Anhänge:

Thema:

Vorschläge für einen Grundriss von ca. 120 bis 135 m2

Die Seite wird geladen...

Vorschläge für einen Grundriss von ca. 120 bis 135 m2 - Ähnliche Themen

  1. Vorschläge zur Hifeinfahrt

    Vorschläge zur Hifeinfahrt: Wir haben uns selber schon einige Gedanken gemacht. Aber falls ein kreativer Kopf einen schönen Vorschlag hat. Immer gerne:
  2. Reihenfolge Trockenbau bzw. Innenarbeiten, Vorschläge

    Reihenfolge Trockenbau bzw. Innenarbeiten, Vorschläge: Wir haben einen Neubau und müssen im Innenbereich noch einige Arbeiten durchführen. Ich würde gerne wissen, in welcher Reihenfolge man am besten...
  3. Grundriss Küchen- Wohnbereich Vorschläge

    Grundriss Küchen- Wohnbereich Vorschläge: Hallo zusammen, die Einteilung der Wohnung ist bereits geplant, nur beim Wohnzimmer mit Küche sind wir uns nicht einig. In dem Raum sollen Küche...
  4. Wäscheabwurf - Klappdeckel, freue mich über Ideen und Vorschläge von euch

    Wäscheabwurf - Klappdeckel, freue mich über Ideen und Vorschläge von euch: Hallo an alle Heimwerker hier, ich habe folgendes Problemchen. Wir haben im Haus einen Wäscheabwurf der von der Hausbaufirma verkleidet wurde....
  5. Vorschläge und Ideen für EFH als Anbau?

    Vorschläge und Ideen für EFH als Anbau?: Hallo zusammen, wir sind neuerdings eine fünfköpfige Familie (drei kleine Damen; 4 Monate, 3 und 6 Jahre), die noch im 1. Stock (84 qm) unseres...