Wanne/Dusche, Toilette und Waschbecken neu Platzieren

Diskutiere Wanne/Dusche, Toilette und Waschbecken neu Platzieren im Sanitär Forum im Bereich Haustechnik; Guten Tag zusammen, ich beabsichtige mein Bad sanieren zu lassen und hab da eine Frage. Nächste Woche habe ich zwar schon einen Vor-Ort-Termin...

  1. VergoX

    VergoX

    Dabei seit:
    21.10.2023
    Beiträge:
    7
    Zustimmungen:
    0
    Guten Tag zusammen,

    ich beabsichtige mein Bad sanieren zu lassen und hab da eine Frage.
    Nächste Woche habe ich zwar schon einen Vor-Ort-Termin mit einem Handwerker, aber mich würd jetzt schon interessieren, ob meine Planung realistisch umsetzbar scheint.
    Wo sich z.B. das Fallrohr befindet, weiß ich leider nicht. Bin absoluter Laie.

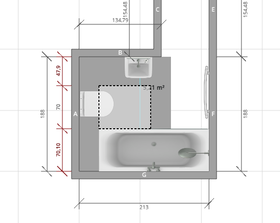
    Im Anhang sind 4 Bilder:
    - mein aktuelles Bad
    - eine grob geplante und bemaßte Skizze vom geplanten Bad
    - zwei 3D-Darstellungen vom Bad

    Edit:
    - und ein Ausschnitt aus dem bemaßten Grundriss

    Viele Grüße
    Mike
     

    Anhänge:

  2. #2 Fred Astair, 21.10.2023
    Fred Astair

    Fred Astair

    Dabei seit:
    02.07.2016
    Beiträge:
    12.681
    Zustimmungen:
    6.552
    Beruf:
    Tänzer
    Ort:
    San Bernardino
    Du zäumst das Pferd von hinten auf.
     
Thema:

Wanne/Dusche, Toilette und Waschbecken neu Platzieren

Die Seite wird geladen...

Wanne/Dusche, Toilette und Waschbecken neu Platzieren - Ähnliche Themen

  1. Blaue Abdichtung unter Fliesen-Boden in Dusche in Keller (ohne Wanne, boden-gleich)

    Blaue Abdichtung unter Fliesen-Boden in Dusche in Keller (ohne Wanne, boden-gleich): Wir haben ein im Jahr 1980 gebautes altes Haus, wegen einem Wasserschaden im Keller muss alte Fliesen entfernt werden und neue Fliesen drauf...
  2. Reihenfolge Dusche, WC, Wanne - Anschluss an das Abwasserrohr

    Reihenfolge Dusche, WC, Wanne - Anschluss an das Abwasserrohr: Hallo zusammen, ich habe eben etwas in der DIN-Norm gestöbert, konnte aber keine klare Aussage finden. Daher die Frage an die Experten:...
  3. Dusche passt nicht auf die Wanne

    Dusche passt nicht auf die Wanne: Hallo, ich habe mich hier registriert da ich leider nicht weiterweis und evtl noch auf den ein oder anderen Tip hoffe. Ich habe letzte Woche...
  4. GK grün Pflicht im Bad ohne Dusche/Wanne?

    GK grün Pflicht im Bad ohne Dusche/Wanne?: Guten Morgen, ich habe eine bescheidene kurze Frage an die Experten. Wir möchten im Dachgeschoss, welches komplett neu aufgebaut wurde, nun...
  5. Dusche / Wanne Umbau

    Dusche / Wanne Umbau: Hallo, wir möchten gerne die alte Dusche und Wanne entfernen. Anstelle der Dusche soll eine "Walk In Dusche", möglichst tief, gesetzt werden....