Waschtischunterschrankschrauben treffen auf Unterbaugestell

Diskutiere Waschtischunterschrankschrauben treffen auf Unterbaugestell im Sanitär Forum im Bereich Haustechnik; Servus zusammen, wir haben eine Eigentumswohnung vom Bauträger gekauft. Leider durften wir in den Bädern nichts aussuchen und wollen nun einen...

  1. #1 jae1982, 13.11.2022
    jae1982

    jae1982

    Dabei seit:
    13.11.2022
    Beiträge:
    11
    Zustimmungen:
    3
    Servus zusammen,

    wir haben eine Eigentumswohnung vom Bauträger gekauft. Leider durften wir in den Bädern nichts aussuchen und wollen nun einen Unterschrank in der Dusche aufhängen.

    Jetzt habe ich folgendes Problem.

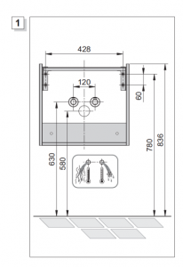
    Das Geberit Unterbaugestell ist 50 cm breit und meine Bohrlöcher haben einen Abstand von 43 cm.

    Fliesen 1 cm dann 1,5 cm Rigips, dahinter 1,5 cm Holz und dann kommt das Geberit Gestell. Jetzt kann ich meine Schrauben nicht durchs Holz schrauben und den Schrank nicht befestigen.

    Habe mir Bohrschrauben gekauft, aber damit wird es auch nichts.Jetzt wollte ich mit einem Bohrer ein Loch ins Gestell bohren und dann Flüssigdübel/Mörtel verwenden, aber ich bekomme auch kein Loch gebohrt.

    Vielleicht könnt ihr mir helfen. Was würdet ihr machen?

    Da ich keinen Link posten kann nenne ich Euch die Artikelnummer:
    34090210001
    Wenn man bei reuter(Punkt)de eingibt, kommt man zum Schrank.



    Grüße und besten Dank im Voraus
     

    Anhänge:

  2. #2 Maape838, 13.11.2022
    Maape838

    Maape838

    Dabei seit:
    25.06.2015
    Beiträge:
    1.901
    Zustimmungen:
    742
    Beruf:
    Elektroinstallateur
    Ort:
    15xxx
    .
    Welche?
    Männerschrauben?
    20221113_151007.jpg
     
    simon84 gefällt das.
  3. #3 jae1982, 13.11.2022
    jae1982

    jae1982

    Dabei seit:
    13.11.2022
    Beiträge:
    11
    Zustimmungen:
    3
    Diese
     

    Anhänge:

  4. #4 Maape838, 14.11.2022
    Maape838

    Maape838

    Dabei seit:
    25.06.2015
    Beiträge:
    1.901
    Zustimmungen:
    742
    Beruf:
    Elektroinstallateur
    Ort:
    15xxx
    Die ist aus Edelstahl. Das wird nix. Nimm die in "normal" dann klappt das auch:28:
     
  5. #5 hanghaus2000, 14.11.2022
    hanghaus2000

    hanghaus2000

    Dabei seit:
    24.11.2021
    Beiträge:
    1.514
    Zustimmungen:
    625
    Beruf:
    Bauleiter, Kalkulator, Controller, Salzdesign
    Ort:
    Bayern
    Dann versetze doch den Schrank 3 cm nach rechts oder links.
     
  6. #6 jae1982, 14.11.2022
    jae1982

    jae1982

    Dabei seit:
    13.11.2022
    Beiträge:
    11
    Zustimmungen:
    3
    Hättest du da einen Link für mich? Oder einen Namen? Oder sind das die, von deinem Foto?

    Negativ. Es ist so schon wenig Platz nach links und rechts und wenn ich das Ding nicht mittig hänge, ist das Becken unbenutzbar.
     
    Maape838 gefällt das.
  7. #7 Maape838, 14.11.2022
    Maape838

    Maape838

    Dabei seit:
    25.06.2015
    Beiträge:
    1.901
    Zustimmungen:
    742
    Beruf:
    Elektroinstallateur
    Ort:
    15xxx
    Wenn du "Bohrschraube 6,3x... Metall" in z.B. der Bucht eingibst findest du einiges.
    Aber aufpassen genau schauen wegen der Gewindelänge. Du brauchst ja ca. 50mm.
     
  8. #8 Maape838, 14.11.2022
    Maape838

    Maape838

    Dabei seit:
    25.06.2015
    Beiträge:
    1.901
    Zustimmungen:
    742
    Beruf:
    Elektroinstallateur
    Ort:
    15xxx
    Was mich noch irritiert ist
    Das sollte doch immer klappen. Haste da was gutes an Bohrer oder auch nur ne Krücke?
     
  9. #9 jae1982, 14.11.2022
    jae1982

    jae1982

    Dabei seit:
    13.11.2022
    Beiträge:
    11
    Zustimmungen:
    3
    Vermutlich nur eine Krücke. Ist auch so einen Busch Set mit Holz, Stein und Metallbohrern. Hat nichts gekostet. Also sicherlich Schrott,
     
    hanghaus2000 und Maape838 gefällt das.
  10. #10 jae1982, 12.12.2022
    jae1982

    jae1982

    Dabei seit:
    13.11.2022
    Beiträge:
    11
    Zustimmungen:
    3
    Die Schrauben hatten lange Lieferzeit. Geklappt hat es nicht. Die Schrauben haben sich einfach aufgelöst. Die Bohrspitze wurde quasi abgehobelt.

    Ich würde jetzt einfach die Schrauben nur so weit durchs Holz schrauben wie es geht (kürzere Schrauben) und dafür noch zwei zusätzliche mittig setzen. Und der Schrank sieht auch noch 2 Schrauben unten durch ein 1,5 cm starkes Stück vom Korpus vor. Also sind es dann am Ende 8 Schrauben. Sollte passen.

    Hoffentlich. Denn die Gewindestangen vom Bauträger haben einen Abstand von 18 cm, da gibt es keine wirkliche Auswahl an schönen Waschbecken.
     
  11. #11 Maape838, 12.12.2022
    Maape838

    Maape838

    Dabei seit:
    25.06.2015
    Beiträge:
    1.901
    Zustimmungen:
    742
    Beruf:
    Elektroinstallateur
    Ort:
    15xxx
    :yikes
    Ach du Scheisse. Damit hab ich nicht grechnet.
    Das tut mir Leid das mein Tipp nicht zum Erfolg geführt hat. Schick mal nen link von den Schrauben.
     
    jae1982 gefällt das.
  12. #12 jae1982, 23.12.2022
    jae1982

    jae1982

    Dabei seit:
    13.11.2022
    Beiträge:
    11
    Zustimmungen:
    3
    Das waren die Schrauben, die du mir privat geschickt hattest
     
  13. #13 jae1982, 23.12.2022
    jae1982

    jae1982

    Dabei seit:
    13.11.2022
    Beiträge:
    11
    Zustimmungen:
    3
    ich muss jetzt leider spammen, da ich sonst keinen Link posten kann, bevor ich 10 Beiträge habe
     
  14. #14 jae1982, 23.12.2022
    jae1982

    jae1982

    Dabei seit:
    13.11.2022
    Beiträge:
    11
    Zustimmungen:
    3
    das tut mir jetzt auch leid, aber sonst kann ich den Link nicht posten
     
  15. #15 jae1982, 23.12.2022
    jae1982

    jae1982

    Dabei seit:
    13.11.2022
    Beiträge:
    11
    Zustimmungen:
    3
    Gleich kommt der Link
     
  16. #16 jae1982, 23.12.2022
    jae1982

    jae1982

    Dabei seit:
    13.11.2022
    Beiträge:
    11
    Zustimmungen:
    3
    Ich bedanke mich schon einmal für die Hilfe und wünsche frohe Weihnachten
     
  17. #17 jae1982, 23.12.2022
    jae1982

    jae1982

    Dabei seit:
    13.11.2022
    Beiträge:
    11
    Zustimmungen:
    3
    Das waren die Schrauben, die du mir privat geschickt hattest.
    10x DIN 7504 Bohrschraube - Blechgewinde 6.3 x 70. Außensechskant. Stahl galv. | eBay

    Aber ich habe das ganze nun so montiert wie oben beschrieben. Ich kann mich sogar auf das Becken setzen, wenn ich möchte.

    [​IMG]

    [​IMG]

    [​IMG]

    Danke für deine Mühe, in diesem Sinne frohe Weihnachten

    und ja der Spiegel hängt nicht mittig, der hing vorher schon, werde ich nach Weihnachten noch regeln
     
  18. #18 Maape838, 23.12.2022
    Maape838

    Maape838

    Dabei seit:
    25.06.2015
    Beiträge:
    1.901
    Zustimmungen:
    742
    Beruf:
    Elektroinstallateur
    Ort:
    15xxx
    Schön das es geklappt hat. Schade das mit den Schrauben.
    Sieht jedenfalls gut aus.
    Ps. Wenn du nochmal hier Bilder zeigen möchtest benutze bitte die Funktion der Seite (Datei hochladen)
    Schöne Weihnachten:winken
     
Thema:

Waschtischunterschrankschrauben treffen auf Unterbaugestell

Die Seite wird geladen...

Waschtischunterschrankschrauben treffen auf Unterbaugestell - Ähnliche Themen

  1. Große Spalte wo Wand und Fußboden aufeinander treffen

    Große Spalte wo Wand und Fußboden aufeinander treffen: Hallo. Ich möchte ein Haus kaufen. Das nicht unterkellerte Haus in leichter Hanglage ist 2014 erbaut worden und wird nun vom Eigentümer aus...
  2. BEF-Treffen Mittelfranken, Herbst 2015

    BEF-Treffen Mittelfranken, Herbst 2015: Servus zusammen, Hab leider Stress, Herbstgrillen bei mir schaff ich nicht, aber letztes Jahr in Burgthann wars doch nett. Auf die leckere...