Welche Art Duschabtrennung sinnvoll?

Diskutiere Welche Art Duschabtrennung sinnvoll? im Sanitär Forum im Bereich Haustechnik; Hallo zusammen, bezüglich einer Duschabtrennung bitte ich um Eure Erfahrungen bzw. um Euren Rat. Im Anhang befindet sich der Grundriss eines...

  1. #1 HausMatt, 05.05.2019
    HausMatt

    HausMatt

    Dabei seit:
    19.09.2018
    Beiträge:
    67
    Zustimmungen:
    8
    Hallo zusammen,

    bezüglich einer Duschabtrennung bitte ich um Eure Erfahrungen bzw. um Euren Rat.

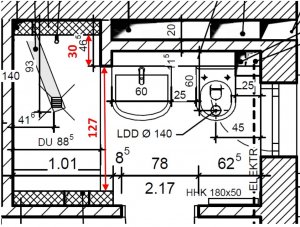
    Im Anhang befindet sich der Grundriss eines kleinen Bades mit Dusche. Von der Dusche aus ergibt sich rechts eine seitliche Öffnung von 1,27 m zum Bad.
    Welche Duschabtrennung ist hier sinnvoll?

    1) Feststehende Glasscheibe mit bspw. 67 cm.
    Es ergibt sich eine Durchgangsbreite von 60 cm. Langt das?
    Somit wären dann 97 cm des Duschbereiches nach rechts abgedeckt. Langt das?
    Oder würde es dann auf den letzten 60 cm, wo ja der offene Eingangsbereich ist, in das Bad hineinspritzen?

    2) Oder braucht es eine Glasschiebetür mit einem feststehenden Glasteil, so dass sich ca. 60 cm Durchgang ergeben?

    3) Andere Idee?

    Vielen Dank im Voraus für Eure Beiträge.
     

    Anhänge:

  2. #2 Lexmaul, 05.05.2019
    Lexmaul

    Lexmaul

    Dabei seit:
    15.09.2014
    Beiträge:
    8.921
    Zustimmungen:
    2.163
    Benutzertitelzusatz:
    Mimosenlecker
    Alles unter 140 cm spritzt immer raus.
     
  3. #3 Fred Astair, 05.05.2019
    Zuletzt bearbeitet: 05.05.2019
    Fred Astair

    Fred Astair

    Dabei seit:
    02.07.2016
    Beiträge:
    12.707
    Zustimmungen:
    6.576
    Beruf:
    Tänzer
    Ort:
    San Bernardino
    Keine Ahnung, woher Lexmaul sein Maß hat. Es gibt da kein Festmaß.
    Wir kennen weder des TEs Bauchumfang noch seine Duschgewohnheiten.
    Bei mir reichen 120 cm Glaswand und 50 cm freier Durchgang völlig aus. An des TEs Stelle, würde ich mit der Bestellung der Abtrennung warten, bis die Dusche fertig ist und dann erstmal einen Platikvorhang oder ein Bettlaken davorhängen. Dann weiß er, wie weit er spritzt und kann die Abtrennung bestellen.
    Wir mussten danals 6 Wochen auf die Glasscheibe warten und meinten zum Schluss, dass wir sie eigentlich gar nicht mehr brauchen. Da war sie aber bestellt und musste abgenommen werden.
     
  4. #4 Lexmaul, 05.05.2019
    Lexmaul

    Lexmaul

    Dabei seit:
    15.09.2014
    Beiträge:
    8.921
    Zustimmungen:
    2.163
    Benutzertitelzusatz:
    Mimosenlecker
    Erfahrung - ne DIN gibt es nicht ;)

    Genau Dein Tipp ist richtig - wir haben mit einem Duschvorhang experimentiert.
     
  5. SIL

    SIL

    Dabei seit:
    06.05.2018
    Beiträge:
    10.865
    Zustimmungen:
    4.212
    Beruf:
    M. Sc. Dipl. Ingenieur
    Ort:
    6210
    Nee Lexmäulchen das geht dort nicht, so wie du vorschlägst üblich wäre ein festes Teil und ein Schiebeelement, oder 'Zieharmonika', oder mehrteilige, die reine Öffnung beträgt ja nur 127 cm - da willst 140 cm reinquetschen, na dann ;) bei mittigen Auslass und dieser Dusch nische @FredAstair wäre die Duschabtrennung schon sinnvoll:winken
     
  6. #6 Lexmaul, 05.05.2019
    Lexmaul

    Lexmaul

    Dabei seit:
    15.09.2014
    Beiträge:
    8.921
    Zustimmungen:
    2.163
    Benutzertitelzusatz:
    Mimosenlecker
    Hab ich das gesagt?
     
  7. SIL

    SIL

    Dabei seit:
    06.05.2018
    Beiträge:
    10.865
    Zustimmungen:
    4.212
    Beruf:
    M. Sc. Dipl. Ingenieur
    Ort:
    6210
    Jo :p aber da ist das WB mit seiner Ausladung sehr nahe 60 cm mehr geht eh nicht als beweglicher Flügel, der Raum ist eh sehr klein, in den raumöffend wird ich da nicht sehen und in die Dusche mit nichtmal 90 cm auch 'lütt'
     
  8. #8 Fred Astair, 05.05.2019
    Fred Astair

    Fred Astair

    Dabei seit:
    02.07.2016
    Beiträge:
    12.707
    Zustimmungen:
    6.576
    Beruf:
    Tänzer
    Ort:
    San Bernardino
    Die Gesamtbreite der Dusche beträgt 30+127 cm. Die Armatur vermute ich an der oberen Schmalseite und nicht mittig an der Längswand.
    Da funktioniert eine Festverglasung und ein offener Durchgang sehr gut. Größe ist Geschmackssache.
     
  9. SIL

    SIL

    Dabei seit:
    06.05.2018
    Beiträge:
    10.865
    Zustimmungen:
    4.212
    Beruf:
    M. Sc. Dipl. Ingenieur
    Ort:
    6210
    Ja aber meinst das ist eine Brüstung dort? Ich dachte Raum hoch, ama ist doch wurscht ich dachte mir so Auslass mittig auf der schmalen Seite zum Sonntag mal eine Meinung mit Fred ;)
     
  10. #10 HausMatt, 05.05.2019
    HausMatt

    HausMatt

    Dabei seit:
    19.09.2018
    Beiträge:
    67
    Zustimmungen:
    8
    Vielen Dank für Euren Input!

    So ist es! Somit wäre dann die Dusche eher 157 cm lang und rund 88 cm breit, wenn man mit dem Gesicht zur Duscharmatur steht.

    Das ist vermutlich das Sinnvollste, wenn man nicht etwas kaufen möchte, über das man sich dann ggf. nachher ärgert.

    Zu den Duschgewohnheiten:
    In der Dusche kommt so ein Regner hin, wo das Wasser dann konstant von oben kommt.
     
  11. #11 Fred Astair, 05.05.2019
    Fred Astair

    Fred Astair

    Dabei seit:
    02.07.2016
    Beiträge:
    12.707
    Zustimmungen:
    6.576
    Beruf:
    Tänzer
    Ort:
    San Bernardino
    Na dann: Versuch macht kluch. :)
     
  12. #12 simon84, 05.05.2019
    simon84

    simon84
    Moderator

    Dabei seit:
    11.11.2012
    Beiträge:
    23.299
    Zustimmungen:
    6.923
    Beruf:
    Schrauber
    Ort:
    Muenchen
    Das Glas sieht in den Hotels auch immer so toll aus, weil es täglich geputzt wird.
    Wenn man das dann zuhause machen muss.... :)
     
  13. #13 Fabian Weber, 05.05.2019
    Fabian Weber

    Fabian Weber

    Dabei seit:
    03.04.2018
    Beiträge:
    16.354
    Zustimmungen:
    6.501
    Einfach mal ausprobieren ob 50cm Durchgangsbreite ausreichend sind. Dann ist es mit dem feststehen Glasteil ohne Tür natürlich am elegantesten.

    Wenn das Glasteil eine Stabistange braucht dann spritzt aber immer die Regendusche darauf, schöner wäre daher raumhoch und 3-seitig gehalten.
     
  14. #14 Lexmaul, 05.05.2019
    Lexmaul

    Lexmaul

    Dabei seit:
    15.09.2014
    Beiträge:
    8.921
    Zustimmungen:
    2.163
    Benutzertitelzusatz:
    Mimosenlecker
    Mit 50 cm Durchgang tu ich mich immer schwer - bin auch noch am überlegen, ob wir da nur eine Glasscheibe als Wall-In oder eine Doppeltür hinbauen...
     
  15. #15 Fabian Weber, 05.05.2019
    Fabian Weber

    Fabian Weber

    Dabei seit:
    03.04.2018
    Beiträge:
    16.354
    Zustimmungen:
    6.501
    Dann haste halt immer diese hässlichen Magnetabdichtungen die so rumkeimen.

    Die paar Spritzer trocknet die FBH doch einfach weg.
     
  16. #16 Lexmaul, 05.05.2019
    Lexmaul

    Lexmaul

    Dabei seit:
    15.09.2014
    Beiträge:
    8.921
    Zustimmungen:
    2.163
    Benutzertitelzusatz:
    Mimosenlecker
    Wenn Sie denn an ist :D.

    Ja, echt keine Ahnung - bei mir ist der Durchgang 1,20m breit...
     
  17. #17 Fabian Weber, 05.05.2019
    Fabian Weber

    Fabian Weber

    Dabei seit:
    03.04.2018
    Beiträge:
    16.354
    Zustimmungen:
    6.501
    Das blöde sind wirklich die Dichtungen, gerade auch am Boden. Wenn Du dann nach dem Duschen die Tür aufmachst, dann ziehst Du schön eine Wasserspur über den Boden.

    Wenn Du die Bodendichtung weglässt dann läuft das Wasser erst recht wieder raus. Daher mein Tipp, soviel Festteil wie geht.
     
  18. #18 Fred Astair, 05.05.2019
    Fred Astair

    Fred Astair

    Dabei seit:
    02.07.2016
    Beiträge:
    12.707
    Zustimmungen:
    6.576
    Beruf:
    Tänzer
    Ort:
    San Bernardino
    Der Lappen ist auch bereits erfunden.
     
  19. #19 Lexmaul, 05.05.2019
    Lexmaul

    Lexmaul

    Dabei seit:
    15.09.2014
    Beiträge:
    8.921
    Zustimmungen:
    2.163
    Benutzertitelzusatz:
    Mimosenlecker
    Wasser läuft doch normal nicht raus - ist doch Gefälle drin?
     
  20. #20 Fabian Weber, 05.05.2019
    Fabian Weber

    Fabian Weber

    Dabei seit:
    03.04.2018
    Beiträge:
    16.354
    Zustimmungen:
    6.501
    Aber weil es in der Dusche warm ist und davor kalt, werden die Tropfen förmlich unten rausgesaugt. Ich hab’s ausprobiert es war nicht so toll. Außerdem steht die Scheibe ja in der Regel genau an der Kante auf der waagerechten Seite, da ist dann kein Gefälle.
     

    Anhänge:

Thema: Welche Art Duschabtrennung sinnvoll?
Besucher kamen mit folgenden Suchen
  1. glasschiebetür

Die Seite wird geladen...

Welche Art Duschabtrennung sinnvoll? - Ähnliche Themen

  1. Duschabtrennung im Gefällebereich - was ist möglich?

    Duschabtrennung im Gefällebereich - was ist möglich?: Guten Tag, evtl. kann mir jemand bzgl. Machbarkeit helfen. Für eine bodengleiche Nischendusche im Neubau (bisher gibts hier also keine...
  2. Fragen zur Duschabtrennung

    Fragen zur Duschabtrennung: Hallo Experten, ich will eine neue Duschabtrennung montieren und bin bei einigen Sachen unsicher. S. Bilder zu den Details. 1: wird die...
  3. Duschabtrennung welcher Dübel ?

    Duschabtrennung welcher Dübel ?: Ahoi, da wir ein Wasserschaden hatten wird bei und das Bad teil Saniert, jetzt soll ich eine Duschabtrennung installieren. Und da frag ich mich...
  4. Badsanierung Duschabtrennung Doppelstegplatte

    Badsanierung Duschabtrennung Doppelstegplatte: Hallo Experten, Ich wuerde gern bei der DIY Duschabtrennung eine Doppelstegplatte verwenden. Pro und Kontra? Gibt es gesundheitliche Bedenken...
  5. Duschabtrennung

    Duschabtrennung: Hallo Fachleute, Da ich aus dem Elektrohandwerk komme brauch ich fachmännische Hilfe bei einem Umbauprojekt hier bei uns. Wir würden gerne im...