Welche Querschnitte sind geeignet für HKV und WW - KW

Diskutiere Welche Querschnitte sind geeignet für HKV und WW - KW im Sanitär Forum im Bereich Haustechnik; Hallo Leute, ich plane gerade ein wenig für unseren Neubau die Wasserseite. Wird ein Bungalow mit 236m2 Grundfläche, bzw. 183m2 Wohnfläche. Auf...

  1. #1 Gast56382, 26.11.2020
    Zuletzt von einem Moderator bearbeitet: 26.11.2020
    Gast56382

    Gast56382 Gast

    Hallo Leute,

    ich plane gerade ein wenig für unseren Neubau die Wasserseite. Wird ein Bungalow mit 236m2 Grundfläche, bzw. 183m2 Wohnfläche.

    Auf eine Zirkulation soll verzichtet werden, um Energie zu sparen.
    Damit das WW trotzdem zügig an die betreffende Versorgungsstelle kommt, möchte ich kleine Querschnitte fahren.

    Die am weitesten entfernte WW Versorgung sind im WorstCase vom Erzeuger bis Entnahmestelle 30m.
    Wenn ich quer durch gehen, unter Wohnstube und Elternschlafzimmer sind es ca. 17-18m. Dsa ist der Nachteil vom Bungalow, diese langen Leitungswege.
    WW Querschnitt soll so gewählt werden, das ich den Mindestfließdruck nach 1988-300 erreiche. Versorgt werden sollen 1x G-WC und 1x Familienbad. Wird als Stichleitung ausgeführt. Also in der Annahme einer gleichzeitigen Entnahme von WW für 2x Mischarmatur (2x 0,07l/s) und 1x Duschwanne (1x 0,15l/s) = 0,29l/s oder rund 17,4l/ min.

    KW hatte ich erst als anderen Querschnitt gedacht, möchte aber nicht so viel verschiedene Größen machen. Da stellt sich mir ebenso die Frage, wenn bspw. 2x WC Spülung, Geschirrspüler läuft und für Mischarmatur? Also Mischarmatur 2x 0,07l/s + 2x WC-Spülung 0,13l/s + 1x Geschirrspüler 0,07l/s = 0,47l/s / 28,2l/min

    Was sagen die Erfahrungswerte? Wenn ich als 16-2 mit 12mm ID komme ich auf 1,22bar Druckverlust b. 17l/ min. Das wird viel zu klein sein. 20-2 mit 16mm ID trägt aber schon wieder 0,201l/ lfm also ca. 3,6l. Weiß aber nicht, ob ich hier einen Fehler mache, ohne Zirkulation. KW kann ja meinetwegen auf 20-2.

    Genau so die 2 HKV.

    5-fach HKV vom Erzeuger ca. 5m entfernt und der 2. max. 10m als 10-fach HKV. Anfahren wollte ich diese mit 32-3 mit 26mm ID. Als FBH Rohr wird 17x2mm PE-Xa genommen.

    Evlt. Könnt ihr mir ja hier eine Hilfestellung geben.

    Gruß
    Sciro
     
  2. #2 simon84, 26.11.2020
    simon84

    simon84
    Moderator

    Dabei seit:
    11.11.2012
    Beiträge:
    23.299
    Zustimmungen:
    6.923
    Beruf:
    Schrauber
    Ort:
    Muenchen
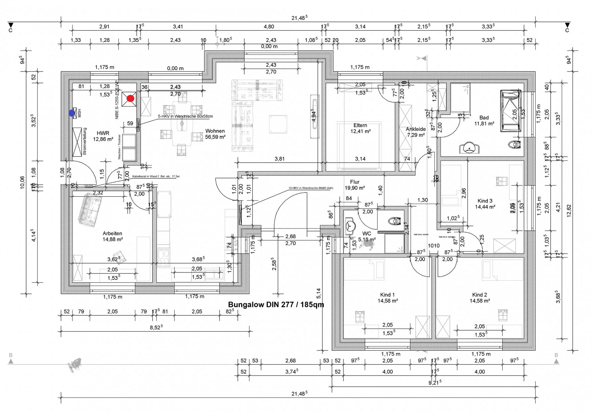
    Für die WW Planung wäre eine vermasste Skizze gut wo man Wasser Uhr/Einführung ins Haus, WW Erzeuger sowie alle Entnahme stellen erkennen kann.
     
  3. #3 Gast56382, 26.11.2020
    Gast56382

    Gast56382 Gast

    Ah, ja.

    stelle ich online.

    Blauer Punkt ist MSH
    Roter Punkt ist WP mit integrierter 180l WW-Speicher. Erst von da wollte ich mit gesagten Querschnitten gehen. Kaltwasser wird 32-3 bis WP geführt.

    Grundriss_Moebel.jpg
     
  4. #4 jodler2014, 26.11.2020
    Zuletzt bearbeitet: 26.11.2020
    jodler2014

    jodler2014

    Dabei seit:
    20.12.2014
    Beiträge:
    3.907
    Zustimmungen:
    542
    Beruf:
    Angestellter
    Ort:
    RP
    Den HKV in der Diele würde ich mehr in Richtung Bad / WC planen .
    Sieht ja auch unschön aus .:deal
    Und trotz " Energieeinsparung " mal über eine Zirkulation nachdenken .
    Das sind schon ordentliche Rohrlängen .
    Alleine schon aus Komfortgründen .
     
  5. #5 Gast56382, 26.11.2020
    Gast56382

    Gast56382 Gast

    Ja, ich bin auch zu der Überzeugung ei er Zirkulation gekommen. Die Leitungswege sind einfach zu lang.
    Werde WW und KW mit 20-2 verlegen lassen, Ziku mit 16-2. Das sollte dann genügen, oder kann man es noch anders machen?

    Den 10-HKV kann ich auch nähe G-WC Höhe der Toilette verlegen lassen. Passt wohl besser, was?
     
  6. #6 jodler2014, 27.11.2020
    jodler2014

    jodler2014

    Dabei seit:
    20.12.2014
    Beiträge:
    3.907
    Zustimmungen:
    542
    Beruf:
    Angestellter
    Ort:
    RP
    Und den kleinen HKV im Bereich vom Kabelkanal planen .
    Der Rohrverleger wird sehr dankbar sein .:think
     
Thema:

Welche Querschnitte sind geeignet für HKV und WW - KW

Die Seite wird geladen...

Welche Querschnitte sind geeignet für HKV und WW - KW - Ähnliche Themen

  1. Klingelleitung Querschnitt vergrößern?

    Klingelleitung Querschnitt vergrößern?: Will eine vorhandene Türsprechstation gegen eine Videotürstation wechseln. Habe jetzt eine 0,5mm² Leitung liegen die an einen Grothe Klingeltrafo...
  2. Flexible Adern Querschnitt 6mm2in UVT erlaubt

    Flexible Adern Querschnitt 6mm2in UVT erlaubt: Ich habe im KG Zählerschrank 3x35A HSA Automaten im Vorzählerbereich verbaut. Steigleitung Nym-j 5x16mm2 geht zum ca 12m entfernten UV im EG....
  3. Querschnitt Zuleitung HAK zum Zählerkasten und Absicherung

    Querschnitt Zuleitung HAK zum Zählerkasten und Absicherung: Hallo zusammen! Folgende Situation: Ich habe 2018 einen Neubau (Einfamilienhaus) von einem Bauträger gekauft, Bezug/Abnahme war im Frühjahr 2019....
  4. 2 Leitungen verschiedenen Querschnitts verb. in Muffe - erlaubt?

    2 Leitungen verschiedenen Querschnitts verb. in Muffe - erlaubt?: Umstellung Strom 1Fam.haus Freileitungsanschluss auf Erdanbindung Eine vorhandene Zul alte Z/VT O- Kabel NYM- O 4x 10mm2 soll (mittels...
  5. Erdkabel welchen Querschnitt für welche Länge

    Erdkabel welchen Querschnitt für welche Länge: Moin Demnächst soll unsere auffahrt neu gamcht werden. Dafür sollen wir schon mal ein paar kabel besorgen. Meine Frage ist welchen Querschnitt...