Welchen Portenbeton-Stein für nichtragende Innenwände?

Diskutiere Welchen Portenbeton-Stein für nichtragende Innenwände? im Mauerwerk Forum im Bereich Neubau; Hallo zusammen, gesucht ist der passende Stein: Trennwände, max. 4,75m nichttragend mit Türöffnung zwischen Schlaf- und Badezimmer sowie...

  1. #1 quantumsatis, 19.03.2023
    quantumsatis

    quantumsatis

    Dabei seit:
    13.01.2023
    Beiträge:
    14
    Zustimmungen:
    0
    Hallo zusammen,

    gesucht ist der passende Stein:

    Trennwände, max. 4,75m
    nichttragend
    mit Türöffnung
    zwischen Schlaf- und Badezimmer sowie zwischen Kinderzimmern
    ausreichende Tragfähigkeit für TV samt Halterung, Doppelwaschbecken
    Schallschutz-Aspekt

    PP4 oder reicht PP2
    11,5 oder 15 cm Stärke? EInfluss auf Stabilität, leichteres Verlegen, besseres Dübeln

    Noch eine Detailfrage, da ich verschiedenes gelesen habe:
    entkoppeln an der Wand und Decke mit Dämmstreifen oder starre Verankerung. Max. Länge wie oben erwähnt 4,75m pro Wand.

    Welchen Hersteller würdet ihr wählen? Marke wie Ytong oder geht auch "Baumarkt"?

    Danke für eure Meinungen.
     
  2. Alex88

    Alex88
    Moderator

    Dabei seit:
    14.10.2014
    Beiträge:
    6.610
    Zustimmungen:
    3.573
    Beruf:
    GF, Kaufmann, Trockenbaumeister
    Dann Trockenbau mit entsprechenden Vorkehrungen für die Anbauten
     
  3. #3 quantumsatis, 19.03.2023
    quantumsatis

    quantumsatis

    Dabei seit:
    13.01.2023
    Beiträge:
    14
    Zustimmungen:
    0
    Es soll leider definitiv Porenbeton verwendet werden.
    Hat hierzu jemand Erfahrungen?
     
  4. Tilo

    Tilo

    Dabei seit:
    15.10.2022
    Beiträge:
    1.670
    Zustimmungen:
    531
    Beruf:
    Dipl.- Bauingenieur
    Ort:
    Dresden
    Hallo
    Was ist mit Elektro, Wasser- Abwasserleitungen ?
     
    Fred Astair gefällt das.
  5. #5 Hercule, 19.03.2023
    Hercule

    Hercule

    Dabei seit:
    11.11.2019
    Beiträge:
    3.736
    Zustimmungen:
    865
    Grund ?
    Metallständer mit Gipskarton und Mineralwollfüllung wäre die bessere Lösung.
    Da bekommst du auch Wasserleitungen, Abwasserrohre und Stromleitungen viel einfacher verlegt.
    Für die Türöffnung gibt es die starken Profile aus 2mm dicken Stahl. Stabile Sache.
    Und was Schallschutz abgeht bestimmt auch die beste Lösung.
     
    11ant gefällt das.
  6. Yilmaz

    Yilmaz

    Dabei seit:
    28.03.2006
    Beiträge:
    7.263
    Zustimmungen:
    1.296
    Beruf:
    Maurer & Betonbaumeister
    Ort:
    Delbrück/Westfalen
    Benutzertitelzusatz:
    Maurer-und Betonbauermeister
    PP2 in 11,5 wirst du nicht finden.

    Wenn Schallschutz keine Rolle spielt 11,5 er PP4
    Was Stabilität angeht müssen Verankerungen und Ringanker vorgesehen werden.
     
    11ant gefällt das.
  7. #7 quantumsatis, 20.03.2023
    quantumsatis

    quantumsatis

    Dabei seit:
    13.01.2023
    Beiträge:
    14
    Zustimmungen:
    0
    Schallschutz ist nicht ohne. Die konkreten Auswirkungen kann man erst sehen, wenn alles fertig ist.
    Dann höre ich raus, dass man 15 in PP4 verbauen sollte, wo es etwas mehr auf den Schall ankommt?

    Ringanker? Wie von Ytong empfohlen sollten für diese nichttragenden Innenwände Mauerverbinder in jeder 2. Reihe, ggf. Armierungsgewebe verbaut werden.

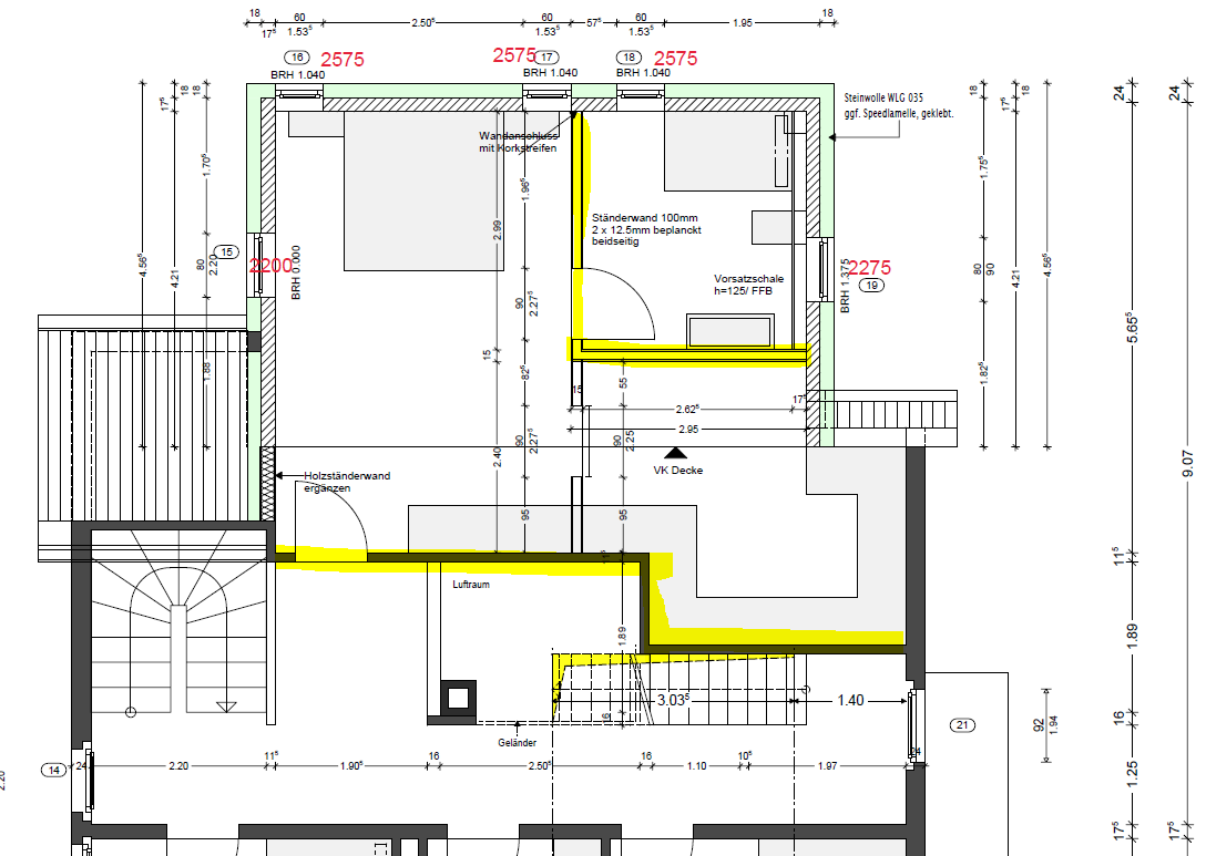
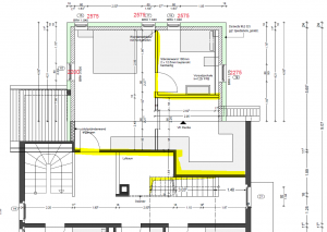
    Habe die Grundrisse zur besseren Vorstellung mal angehängt.
     

    Anhänge:

    • OG.PNG
      OG.PNG
      Dateigröße:
      95,6 KB
      Aufrufe:
      162
    • OG2.PNG
      OG2.PNG
      Dateigröße:
      46,6 KB
      Aufrufe:
      146
  8. Yilmaz

    Yilmaz

    Dabei seit:
    28.03.2006
    Beiträge:
    7.263
    Zustimmungen:
    1.296
    Beruf:
    Maurer & Betonbaumeister
    Ort:
    Delbrück/Westfalen
    Benutzertitelzusatz:
    Maurer-und Betonbauermeister
    Wenn etwas mehr Schallschutz gewünscht ist dann 11,5 KSV Steine.
    Hier ist mit deutlich mehr Eigengewicht zu rechnen ist und gewährleistet werden muss das die Decken dafür ausgelegt sind…
    Mit Mauerverbinder wird eine Verankerung kaum möglich sein da die Querwände Altbestand sind?
     
    Gast 85175 gefällt das.
  9. #9 quantumsatis, 20.03.2023
    quantumsatis

    quantumsatis

    Dabei seit:
    13.01.2023
    Beiträge:
    14
    Zustimmungen:
    0
    KS geht leider nicht.
    Es geht aus statischen Gründen nur geringes Gewicht.
    Trockenbau ist nicht erwünscht.
    Bleibt Porenbeton, ist auch einfacher zu verarbeiten.

    Für Wände mit höherer Schallschutzanforderung 15 PP4
    Für den Rest 11,5 PP4
    Hier können auch Waschtische fixiert werden.

    Ist das Ok oder gibt es Einwände?

    Vielen Dank.
     
  10. Tilo

    Tilo

    Dabei seit:
    15.10.2022
    Beiträge:
    1.670
    Zustimmungen:
    531
    Beruf:
    Dipl.- Bauingenieur
    Ort:
    Dresden
    Hallo
    Im OG, die Wand zwischen. SZ und KZ würde ich noch etwas in die Mitte , der beiden Fenster, in Richtung KZ rücken.
     
  11. #11 Tilo, 20.03.2023
    Zuletzt bearbeitet: 20.03.2023
    Tilo

    Tilo

    Dabei seit:
    15.10.2022
    Beiträge:
    1.670
    Zustimmungen:
    531
    Beruf:
    Dipl.- Bauingenieur
    Ort:
    Dresden
  12. #12 quantumsatis, 20.03.2023
    quantumsatis

    quantumsatis

    Dabei seit:
    13.01.2023
    Beiträge:
    14
    Zustimmungen:
    0
    Tilo, die Verschiebung der Wand verstehe ich nicht. Was genau meinst du?
    Gipsdielen sind noch teurer...
     
  13. Tilo

    Tilo

    Dabei seit:
    15.10.2022
    Beiträge:
    1.670
    Zustimmungen:
    531
    Beruf:
    Dipl.- Bauingenieur
    Ort:
    Dresden
    Hallo
    Der bündige Wandanschluss / Fensterleibung macht sich schlecht.....Lassen sich die Fenster öffnen ?
     

    Anhänge:

    • OG.PNG
      OG.PNG
      Dateigröße:
      95,6 KB
      Aufrufe:
      145
  14. #14 Ab in die Ruine, 21.03.2023
    Ab in die Ruine

    Ab in die Ruine

    Dabei seit:
    30.03.2022
    Beiträge:
    752
    Zustimmungen:
    343
    Wer hat Dir denn das erzählt?
    Eine Trockenbauwand ist eins zwei fix aufgestellt, kann mit dem Altbestand
    verschraubt werden.
    Porenbeton erfordert Mörtel, Kleber, Putz.
    Trockenbau wird einfach gespachtelt.
     
  15. Tilo

    Tilo

    Dabei seit:
    15.10.2022
    Beiträge:
    1.670
    Zustimmungen:
    531
    Beruf:
    Dipl.- Bauingenieur
    Ort:
    Dresden
    Hallo Ab ....
    Ich glaube der TE hatte sich immer schon auf Porenbeton festgelegt und sucht hier nur noch einmal ein OK, das er damit richtig liegt incl. ein paar Fragen zu den Anschlüssen. Vermutlich macht er es auch selber, kann das und freut sich drauf.....
     
  16. Alex88

    Alex88
    Moderator

    Dabei seit:
    14.10.2014
    Beiträge:
    6.610
    Zustimmungen:
    3.573
    Beruf:
    GF, Kaufmann, Trockenbaumeister
    und hat einen besseren Schallschutz, der ja gewünscht ist.....
     
    Ab in die Ruine gefällt das.
  17. #17 Hercule, 21.03.2023
    Hercule

    Hercule

    Dabei seit:
    11.11.2019
    Beiträge:
    3.736
    Zustimmungen:
    865
    Warum nicht ?
     
  18. #18 quantumsatis, 22.03.2023
    quantumsatis

    quantumsatis

    Dabei seit:
    13.01.2023
    Beiträge:
    14
    Zustimmungen:
    0
    Wir haben uns wie vom Vorredner vermutet auf Porenbeton eingestellt. Das können wir selbst verarbeiten.
    Sicher haben alle Materialien Vor- und Nachteile.
    Vielleicht findet sich daher noch jemand, der sich mit Porenbeton auskennt und hier Rat weiß.

    Ich danke dennoch für alle, die zu anderen Möglichkeiten informiert haben.
     
  19. Tilo

    Tilo

    Dabei seit:
    15.10.2022
    Beiträge:
    1.670
    Zustimmungen:
    531
    Beruf:
    Dipl.- Bauingenieur
    Ort:
    Dresden
    Hallo
    Mit Porenbeton kennen sich alle aus. Ytong & Co. bieten in ihren Unterlagen viele Lösungen und Details für Anschlüsse an.
    Frag nochmal konkret, wo du ein Problem hast.
     
  20. #20 quantumsatis, 22.03.2023
    quantumsatis

    quantumsatis

    Dabei seit:
    13.01.2023
    Beiträge:
    14
    Zustimmungen:
    0
    Ok, ich nehme das noch einmal von meiner Anfrage:

    1. Wenn Porenbeton. bester Schallschutz bei PP4 und 15cm in meinem Fall. Das würde ich dann so verbauen - es sei denn es gibt Gegenmeinungen.

    2. Im Grundriss oben: gelbe Wände sollen gemauert werden. Wie geschrieben nicht tragend.
    Besser entkoppeln an der Wand und Decke mit Dämmstreifen oder starre Verankerung? Max. Länge wie oben erwähnt 4,75m pro Wand.

    3. Welchen Hersteller würdet ihr wählen? Marke wie Ytong oder geht auch "Baumarkt"? Hat jemand Erfahrung mit Hornbach? Für Import ist die Menge zu gering.

    4. Sollte ich auf Nut und Feder bestehen?
     
Thema:

Welchen Portenbeton-Stein für nichtragende Innenwände?

Die Seite wird geladen...

Welchen Portenbeton-Stein für nichtragende Innenwände? - Ähnliche Themen

  1. Steine Vorschriften und Regelungen auf eigenem Grundstück

    Steine Vorschriften und Regelungen auf eigenem Grundstück: [ATTACH] [ATTACH] Guten Tag, Ich habe folgenden Sachverhalt: Wie auf dem beigefügten Bild zu sehen ist, habe ich auf meinem Grundstück vor der...
  2. Nasse Stufen und nasse Steine in der Einfahrt.

    Nasse Stufen und nasse Steine in der Einfahrt.: Hallo zusammen, vor ein paar Monaten wurde der Belag in meiner Einfahrt gelegt und die Treppenalnage zu meiner Haustüre gemacht. Und seitdem hab...
  3. Mitnutzung der L-Steine des Nachbarn

    Mitnutzung der L-Steine des Nachbarn: Hallo, Nachbar A hat auf seiner Seite der Grundstücksgrenze (exakt auf der Grenze, allerdings komplett auf seiner Seite) einige L-Steine gesetzt...
  4. Terrasse mit Höhenunterschied - Unbewehrte L-Steine

    Terrasse mit Höhenunterschied - Unbewehrte L-Steine: Hallo zusammen, ich plane aktuell eine Terrasse zu errichten welche ca 80cm hohe L-Steine erfordert. Die Kante der L-Steine wird ca 12m lang und...
  5. Außentreppe: können die seitlichen Steine weg?

    Außentreppe: können die seitlichen Steine weg?: Hallo zusammen, wir haben vor unserem Haus eine kleine Treppe aus Blockstufen. Seitlich davon befinden sich so Begrenzungssteine, und die gefallen...