Ziegel Rollladenkasten mit Bewehrung in der Decke.

Diskutiere Ziegel Rollladenkasten mit Bewehrung in der Decke. im Mauerwerk Forum im Bereich Neubau; Moin, ich habe schon das halbe Forum durchsucht, finde aber keinen Beitrag der meinem Fall jetzt ähnelt. Ich baue momentan ein EFH mit...

  1. #1 shakoon1990, 28.07.2020
    shakoon1990

    shakoon1990

    Dabei seit:
    28.07.2020
    Beiträge:
    4
    Zustimmungen:
    0
    Moin,

    ich habe schon das halbe Forum durchsucht, finde aber keinen Beitrag der meinem Fall jetzt ähnelt.

    Ich baue momentan ein EFH mit Wienerberger T8 in 36,5 und Wienerberger S8 MW in 36,5

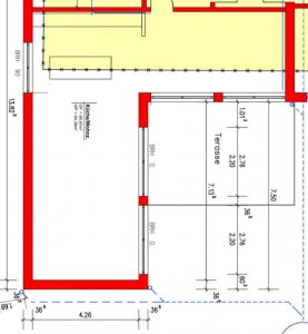
    Ich habe auf der innenseite eines L-Anbau 4 Großflächige Fenster geplant, (siehe Anhang). Darüber sollen Rollladenkästen aus Ziegel 36,5cm breit und 30cm hoch von Wienerberger.

    Die mittleren oder rechten. Bin mir noch unschlüssig.

    Die Rolladenkästen werden Deckengleich, auf Deckenhöhe wird der Sturz betoniert. (Siehe Skizze im Anhang)

    Was haltet ihr davon? halten das die Rolladenkästen aus? Auch auf der Breite von 2,8 und 2,6m Lichtemaß Fenster?



    Frage 2, kann man in diese Rollladenkästen einfach einen Standard Elektroantrieb einbauen? Hat da jemand erfahrung damit?

    Frage 3, Wieviel Auflagefläche sollten die Rollladenkästen haben?
    ich habe zwischen den Fenstern nur eine 36,5 x 36,5cm Säule aus Wienerberger S8 Steinen mit MW.
     

    Anhänge:

  2. BaUT

    BaUT

    Dabei seit:
    30.10.2019
    Beiträge:
    9.186
    Zustimmungen:
    5.748
    Beruf:
    Baufacharbeiter und Dipl.-Ing. Hochbau
    Ort:
    Berlin
    Benutzertitelzusatz:
    Erklärbär
    Zu Frage 1:
    Der Statiker sollte die Durchbiegungsbegrenzung beachten, damit keine unzulässigen Verformungen aus dem Deckenrand auf den Rollladenkasten drücken.

    Frage 2 und 3 sollte doch wohl der Fensterbauer oder der Jalousieexperte beantworten können - kommt ja neben der Spannweite auch ein bisl auf das Gewicht des Panzers an.
     
  3. #3 SIL, 30.07.2020
    Zuletzt bearbeitet: 30.07.2020
    SIL

    SIL

    Dabei seit:
    06.05.2018
    Beiträge:
    10.865
    Zustimmungen:
    4.212
    Beruf:
    M. Sc. Dipl. Ingenieur
    Ort:
    6210
    Roka Per oder Lit? mind a 6 cm Empfehlung 12 cm allerdings bist du mit deiner Lichte knapp über dem Standardlängen.
    2)ja
    3)s.o.

    Alternative wäre zum Beispiel bero Kasten für Ziegel MW die gibt es mit oberseitigen Anschlusseisen und bis 5m Standlänge.
    Ist doch Balken/Unterzug drüber @BaUT
     
Thema: Ziegel Rollladenkasten mit Bewehrung in der Decke.
Besucher kamen mit folgenden Suchen
  1. bewehrung über rollohasten

Die Seite wird geladen...

Ziegel Rollladenkasten mit Bewehrung in der Decke. - Ähnliche Themen

  1. Neue Ziegel viele Risse. Bin ich zu penibel?

    Neue Ziegel viele Risse. Bin ich zu penibel?: Hallo liebe Forengemeinde. Ich bin Charlie und an unserem Haus soll in diesem Jahr das Dach gemacht werden. Ich habe im hochbau gelernt und auch...
  2. Fassadenkachel oder Ziegel, Bestimmung

    Fassadenkachel oder Ziegel, Bestimmung: Hallo zusammen, Ich kann nicht wirklich das Material mit welchem mein Giebel verkleidet wurde, bestimmen. Ich habe solch ein Material noch nie...
  3. Selbsttragende Ziegel-Rollladenkästen übermauern

    Selbsttragende Ziegel-Rollladenkästen übermauern: Hallo zusammen, ich möchte gerne wissen, ob man selbsttragende Ziegel-Rollladenkästen mit einer Lage Ziegel übermauern darf, bevor man die dann...
  4. Fensteranschluss an Ziegel-Rollladenkästen

    Fensteranschluss an Ziegel-Rollladenkästen: Hallo zusammen, Ausgangslage: Rohbau fertig, Fenster bereits drin und abgedichtet, Ziegel-Rollladenkästen in geschlossener Ausführung. Problem:...
  5. Rollladenkasten: Ziegel oder auf Fenster montiert?

    Rollladenkasten: Ziegel oder auf Fenster montiert?: Hallo, unser Architekt überraschte uns heute mit der Frage danach, was für Rollladenkästen wir wünschen. Mein Ansinnen war es immer, von außen...