Zirkulationsleitung erforderlich? 3 Liter Regel

Diskutiere Zirkulationsleitung erforderlich? 3 Liter Regel im Sanitär Forum im Bereich Haustechnik; Hallo zusammen, wir bauen derzeit ein Fertighaus mit einem größeren Hersteller und befinden uns eigentlich an dem Punkt, an dem uns der...

  1. #1 Scash93, 30.11.2025
    Scash93

    Scash93

    Dabei seit:
    30.11.2025
    Beiträge:
    8
    Zustimmungen:
    0
    Hallo zusammen,

    wir bauen derzeit ein Fertighaus mit einem größeren Hersteller und befinden uns eigentlich an dem Punkt, an dem uns der Stelltermin mitgeteilt werden sollte. Das bedeutet: Alle Unterlagen sind bereits final freigegeben, und laut Baufirma seien keine Änderungen mehr möglich.

    Nun hat sich die Baufirma jedoch überraschend gemeldet und mitgeteilt, dass im Obergeschoss zwingend eine Zirkulationsleitung erforderlich sei, da die 3-Liter-Regel angeblich nicht eingehalten werden kann. Während der Bemusterung haben wir bereits unterschrieben, dass wir eine solche Leitung nicht möchten.

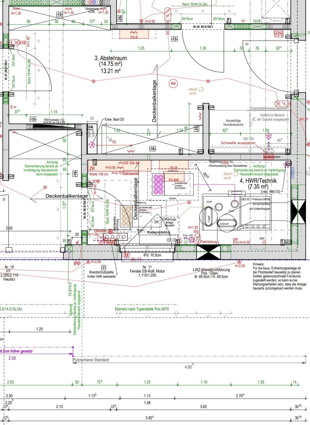
    Das Bad im Obergeschoss liegt nahezu direkt über dem Technikraum (Ausschnitt des Grundrisses ist angehängt). Ich bin zwar kein Experte, habe aber nach eigener Recherche den Eindruck gewonnen, dass eine Zirkulationsleitung bei dieser Leitungsführung eher ungewöhnlich wäre.

    Gibt es hier Experten, die uns diesbezüglich unterstützen oder eine Einschätzung geben können?
    Liebe Grüse
    Scash
     

    Anhänge:

    • OG.jpg
      OG.jpg
      Dateigröße:
      437,6 KB
      Aufrufe:
      137
    • EG.jpg
      EG.jpg
      Dateigröße:
      462,6 KB
      Aufrufe:
      132
  2. #2 Fabian Weber, 30.11.2025
    Fabian Weber

    Fabian Weber

    Dabei seit:
    03.04.2018
    Beiträge:
    16.387
    Zustimmungen:
    6.519
    In dem Plan fehlt ja die Zirkulationsleitung.

    Deine Baufirma kann doch sicherlich die Berechnung vorlegen, die zur Grundlage der 3-Liter geführt hat.
     
    Fred Astair gefällt das.
  3. #3 Fred Astair, 30.11.2025
    Fred Astair

    Fred Astair

    Dabei seit:
    02.07.2016
    Beiträge:
    12.731
    Zustimmungen:
    6.601
    Beruf:
    Tänzer
    Ort:
    San Bernardino
    Würde mich auch interessieren, was die für Nennweiten verlegen wollen, um über die 3-Literregel zu kommen.
     
  4. #4 Scash93, 30.11.2025
    Scash93

    Scash93

    Dabei seit:
    30.11.2025
    Beiträge:
    8
    Zustimmungen:
    0
    Hallo ihr beiden,
    vielen Dank für eure Antworten. Uns geht es darum, ob man anhand des Grundrisses ausmachen kann, ob eine Zirkulationsleitung notwendig sein könnte.
    Der Hintergrund ist, wir haben schon mehrfach Probleme mit dem Hausbauer gehabt. Er hat uns auch keine Berechnung mitgeschickt sondern einfach, "es wird gebraucht, zahlen Sie 1100 Euro mehr". Bisher war es so, wenn wir die Kosten nicht tragen und unterschreiben, drohen sie uns mit Baustopp.
    LG Scash
     
  5. #5 Fred Astair, 30.11.2025
    Zuletzt bearbeitet: 30.11.2025
    Fred Astair

    Fred Astair

    Dabei seit:
    02.07.2016
    Beiträge:
    12.731
    Zustimmungen:
    6.601
    Beruf:
    Tänzer
    Ort:
    San Bernardino
    Dann müsst Ihr leider Stärke zeigen und den Nachweis für die Mehrkosten fordern. Steht Ihr extrem unter Druck, zeitlich?
    Macht denen klar, dass Ihr alle Mehrkosten, die aus unberechtigten Verzögerungen erwachsen, an Sie weiterberechnet.

    Ich werde mir das nachher am PC mal ansehen. Am Handy kann ich nichts erkennen. Es wäre aber gelacht, wenn man das nicht ohne Zirku hinbekäme.
    Außerdem könnt Ihr im EFH die Firma von Konsequenzen aus der 3-Liter-Regel entbinden.
     
    11ant gefällt das.
  6. #6 Scash93, 30.11.2025
    Scash93

    Scash93

    Dabei seit:
    30.11.2025
    Beiträge:
    8
    Zustimmungen:
    0
    Das wäre super, vielen Dank Fred. Leider hat die Baufirma das Projekt so gezogen, dass bald die Verzugszinsen anfallen.
    Beim letzten Problem kam nur die Aussage, sie diskutieren den Punkt nicht mehr und solange wir die Mehrkosten nicht hinnehmen, arbeiten sie nicht mehr weiter.

    LG
    Scash
     
  7. #7 Fabian Weber, 30.11.2025
    Fabian Weber

    Fabian Weber

    Dabei seit:
    03.04.2018
    Beiträge:
    16.387
    Zustimmungen:
    6.519
    Du weißt schon, dass die rechtlich auf ganz wackligen Beinen stehen, oder? Jedenfalls, so wie Du es schilderst.

    Wenn die Mehrkosten für eine Leistung aufrufen, die Du nicht willst, dann sollen Die wenigstens mal die Pläne herzeigen, noch besser die Berechnung.
     
    11ant gefällt das.
  8. #8 Fred Astair, 30.11.2025
    Zuletzt bearbeitet: 30.11.2025
    Fred Astair

    Fred Astair

    Dabei seit:
    02.07.2016
    Beiträge:
    12.731
    Zustimmungen:
    6.601
    Beruf:
    Tänzer
    Ort:
    San Bernardino
    Heute Abend babe ichs nicht geschafft, mich aufzuraffen. Liege seit gestern flach. Vielleicht wirds morgen besser.
    Hast Du schon Kontakt zu einem Baurechtsanwalt aufgenommen? Das solltest Du unabhängig von unserer Einschätzung tun.
     
    11ant gefällt das.
  9. #9 Fabian Weber, 30.11.2025
    Fabian Weber

    Fabian Weber

    Dabei seit:
    03.04.2018
    Beiträge:
    16.387
    Zustimmungen:
    6.519
    user @11ant kennt sich da aus und user @Markl eher auf der Seite der Geschädigten.

    Kannst ja mal überlegen, ob Du den Anbieter nennen möchtest.
     
  10. 11ant

    11ant

    Dabei seit:
    28.02.2017
    Beiträge:
    2.579
    Zustimmungen:
    1.624
    Beruf:
    Bauherrenberater
    Ort:
    RLP Nord
    Benutzertitelzusatz:
    bringt Sie gut beraten ins Eigenheim
    Ich bin kein Anwalt ...
    ... und kann nicht beurteilen, ob dies bestimmt genug so zu verstehen war, als Konstruktionsziel ins Pflichtenheft zu schreiben, auf die Unterschreitung dieses Leitungslängenvolumens zu achten.
    Ich kenne mich mit allerlei Anbietern von Häusern verschiedener Bauweisen aus, jedoch nicht speziell mit Installationsthemen. Außer kein Anwalt bin ich auch kein Heizungsbauer- oder Klempnermeister.
     
  11. #11 Fabian Weber, 30.11.2025
    Fabian Weber

    Fabian Weber

    Dabei seit:
    03.04.2018
    Beiträge:
    16.387
    Zustimmungen:
    6.519
    @11ant ich habe Dich auch eher hier reingeholt, da hier ja auch ein fragwürdiges Gebaren der Baufirma darstellt wird. Vielleicht erfahren wir ja noch mehr vom TE dazu.
     
  12. #12 Scash93, 01.12.2025
    Scash93

    Scash93

    Dabei seit:
    30.11.2025
    Beiträge:
    8
    Zustimmungen:
    0
    Ich würde den Namen der Baufirme gerne noch für mich behalten.
    Wir warten nun auf die Pläne. Ich gebe ein Update, sobald diese vorliegen.

    LG

    Scash
     
  13. #13 Fred Astair, 01.12.2025
    Fred Astair

    Fred Astair

    Dabei seit:
    02.07.2016
    Beiträge:
    12.731
    Zustimmungen:
    6.601
    Beruf:
    Tänzer
    Ort:
    San Bernardino
    Der Name tut hier auch nichts zur Sache und ginge nur Deinem Anwalt etwas an.
    Was Fabian meinte, waren Einzelheiten zu Vertragstexten und Schriftverkehr, aber bitte anonymisiert.
     
    11ant gefällt das.
  14. #14 Fred Astair, 01.12.2025
    Fred Astair

    Fred Astair

    Dabei seit:
    02.07.2016
    Beiträge:
    12.731
    Zustimmungen:
    6.601
    Beruf:
    Tänzer
    Ort:
    San Bernardino
    Heute habe ich Deine möglichen Leitungen mal berechnet und meine Einschätzung bestätigt gesehen.
    Selbst wenn nicht die kürzesten Wege gewählt werden und alle Verbraucher durchgeschliffen, bleibst Du unter der 3-Liter-Grenze. AAA_Screenshot 2025-12-01 195346.jpg
    Ich muss Dir aber sagen: Mein Lieblingskunde wärst Du nicht mit den ganzen "bauseits"-Beschränkungen.
     
    seaway, driver55, Jo Bauherr und 2 anderen gefällt das.
  15. #15 Scash93, 01.12.2025
    Scash93

    Scash93

    Dabei seit:
    30.11.2025
    Beiträge:
    8
    Zustimmungen:
    0
    Hallo Fred, vielen Dank dir. :)
    Was meinst du mit Bauseits Beschränkungen?

    LG
    Scash
     
  16. #16 Fred Astair, 01.12.2025
    Fred Astair

    Fred Astair

    Dabei seit:
    02.07.2016
    Beiträge:
    12.731
    Zustimmungen:
    6.601
    Beruf:
    Tänzer
    Ort:
    San Bernardino
    Na die ganzen Objekte, die Du selbst beschaffen und montieren willst.
     
  17. #17 Scash93, 01.12.2025
    Scash93

    Scash93

    Dabei seit:
    30.11.2025
    Beiträge:
    8
    Zustimmungen:
    0
    Achso das meinst du. Wir machen alles nach Estrich selbst, da die Baufirma für Böden zu viel Geld wollte und nur eine Art Wandbelag verlegen wollte, welchen wir nicht wollten. Dadurch spachtelt die Firma auch nicht und macht die Bäder nicht. Da bleibt uns leider nichts anderes übrig viel selbst zu machen.

    LG
    Scash
     
  18. #18 msfox30, 02.12.2025
    msfox30

    msfox30

    Dabei seit:
    12.05.2015
    Beiträge:
    2.422
    Zustimmungen:
    832
    Beruf:
    IT Berater
    Ort:
    Halle
    Also ist die Planungsphase schon durch und ihr wartet, dass das Haus geliefert wird. Mich beschleicht ein wenig das Gefühl, dass die Baufirma irgendwo die Zirkulationsleitung mitbestellt hat und jetzt nicht auf den Kosten sitzen bleiben will. Oder es gibt andere Punkte, die sie durch eine überteuerte Zirkulationsleitung decken wollen.
    Ging eine solche Zirkulationsleitung nicht auch in irgendeine Berechnung (EneV?/ Ebergienachweis) ein? Die passt ja dann auch nicht mehr.
    Sooo einfach geht das auch nicht. Das Haus ist ja in der Fertigung und soll sicher nicht irgendwo "im Lager" rumstehen. Wie Fred gerechnet hat, brauchst du die Zirkulationsleitung nicht. D.h. du sitzt im Zweifel am längeren Hebel und die Baufirma hat durch ihre Sturheit einen Bauverzug verursacht.
    Gibt es diese 3Liter-Regel neu?
    Wir haben vor 8 Jahren gebaut. Unser Bad liegt auch über dem Technikraum und wir haben keine Zirkulation. Die Küchenspüle ist noch weiter weg - ca. 10...12m. Das damals keinen interessiert.
     
  19. #19 Scash93, 02.12.2025
    Scash93

    Scash93

    Dabei seit:
    30.11.2025
    Beiträge:
    8
    Zustimmungen:
    0
    Ja laut deren Aussage, sollte sich das Haus bereits in Produktion befinden. Eigentlich sollten wir auch den Stelltermin erhalten haben. Diesen bekommen wir allerdings erst, wenn wir die Mehrkosten unterschreiben, so denken wir zumindest, da der Stelltermin aktuell zurückgehalten wird.
    Die Unterlagen haben wir angefragt, aber es meldet sich bisher keiner.

    Naja wir hatten bereits 4 oder 5 mal die Androhung eines Baustopps und waren auch schon beim Anwalt. Die machen uns sehr großen finanziellen druck.
    Die 3 Liter Regel gibt es glaube ich seit Anfang der 2000er, wenn ich es richtig gelesen habe. Im EFH Bereich sollte das auch überhaupt keine Relevanz finden, soweit wie ich aktuell informiert bin.
     
  20. #20 Fred Astair, 02.12.2025
    Fred Astair

    Fred Astair

    Dabei seit:
    02.07.2016
    Beiträge:
    12.731
    Zustimmungen:
    6.601
    Beruf:
    Tänzer
    Ort:
    San Bernardino
    Mehr als 3 Liter dürften da aber auch nicht drin sein. Aus Komfortgründen empfehle ich in solchen Fällen eine elektrische WW-Bereitung vor Ort.
    und wart Ihr auch drin und habt mit ihm gesprochen? Was will er unternehmen?
    Lass Dir doch nicht jedes Wort aus der Nase ziehen.
     
    driver55 gefällt das.
Thema:

Zirkulationsleitung erforderlich? 3 Liter Regel

Die Seite wird geladen...

Zirkulationsleitung erforderlich? 3 Liter Regel - Ähnliche Themen

  1. Wärmepumpe mit Zirkulationsleitung?

    Wärmepumpe mit Zirkulationsleitung?: Guten Tag, ein frohes neues Jahr! Wir haben ein Haus Baujahr 1984 gekauft und es wird jetzt saniert. Eckdaten: -3 Personen -112m2 Wohnfläche...
  2. Zirkulationsleitung ohne Umwälzpumpe möglich?

    Zirkulationsleitung ohne Umwälzpumpe möglich?: Hallo zusammen, ich habe überlegt in unserem Haus eine Zirkulationsleitung ohne Umwälzpumpe einbringen zu lassen. Der Plan ist, dass immer warmes...
  3. dunkelbraunes Wasser in der Zirkulationsleitung

    dunkelbraunes Wasser in der Zirkulationsleitung: Moin zusammen, wir, eine Eigentümergemeinschaft ( 2 Häuser mit jeweils 12 Einheiten) haben folgendes Problem: In den Zirkulationsleitungen ist...
  4. Zirkulationsleitung Warmwasser falsch angeschlossen?

    Zirkulationsleitung Warmwasser falsch angeschlossen?: Hallo und einen guten Abend zusammen, Unsere Haus-Wasserinstallation wird 20 Jahre oder sogar noch älter sein. Kalt und Warmwasserleitungen sind...
  5. WW-Verbrauch zu hoch wegen falsch angeschlossener Zirkulationsleitung?

    WW-Verbrauch zu hoch wegen falsch angeschlossener Zirkulationsleitung?: Ausgangssituation: Dachgeschosswohnung in Mehrfamilienhaus, 27 Wohneinheiten, drei Aufgänge mit 9 Wohneinheiten, Dachgeschosse 1995 ausgebaut,...