Zweischalige Wand - Sockelausführung ohne Frostschürze

Diskutiere Zweischalige Wand - Sockelausführung ohne Frostschürze im Beton- und Stahlbetonarbeiten Forum im Bereich Neubau; Hallo liebe Bauexperten, ich habe eine Frage zur Sockelausführung zu unserem geplanten Neubau mit zweischaligem Wandaufbau (24 cm Poroton, 10 cm...

  1. #1 schwatte, 03.04.2025
    schwatte

    schwatte

    Dabei seit:
    02.04.2025
    Beiträge:
    2
    Zustimmungen:
    1
    Hallo liebe Bauexperten,

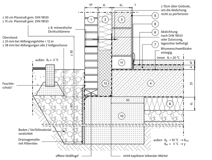
    ich habe eine Frage zur Sockelausführung zu unserem geplanten Neubau mit zweischaligem Wandaufbau (24 cm Poroton, 10 cm Mineralwolle, 2 cm Fingerspalt, 11,5 oder 10 cm Klinker. Relativ gängig scheint diese Ausführung zu sein (Klinkerwand steht auf Frostschürze):
    upload_2025-4-3_0-1-43.png

    Bei uns ist eine tragende Bodenplatte (25 cm) geplant mit einem Gründungspolster von mindestens 50 cm Stärke. Die Frosttiefe ist damit im Prinzip schon erreicht... Ursprünglich sah die Planung bei uns so aus wie auf dem Bild oben. Jetzt frage ich mich aber, ob es nicht Sinn ergeben könnte, auf die Frostschürze zu verzichten. Was meint ihr?

    Wie würdet ihr es machen bzw. was haltet ihr von diesen Varianten?
    1. Die Bodenplatte könnte Durchgezogen werden [a) ohne Absatz, b) mit Absatz]:
    • Dämmtechnisch ist b) besser, aber lohnt sich der Aufwand diesen Absatz in der Bodenplatte herzustellen?
    • Braucht man wirklich diesen Dämmstein?
    • Gibt es Risiken/ Nachteile außer die schlechtere Wärmedämmung im Vergleich zur Variante mit Frostschürze? upload_2025-4-3_0-27-37.png
    2. Es gibt spezielle Systeme für zweischalige Wandaufbauten, bei denen Außendämmung und Schalung kombiniert sind --> Unten zwei Beispiele:
    • Was haltet ihr von solchen Lösungen (technisch, Preis-/Leistung)?
      • isolohr:
    • upload_2025-4-3_0-54-7.png
      • jackon-insulation:
      • upload_2025-4-3_0-52-58.png
    3. Kombination aus 1 und 2?
    • z.B. Glasschaumschotter anstatt XPS und trotzdem Bodenplatte von Fundament für Klinkermauer trennen? Könnte das eine wirtschaftliche Lösung sein (Perimeterdämmung als Trennung der beiden Fundamente vor dem Betonieren platzieren/montieren)?
    • upload_2025-4-3_1-10-51.png
    Ich würde gerne Fehler vermeiden und wirtschaftliche Lösungen finden. Ich brauche nicht die beste Wärmedämmung um jeden Preis. Ich bin dankbar für jeden Tipp oder Hinweis.​
     
  2. #2 Sebastian1212, 10.11.2025
    Sebastian1212

    Sebastian1212

    Dabei seit:
    10.11.2025
    Beiträge:
    2
    Zustimmungen:
    0
    Hallo, es ist schon einiges her. Wofuer hast du dich entschieden? Ich stehe gerade vor dem gleichen Thema.
     
  3. #3 schwatte, 10.12.2025
    schwatte

    schwatte

    Dabei seit:
    02.04.2025
    Beiträge:
    2
    Zustimmungen:
    1
    Hi,

    wir haben uns für Version 1 a) entschieden (ohne Dämmstein).
    • Bodenplatte durchgängig bis Außenkante Klinker
    • Tragende Wand: 24 cm Poroton T14
    • Dämmung: 12 cm Mineralwolle 0035
    • Dämmung Sockelbereich: 12 cm XPS (Höhe 60 cm)
    • Fingerspalt: 1,5 cm
    • Fassade: Klinkerstein mit Breite 10,5 cm direkt ab Bodenplatte (WDF-Format)
    • Abdichtung Sockel: 2k-Reaktivbeschichtung "PCI Barraseal® Turbo" (ca 30 cm hoch an tragender Wand + unter Klinker)
     
    Sebastian1212 gefällt das.
  4. #4 Sebastian1212, 10.12.2025
    Sebastian1212

    Sebastian1212

    Dabei seit:
    10.11.2025
    Beiträge:
    2
    Zustimmungen:
    0
    Vielen Dank! Ich neige auch zu dieser Loesung :-).
     
Thema:

Zweischalige Wand - Sockelausführung ohne Frostschürze

Die Seite wird geladen...

Zweischalige Wand - Sockelausführung ohne Frostschürze - Ähnliche Themen

  1. 2 oder 3-fach Verglasung bei BJ 81 und zweischaliger Wand

    2 oder 3-fach Verglasung bei BJ 81 und zweischaliger Wand: Moin, Wir haben uns ein schönes Haus BJ 1981 gekauft. Dort sind im EG noch die recht großen original 3-fach verglasten Holz Schwingfenster aus...
  2. Wand verschließen - Zweischaliges Mauerwerk

    Wand verschließen - Zweischaliges Mauerwerk: Hallo Zusammen, ich wollte bei euch mal nachfragen, ob sich meine Idee umsetzen lässt oder ob ihr vielleicht sogar eine bessere Idee habt. Ich...
  3. Modriger Gestank aus trockener, zweischaliger Wand im Bad. Kein Schimmel, keine Feuchtigkeit

    Modriger Gestank aus trockener, zweischaliger Wand im Bad. Kein Schimmel, keine Feuchtigkeit: Hallo zusammen, in meiner EG-Eigentumswohnung habe ich ein Problem mit einer innenliegenden, zweischaligen Hohl-Wand vom Badezimmer, die...
  4. Zweischaliges Mauerwerk - Feuchte Wand - Bauphysik - Kerndämmung?

    Zweischaliges Mauerwerk - Feuchte Wand - Bauphysik - Kerndämmung?: Liebe Foristen, in unserem Altbau Bj 1927 soll der Keller (genauer: Souterrain, nur ca. 80cm unter Erdboden) trockengelegt werden, da eine...
  5. Zweischalige Wand und Auswirkung auf u-Wert durch gespeicherte Sonnenwärme

    Zweischalige Wand und Auswirkung auf u-Wert durch gespeicherte Sonnenwärme: Klinkerwände strahlen ja abends noch eine angenehme Wärme ab, wenn sie tagsüber durch die Sonne erwärmt wurden. Durch die Kerndämmung kommt...