2,5 Vollgeschosse (35 Grad Dachneigung) - Wohnfläche im DG?

Diskutiere 2,5 Vollgeschosse (35 Grad Dachneigung) - Wohnfläche im DG? im Architektur Allgemein Forum im Bereich Architektur; Hier noch das GS Eingang im UG im Norden An Stelle der Gelaendemodellierung kann man auch ein Deck installieren, da bekommt man noch etwas mehr...

  1. #21 hanghaus2000, 15.11.2024
    hanghaus2000

    hanghaus2000

    Dabei seit:
    24.11.2021
    Beiträge:
    1.545
    Zustimmungen:
    644
    Beruf:
    Bauleiter, Kalkulator, Controller, Salzdesign
    Ort:
    Bayern
    Hier noch das GS
    Eingang im UG im Norden

    An Stelle der Gelaendemodellierung kann man auch ein Deck installieren, da bekommt man noch etwas mehr Licht ins UG.

    upload_2024-11-15_16-18-59.png
     
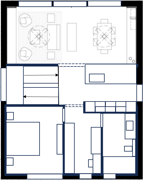
  2. #22 hanghaus2000, 17.11.2024
    hanghaus2000

    hanghaus2000

    Dabei seit:
    24.11.2021
    Beiträge:
    1.545
    Zustimmungen:
    644
    Beruf:
    Bauleiter, Kalkulator, Controller, Salzdesign
    Ort:
    Bayern
    Hier mal das EG wie ich es mir vorstelle.

    upload_2024-11-17_13-37-3.png

    Haus 10,7*8,5m
     
  3. iFuchs

    iFuchs

    Dabei seit:
    07.09.2024
    Beiträge:
    30
    Zustimmungen:
    9
    Hallo @hanghaus2000, wir haben uns leider doch gegen das Grundstück entschieden.
     
    hanghaus2000 und 11ant gefällt das.
Thema:

2,5 Vollgeschosse (35 Grad Dachneigung) - Wohnfläche im DG?

Die Seite wird geladen...

2,5 Vollgeschosse (35 Grad Dachneigung) - Wohnfläche im DG? - Ähnliche Themen

  1. Grundriss. EFH 1 Vollgeschoss ohne Schrägen ca. 180qm

    Grundriss. EFH 1 Vollgeschoss ohne Schrägen ca. 180qm: Hi zusammen, wir sind gerade fleißig am Planen. Der Plan ist ein DIY. Habt ihr anregungen, wie man das ganze verbessern kann oder wo Probleme...
  2. Definition Vollgeschoss - Hessen - Öffnungen

    Definition Vollgeschoss - Hessen - Öffnungen: Vollgeschoss: Öffnungen Guten Tag, hinsichtlich der 2/3 Regelung bei Vollgeschossen, stellt sich die Frage, wie es sich bei Öffnungen in der...
  3. Fassadendämmung nur der Vollgeschosse

    Fassadendämmung nur der Vollgeschosse: Hallo Experten, an meinem Haus Baujahr 1926 möchte ich die Stirnseite dämmen lassen. Dahinter liegt ein unbeheiztes Treppenhaus, in dem es im...
  4. 2/3 Regelung Vollgeschoss Bemessungsgrundlage

    2/3 Regelung Vollgeschoss Bemessungsgrundlage: Hi! Wir planen möglicherweise ein Haus zu bauen und wollen uns grob selbst überlegen wie der Grundriss in etwa aussehen soll und würden es dann an...