3 Grundrisse - Bitte um Meinungen

Diskutiere 3 Grundrisse - Bitte um Meinungen im Mein Hausbau Forum im Bereich Rund um den Bau; Ich würde hiermit gerne eure Meinung zu diesen drei Grundrissen erfragen - Grundriss 1 und 2 berücksichtigen eine spätere Familienplanung, Plan 3...

  1. #1 NinaMKH, 17.12.2025
    NinaMKH

    NinaMKH

    Dabei seit:
    05.10.2025
    Beiträge:
    2
    Zustimmungen:
    0
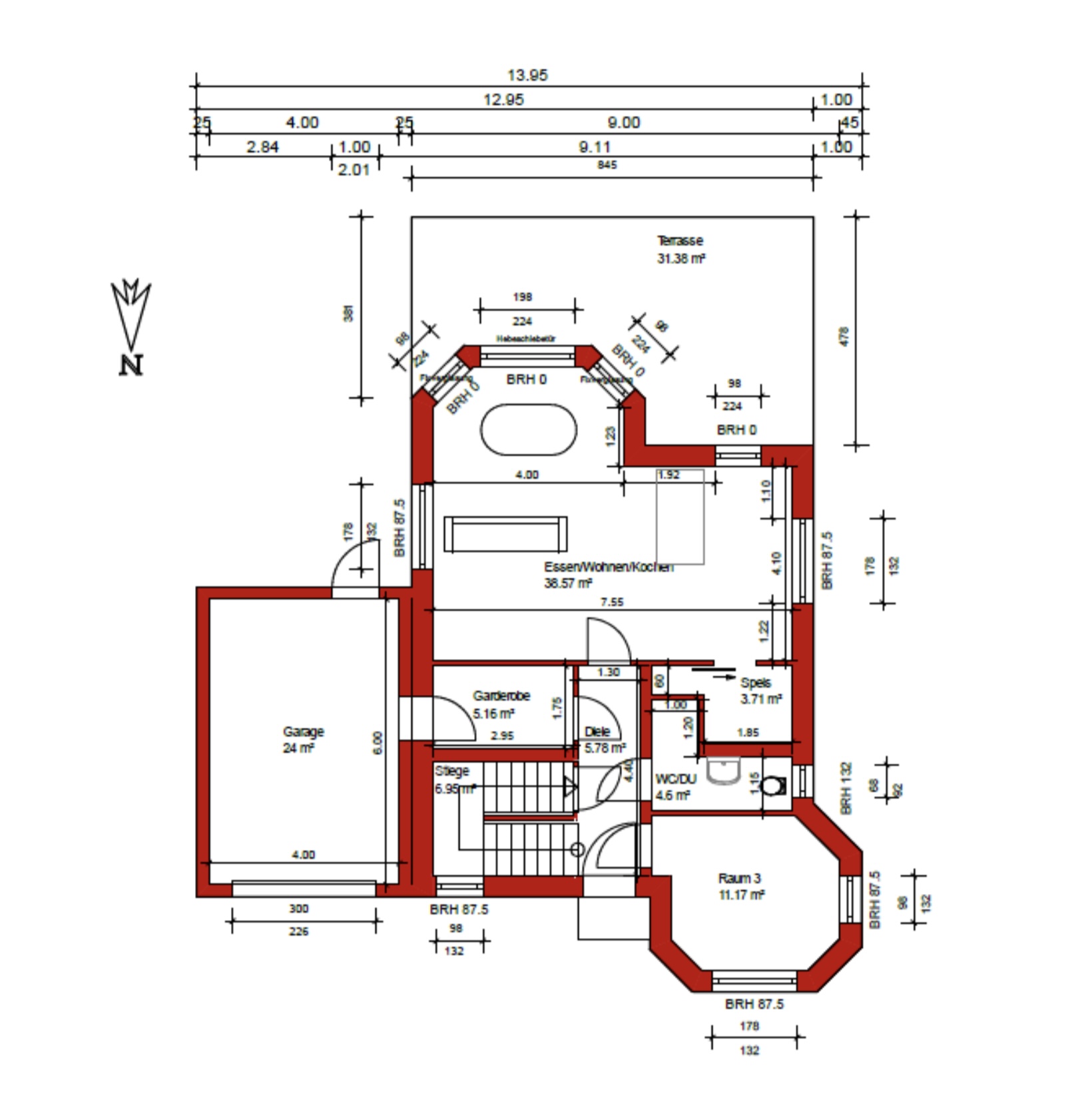
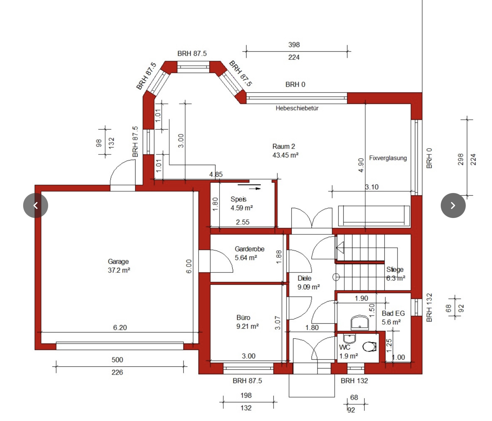
    Ich würde hiermit gerne eure Meinung zu diesen drei Grundrissen erfragen - Grundriss 1 und 2 berücksichtigen eine spätere Familienplanung, Plan 3 nicht
    Gerne ganz ehrlich alles sagen was euch gefällt und was eher weniger und vielleicht auch, welcher Grundriss für euch am sinnvollsten und besten geplant erscheint
    Vielen Dank im Voraus für eure Rückmeldung!
     

    Anhänge:

  2. #2 nordanney, 17.12.2025
    nordanney

    nordanney

    Dabei seit:
    15.09.2021
    Beiträge:
    6.237
    Zustimmungen:
    3.597
    Beruf:
    Finanzierer/Investor/Bau- und Sanierungslaie
    Ort:
    Niederrhein
    Warum drei Grundrisse diskutieren?

    Fragen z.B.
    - Lageplan
    - Ausrichtung
    - Warum Grundriss so, wie er ist
    - Lage auf dem Grundstück
    - Preislimit überdenken - für genau 512k (tolle Schätzung des Planers = Ihr selbst) musst Du verdammt viel Glück haben, bei dieser Architektur überhaupt so ein großes Haus OHNE Keller zu bekommen.
    usw.

    Zu den Grundrissen an sich sage ich lieber nichts...
     
    11ant, Kriminelle und driver55 gefällt das.
  3. #3 driver55, 17.12.2025
    driver55

    driver55

    Dabei seit:
    22.02.2008
    Beiträge:
    6.867
    Zustimmungen:
    1.795
    Beruf:
    Dipl.-Ing.
    Ort:
    Pforzheim
    @NinaMKH: Es gab schon vor 2 Monaten keine Reaktion von dir und jetzt dürfen gleich drei bewertet werden. Man, man…

    Grundriss Haus

    Energieverschwendung…
     
  4. #4 Fasanenhof, 17.12.2025
    Fasanenhof

    Fasanenhof

    Dabei seit:
    20.02.2023
    Beiträge:
    1.446
    Zustimmungen:
    813
    Beruf:
    Ing für Maschinenbau
    Ort:
    Norddeutschland
    Ich find eigentlich jeden Entwurf schön, der kein Schuhkarton ist.
    Aber bei diesem Entwurf bin ich verwirrt.
    überall runde Ecken, bei einem Entwurf einen "Vocal Room", also ein isoliertes Gesangsstudio im Keller, bei den anderen nicht.
    Bitte was ist ein "Fairy Room" und warum wird der Hobbyraum und der Fitnessraum begrifflich getrennt?
    Und warum sollte man einen Technikraum als 8-Eck entwerfen? Ist da ein Warpreaktor geplant?

    Das wirkt alles mega wirr.
     
    11ant gefällt das.
  5. #5 nordanney, 17.12.2025
    nordanney

    nordanney

    Dabei seit:
    15.09.2021
    Beiträge:
    6.237
    Zustimmungen:
    3.597
    Beruf:
    Finanzierer/Investor/Bau- und Sanierungslaie
    Ort:
    Niederrhein
    Und kostet dann - egal welcher Entwurf - all in auch nur genau 512k. Vertrag ist unterschrieben. Verrückt, oder?

    Bitte bedenken, Haus steht nicht in D.
     
    11ant gefällt das.
  6. #6 Kriminelle, 17.12.2025
    Kriminelle

    Kriminelle

    Dabei seit:
    16.05.2013
    Beiträge:
    3.700
    Zustimmungen:
    2.042
    Beruf:
    .
    Ort:
    Niedersachsen
    Dann füll doch mal den Fragebogen aus. Keiner weiß, wie die Anforderungen von Dir oder dem Grundstück sind.
    Schon allein das Bad im Bad wirft Fragen auf, wie auch der Erker in der Küche
     
    11ant gefällt das.
  7. #7 Kriminelle, 17.12.2025
    Kriminelle

    Kriminelle

    Dabei seit:
    16.05.2013
    Beiträge:
    3.700
    Zustimmungen:
    2.042
    Beruf:
    .
    Ort:
    Niedersachsen
    Bischen schlecht sind sie alle: die Erker mögen ja Geschmackssache sein, auch ein Türmchen.
    Aber bei der Ausrichtung (planoben Norden) nicht mal ansatzweise vom Standard Straße Eingang/hintenraus Terrassenfenster abzuweichen, macht keinen Sinn.
    Ach ups, Norden wechselt immer mal wieder.
    Zudem gibt es Flure, die möchte ich nicht im Dunkeln betreten, weil man gegen irgendeine Tür immer laufen wird.
    Das jeweils eingezeichnete Sofa ist grenzwertig schmal und eher eine Bank.
    Kizis werden mal eingeplant, dann wieder nicht, sind auch grenzwertig mit ihren Wandverhältnissen.
    Dann trotz einem Keller den HWR ins OG…
    Ich denke mal, da fehlt schlicht ein Konzept @NinaMKH
    So wirklich ernst ist der Hausbau wohl noch nicht.
     
    11ant und driver55 gefällt das.
  8. 11ant

    11ant

    Dabei seit:
    28.02.2017
    Beiträge:
    2.483
    Zustimmungen:
    1.559
    Beruf:
    Bauherrenberater
    Ort:
    RLP Nord
    Benutzertitelzusatz:
    bringt Sie gut beraten ins Eigenheim
    Weil die TE zum Partner auch noch zwei Schwäger hat, die ebenfalls bauen - sämtlich auf geheimen Grundstücken und ohne Herleitung weshalb mit Keller. Der Katze im Sack Bauvertrag über die drei Häuser ist bereits geschlossen. Inhaltlich habe ich im orangen Forum dazu alles gesagt.
     
  9. #9 driver55, 17.12.2025
    driver55

    driver55

    Dabei seit:
    22.02.2008
    Beiträge:
    6.867
    Zustimmungen:
    1.795
    Beruf:
    Dipl.-Ing.
    Ort:
    Pforzheim
    Dann können sich hier ja alle wieder hinlegen und das Thema schließen.:konfusius
     
    Ab in die Ruine, 11ant und Kriminelle gefällt das.
Thema:

3 Grundrisse - Bitte um Meinungen

Die Seite wird geladen...

3 Grundrisse - Bitte um Meinungen - Ähnliche Themen

  1. Grundriss Flachdach über 300qm / bitte um Meinung

    Grundriss Flachdach über 300qm / bitte um Meinung: 1. Wir sind: 2 Erwachsene Mitte 30, 2 Kleinkinder keine Beeinträchtigungen 2. Unser Raumprogramm: wir wünschen uns einen offenen...
  2. Grundriss Ideen für klein haus 120 m² Ihre Meinung bitte.

    Grundriss Ideen für klein haus 120 m² Ihre Meinung bitte.: Hallo liebes Forum, ich und meine Frau versucht unser kleines EFH zu planen. Das Haus will in EFH 1.5 Schrägdach mit 45 Grad Dach und ca. 120 qm...
  3. Grundriss Stadtvilla, bitte um Meinungen

    Grundriss Stadtvilla, bitte um Meinungen: Hallo ihr Lieben Experten, wir sind eine junge Familie, die nun kurz davor ist, ein Haus zu bauen. Es wird auf einem 630qm großen Grundstück...
  4. Grundriss - bitte um Meinungen

    Grundriss - bitte um Meinungen: Hallo zusammen, ich bitte um Meinungen zu unseren Grundrissen. Vorab ein paar Infos: - Wir planen ein EFH mit den Außenmaßen 10x15m. 10 m ist...
  5. Meinungen zu unserem Grundriss - Bitte um Feedback

    Meinungen zu unserem Grundriss - Bitte um Feedback: Hallo, ich möchte gerne euer Feedback bezüglich der zwei Grundrisse einholen. Das Haus soll modern, offen und großzügig wirken. Daten zum...