Als Vergleich: Grundriss aus den späten 50ern

Diskutiere Als Vergleich: Grundriss aus den späten 50ern im Architektur Allgemein Forum im Bereich Architektur; Anbei möchte ich den Grundriss eines Hauses Baujahr 1957 vorstellen. Inzwischen hat zwar ein anderer Interessent den Zuschlag erhalten hat, aber...

  1. #1 LordNibbler, 23.05.2018
    LordNibbler

    LordNibbler

    Dabei seit:
    23.05.2018
    Beiträge:
    50
    Zustimmungen:
    30
    Beruf:
    Industrial Cyber Security
    Ort:
    Niedersachsen
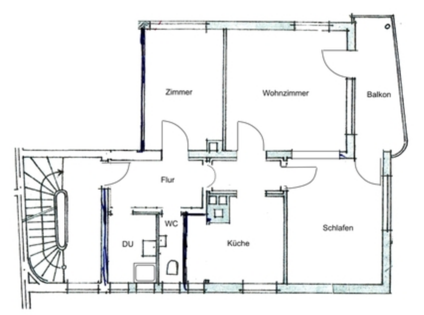
    Anbei möchte ich den Grundriss eines Hauses Baujahr 1957 vorstellen. Inzwischen hat zwar ein anderer Interessent den Zuschlag erhalten hat, aber das Haus wirkte in der Aufteilung durchdacht und für die Zeit auch sehr hochwertig.
    Aus heutiger Sicht sind hat das Haus natürlich auch Defizite:
    - Bäder je nur 6m²
    - Küche nur 9m²
    - Konvektorheizungen hinter Verblendung und nur 12,5cm Wandstärke und dem Fenster
    - große Dachfläche mit geringer Neigung
    - offenes großzügiges Treppenhaus mit versetzten Etagen oft energetisch nachteilig
    - unnötiger Balkon im Schlafzimmer

    Abweichend vom Plan waren die Wand zwischen den beiden Kinderzimmer entfernt und es gab eine Tür zwischen Garage und Windfang im Untergeschoss.

    Das Haus ist mit versetzten Etagen auf einem Grundstück mit leichter Hanglage gebaut. D.h. das Untergeschoss mit Garage ist ebenerdig, das Erdgeschoss mit Wohnzimmer und Küche ebenfalls. In Schnittzeichung fehlt der Keller, da nur der Bereich Küche und teilweise Essplatz unterkellert ist.

    Interessante Frage bei den Finanzierungs- und Versicherungsgesprächen war immer die Geschosszahl. Hier scheint es keine eindeutige Definition zu geben. Laut B-Plan ist 2-geschossig erlaubt, je nach Rechtsprechnung ist so ein Haus aber inzwischen auch als 3-geschossig zu werten. Je nach Gegenüber war von 1-3 alles drin.

    Wie ist eure Meinung zu dem Grundriss und wie ist er im Vergleich zu dem, was heute ein Architekten plant?

     
  2. #2 bauspezi 45, 23.05.2018
    bauspezi 45

    bauspezi 45

    Dabei seit:
    20.02.2017
    Beiträge:
    1.780
    Zustimmungen:
    335
    Beruf:
    Meister der Steinkunst (Maurermeister)
    Ort:
    solingen wald
    Benutzertitelzusatz:
    iR.
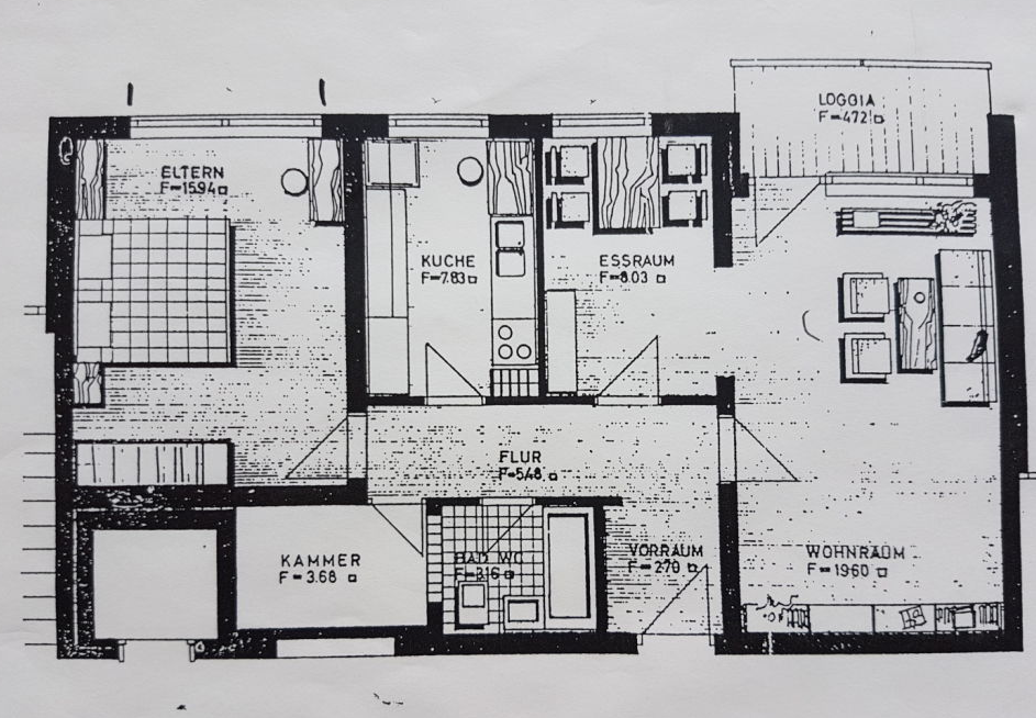
    so war das einmal.... da verdienten die Doktoren noch richtig Geld und konnten sich diese Architektenhäuser leisten.
    Die Grundrisse sind nicht unbedingt als allgemein zu bezeichnen aber
    man legte mehr auf Funktionalität der Küche/Bad/WC/Dusche Wert und
    durch das große Wohnzimmer wurde ein gewisser "Reichtum" den Besuchern übermittelt.
    heute werden Besucher der Neubauwohnungen und Häuser erst mal in die große ,offene Küche geführt und dann werden die Bäder/Dusche/Sauna im modernsten Stiel natürlich stolz präsentiert, danach setzt man sich
    an den großen Esstisch (in der kleinen Sitznische wäre zu wenig Platz) und zeigt stolz auf die große Doppelgarage und die übergroße Terrasse.
    so ändern sich die Zeiten....., so sahen die 2-3 Zimmer Wohnungen in den 60 zigern aus ..
     

    Anhänge:

    simon84 gefällt das.
  3. #3 LordNibbler, 23.05.2018
    LordNibbler

    LordNibbler

    Dabei seit:
    23.05.2018
    Beiträge:
    50
    Zustimmungen:
    30
    Beruf:
    Industrial Cyber Security
    Ort:
    Niedersachsen
    Richtig :) In diesem Fall hat ein Dr.-Ing. für einen Dr. med geplant.

    Der Grundriss der 60er-Jahre-Wohnung erinnert mich an meine aktuelle 56er-Jahre-Wohnung. Ein Treppenhaus für vier Wohnung - größer als so so manche heutige Wohnzimmer.
     
    simon84 gefällt das.
  4. 11ant

    11ant

    Dabei seit:
    28.02.2017
    Beiträge:
    2.558
    Zustimmungen:
    1.613
    Beruf:
    Bauherrenberater
    Ort:
    RLP Nord
    Benutzertitelzusatz:
    bringt Sie gut beraten ins Eigenheim
    Hingegen ansonsten Wandstärke 36,5 - steht es in einer Gegend mit steifer Brise ? - hier im Landesinneren hat man noch zwanzig Jahre später 30 cm für ausreichend befunden.
     
  5. #5 LordNibbler, 24.05.2018
    LordNibbler

    LordNibbler

    Dabei seit:
    23.05.2018
    Beiträge:
    50
    Zustimmungen:
    30
    Beruf:
    Industrial Cyber Security
    Ort:
    Niedersachsen
    Eigentlich nicht: so heftig weht es im östlichen Niedersachsen eigentlich nicht. Die Bauqualität ist aber deutlich höher als andere Bauten aus der Zeit in der Gegend (z.B. Siedlungshäuser mit Kellerhöhe unter 1,9m und dünnen Wänden aus einfacheren Ziegeln).
     
    11ant gefällt das.
Thema:

Als Vergleich: Grundriss aus den späten 50ern

Die Seite wird geladen...

Als Vergleich: Grundriss aus den späten 50ern - Ähnliche Themen

  1. AIKO ABC 670W im Vergleich zu TOPCon: Wirkungsgrad, Temperaturkoeffizient und Teilverschattung techn

    AIKO ABC 670W im Vergleich zu TOPCon: Wirkungsgrad, Temperaturkoeffizient und Teilverschattung techn: Servus in die Runde hier, ich bin aktuell an dem Punkt, eine PV-Anlage für mein Einfamilienhaus mit bescheidener Dachfläche zu planen und möchte...
  2. Falsche Fensterbank eingebaut? Vergleich Muster - Realität

    Falsche Fensterbank eingebaut? Vergleich Muster - Realität: Hallo zusammen, ich hoffe, ihr könnt mir bei dem folgenden Problem weiterhelfen: Die Fensterbänke wurden bereits vor ein paar Wochen eingebaut....
  3. Whirlsysteme von Kaldewei/Villeroy&Boch/Duravit im Vergleich

    Whirlsysteme von Kaldewei/Villeroy&Boch/Duravit im Vergleich: Hallo zusammen Da die Whirlwannen sehr spärlich ausgestellt sind und wenn schon gar nicht verwendet werden können: Kann jemand etwas zu den...
  4. Farbenmarken Vergleich Brillux & Diessner

    Farbenmarken Vergleich Brillux & Diessner: Hallo Zusammen, wir wollen unsere Wohnung streichen und sind etwas unschlüssig bzgl. der Farbmarken. Für Latexfarbe (Küchenbereich / teil der...
  5. Grundriss-Debatte: Vergleich zweier Alternativen

    Grundriss-Debatte: Vergleich zweier Alternativen: Hallo zusammen, nach den vielen hitzigen Debatten zu Grundrissen möchte ich trotzdem zwei Grundrissentwürfe vorstellen. Ich bin mir nicht...