Anbau - Küche oder Wohnzimmer

Diskutiere Anbau - Küche oder Wohnzimmer im Architektur Allgemein Forum im Bereich Architektur; Hallo zusammen, ich bräuchte mal bitte Euren Rat bzgl. der Positionierung der Küche. Aktuell ist die Küche mit Esszimmer und Wohnzimmer in dem...

  1. #1 toepperlein, 09.04.2022
    Zuletzt bearbeitet: 09.04.2022
    toepperlein

    toepperlein

    Dabei seit:
    09.04.2022
    Beiträge:
    2
    Zustimmungen:
    0
    Hallo zusammen,

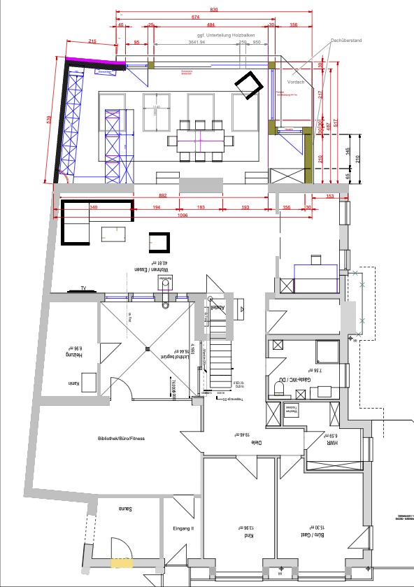
    ich bräuchte mal bitte Euren Rat bzgl. der Positionierung der Küche. Aktuell ist die Küche mit Esszimmer und Wohnzimmer in dem länglichen Raum angeordnet.

    IMG_4041.jpeg IMG_4038.jpeg Grundrissplan - komplett vorhanden.jpg

    Aufgrund von Wassereintritt bei einem nebenliegenden Gebäude, wird die Terrasse abgerissen und ein Keller mit Anbau errichtet. Dieser Anbau ist 3 Stufen niedriger und besteht aus einer Flachdachkonstruktion mit recht vielen Fenstern sowie Oberlichtern - quasi ein Art Wintergarten. Davor befindet sich eine kleine Terrasse mit Garten.

    Da dort auch die Autos geparkt werden, sollte am Anbau auch ein Eingang entstehen (wobei das Haus gegenüberliegend noch einen weiteren Eingang hat) und der alte Eingang sollte zugemacht werden. Die Einkäufe etc. werden aber durch den Anbau reingetragen und Gäste auch kommen primär über diesen rein.
    Grundrissplan - komplett neu.jpg

    Die Terrasse hat eine volle Süd Ausrichtung und ist somit im Sommer eigentlich nicht wirklich zu nutzen. Das Haus verfügt jedoch noch über einen Lichthof der über das Wohnzimmer aus begehbar ist (neben dem Kamin). Hier wird dann hauptsächlich der Tisch zum Essen im Sommer stehen.

    Mein Gedanke war, dass Küche mit Esszimmer in den Anbau verlegt werden. Dies ist im aktuellen Stand des Grundrissplanes eingezeichnet. Zusätzlich befinden sich auch Ansichten von der neuen Küche anbei.

    Nun bin ich mir aber unsicher, ob dies wirklich so ideal ist... Alternativ wäre die Option, das Wohnzimmer in den Anbau zu setzen und das Esszimmer mit Küche dort zu belassen. In dem Bereich, wo aktuell das Wohnzimmer ist, würde ich dann ein Büro/Lesezimmer integrieren.

    Was würdet ihr denn in die Anbau machen?

    Vielen Dank!
     

    Anhänge:

  2. #2 Kriminelle, 09.04.2022
    Kriminelle

    Kriminelle

    Dabei seit:
    16.05.2013
    Beiträge:
    3.747
    Zustimmungen:
    2.072
    Beruf:
    .
    Ort:
    Niedersachsen
    Mir reichen die Angaben nicht. Problematisch zudem, dass ich hier ständig Downloaden muss, um das PDF zu sehen.
    Angaben bezüglich Lebensgewohnheiten: wie ist denn der Ablauf? Warum kann man keine Südterrasse am Abend nutzen? Für mich gehört die Küche an die Terrasse, bei Euch also ins alte WZ. Wenn dann der Eingang verlegt wird und man ins Ess/WZ reinkommt, hat es etwas amerikanisches… muss man sich dran gewöhnen ;)
     
  3. #3 toepperlein, 09.04.2022
    toepperlein

    toepperlein

    Dabei seit:
    09.04.2022
    Beiträge:
    2
    Zustimmungen:
    0
    Vielen Dank schon einmal für die Antwort. Ich habe die PDF in JPEG Dateien umgewandelt.

    Zu den Gewohnheiten: Im Grunde wird tagsüber, vor allem eben am Wochenende, da wir berufstätig sind, hauptsächlich die Küche zum Verweilen genutzt. Wenn ich zu Hause noch etwas arbeiten muss, dann passiert dies auch von der Küche aus...
    Ansonsten wird noch das Wohnzimmer zum Fernsehen und Lesen genutzt. Also es spielt sich im Grunde alles um das Wohnzimmer und Küche ab, wobei man meistens erst später am Abend im Wohnzimmer sitzt. natürlich kann man die Terrasse am Abend noch nutzen, wobei bis etwa 18:00/19:00 Uhr (im Hochsommer) die Sonne drauf steht.
     
  4. #4 Kriminelle, 10.04.2022
    Kriminelle

    Kriminelle

    Dabei seit:
    16.05.2013
    Beiträge:
    3.747
    Zustimmungen:
    2.072
    Beruf:
    .
    Ort:
    Niedersachsen
    Da der Anbau ja ein Wintergarten ist, sollte man auch die Aussicht bzw Einsicht bedenken? Stellplatz ist da wo? Eingang Postweg.., zeig doch mal die Südterrasse und Garten, der dort liegt.
    Ich würde das dann eher dem Bauchgefühl übergeben, wo sich das Sofa später befinden sollte, dass man sich wohl fühlt.
     
Thema:

Anbau - Küche oder Wohnzimmer

Die Seite wird geladen...

Anbau - Küche oder Wohnzimmer - Ähnliche Themen

  1. Anbau Flachdach Dämmung

    Anbau Flachdach Dämmung: Hallo zusammen, meine Freundin und ich haben letztes Jahr ein Haus aus den 1960er‑Jahren gekauft, das wir aktuell gemeinsam sanieren. Im Jahr...
  2. Innendämmung Badezimmer im Anbau

    Innendämmung Badezimmer im Anbau: Hallo zusammen, ich renoviere unser Badezimmer und bräuchte euren hilfreichen Rat. Das Bad ist in einem Flachdach-Anbau aus den 1960er-Jahren....
  3. Handlauf anbauen - Hohlraum getroffen

    Handlauf anbauen - Hohlraum getroffen: Hallo liebe Gemeinde, Ich habe folgendes Problem bei der Montage eines Handlaufs an der Innentreppe: bei den letzten beiden (von 12) Löchern habe...
  4. Küche statt Garage - Anbau geplant

    Küche statt Garage - Anbau geplant: Hallo wir haben eine kleine Doppelhaushälfte auf einem Eckgrundstück. (Straße vor und rechts neben dem Haus) Auf der zur Ecke gewandten Seite...
  5. Anbau Küche einer DHH

    Anbau Küche einer DHH: Hallo, ich bin neu hier und habe gleich ein Paar Fragen. Wir haben vor uns eine DHH zu kaufen. Da die Küche sehr klein ist (s.Anhang) möchten wir...