Anbau oder Neubau

Diskutiere Anbau oder Neubau im Architektur Allgemein Forum im Bereich Architektur; Hallo liebe Bauexperten bin neu hier und habe euch zufälligerweise endeckt und bin sehr froh darüber. Seit einem Jahr haben wir den Gedanken an...

  1. #1 Meister2013, 19.04.2020
    Zuletzt bearbeitet: 20.04.2020
    Meister2013

    Meister2013

    Dabei seit:
    19.04.2020
    Beiträge:
    5
    Zustimmungen:
    1
    Hallo liebe Bauexperten

    bin neu hier und habe euch zufälligerweise endeckt und bin sehr froh darüber. Seit einem Jahr haben wir den Gedanken an unserem Garten ca 600qm zu bauen oder eventuell an dem Altbestand einen Anbau zu errichten.

    Der Traum wäre natürlich einen Neubau und den Altbestand zu vermieten jedoch können wir die kosten nicht überschauen und bräuchten eure Hilfe.

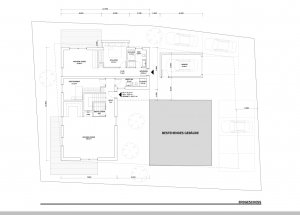
    Ich füge mal Grundrisse vom Architekten das mir aber die Aufteilung nicht gefallen hat (Änderungen werden noch geben) die Einliegerwohnung wird es nicht geben es wir ein reines EFH ca 170qm mit Flachdach jedoch haben wir Angst, dass das zu Firmenhaft aussieht. So wie der Architekt gezeichnet hat bräuchten wir keinerlei Zustimmung von Nachbarn. Einen Bebauungsplan gibt es auch nicht.

    Im EG sollte Wohn- Essbereich Küche Abstellraum WC mit Dusche und einen Gästezimmer geben.
    Im OG Elternschlafzimmer mit Ankleide 2-3 Kinderzimmer Bad WC.

    Und der Garten sollte Ca 60qm sein müsste reichen oder was denkt ihr?

    Was würde der ganze Vorhaben mich Kosten? Wir schätzen mit 300000-350000 wäre es ok?

    Oder die andere Variante wäre an dem jetzigen 3 Familienhaus in dem wir im EG wohnen 2Zimmer Wohnung einen Anbau machen?

    Was würdet Ihr an unsere Stelle machen? Eher einen Anbau oder Neubau und unsere jetzige bleibe vermieten? Wir wollen auch nicht lebenlang Baufinanzierung abbezahlen irgendwo soll es auch realisierbar sein. Vielen Dank
     

    Anhänge:

  2. 11ant

    11ant

    Dabei seit:
    28.02.2017
    Beiträge:
    2.501
    Zustimmungen:
    1.579
    Beruf:
    Bauherrenberater
    Ort:
    RLP Nord
    Benutzertitelzusatz:
    bringt Sie gut beraten ins Eigenheim
    Ja, das tu´ mal - am besten als Bildformat.
     
Thema:

Anbau oder Neubau

Die Seite wird geladen...

Anbau oder Neubau - Ähnliche Themen

  1. Anbau oder Neubau

    Anbau oder Neubau: Moin zusammen, wir wollen und räumlich vergrößern. Bisher haben wir einen Anbau geplant - dazu gibt es hierzu auch schon ein Thema...
  2. Anbau oder Neubau

    Anbau oder Neubau: Hallo liebe Bauexperten bin neu hier und habe euch zufälligerweise endeckt und bin sehr froh darüber. Seit einem Jahr haben wir den Gedanken an...
  3. Neubau Bauhaus - später Anbau!?

    Neubau Bauhaus - später Anbau!?: Hallo Gemeinde, wahrscheinlich haben wir mal wieder eine nicht ganz "normale" Anfrage. Wir wollen nun ein Haus bauen und überlegen gerade, wie...
  4. Abriss Anbau, Neubau Garage im Bestand

    Abriss Anbau, Neubau Garage im Bestand: Guten Tag zusammen. Erstmal zu meinem Vorhaben: (Standort rlp) Ich wohne in einem 2 FmH. Das Haus Besteht aus einem Teil von 1900, einem 2....
  5. Neubau. Garage direkt am Haus anbauen oder 2 Wände ?

    Neubau. Garage direkt am Haus anbauen oder 2 Wände ?: Hallo. Wir möchten ein EFH Haus bauen und unser Generalunternehmer hat uns aus (Kostengründen) vorgeschlagen, dass die gemauerte Garage direkt mit...