Anbau - welcher Stil könnte verwendet werden? Bitte um Ideen

Diskutiere Anbau - welcher Stil könnte verwendet werden? Bitte um Ideen im Architektur Allgemein Forum im Bereich Architektur; Hallo zusammen, unser Haus, Baujahr ca 1950, hat bereits einen Anbau, 1992. Nun würden wir gerne einen weiteren Anbau machen, um Platz im Inneren...

  1. #1 Chrissi84, 21.08.2018
    Chrissi84

    Chrissi84

    Dabei seit:
    11.01.2018
    Beiträge:
    21
    Zustimmungen:
    3
    Hallo zusammen,

    unser Haus, Baujahr ca 1950, hat bereits einen Anbau, 1992. Nun würden wir gerne einen weiteren Anbau machen, um Platz im Inneren für eine Wendeltreppe zu schaffen. Dazu möchten wir die Küche nach außen, zur Seite hin, in einen Anbau verlegen, und dort, wo derzeit die Küche ist, wird das Eßzimmer hinverlegt werden. Dieser Anbau an sich wäre vermutlich nicht so kompliziert, aber ich würde gerne noch vor die jetzige Küche, einen überdachten Außenbereich anbauen. Diesen Außenbereich würde ich gerne so gestalten, daß im Sommer alle Fenster zur Seite hin weggeschoben werden können und viel Frischluft reinkommen kann. Da dieser Anbau vor dem künftigen Eßzimmerfenster sein wird, sollte das Dach viel Licht durchlassen. Der Anbau soll möglicherweise unterkellert werden. Das ist noch nicht sicher.

    Zwei Probleme sehe ich hauptsächlich: Beim Anbau für den überdachten Außenbereich stoßt der Anbau von 1992, das alte Haus und eben der neue Anbau aufeinander. Wie könnte man so etwas stilistisch schön lösen?

    Der Küchenanbau und der Außenbereichanbau werden auch aufeinander stoßen. Mit welchem Mittel könnte man es hinbekommen, daß es danach nicht wie eine total zusammengestückelte "Zeltlandschaft" aussieht?

    Es wäre schön, wenn hier jemand eine oder mehrere Ideen hätte, wie so etwas stilistisch gelöst werden könnte.
    Zum besseren Verständnis hier noch ein paar Bilder. Sollte etwas fehlen, bitte melden.

    Ich danke euch vielmals im Voraus.

    VG
    Chrissi
     

    Anhänge:

  2. #2 simon84, 21.08.2018
    simon84

    simon84
    Moderator

    Dabei seit:
    11.11.2012
    Beiträge:
    23.247
    Zustimmungen:
    6.890
    Beruf:
    Schrauber
    Ort:
    Muenchen
    Hört sich nach Wintergarten in Holz bzw Holzoptik und etwas Bepflanzung an. Denke das kann gut passen. Weiß passt glaub ich nicht zu dem Haus
     
  3. #3 Fabian Weber, 21.08.2018
    Fabian Weber

    Fabian Weber

    Dabei seit:
    03.04.2018
    Beiträge:
    16.299
    Zustimmungen:
    6.463
    ein kleines weiteres Häuschen aus Holz mit Giebel, fänd ich gut.
     

    Anhänge:

  4. #4 Chrissi84, 21.08.2018
    Chrissi84

    Chrissi84

    Dabei seit:
    11.01.2018
    Beiträge:
    21
    Zustimmungen:
    3
    Hallo Ihr zwei,

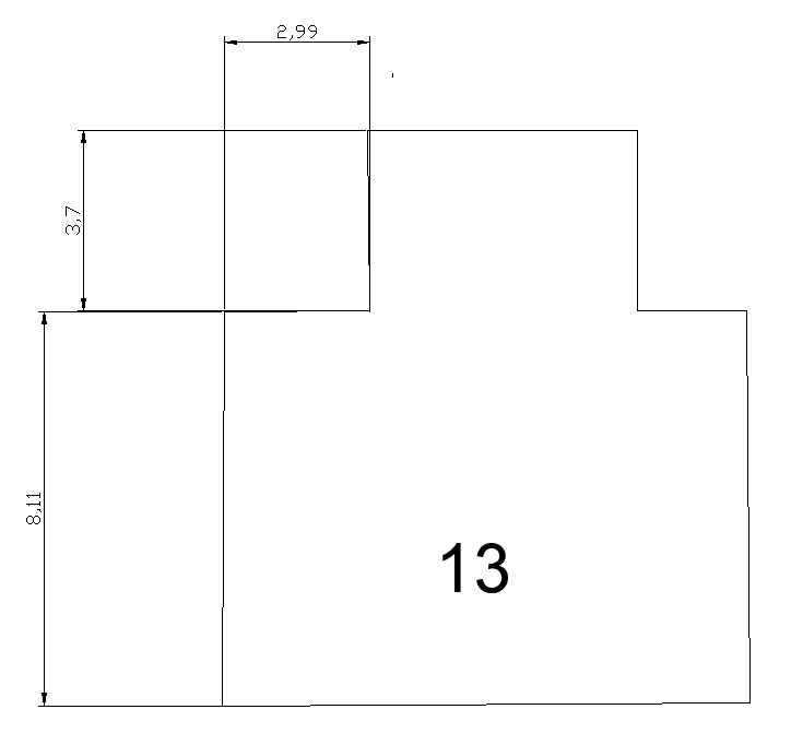
    vielen Dank schon mal für eure Meinung. Bei deinem Beitrag, Fabian Weber, merke ich, daß ich mich vielleicht nicht ganz korrekt ausgedrückt habe. In der Grafik "Haus Grundriss - planAnbau" habe ich die Grundrisse der geplanten Anbauten eingezeichnet. Da sieht man, daß der Anbau größer ist, als den, den du dargestellt hast. Hättest du dafür auch noch eine Idee?

    Vielen Dank im Voraus und viele Grüße
    Chrissi
     
  5. 11ant

    11ant

    Dabei seit:
    28.02.2017
    Beiträge:
    2.466
    Zustimmungen:
    1.540
    Beruf:
    Bauherrenberater
    Ort:
    RLP Nord
    Benutzertitelzusatz:
    bringt Sie gut beraten ins Eigenheim
    Und mir scheint: auch woanders steht ?

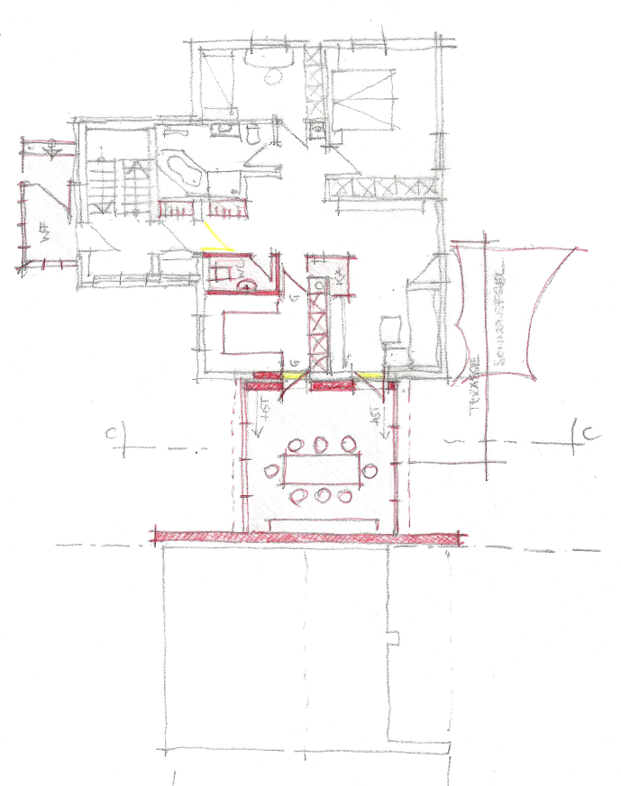
    Ich interpretiere die Zeichnungen so, daß die Küche (alt) verschoben werden soll (Küche rot), über dem Treppenabgang in den Keller stehend und auf das Gartenhäuschen zustrebend.
     
  6. #6 DomRick, 21.08.2018
    DomRick

    DomRick

    Dabei seit:
    10.06.2018
    Beiträge:
    7
    Zustimmungen:
    0
    Beruf:
    Handwerker
    Ich finde auch das weiß nicht so gut dazu passt.
     
  7. #7 jodler2014, 21.08.2018
    jodler2014

    jodler2014

    Dabei seit:
    20.12.2014
    Beiträge:
    3.907
    Zustimmungen:
    542
    Beruf:
    Angestellter
    Ort:
    RP
    … ist der Anbau genehmigungsfähig ?
     
  8. #8 Chrissi84, 22.08.2018
    Chrissi84

    Chrissi84

    Dabei seit:
    11.01.2018
    Beiträge:
    21
    Zustimmungen:
    3
    genau. richtig gut fände ich es, wenn ich von der Küche direkt in das "Gartenhäuschen" gehen könnte. Eben durch diese direkte Verbindung bzw. dieses direkte Aufeinandertreffen der beiden Anbauten einerseits und dem älteren Anbau von 1993 auf der anderen Seite ergibt sich mir die Frage, wie das mit den Dächern einigermaßen gut gelöst werden könnte.
    Ich versuche den Zwist nachher nochmal auf einem Bild darzustellen.
     
  9. #9 Chrissi84, 22.08.2018
    Chrissi84

    Chrissi84

    Dabei seit:
    11.01.2018
    Beiträge:
    21
    Zustimmungen:
    3
    Bitte korrigiere mich, wenn ich bei meinen Annahmen etwas vergesse:
    - ich bleibe mehr als nötig von den Außengrenzen des Grundstücks weg (2,5 m)
    - es gibt für dieses Gebiet keinen Bebauungsplan, Baufenster etc.
     
  10. #10 Chrissi84, 22.08.2018
    Chrissi84

    Chrissi84

    Dabei seit:
    11.01.2018
    Beiträge:
    21
    Zustimmungen:
    3
    Anbei nun ein Foto mit dem von mir angedachten Anbau dreidimensional dargestellt. Die Perspektiven hab ich sicher nicht so gut erwischt, aber man kann es sich hoffentlich ein wenig vorstellen.

    Bild zwei zeigt eben eines meiner Probleme: Wie richte ich das Dach am besten aus damit es a) stilistisch am besten aussieht, sich in das Gesamtbild einfügt und b) nicht zu viel Gefriemel gibt, so daß ich nachher Laubblätter im hintersten Eck raussuchen muß und mich übers Dach abseilen muß .... :)

    Nochmals vielen Dank fürs Mitdenken!
     

    Anhänge:

  11. #11 simon84, 22.08.2018
    simon84

    simon84
    Moderator

    Dabei seit:
    11.11.2012
    Beiträge:
    23.247
    Zustimmungen:
    6.890
    Beruf:
    Schrauber
    Ort:
    Muenchen
    Sorry, aber mit einem so hoch angesetzten Pultdach wird das verheerend "angebastelt" aussehen.

    Ist die Skizze exakt ?

    Ich würde versuchen, falls es sich noch ausgeht, das Dach direkt an den Bestand anzusetzen.
    Sieht zwar auch nicht ideal aus, wenn das Dach auf einmal mit einer geringeren Neigung weitergeht, aber immerhin noch besser als das.

    Und woher kommen exakt 2,5 Meter Grenzabstand ? Welches Bundesland ?

    Bei dem Anbau über dem aktuellen Kellereingang sieht ein kleiner Giebel besser aus als ein Pultdach nach vorne.
     
  12. #12 Chrissi84, 22.08.2018
    Chrissi84

    Chrissi84

    Dabei seit:
    11.01.2018
    Beiträge:
    21
    Zustimmungen:
    3
    Hallo Simon, danke für deine Meinung. Die Skizze ist leider nicht exakt, nur in Paint relativ einfach gemacht. Besser kann ich es gerade nicht machen.

    Meinst du das so, wie unten zu sehen?

    Hab grad nachgeschaut, in BW reichen theoretisch auch 2 Meter, bei dieser Höhe (▷ Regelungen für den Abstand zum Nachbargrundstück). Diesen Abstand habe ich auf jeden Fall. Kurzfristig habe ich sogar darüber nachgedacht den Anbau nach Westen bis an die Garage des Nachbarn zu stoßen. Dazu bräuchte ich sicher seine Genehmigung, welche ich sehr wahrscheinlich auch bekommen hätte. Dieser Gedanke ist derzeit aber verworfen.
     

    Anhänge:

    • V2.jpg
      V2.jpg
      Dateigröße:
      152,9 KB
      Aufrufe:
      496
  13. #13 Chrissi84, 22.08.2018
    Chrissi84

    Chrissi84

    Dabei seit:
    11.01.2018
    Beiträge:
    21
    Zustimmungen:
    3
    Ich habe auch schon darüber nachgedacht, das Dach nach Westen weiterzuziehen, ähnlich wie hier: Landhaus durch Translozierung versetzt - DAS HAUS

    Allerdings würde uns das vermutlich in dem Eßzimmer viel Sonne wegnehmen. Und für den Anbau in der Nordseite wäre das auch noch keine Lösung.
     
  14. Xeno

    Xeno

    Dabei seit:
    31.08.2016
    Beiträge:
    65
    Zustimmungen:
    14
    Beruf:
    Dipl.-Ing.
    Flachdach mit Dachterrasse?
     
  15. 11ant

    11ant

    Dabei seit:
    28.02.2017
    Beiträge:
    2.466
    Zustimmungen:
    1.540
    Beruf:
    Bauherrenberater
    Ort:
    RLP Nord
    Benutzertitelzusatz:
    bringt Sie gut beraten ins Eigenheim
    Zwei Dinge sind aus meiner Sicht klar: daß die Küche (rot) im Stil des Altbaues gebaut wird; und daß das Dach des Altbaues im Schwung des Schößchens über den Aufschieblingen fortgeführt wird, also kurz über den Fensterstürzen des Anbaues auslaufend (aus Sicht des orangen Anbaues praktisch ein Pultdach von ca. 10 bis 15 Grad).

    Was aus meiner Sicht nicht "klar" (im Sinne des vorgenannten, durch das Gebäude "Vorgegebenen") ist, wäre die Dachseite über der Küche (rot). Da schwebt mir am ehesten vor, quasi auf der Höhe der Traufe des Anbaues bzw. der oberen Linie der Aufschieblinge des Altbaues die "Firstpfette" des Neu-Anbaues zu setzen, und ab da symmetrisch vorzugehen. Der Neu-Anbau hätte somit einen "Giebel" über den Anbauten orange/rot, parallel vor dem Giebel des Altbaues.
     
    simon84 gefällt das.
  16. #16 Fabian Weber, 22.08.2018
    Fabian Weber

    Fabian Weber

    Dabei seit:
    03.04.2018
    Beiträge:
    16.299
    Zustimmungen:
    6.463
    Abstandsfläche unter 3m würde mich wundern.
     
    simon84 gefällt das.
  17. #17 jodler2014, 22.08.2018
    jodler2014

    jodler2014

    Dabei seit:
    20.12.2014
    Beiträge:
    3.907
    Zustimmungen:
    542
    Beruf:
    Angestellter
    Ort:
    RP
    ..#12 !
    Ist ja auch nur ein Malprogramm.
    Von daher nur ungefähr …
    Noch dazu ohne Bebauungsplan …
    Dann gilt wohl die LBO
     
  18. #18 Chrissi84, 10.11.2018
    Chrissi84

    Chrissi84

    Dabei seit:
    11.01.2018
    Beiträge:
    21
    Zustimmungen:
    3
    Zur Info:
    wir haben uns einen Architekten zur Planung herangezogen.
    Nach einer Unterhaltung mit dem Bauamt und dem Nachbar haben wir entschlossen die "Lücke" zwischen dem Nachbarn seiner Garage und unserem Haus zu schließen und dort einen Anbau für ein großes Esszimmer zu bauen. Dieses Esszimmer soll sowohl auf Nord als auch auf Südseite große Türen und Glasfronten bekommen, so daß es wie ein Wintergarten wird. Damit haben wir zwei Wünsche mit einem Umbau erledigt.

    Anbau.png
     
    11ant und simon84 gefällt das.
  19. 11ant

    11ant

    Dabei seit:
    28.02.2017
    Beiträge:
    2.466
    Zustimmungen:
    1.540
    Beruf:
    Bauherrenberater
    Ort:
    RLP Nord
    Benutzertitelzusatz:
    bringt Sie gut beraten ins Eigenheim
    Da muß ich gleich zwei selige Showmaster zitieren:
    Onkel Lou sagt "wunnebaaar" und Hänschen sagt "Spitze !" :-)
     
Thema: Anbau - welcher Stil könnte verwendet werden? Bitte um Ideen
Besucher kamen mit folgenden Suchen
  1. giebel-anbau

    ,
  2. ddr haus anbau

    ,
  3. anbau haus giebelseite

    ,
  4. anbau haus außenbereich www.bauexpertenforum.de,
  5. anbau haus außenbereich,
  6. anbau an giebelseite,
  7. hausanbau giebelseite,
  8. anbau an altes haus,
  9. pultdach anbau,
  10. giebel anbauten,
  11. wohnhauserweiterung außenbereich ab giebel,
  12. anbau haus am giebel
Die Seite wird geladen...

Anbau - welcher Stil könnte verwendet werden? Bitte um Ideen - Ähnliche Themen

  1. Innendämmung Badezimmer im Anbau

    Innendämmung Badezimmer im Anbau: Hallo zusammen, ich renoviere unser Badezimmer und bräuchte euren hilfreichen Rat. Das Bad ist in einem Flachdach-Anbau aus den 1960er-Jahren....
  2. Handlauf anbauen - Hohlraum getroffen

    Handlauf anbauen - Hohlraum getroffen: Hallo liebe Gemeinde, Ich habe folgendes Problem bei der Montage eines Handlaufs an der Innentreppe: bei den letzten beiden (von 12) Löchern habe...
  3. Innenwand Dämmung zu leerstehendem Anbau Haus

    Innenwand Dämmung zu leerstehendem Anbau Haus: Wir haben vor einem Jahr ein Haus gekauft welches an einem leerstehenden Nachbarhaus angebaut ist. Nun wollten wir das Haus zum einen von Außen...
  4. Estrichwahl bei Holzständer-Anbau

    Estrichwahl bei Holzständer-Anbau: Ich plane einen Anbau in Holzständerbauweise an ein Bestandsgebäude. Die Situation ist etwas komplex, daher würde ich gerne eine fachliche...
  5. Schalungssteine für einen Anbau, Betonwerk oder Selbstmischung

    Schalungssteine für einen Anbau, Betonwerk oder Selbstmischung: Hallo zusammen, für unseren dreigeschößigen und doch kleinen Anbau mussten wir im EG statt Poroton nun Betonschalungssteine mit Bewehrung nehmen....