Anbau

Diskutiere Anbau im Architektur Allgemein Forum im Bereich Architektur; Hallo, wir haben uns entschieden an unser Haus anzubauen. Auf der Ostseite soll durch das Büro ( wird dann Durchgangszimmer) ein "Trakt" für...

  1. #1 Baby2011, 09.01.2017
    Baby2011

    Baby2011

    Dabei seit:
    28.10.2016
    Beiträge:
    3
    Zustimmungen:
    0
    Beruf:
    BKF
    Ort:
    Schrobenhausen
    Hallo,

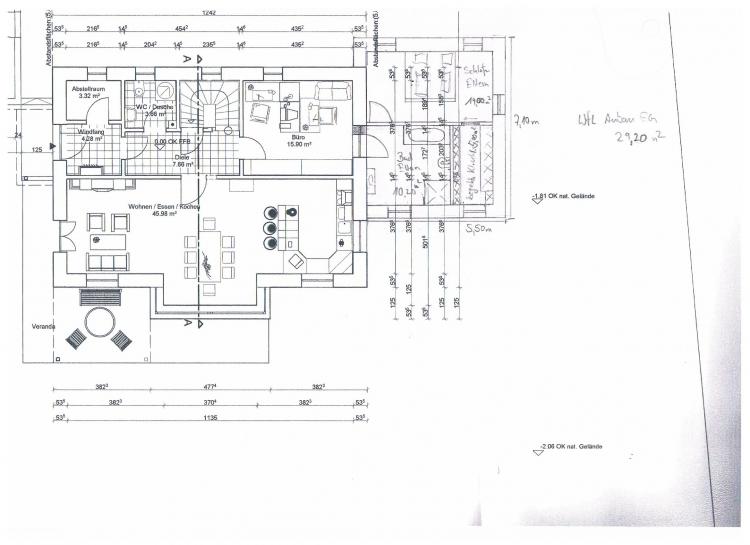
    wir haben uns entschieden an unser Haus anzubauen.
    Auf der Ostseite soll durch das Büro ( wird dann Durchgangszimmer) ein "Trakt" für die Eltern entstehen. SZ,Bad, evtl. begehbarer Schrank.
    Ca. 30qm soll das Ganze haben.
    Wie findet ihr den Entwurf und denkt ihr man kommt da mit 100 000 € hin?

    Glg
     

    Anhänge:

  2. #2 dieentebertram, 18.01.2017
    dieentebertram

    dieentebertram

    Dabei seit:
    11.06.2015
    Beiträge:
    26
    Zustimmungen:
    0
    Beruf:
    Elektroniker
    Ort:
    Braunschweig
    hallo, zum budget kann ich dir nichts sagen, aber ich finde das bad als durchgangszimmer überhaupt nicht gut. ich würde die ankleide als durchgangszimmer planen mit zugang zum schlafzimmer und bad. also nur ankleide und bad tauschen. so kann auch mal jemand ungestört ins bad gehen ohne das der partner der gerade ins bett gehen oder sich umziehen möchte warten muss bis das geschäft beendet ist ;) zudem stört man den partner nicht 2 mal wenn man morgens aufsteht, ins bad wackelt, von dort aus durchs schlafzimmer zur ankleide und den ganzen weg wieder zurück wackelt und dabei immer licht an und licht aus spielt damit man nicht iwo gegen läuft :)
     
Thema:

Anbau

Die Seite wird geladen...

Anbau - Ähnliche Themen

  1. Anbau Flachdach Dämmung

    Anbau Flachdach Dämmung: Hallo zusammen, meine Freundin und ich haben letztes Jahr ein Haus aus den 1960er‑Jahren gekauft, das wir aktuell gemeinsam sanieren. Im Jahr...
  2. Innendämmung Badezimmer im Anbau

    Innendämmung Badezimmer im Anbau: Hallo zusammen, ich renoviere unser Badezimmer und bräuchte euren hilfreichen Rat. Das Bad ist in einem Flachdach-Anbau aus den 1960er-Jahren....
  3. Handlauf anbauen - Hohlraum getroffen

    Handlauf anbauen - Hohlraum getroffen: Hallo liebe Gemeinde, Ich habe folgendes Problem bei der Montage eines Handlaufs an der Innentreppe: bei den letzten beiden (von 12) Löchern habe...
  4. Innenwand Dämmung zu leerstehendem Anbau Haus

    Innenwand Dämmung zu leerstehendem Anbau Haus: Wir haben vor einem Jahr ein Haus gekauft welches an einem leerstehenden Nachbarhaus angebaut ist. Nun wollten wir das Haus zum einen von Außen...
  5. Estrichwahl bei Holzständer-Anbau

    Estrichwahl bei Holzständer-Anbau: Ich plane einen Anbau in Holzständerbauweise an ein Bestandsgebäude. Die Situation ist etwas komplex, daher würde ich gerne eine fachliche...