Architekten Honorar bereits nach Vorentwürfe

Diskutiere Architekten Honorar bereits nach Vorentwürfe im Architektur Allgemein Forum im Bereich Architektur; als auch der Architektin selbst habe ich nach unserem ersten Bauherren Gespräch die Angaben und den Link zur Förderung mit den Rahmenbedingungen...

  1. 11ant

    11ant

    Dabei seit:
    28.02.2017
    Beiträge:
    2.383
    Zustimmungen:
    1.450
    Beruf:
    Bauherrenberater
    Ort:
    RLP Nord
    Benutzertitelzusatz:
    bringt Sie gut beraten ins Eigenheim
    Dräimohl null is null bliev null, es bleiben vertragsrechtlich irrelevante Aussagen, zudem hast Du ja mittlerweile erwähnt, wie symbolisch das geforderte Pauschalhonorar ist. Sieh´ es als Lehrgeld für Dein konfuses Vorgehen, auch wenn andere Leute von der Kohle zwei Jahresurlaube gemacht hätten.
     
  2. #42 mikro0p, 11.07.2020
    mikro0p

    mikro0p

    Dabei seit:
    11.09.2010
    Beiträge:
    330
    Zustimmungen:
    34
    Ort:
    Germersheim
    Das Angebot der Archi. ist in LP3 um 50% reduziert. Durch ihre Zusammenarbeitbeit mit dem GU und späterer Auftragserteilung liegt die Werksplanung etc. beim GU. Ich würde sie, wenn alles glatt geht noch mit der Baueingabe beauftragen. Das Ergebnis bis jetzt ist spitze nur halt nicht das was gefordert war (soviel zu was man erwarten kann) ich hoffe doch noch einiges :)
     
  3. #43 mikro0p, 11.07.2020
    mikro0p

    mikro0p

    Dabei seit:
    11.09.2010
    Beiträge:
    330
    Zustimmungen:
    34
    Ort:
    Germersheim
    Antwort Archi heute:
    nochmal, die Wogen sind etwas geglättet scheint mir:
    das Haus wird angepasst auf die 145 qm Wohnfläche - ohne Einliegerwohnung - sonst sind die Kosten nicht darstellbar.
    Ich werde mich an die Arbeit machen, sobald das ausstehende Honorar eingeht.
    Ganz einfach, aber dafür gar nicht kompliziert ; )
     
  4. #44 mikro0p, 11.07.2020
    Zuletzt bearbeitet: 11.07.2020
    mikro0p

    mikro0p

    Dabei seit:
    11.09.2010
    Beiträge:
    330
    Zustimmungen:
    34
    Ort:
    Germersheim
    Mein Vorgehen war vlcht. Laienhaft... Aber ich bin sicher mit Eurer Hilfe bekommen wir die Kuh vom Eis...
    Ich finde ihren Stil und die Handschrift gut, nur hat sie maximal aus dem Grundstück rausgeholt :/ warum weiss ich nicht
     

    Anhänge:

  5. #45 mikro0p, 11.07.2020
    mikro0p

    mikro0p

    Dabei seit:
    11.09.2010
    Beiträge:
    330
    Zustimmungen:
    34
    Ort:
    Germersheim
    ... Ich hoffe doch inständig das ich damit einen genehmigungsfähigen Entwurf inkl. der Vorgaben bekomme... Dafür machen wir kein Urlaub dieses Jahr
     
  6. #46 jodler2014, 11.07.2020
    jodler2014

    jodler2014

    Dabei seit:
    20.12.2014
    Beiträge:
    3.906
    Zustimmungen:
    540
    Beruf:
    Angestellter
    Ort:
    RP
    Als ich gebaut habe ( vor Corona ) habe ich nach dem Einzug 3 Jahre keinen Urlaub mehr gemacht .
    Da waren nur mal Kurzurlaube drin für ein paar Tage ..
    Aber das nur so am Rande .

    Endlich mal eine kleine Garage !;)
    Und ein Holzdeck .
    Nennt man auch Terrasse ..
     
    simon84 gefällt das.
  7. #47 simon84, 11.07.2020
    simon84

    simon84
    Moderator

    Dabei seit:
    11.11.2012
    Beiträge:
    23.020
    Zustimmungen:
    6.775
    Beruf:
    Schrauber
    Ort:
    Muenchen
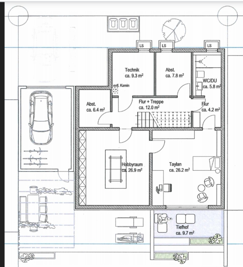
    Mit der in der Garage eingetragenen Auto und Fahrrad Massen wäre ich vorsichtig. Genau checken . 6 Meter sind nicht wirklich viel
     
    jodler2014 gefällt das.
  8. #48 jodler2014, 11.07.2020
    jodler2014

    jodler2014

    Dabei seit:
    20.12.2014
    Beiträge:
    3.906
    Zustimmungen:
    540
    Beruf:
    Angestellter
    Ort:
    RP
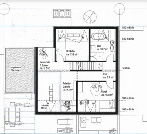
    DG etwas größer .

    Ohne Screenshot vom Expose
     
  9. #49 jodler2014, 11.07.2020
    Zuletzt bearbeitet: 11.07.2020
    jodler2014

    jodler2014

    Dabei seit:
    20.12.2014
    Beiträge:
    3.906
    Zustimmungen:
    540
    Beruf:
    Angestellter
    Ort:
    RP
    Mit einem Kleinwagen geht das schon.
    Mit einem Kompaktklasse - KFZ wird das schon schwierig .
    Aber zurück zum Plan .
    Sieht aus wie eine DHH !
    Warum ?
    Auf den bunten Bildern gibt es nicht ein Fenster auf den rechtseitigen Außenwänden !
     
  10. #50 mikro0p, 11.07.2020
    mikro0p

    mikro0p

    Dabei seit:
    11.09.2010
    Beiträge:
    330
    Zustimmungen:
    34
    Ort:
    Germersheim
    Da die Hauskubatur zwingend verkleinert werden muss, denke ich das der gewonnene Platz der Garage bzw. einem Carport zu Gute kommt, sowohl Breite als auch in Länge.
     
  11. #51 mikro0p, 11.07.2020
    mikro0p

    mikro0p

    Dabei seit:
    11.09.2010
    Beiträge:
    330
    Zustimmungen:
    34
    Ort:
    Germersheim
    Es ist eine DHH! Wir bauen an eine bestehende Hälfte.
     
  12. #52 jodler2014, 11.07.2020
    jodler2014

    jodler2014

    Dabei seit:
    20.12.2014
    Beiträge:
    3.906
    Zustimmungen:
    540
    Beruf:
    Angestellter
    Ort:
    RP
    ..Der Nachbar baute mit der gleichen Architektin ?
    Das ist doch wunderbar !
     
  13. #53 mikro0p, 11.07.2020
    mikro0p

    mikro0p

    Dabei seit:
    11.09.2010
    Beiträge:
    330
    Zustimmungen:
    34
    Ort:
    Germersheim
    Nein. Das Nachbarhaus wurde vor 10 Jahren schon gebaut. Unseres ist ein komplett neues Projekt.
     
  14. #54 jodler2014, 11.07.2020
    jodler2014

    jodler2014

    Dabei seit:
    20.12.2014
    Beiträge:
    3.906
    Zustimmungen:
    540
    Beruf:
    Angestellter
    Ort:
    RP
    Also ein Anbau ..
    Gar nicht so einfach ..
    Sind die Pläne dann auch vom Altbau übertragbar ?
    Man könnte ja auch was völlig Neues planen .
    Ob das passt ?
    Ernsthaft ?
     
    11ant gefällt das.
  15. #55 simon84, 11.07.2020
    simon84

    simon84
    Moderator

    Dabei seit:
    11.11.2012
    Beiträge:
    23.020
    Zustimmungen:
    6.775
    Beruf:
    Schrauber
    Ort:
    Muenchen
    Das ist wohl eher eine philosophische Frage, ob man jetzt DHH oder einfach nur "einseitig geschlossene Bauweise" sagt.

    Wenn der Bebauungsplan etc. nicht vorgibt, dass beide Häuser gleich sein müssen, dann müssen sie das auch nicht.
    In Innenstädten stehen seit hunderten von Jahren schon grundverschiedene Häuser direkt nebeneinander angebaut, da geht das auch...
     
    mikro0p gefällt das.
  16. #56 jodler2014, 11.07.2020
    jodler2014

    jodler2014

    Dabei seit:
    20.12.2014
    Beiträge:
    3.906
    Zustimmungen:
    540
    Beruf:
    Angestellter
    Ort:
    RP
    100 Punkte ..
     
  17. #57 mikro0p, 11.07.2020
    mikro0p

    mikro0p

    Dabei seit:
    11.09.2010
    Beiträge:
    330
    Zustimmungen:
    34
    Ort:
    Germersheim
    Wir wollen völlig was neues planen. Der B–Plan schreibt nicht vor das beide gleich sein müssen. Da Dachschräge mit 35 grad fest, und eine max. Wand– und Firsthöhe angegeben sind werden diese Bedingungen eingehalten. Die Architektin versucht den Schnitt zu übernehmen und bleibt auch in der selben Baulinie. Theoretisch könnten wir uns noch 1–2m vor oder nach hinten absetzen.
     
  18. #58 jodler2014, 12.07.2020
    jodler2014

    jodler2014

    Dabei seit:
    20.12.2014
    Beiträge:
    3.906
    Zustimmungen:
    540
    Beruf:
    Angestellter
    Ort:
    RP
    Ein klassisches Reihenhaus ..:sleeping
    Und die 3200 € sind für was eigentlich angesetzt ?
    Startkapital ?
    Ziemlich konfus ...
     
  19. #59 mikro0p, 12.07.2020
    mikro0p

    mikro0p

    Dabei seit:
    11.09.2010
    Beiträge:
    330
    Zustimmungen:
    34
    Ort:
    Germersheim
    Ein klassisches Reihenhaus ist es nicht. Es wird eine DHH als Anbauprojekt an eine bestehende Hälfte geplant. Die Architektin hat die Aufgabe es zu planen und anschließend die Baufreigabe einholen. Was meinst du mit konfus?
     
  20. #60 Fabian Weber, 12.07.2020
    Fabian Weber

    Fabian Weber

    Dabei seit:
    03.04.2018
    Beiträge:
    15.960
    Zustimmungen:
    6.251
    Was ist mit dem Entwurf aus dem anderen Thread? Der war doch sehr gut...
     
Thema:

Architekten Honorar bereits nach Vorentwürfe

Die Seite wird geladen...

Architekten Honorar bereits nach Vorentwürfe - Ähnliche Themen

  1. Ungereimtheiten bei Honorar Architekt

    Ungereimtheiten bei Honorar Architekt: Hallo, in 2020 haben wir einen Architekten beauftragt, unser EFH zu planen und ihn für Gebäude, Innenräume, Freianlage und technische Ausrüstung...
  2. Kostenschätzung Architekt für Honorar realistisch?

    Kostenschätzung Architekt für Honorar realistisch?: Hallo, ich hatte schon hier Zusammenarbeit mit Architekten kurz über die Probleme mit meinem ehemaligen Architekten gesprochen. Inzwischen habe...
  3. Bau Geräteschuppen Honorar Architekten

    Bau Geräteschuppen Honorar Architekten: Guten Morgen zusammen, ich plane einen 6x3 Meter Geräteschuppen hinter meiner Garage und benötige dafür einen Bauantrag. Laut Landkreis Osnabrück...
  4. Architekt Kundenaquise vs. Honorar

    Architekt Kundenaquise vs. Honorar: Guten Tag, folgender Fall: Familie A möchte bauen. Hierzu verhandelt sie mit einem Makler über ein Grundstück G. Über ein anderes...
  5. Ermittlung Architekten-Honorar bei Anbau???

    Ermittlung Architekten-Honorar bei Anbau???: Hallo, ich hätte mal eine Frage, die vielleicht einer der Architekten, die im Forum vertreten sind, beantworten könnte. Andere Meinungen sind...