Architektenentwurf: Umbau 2-Familienhaus in 3-Familienhaus

Diskutiere Architektenentwurf: Umbau 2-Familienhaus in 3-Familienhaus im Architektur Allgemein Forum im Bereich Architektur; Hallo liebes Forum, wir haben aktuell ein 2-Familenhaus aus BJ.1975. Dieses hat einen Wohnkeller und ein Erdgeschoss als Wohnung. Das...

  1. #1 Bauinteressierter, 05.10.2020
    Bauinteressierter

    Bauinteressierter

    Dabei seit:
    24.04.2019
    Beiträge:
    31
    Zustimmungen:
    2
    Hallo liebes Forum,

    wir haben aktuell ein 2-Familenhaus aus BJ.1975. Dieses hat einen Wohnkeller und ein Erdgeschoss als Wohnung. Das Dachgeschoss ist nicht ausgebaut, d.h. hier ist die Rohdecke + Dachstützen.

    Gerne würden wir dieses Haus als ein 3-Familienhaus umbauen und alle 3 Wohnungen vermieten (KG, EG und DG). Hierzu haben wir einen Architekten für die Umplanung beauftragt.

    Im Zuge der Umplanung wollen wir renovieren, d.h. Bäder, Bodenbeläge, Tapeten/Wände und Decken neu machen, sodass es innen zeitgemäß schön und wohnlich wird. Wo es sich lohnt, Bestand zu erneuern (z.B. Leitungen im Bad), soll dies auch getan werden.
    Ungern würden wir Bestand erneuern, wo es nicht unbedingt sein muss, rein aus Kostengründen, da die Wohnungen nicht eigengenutzt werden.
    Budget für den Umbau haben wir max. 275.000 veranschlagt, Ort: Baden-Württemberg, Rhein-Neckar-Kreis. Diese Vorgaben hat im Grunde auch der Architekt von uns erhalten.

    Anbei finden Sie den Entwurf des Architekten. Ich hätte hier gerne einmal Feedback, wo noch Optimierungspotenzial im Entwurf besteht oder was mach vielleicht anders/besser lösen könnte.

    Generell sind wir aber zunächst mit dem Entwurf im Großen und Ganzen zufrieden. Das Bad im Erdgeschoss dürfte aber gerne geräumiger werden oder eine begehbare Dusche haben. Bevor wir unser nächstes Gespräch mit dem Architekten haben, wäre ich über Tipps und Hinweise wären anderer auch dankbar. Vielleicht gibt es ja noch andere Ideen, die es noch besser machen.

    Danke!

    Viele Grüße
    Stefan
     

    Anhänge:

  2. 11ant

    11ant

    Dabei seit:
    28.02.2017
    Beiträge:
    2.501
    Zustimmungen:
    1.578
    Beruf:
    Bauherrenberater
    Ort:
    RLP Nord
    Benutzertitelzusatz:
    bringt Sie gut beraten ins Eigenheim
    Es schadet nicht, statt des PDF Bilder einzustellen. Ob der Dachgeschoßausbau schon erforderlich macht, die aktuelle EnEV einzuhalten, bin ich gerade überfragt - ebenso, wie weit das Gebäude dann in eine höhere Klasse vorstößt (auch bzgl. Feuerstätten, Brandschutz & Co.). Aber zumindest einen zusätzlichen Stellplatz wird die dritte Wohnung mit sich bringen. Wie ist es um die GFZ bestellt ?
     
  3. #3 Bauinteressierter, 06.10.2020
    Bauinteressierter

    Bauinteressierter

    Dabei seit:
    24.04.2019
    Beiträge:
    31
    Zustimmungen:
    2
    Hallo 11ant,

    danke für deine Meinung und Hinweise. Das sind gute Puntke, die ich beim Gespräch mit dem Architekten klären kann (EnEV, Brandschutz, Feuerstätten).
    Bezüglich Stellplatz gibt es im KG eine Doppelgarage (hintereinander) und zwei Fertiggaragen im Hof + Stellfläche im Hof selbst. Das ist schon Bestand.

    GRZ 0,4
    GFZ 0,6
    2 Vollgeschosse zulässig
    Da das Grundstück fast 1100m² hat (großer Garten), bewegen wir uns hier aus meiner Sicht in genehmigungsfähigen Bereich.

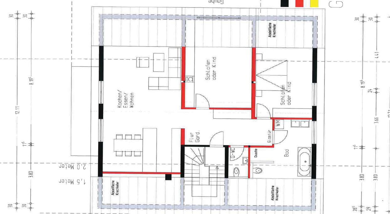
    Anbei nochmals die Pläne als Bilddateien. Da ich vom vorliegenden PDF Screenshots gemacht habe, hoffe ich, dass die Auflösung ausreicht.
    In den Plänen sind
    schwarz Bestandswände
    gelb Bestandswände die rückgebaut werden sollen
    rot Wände die neu hinzu kommen
     

    Anhänge:

  4. 11ant

    11ant

    Dabei seit:
    28.02.2017
    Beiträge:
    2.501
    Zustimmungen:
    1.578
    Beruf:
    Bauherrenberater
    Ort:
    RLP Nord
    Benutzertitelzusatz:
    bringt Sie gut beraten ins Eigenheim
    Ja, z.B. ob der Durchgang zwischen Garage und Heizungsraum bleiben darf; und gefangene Stellplätze zählen manchmal nicht.
     
    simon84 gefällt das.
  5. #5 PittyDerBaumeister, 07.10.2020
    PittyDerBaumeister

    PittyDerBaumeister

    Dabei seit:
    05.10.2020
    Beiträge:
    29
    Zustimmungen:
    15
    Ort:
    Köln
    Steht in der ENEV §9 "Änderung, Erweiterung und Ausbau von Gebäuden" wenn weniger als 10 Prozent der Außenbauteile verändert werden ist ist die ENEV nicht anzuwenden. Dabei sind Außenwände und Dachflächen getrennt zu betrachten, da unterschiedliche Bauteile.
     
  6. #6 simon84, 07.10.2020
    simon84

    simon84
    Moderator

    Dabei seit:
    11.11.2012
    Beiträge:
    23.279
    Zustimmungen:
    6.917
    Beruf:
    Schrauber
    Ort:
    Muenchen
    Die 10% Regelung steht weiterhin in der neuen GEG 2020, jetzt unter 3 / 48
     
    PittyDerBaumeister und 11ant gefällt das.
  7. #7 PittyDerBaumeister, 07.10.2020
    PittyDerBaumeister

    PittyDerBaumeister

    Dabei seit:
    05.10.2020
    Beiträge:
    29
    Zustimmungen:
    15
    Ort:
    Köln
    Uh! Danke für die Info.
     
  8. 11ant

    11ant

    Dabei seit:
    28.02.2017
    Beiträge:
    2.501
    Zustimmungen:
    1.578
    Beruf:
    Bauherrenberater
    Ort:
    RLP Nord
    Benutzertitelzusatz:
    bringt Sie gut beraten ins Eigenheim
    Und das heißt praktisch in der Regel: wenn DFF, dann nein, aber wenn mehrere Gauben, dann eher ja ?
     
  9. #9 PittyDerBaumeister, 07.10.2020
    PittyDerBaumeister

    PittyDerBaumeister

    Dabei seit:
    05.10.2020
    Beiträge:
    29
    Zustimmungen:
    15
    Ort:
    Köln
    Das ist in jedem Falle einzeln zu bewerten. Auch mit DFF lassen sich die 10% überschreiten.
     
    simon84 und 11ant gefällt das.
  10. #10 Bauinteressierter, 26.08.2021
    Bauinteressierter

    Bauinteressierter

    Dabei seit:
    24.04.2019
    Beiträge:
    31
    Zustimmungen:
    2
    So wir haben die Grundrisse nun mit dem Architekten nochmal angepasst. Gibt es sonst noch Meinungen oder Verbesserungsvorschläge für die Grundrisse?
     

    Anhänge:

    • DG.JPG
      DG.JPG
      Dateigröße:
      77,5 KB
      Aufrufe:
      238
    • EG.JPG
      EG.JPG
      Dateigröße:
      66,3 KB
      Aufrufe:
      208
    • KG.JPG
      KG.JPG
      Dateigröße:
      72,5 KB
      Aufrufe:
      219
Thema:

Architektenentwurf: Umbau 2-Familienhaus in 3-Familienhaus

Die Seite wird geladen...

Architektenentwurf: Umbau 2-Familienhaus in 3-Familienhaus - Ähnliche Themen

  1. Umbau eines Stockwerks

    Umbau eines Stockwerks: Hallo, wir planen aus 2 Räumen 3 zu machen: [ATTACH] Die Dicken Mauern außenrum sind die Außenwände und 24 cm Dick. Die dünnen Wände sind aus...
  2. Bauleitung hält sich nicht an Architektenentwurf

    Bauleitung hält sich nicht an Architektenentwurf: Hallo zusammen, Wir haben bei einem General Unternehmen den Bau eines Wohnhauses mit zwei Wohneinheiten in Auftrag gegeben. Basis des Bauvertrags...
  3. Zweifel am Architektenentwurf

    Zweifel am Architektenentwurf: Hallo zusammen. Wir sind gerade dabei ein Einfamilienhaus zu bauen. Die Planung ist eigentlich abgeschlossen und die Baugenehmigung wurde vor...
  4. Architektenentwurf für DHH Grundriss

    Architektenentwurf für DHH Grundriss: Hallo Forengemeinde, ich bin hier schon eine Weile am mitlesen und informieren, während unsere eigene Planung so langsam begonnen hat. Dabei habe...
  5. Grundrissdiskussion - Architektenentwurf

    Grundrissdiskussion - Architektenentwurf: Hallo Forum, ich möchte an dieser Stelle 2 verschiedene Grundrissentwürfe von unserem Architekten vorstellen und würde mich über Meinungen dazu...