Aufteilung Küche-Wochnbereich im Erdgeschoss

Diskutiere Aufteilung Küche-Wochnbereich im Erdgeschoss im Architektur Allgemein Forum im Bereich Architektur; Hallihallo, ich habe vor Kurzem ein kleines, zweistöckiges Reihenhaus gekauft. Es ist etwas älter und benötigt eine Kernsanierung. Meine...

  1. #1 Emaborsa, 09.11.2025
    Emaborsa

    Emaborsa

    Dabei seit:
    09.11.2025
    Beiträge:
    8
    Zustimmungen:
    0
    Ort:
    Neumarkt
    Hallihallo,

    ich habe vor Kurzem ein kleines, zweistöckiges Reihenhaus gekauft. Es ist etwas älter und benötigt eine Kernsanierung. Meine Partnerin und ich haben uns lange Gedanken darüber gemacht, wie wir alles gestalten möchten, sind uns jedoch noch nicht einig bezüglich Küche und Wohnbereich.

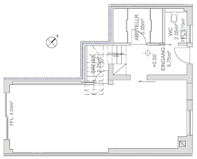
    Hier ist der Plan des aktuellen Erdgeschosses:

    [​IMG]


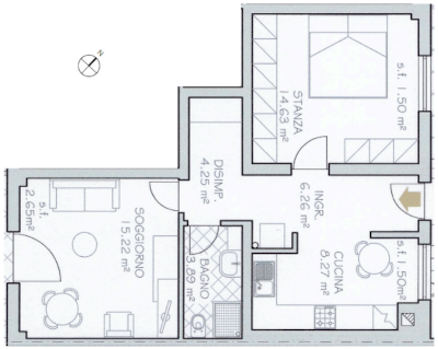
    Sicher ist: Das Bad soll aus der Mitte verschwinden und für die folgende Lösung sind wir beide einverstanden:

    [​IMG]


    Das bedeutet, dass das Schlafzimmer zur Eingangsebene umgestaltet wird und Platz für ein Tages-WC sowie eine Abstellkammer schafft.

    Unser Problem lautet: Küche oder Wohnbereich – was sollte in den dunklen Norden und was in den sonnigen Süden? Viele raten uns, die Räume nach der Nutzung zu entscheiden: also dort, wo wir die meiste Zeit verbringen, wie viel wir kochen und wie viel wir auf der Couch sitzen. Dieser Raum sollte nämlich mehr Licht haben.

    Ich stimme dem jedoch nur teilweise zu, denn über den Winter ist es fast das halbe Jahr morgens und abends dunkel – daher ist es eigentlich egal, wo mehr Licht ist. Im Sommer werden außerdem meist die Jalousien oder Rollläden geschlossen, da es sonst zu heiß wird. Im Frühling und Herbst beitet unsere Terrasse gemütliche Mahlzeiten upload_2025-11-9_16-27-24.gif

    Deshalb wollte ich mal in die Runde fragen, wie ihr das seht und wie ihr die Räume nutzen würdet.
    Also die Optionen:
    1. Küche im Norden – Wohnbereich im Süden
    2. Küche im Süden – Wohnbereich im Norden
    (P.S. Das Fenster im Norden lässt sich belibig verstellen)
     
  2. #2 Emaborsa, 09.11.2025
    Emaborsa

    Emaborsa

    Dabei seit:
    09.11.2025
    Beiträge:
    8
    Zustimmungen:
    0
    Ort:
    Neumarkt
    Hatte vergessen, die Terrasse ist oder vom Obergeschoss direkt, oder von außen neben dem Eingang über eine Stiege, erreichbar:
    [​IMG]
     
  3. #3 Jo Bauherr, 09.11.2025
    Jo Bauherr

    Jo Bauherr

    Dabei seit:
    19.06.2018
    Beiträge:
    1.046
    Zustimmungen:
    511
    Beruf:
    (Ex)-Vermieter
    Ort:
    Randberlin
    Was hat denn jetzt dieser Plan vom OG mit dem Plan vom EG zu tun??
    Zeige doch bitte mal, wie das alles zusammenhängt.
     
  4. #4 Emaborsa, 09.11.2025
    Emaborsa

    Emaborsa

    Dabei seit:
    09.11.2025
    Beiträge:
    8
    Zustimmungen:
    0
    Ort:
    Neumarkt
    Da mir ein Forum-Benutzer privat angeschrieben hat und er der Meinung war man könnte von der Küche direkt auf die Terrasse gehen, wenn beide gleich liegen würden. Vielleicht ist es so etwas klarer:
    seitlich.png
     
  5. #5 hanghaus2000, 14.11.2025
    hanghaus2000

    hanghaus2000

    Dabei seit:
    24.11.2021
    Beiträge:
    1.520
    Zustimmungen:
    630
    Beruf:
    Bauleiter, Kalkulator, Controller, Salzdesign
    Ort:
    Bayern
    Zeig doch mal den kompletten Grundriss vom EG und OG. Bad versetzen geht nicht so einfach. Zumal die Vermutung ist, das es keinen Keller gibt.
     
  6. #6 nordanney, 14.11.2025
    nordanney

    nordanney

    Dabei seit:
    15.09.2021
    Beiträge:
    6.330
    Zustimmungen:
    3.648
    Beruf:
    Finanzierer/Investor/Bau- und Sanierungslaie
    Ort:
    Niederrhein
    So gar nicht. Hatte das Haus im IST-Zustand keine Treppe ins OG? In Italien gelegen?

    Davon abgesehen stelle ich mir auch die Frage, wie die Sch... aus dem neuen WC im EG abfließen soll, wenn es nur eine Bodenplatte gibt?.
     
  7. #7 Kriminelle, 14.11.2025
    Kriminelle

    Kriminelle

    Dabei seit:
    16.05.2013
    Beiträge:
    3.747
    Zustimmungen:
    2.072
    Beruf:
    .
    Ort:
    Niedersachsen
    Hehe, hat der Angst vor Mitlesern?

    Also, das Haus hat jetzt keine Innentreppe? Das ist sehr ungewöhnlich, auch noch dazu Splitlevel. Das erklärt sich natürlich nicht mit Zeichnungen.
    Theroretisch schon, alleridngs kann sich hier wohl keiner vorstellen, wie man in solch einem Haus ohne innere Verbindung der zwei Ebenen leben kann.
     
  8. #8 nordanney, 14.11.2025
    nordanney

    nordanney

    Dabei seit:
    15.09.2021
    Beiträge:
    6.330
    Zustimmungen:
    3.648
    Beruf:
    Finanzierer/Investor/Bau- und Sanierungslaie
    Ort:
    Niederrhein
    Gar nicht, deshalb ist in der Zielwelt ja auch eine Treppe geplant. Mich würde auch mal die Situation insgesamt mit der Bebauung als Reihenhaus interessieren - wie sieht es rechts uns links jeweils mit den Nachbarhäusern aus?
     
  9. #9 simon84, 14.11.2025
    simon84

    simon84
    Moderator

    Dabei seit:
    11.11.2012
    Beiträge:
    23.279
    Zustimmungen:
    6.917
    Beruf:
    Schrauber
    Ort:
    Muenchen
    und wie soll der Abfluss / Abwasser an eine komplett andere Ecke im Haus wandern ?
     
  10. #10 nordanney, 14.11.2025
    nordanney

    nordanney

    Dabei seit:
    15.09.2021
    Beiträge:
    6.330
    Zustimmungen:
    3.648
    Beruf:
    Finanzierer/Investor/Bau- und Sanierungslaie
    Ort:
    Niederrhein
    Dazu gibt es ja noch keine Antwort...
     
    simon84 gefällt das.
  11. #11 Emaborsa, 22.11.2025
    Emaborsa

    Emaborsa

    Dabei seit:
    09.11.2025
    Beiträge:
    8
    Zustimmungen:
    0
    Ort:
    Neumarkt
    Hi,
    also Grundriss vom EG ist im ersten Post und vom OG im zweitem, oder meist du was anderes? Ne, keinen Keller.
     
  12. #12 Emaborsa, 22.11.2025
    Emaborsa

    Emaborsa

    Dabei seit:
    09.11.2025
    Beiträge:
    8
    Zustimmungen:
    0
    Ort:
    Neumarkt
    Genau, im IST-Zustand gibt es keine Treppe. Das Haus wurde 1970 gebaut, Zugang nur von Außen über die Terrasse, wie man hier sehen kann. Damals wurde sie nur als Abstellkammer gedacht und wurde bis heute auch nur so benutzt.
    Und genau, Haus steht in Italien, Südtirol.

    Der rote Kreis zeigt vo außen der Abfluss in die Kanalisation fließt, wo ganeu die Verbindung zum IST-Bad läift, kann ich solange ich nicht alles aufreiße nur vermuten. Um das Bad dort hin zu verlegen dürfte absolut kein Problem sein:
    klo.PNG
     
  13. #13 Emaborsa, 22.11.2025
    Emaborsa

    Emaborsa

    Dabei seit:
    09.11.2025
    Beiträge:
    8
    Zustimmungen:
    0
    Ort:
    Neumarkt
    Möglich :lock

    Genau, wie gerade geschriebe, als das Haus 1970 gebaut wurde, was das OG nur als Abstell gedacht.

    Hier eventuell, das Vor- und Nacher 2011, als die Vorbesitzer das EG in zwei Wohnungen getrennt haben:
    tutto.PNG
     
  14. #14 Emaborsa, 22.11.2025
    Emaborsa

    Emaborsa

    Dabei seit:
    09.11.2025
    Beiträge:
    8
    Zustimmungen:
    0
    Ort:
    Neumarkt
    Was genau? Sowas?
    plan_2.PNG
     
Thema:

Aufteilung Küche-Wochnbereich im Erdgeschoss

Die Seite wird geladen...

Aufteilung Küche-Wochnbereich im Erdgeschoss - Ähnliche Themen

  1. Einbehalt für Mängel aufteilen

    Einbehalt für Mängel aufteilen: Hallo, fiktives Beispiel: Bei einem Einfamilienhaus gibt es drei Mängel die bei der Abnahme mit je einem Betrag als Einbehalt dokumentiert...
  2. Split-Klimagerät -> Welche Multisplit Aufteilung?

    Split-Klimagerät -> Welche Multisplit Aufteilung?: Ich plane gerade die Klimaanlage für meine Kernsanierung. Gekühlt werden sollen: Schlafzimmer ca. 15m² Büro ca. 15m² Wohnzimmer ca. 35m² *...
  3. ELW Grundriss Aufteilung - Entscheidungsfindung

    ELW Grundriss Aufteilung - Entscheidungsfindung: So, bei uns geht es jetzt in die heisse Phase, Bauantrag wurde eigentlich schon gestellt, ist aber mit einigen Anforderungen zurückgekommen....
  4. Küche: Fliesenspiegel richtig verlegen - Maße und aufteilung

    Küche: Fliesenspiegel richtig verlegen - Maße und aufteilung: Moin Ich möchte in der küche gerne einen neuen fliesenspiegel legen. Die Fliesen sind 60x60 cm. Ich habe 4 unterschiedliche Längen. Meine Frage...
  5. Phasen von Starkstromsteckdose aufteilen?

    Phasen von Starkstromsteckdose aufteilen?: Hallo zusammen, aktuell baue ich einen Kellerraum (vorher Waschküche) so um, dass er (auch) als Büro genutzt werden kann (Homeoffice machts...