Bauen am See - die ersten Entwürfe sind da

Diskutiere Bauen am See - die ersten Entwürfe sind da im Architektur Allgemein Forum im Bereich Architektur; Hallo zusammen, nachdem ich hier schon ein paar Worte zu unserem Projekt verloren hatte, sind wir ein gutes Stück weiter. Das Grundstück wurde...

  1. #1 Hessekopp, 27.02.2012
    Hessekopp

    Hessekopp

    Dabei seit:
    30.06.2011
    Beiträge:
    419
    Zustimmungen:
    1
    Beruf:
    Angestellter
    Ort:
    Dortmund
    Hallo zusammen,

    nachdem ich hier schon ein paar Worte zu unserem Projekt verloren hatte, sind wir ein gutes Stück weiter. Das Grundstück wurde gekauft und am Wochenende offiziell übergeben, unsere Architektensuche konnten wir erfolgreich abschließen und es liegen die ersten Entwürfe vor.

    Zu den Randbedingungen:

    Es handelt sich um ein Grundstück in zweiter Reihe am Phönixsee in Dortmund. Die Grundstücke sind terassenförmig angeordnet. Auf unserem Grundstück (ca. 450qm) befindet sich auch eine Stufe; d.h. der hintere Teil des UG ist eingebuddelt. Zufahrt und Straße befinden sich vor dem Haus, der Seeblick ist in Richtung Süden. Der Bebauungsplan ist sehr stringent, aber auf moderne Bauweise ausgerichtet - was mich nicht stört. Wer Interesse im Detail hat, kann hier nachsehen: http://www.phoenixseedortmund.de/25117.html

    So, und nun zu den Entwürfen und ein paar Diskussionspunkten:

    V1:


    UG:
    hier habe ich ein Problem mit dem Tageslicht in dem Gästezimmer; einen Lichtschacht finde ich nicht so prickelnd, außerdem soll da wo der Lichtschacht im Außenbereich ist eine Treppe als Zugang zum Garten hin.
    Meine Idee war hier, das komplette Haus einen Meter nach vorne zu setzen bis an die Baugrenze und das Elternschlafzimmer etwas kleiner zu machen, indem die Wand nach vorne versetzt wird. Somit hoffe ich zu ausreichend Fensterfläche zu kommen.
    Die Terasse vor dem Elternschlafzimmer soll weg (ich denke es gibt genug Terassen und Balkone im Haus - und nach vorne zur Straße hin ist diese Terasse nicht sehr sinnvoll).

    OG:
    Lager (Speisekammer) und WC tauschen. Ich weiß, aber ich kann gut kochen - trotzdem ist das WC in der Nähe der Küche...

    DG:
    ist ok für mich

    V2

    UG:
    Hier gefällt mir die Lage des Bads nicht - man muss aus dem Elternschlafzimmer über den Flur an der Haustür vorbeihuschen. Hier würde ich den Architekten bitten eine Lösung zu finden, in der das Bad neben das Schlafzimmer kann; aber doch mit Zugang durch den Flur oben.

    OG:
    Hier auch WC und Speisekammer tauschen. Die Loggia findet meine bessere Hälfte klasse. Da es am See ziemlich zugig ist, ist es evtl. keine schlechte Idee dort etwas "geschützter" zu sitzen, zumal das Sonnendeck ein Stockwerk höher ist.

    DG:
    evtl. zwischen Bad und Kind noch eine kleine Abstellkammer für Putzkram/Staubsauger). Aber vielleicht ist es besser dort ein Fenster zu haben um den Flur besser auszuleuchten (ist aber Nord-Ausrichtung)

    Oder vielleicht doch die Kombination zwischen UG V1 mit gedrehter Treppe wie in V2 und OG/DG V2?
    Wobei der V1 sicherlich noch etwas in den Dimensionen "schrumpfen" muss, da die Bude sonst zu groß wird.

    Bin auf Eure Kommentare gespannt!


    beste Grüße

    Heiko
     
  2. #2 Gast036816, 27.02.2012
    Gast036816

    Gast036816 Gast

    da keine fenster in den grundrissen enthalten sind, ansichten nicht vorhanden sind, kann nicht viel kommentiert werden.

    es fehlt zu viel in der darstellung!
     
  3. #3 Geodesy, 27.02.2012
    Geodesy

    Geodesy

    Dabei seit:
    02.01.2011
    Beiträge:
    1.273
    Zustimmungen:
    4
    Beruf:
    Dipl.-Ing. Verm.
    Ort:
    NRW
    Jetzt hat er doch am Mückentümpel gekauft :o
     
  4. #4 Thomas B, 27.02.2012
    Thomas B

    Thomas B

    Dabei seit:
    17.08.2005
    Beiträge:
    11.181
    Zustimmungen:
    4
    Beruf:
    Dipl.Ing.
    Komisch: Mit CAD zeichnet man ja (zwangsweise) exakt. Es ist also weniger spielerisch...herantastend. Und dann fehlen essentielle Informationen : Fenster/ Fassade! Das aber gehört schon im Gesamtzusammenhang betrachtet.

    Spontane Dinge:
    V1 + V2: Der Zugang ist für mich indiskutabel: In V1 riesig, aber ohne Esprit...eine große Flcähe eben. In V2 muß man als allererstes den Privatbereich (Eltern - Bad) durchqueren. Geht ja nun gar nicht.

    Das WC im Essbereich/ Küche...hatten wir schon öfter und wird durch Wiederholung nicht besser. Beim Kochen könnte man da schon gar merkwürdige Aromen herausschnüffeln, wenn's auf dem Örtchen mal hoch her geht. Bsp.: Feier...man schlöürft ein Getränk in der Küche (oder deren viele). ERin Kommen und Gehen im WC-Bereich. Man kann sich dann auch das Getränk auf dem Thron servieren lassen....

    Hanglage ist sicher interessant, die Lösung hier ist für mich bereits in den grundlegenden Ansätzen nicht gelungen. Ist ja erst der Vorentwurf. Ich würde sagen: Nochmal neu!

    Thomas
     
  5. #5 Hessekopp, 27.02.2012
    Hessekopp

    Hessekopp

    Dabei seit:
    30.06.2011
    Beiträge:
    419
    Zustimmungen:
    1
    Beruf:
    Angestellter
    Ort:
    Dortmund
    Jaja aber die Mücken werdenin den nächsten Monaten/Jahren von den Baukränen verscheucht...
    Zu dem Entwurf: hier geht es in der Tat zuerst um einen Entwurf; hätte man auch auf Butterbrotpapier machen können. Zuerst sollte die Lage der Räume und die Gebäudeform ermittelt werden.
    Die Eingangssituation hatte ich ja auch als unglücklich beschrieben; V1 zu groß, V2 flasche Anordnung.
    Das WC habe ich auch schon in den Diskussionen als kontrovers wahrgenommen nur bin ich noch nicht schlau geworden, wo man es hinschieben könnte. Weglassen würde mich wahrscheinlich ärgern, wenn ich immer die Treppe rauf oder runter müsste. In unserer derzeitigen Wohnung ist das WC sogar noch innenliegend und in der Nähe des Wohnbereiches. Ist aber auch alles offen - und innenliegend weil es der Teil einer alten Fabrik ist.
    Es gibt auch noch V3 und eine V4 im Ansatz. V3 hat eine gerade Treppe und verlegt Wohnen/Essen/Kochen nach oben. Das ist dann natürlich eine elende Schlepperei der Einkäufe...

    Mal sehen wie es weitergeht.

    viele Grüße

    HEiko
     
  6. #6 Thomas B, 27.02.2012
    Thomas B

    Thomas B

    Dabei seit:
    17.08.2005
    Beiträge:
    11.181
    Zustimmungen:
    4
    Beruf:
    Dipl.Ing.
    Komisches Entwerfen ist das bei Euch. Der Planer schmeißt eine große Anzahl von Möglichkeiten in die Arena und man darf sich dann aussuchen wo's lang geht...? Ichhalte es eigentlich immer anders. Meine BH bekommen einen Vorentwurf, der dann aber auch in sich stimmig ist (egal ob er nun die Anforderungen der BH voll umfänglich erfüllt...er sollte aber für sich genommen funktionieren). Paßt es dann, geht es weiter in diese Richtung oder -wenn nicht- korrigiert man und wenn überhaupt nicht geht es zurück auf Start. Aber erstmal zig ungare Ideen zu präsentieren...naja....merkwürdig....
     
  7. #7 Ralf Dühlmeyer, 27.02.2012
    Ralf Dühlmeyer

    Ralf Dühlmeyer

    Dabei seit:
    14.06.2005
    Beiträge:
    34.296
    Zustimmungen:
    24
    Beruf:
    Architekt
    Ort:
    Hannover
    Das kann man schon machen, Thomas, wenn es um grundsätzlich unterschiedliche Ideen oder Gegenentwürfe zu Bauherrenideen geht.

    Aber die beiden Grundrissvarianten (soweit ich sie hab beurteilen können bei dem geringen Kontrast) sind für mich beide nix.

    Erschliessung von der 0-Ebene aus oder von der +1-Ebene?
    Welche Anforderungen hat der Bauherr gestellt?
    Teichblick für alle oder Schlafen nach Norden, wos kühl ist

    Welche Zwänge ergeben sich aus dem B-Plan?

    Ich würde ganz andere Ansätze fahren, aber die mögen dem Bauherren oder dem B-Plan zu wider laufen!
     
  8. #8 Thomas B, 27.02.2012
    Thomas B

    Thomas B

    Dabei seit:
    17.08.2005
    Beiträge:
    11.181
    Zustimmungen:
    4
    Beruf:
    Dipl.Ing.
    Können kann man das, nur tun würde ich es eigentlich nicht.

    ich gebe Dir Recht, wenn z.B. der BH sagt. "ich weiß nicht...orientiere ich meine Wohnzimmer nach Ost oder nach Süd?". daraus können sich dann gänzlich unterschiedliche Situationen ergeben, die zu gänzlich unterschiedlichen Entwurfsansätzen führen.

    Aber auch da würde ich eine bestimmte Entwurfsidee präferieren und diese (erstmal) verfolgen. Hier aber wurden -recht lieblos, wie ich finde- unfertige Gedanken fragmentarisch aufs Papier geworfen...man hat nun eine Auswahl?
     
  9. #9 Hessekopp, 27.02.2012
    Hessekopp

    Hessekopp

    Dabei seit:
    30.06.2011
    Beiträge:
    419
    Zustimmungen:
    1
    Beruf:
    Angestellter
    Ort:
    Dortmund
    Hallo Ihr beiden,

    ohne das Rätselraten abbrechen zu wollen:
    Nein, es geht auch neu - sind ja nur die ersten Entwürfe nach Raumplan, Wohnfläche und B-Plan Abhängigkeiten. Einige Dinge ergeben sich durch die Hanglage und den B-Plan sowie die Seelage/Hanglage und Ausrichtung von alleine. Auch die Erschließung ist durch die Straße vor dem Gebäude vorgegeben. Ein Rücksprung von 3m ist auch Pflicht im B-Plan. Baufenster u.ä. ist im Entwurf eingezeichnet. Wir wollten erst einmal das Raumprogramm unterbringen, von daher gibt es noch keine weiteren Details wie Fenster usw.

    beste Grüße

    Heiko
     
  10. #10 Bauliesl, 27.02.2012
    Bauliesl

    Bauliesl

    Dabei seit:
    02.02.2012
    Beiträge:
    1.129
    Zustimmungen:
    0
    Beruf:
    Architektin
    Ort:
    73230
    @ Thomas:
    das oben abgebildte Beispiel ist sicher kein besonders aussagekräftiges, weil ich beide Varianten eher mau finde.

    Grundsätzlich finde ich, kann es schon richtig sein, dass man einem Bauherrn auch mal mehrere Varianten aufzeigt. Z.B. was die Lage einer Treppe angeht (ist doch so ein klassisches Beispiel) und der sich daraus ergebenden Verkahrsflächen und Raumgefüge. Ich mache sowas häufig mal. Man muss sich doch oft auch im Entwurfsprozess gemeinsam an den richtigen Weg harantasten; in den seltensten Fällen gibt es nur einen richtigen Weg...
    Finde ich zumindest ;-)
     
  11. #11 Ralf Dühlmeyer, 27.02.2012
    Ralf Dühlmeyer

    Ralf Dühlmeyer

    Dabei seit:
    14.06.2005
    Beiträge:
    34.296
    Zustimmungen:
    24
    Beruf:
    Architekt
    Ort:
    Hannover
    Hab ich grad mal gemacht - und mir ist einzig die Frage durch den Kopf gegangen:
    Warum kauft mensch sich so ein Grundtsück???

    Da fehlt ja nur noch eine Vorschrift zu Grösse und Farbe des Bikinis, den die Dame des Hauses beim Sonnenbaden gefälligst zu tragen hat (Badeanzüge sind verboten!)
    Und die Uhrzeiten, in denen die WC-Benutzung gestattet ist!

    Dagegen sind die Koloniesatzungen der Kleingärtner ja echte Wunder an persönlicher Freiheit!

    Erst kommen die roten Balkons, dann kommen die grünen Balkons, dann kommen......Schrieb der Barde dereinst und verspottete damit Siedlungen wie Marzahn oder Mümmelmannsberg.
    Irgendwie geht mir der Titel durch den Kopf, wenn ich das sehe.
     
  12. #12 Hessekopp, 27.02.2012
    Hessekopp

    Hessekopp

    Dabei seit:
    30.06.2011
    Beiträge:
    419
    Zustimmungen:
    1
    Beruf:
    Angestellter
    Ort:
    Dortmund
    Hallo,

    hmm - wer kauft sowas? Ich
    Damit jeder mal zum Zuge (lachen) kommt, habe ich die wichtigsten "Regeln" zusammengefasst:

    [​IMG]

    [​IMG]


    beste Grüße

    Heiko
     
  13. #13 Geodesy, 27.02.2012
    Geodesy

    Geodesy

    Dabei seit:
    02.01.2011
    Beiträge:
    1.273
    Zustimmungen:
    4
    Beruf:
    Dipl.-Ing. Verm.
    Ort:
    NRW
    Tja Heiko, dann lass bloß nicht die Hecke mal über 1,80m wachsen und die Mülltonnen bitte hübsch eingrünen. ;)

    Mal im Ernst, auch für die beiden Architekten hier, ich kenne den Phönixsee besonders durch seine ursprüngliche Geschichte und auch die Umgebung.

    Naja, ich sag es mal so, vorne hui, hinten pfui. Umgeben ist der See von alten Häusern aus der Kokereizeit, so sehen sie leider auch aus.

    Eingebettet wird nun ein Pseudoerholungsgebiet mit strengen Auflagen. Schwimmen ist nicht! Liegt aber eher an der Wasserqualität.

    Das mit den Mücken ist leider kein Scherz. Vielleicht gab´s beim Kauf ja ein Moskitonetz.

    Da dieses Gebiet sehr komplex ist, sollte das Umfeld genauestens vor Ort studiert werden, daher ist eine Beurteilung hier sehr schwierig.
     
  14. #14 Thomas B, 27.02.2012
    Thomas B

    Thomas B

    Dabei seit:
    17.08.2005
    Beiträge:
    11.181
    Zustimmungen:
    4
    Beruf:
    Dipl.Ing.
    ...herzig finde ich ja die Festlegung der Farbe der Dacheindeckung an Hand von RAL - Tönen...
     
  15. #15 Geodesy, 27.02.2012
    Geodesy

    Geodesy

    Dabei seit:
    02.01.2011
    Beiträge:
    1.273
    Zustimmungen:
    4
    Beruf:
    Dipl.-Ing. Verm.
    Ort:
    NRW
  16. #16 Ralf Dühlmeyer, 27.02.2012
    Ralf Dühlmeyer

    Ralf Dühlmeyer

    Dabei seit:
    14.06.2005
    Beiträge:
    34.296
    Zustimmungen:
    24
    Beruf:
    Architekt
    Ort:
    Hannover
    Je tiefer ich da "einsteige", um so mehr frage ich mich, warum man die ganze Sache nicht gleich über einen Architektenwettbewerb oder eine GÜ-Vergabe geregelt und so eine wirklich einheitliche Gestaltung erzielt hat.

    So wird das ein einziger Flickenteppich ohne echte Highlights und Abwechslung.
     
  17. #17 Hessekopp, 12.03.2012
    Hessekopp

    Hessekopp

    Dabei seit:
    30.06.2011
    Beiträge:
    419
    Zustimmungen:
    1
    Beruf:
    Angestellter
    Ort:
    Dortmund
    Soderle,

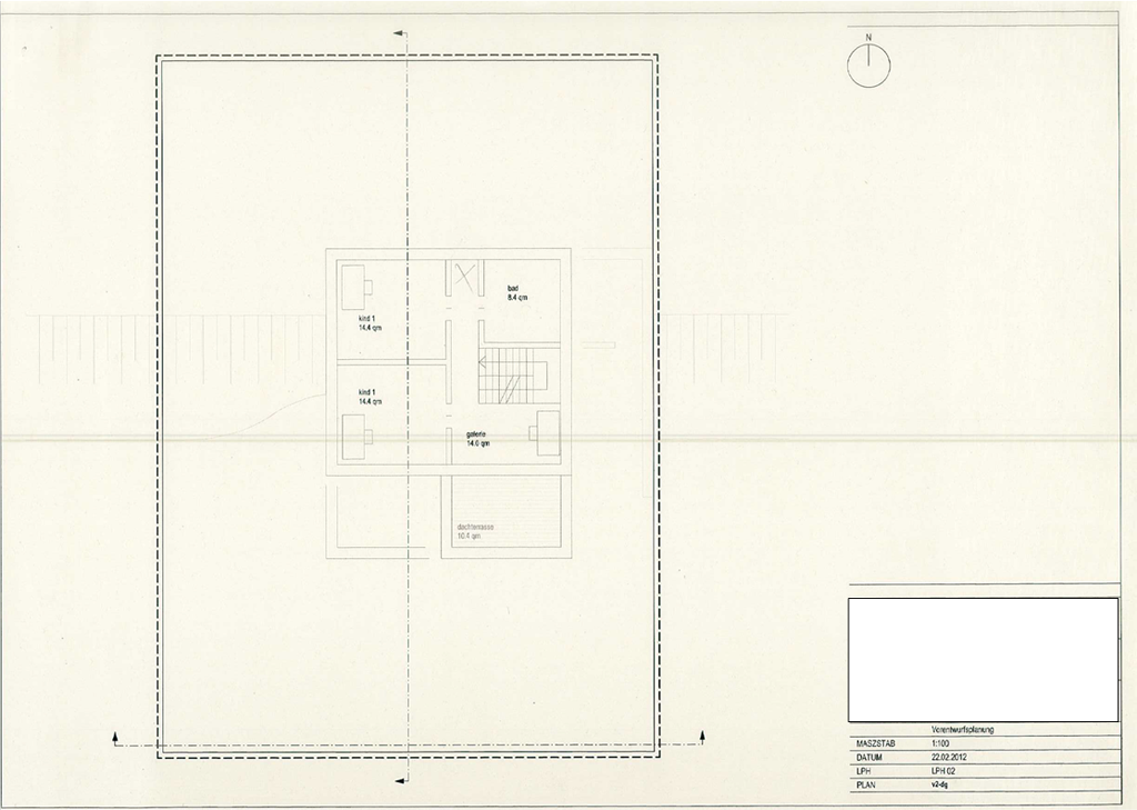
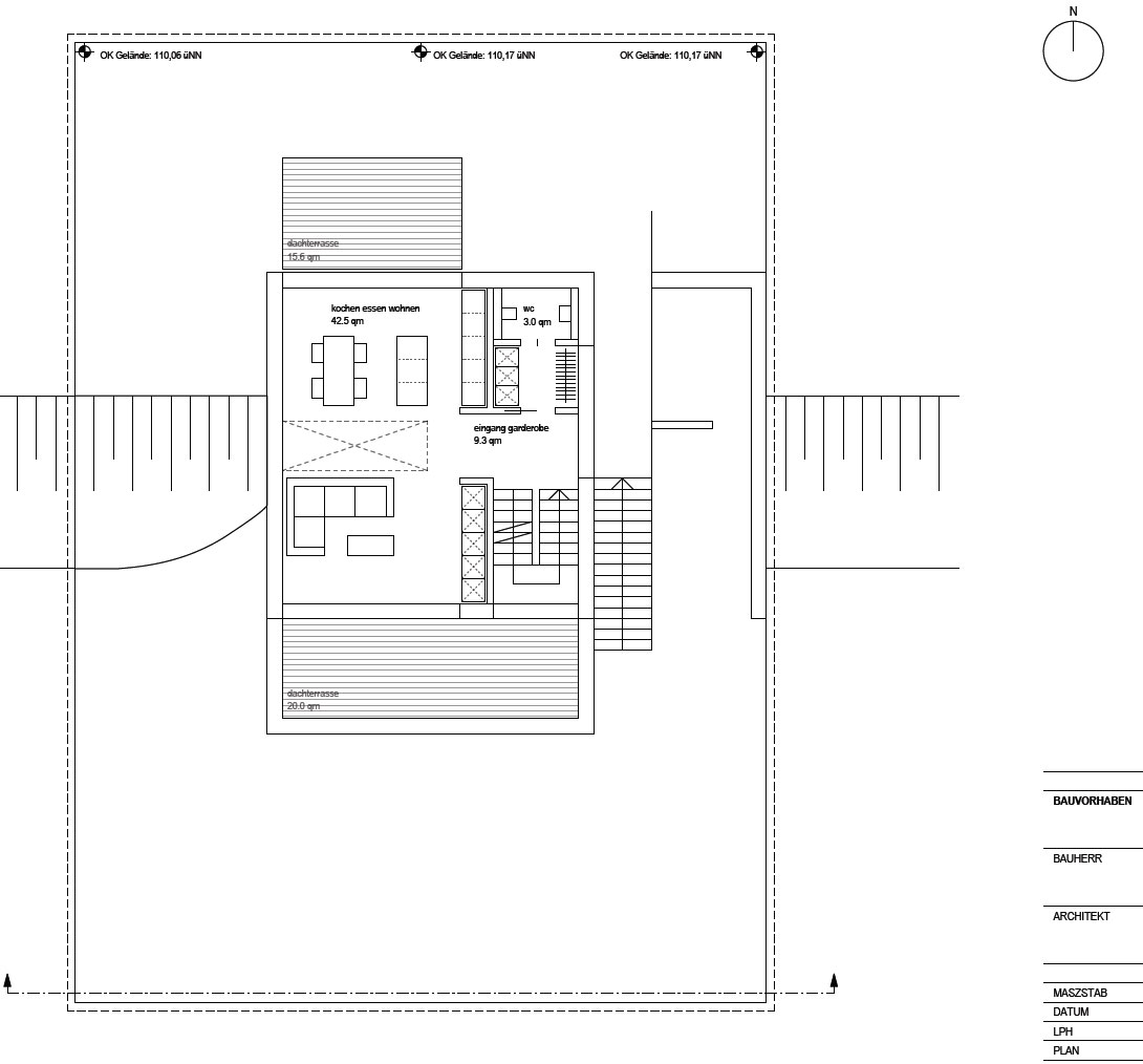
    hier nochmal ein Entwurfs-Update. Zu den ersten Entwürfen gibt es jetzt auch Varianten um ohne Flurdurchquerung in's Bad zu kommen. Ich wollte aber einen "neuen" Entwurf - weg von den ersten. Natürlich sind hier auch alle Vorbedingungen und Zwänge des Bebauungsplans zu berücksichtigen. Die sind nun mal so und daran kann man nichts ändern.
    Immer noch ohne Fenster usw. aber auch immer noch im Butterbrotpapierstatus.
    Die wichtigsten Änderungen:

    Die Erschließung des Hauses erfolgt nicht über das EG sondern über das OG. Dazu gibt es eine Treppe zwischen Haus und Carport/Garage. Das Gästezimmer/Arbeitszimmer wird über einen Hof belichtet, der in den Hang gegraben wird. Dabei vermisse ich immer noch den Zugang zum Garten.
    Im OG wurde das WC über die Garderobe vom Wohnbereich abgetrennt, und ein Luftraum vorgesehen.
    Im Dachgeschoß entstehen zwei großzügige Kinderzimmer, dafür entfällt ein offener Arbeitsbereich, von dessen Sinn ich nicht 100% überzeugt bin, da
    1. vor den Kinderzimmern und
    2. nicht als Home-Office" genehmigungsfähig (nicht abschließbar, nicht abzudunkeln..)
    Ein Kind hat den Seeblick, das andere nicht - Hmmm Pech gehabt?
    Ein Raum aus dem Raumkonzept fehlt, aber ich denke der Entwurf ist offener und "luftiger" als die Ersten.

    Aber seht selbst:

    [​IMG]
    [​IMG]
    [​IMG]

    beste Grüße

    Heiko
     
  18. #18 Thomas B, 12.03.2012
    Thomas B

    Thomas B

    Dabei seit:
    17.08.2005
    Beiträge:
    11.181
    Zustimmungen:
    4
    Beruf:
    Dipl.Ing.
    Das gestricherlte "X" soll aber kein Deckenausschnitt sein, oder doch ?????
     
  19. #19 Hessekopp, 12.03.2012
    Hessekopp

    Hessekopp

    Dabei seit:
    30.06.2011
    Beiträge:
    419
    Zustimmungen:
    1
    Beruf:
    Angestellter
    Ort:
    Dortmund
    Hmmm,

    Blick schweift nach oben, die Wände entlang? :biggthumpup:
    Habe noch nicht mit dem Architekten darüber gesprochen....
     
  20. #20 Thomas B, 12.03.2012
    Thomas B

    Thomas B

    Dabei seit:
    17.08.2005
    Beiträge:
    11.181
    Zustimmungen:
    4
    Beruf:
    Dipl.Ing.
    Lichtschacht für Reiche. Mal nicht so ein armseeliges Platikteil, sondern was Raumgreifendes....
     
Thema: Bauen am See - die ersten Entwürfe sind da
Besucher kamen mit folgenden Suchen
  1. bauen am see

Die Seite wird geladen...

Bauen am See - die ersten Entwürfe sind da - Ähnliche Themen

  1. QNG in 2026 in Bayern Rand München (25km von München) bauen

    QNG in 2026 in Bayern Rand München (25km von München) bauen: Hallo Liebes Team, ich möchte in meinem Grundstück in 82140 Olching als Anbau Mehrfamilienhaus bauen. So Keller, EG, OG1 und DG. Insgesamt 8...
  2. Stützmauer bauen

    Stützmauer bauen: Hallo zusammen, ich würde gerne eine stützmauer bauen mit Schalungssteinen. Geplant wäre die Mauer auf der dritten Reihe der Pflanzringe (siehe...
  3. Erst Grundstück kaufen, ab nächstes Jahr bauen, wie realisierbar?

    Erst Grundstück kaufen, ab nächstes Jahr bauen, wie realisierbar?: Hallo Baufreunde, wir haben ein Grundstück gefunden, welches 25.000€ + Anschlusskosten von 13.000€ kostet. Grunderwerbssteuer und Notar, Makler...
  4. Jetzt Bauplatz kaufen, in zwei Jahren erst bauen, aber wie?

    Jetzt Bauplatz kaufen, in zwei Jahren erst bauen, aber wie?: Hallo liebe Forenuser, wir haben vor kurzem ein Grundstück gefunden, das uns sehr gut gefällt. Wir möchten dieses nun kaufen, aber erst in 2...
  5. Modell selbst bauen - erster Versuch

    Modell selbst bauen - erster Versuch: Hallo! Anbei Bilder von meinem ersten Versuch aus Depron und Tonpapier ... Kommentare erwünscht, viele Grüße, Martin.