Baufenster und Grenzbebauung Neubaugebiet Bayern

Diskutiere Baufenster und Grenzbebauung Neubaugebiet Bayern im Architektur Allgemein Forum im Bereich Architektur; Wir geben unser Bestes, die Fenster lassen sich sicherlich noch anpassen. Erstmal brauchen wir eine Variante, die genehmigungstauglich ist :D Das...

  1. #21 Kriminelle, 02.02.2025
    Kriminelle

    Kriminelle

    Dabei seit:
    16.05.2013
    Beiträge:
    3.828
    Zustimmungen:
    2.157
    Beruf:
    .
    Ort:
    Niedersachsen
    Das macht man am besten mit einem Architekten, der sich auskennt und nicht nur Laienwünsche abzeichnet, ohne sich mit dem Bauamt auseinander gesetzt zu haben. Letztendlich ist doch auch die Ausrichtung des Hauses mangelhaft . Jetzt einfach etwas rauszuhauen und sich dann auf das zu versteifen ist doch sinnfrei. Nun denn…
     
    11ant gefällt das.
  2. #22 maxbaut, 02.02.2025
    maxbaut

    maxbaut

    Dabei seit:
    01.02.2025
    Beiträge:
    13
    Zustimmungen:
    0
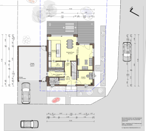
    Wir haben zwei Monate mit einer Architektin für 5500€ an dieser ursprünglichen Planung gearbeitet, bei der die Garage jetzt wohl so nicht mehr erlaubt ist. Wir haben sie mehrfach gefragt, ob die Garage in der Grenzbebauung stehen kann und alles B-Plan konform ist, das war das Ergebnis:

    Planzeichnung.png

    Ich frage am Montag beim Bauamt nach, ob diese Variante so sicher nicht erlaubt ist. Falls das der Fall ist, würde ich versuchen das Geld zurück zu bekommen, da die Planung so ja wertlos ist. Nur deswegen versuchen wir gerade verzweifelt die Sache noch selbst zu lösen..
     
  3. #23 Kriminelle, 02.02.2025
    Kriminelle

    Kriminelle

    Dabei seit:
    16.05.2013
    Beiträge:
    3.828
    Zustimmungen:
    2.157
    Beruf:
    .
    Ort:
    Niedersachsen
    Wo soll denn da die Technik hin?
    Für mich ist der Wohnbereich sowie die Wohnküche grenzwertig: beides recht schmal, schmaler darf es nicht. Dafür viel Freifläche, wo man sie nicht braucht.
    Flur ist zweigeteilt, quasi auf 16qm geplant. Aber so etwas darf sein, damit der Architekt auch verbessern kann. Denn es muss ja nicht in der ersten oder zweiten Runde Optimum rauskommen.
    Bleibt dennoch die frage nach der Technik.

    Jepp. Lass Dir das schriftlich bestätigen: Ausdruck, Pfeil zur Garage und unterschreiben lassen mit Datum und Stempel.
     
    maxbaut und 11ant gefällt das.
  4. #24 simon84, 02.02.2025
    simon84

    simon84
    Moderator

    Dabei seit:
    11.11.2012
    Beiträge:
    23.318
    Zustimmungen:
    6.934
    Beruf:
    Schrauber
    Ort:
    Muenchen
    ich denke das ist nicht realistisch, oder war sie tatsächlich nur für die Planung der Garage beauftragt?

    eine Nachbesserung was die Garage angeht und zur Genehmigungsfähigkeit führen kann ist schon eher realistisch
     
    11ant und Kriminelle gefällt das.
  5. #25 Holzhaus61, 02.02.2025
    Holzhaus61

    Holzhaus61

    Dabei seit:
    10.04.2023
    Beiträge:
    1.363
    Zustimmungen:
    600
    wenn ich den Eigangspodest richtig interpretieren, dann das gesamte Haus mit Garage. Für 5.500 ...:o
     
    simon84 gefällt das.
  6. #26 Kriminelle, 03.02.2025
    Kriminelle

    Kriminelle

    Dabei seit:
    16.05.2013
    Beiträge:
    3.828
    Zustimmungen:
    2.157
    Beruf:
    .
    Ort:
    Niedersachsen
    Nochmal:
     
  7. 415B

    415B

    Dabei seit:
    03.12.2024
    Beiträge:
    1.484
    Zustimmungen:
    253
    Wie kommt man auf die Idee ein Eckgrundstück zukaufen? Man will sich nur mit einem Nachbarn streiten?
     
  8. 415B

    415B

    Dabei seit:
    03.12.2024
    Beiträge:
    1.484
    Zustimmungen:
    253
    Haha da wird es wohl kein Geld zurück geben. Das liegt wohl eher am nie zufriedenen Kunden der immer mal hier und da eine Änderung wollte. Und mal so anrufen beim Bauamt wird keine Erlaubnis verursachen. Die werden auf eine Bauvoranfrage schriftlich bestehen. Und so hat man schon gute 200 Euro pro m2 verbrannt.
     
  9. #29 nordanney, 03.02.2025
    nordanney

    nordanney

    Dabei seit:
    15.09.2021
    Beiträge:
    6.467
    Zustimmungen:
    3.760
    Beruf:
    Finanzierer/Investor/Bau- und Sanierungslaie
    Ort:
    Niederrhein
    Da der Architekt eine genehmigungsfähige Planung schuldet, ist dieser nun am Zug. Ein Haha ist a) nicht angebracht und b) sachlich falsch.
     
    Kriminelle und maxbaut gefällt das.
  10. #30 maxbaut, 03.02.2025
    Zuletzt bearbeitet: 03.02.2025
    maxbaut

    maxbaut

    Dabei seit:
    01.02.2025
    Beiträge:
    13
    Zustimmungen:
    0
    Das war noch ein alter Entwurf, bei dem mit Keller geplant wurde, da hätte sich dann auch der Technikraum befinden. Aus Kostengründen werden wir jetzt jedoch ohne Keller planen, somit muss auch Platz für HA / Technik im EG sein.

    In unserer Gegend ist es nicht einfach überhaupt an ein Grundstück zu kommen, daher hatten wir in dieser Hinsicht keine große Wahl und versuchen nun aus den Gegebenheiten das Beste zu machen.

    Wie nordanney auch sagt, ich finde schon, dass ich von einer Architektin eine genehmigungsfähige Planung erwarten kann. Soll hier aber nicht darum gehen ob jetzt Geld (anteilig) zurück oder erneute Planung, das wird sich in den Gesprächen mit ihr zeigen.

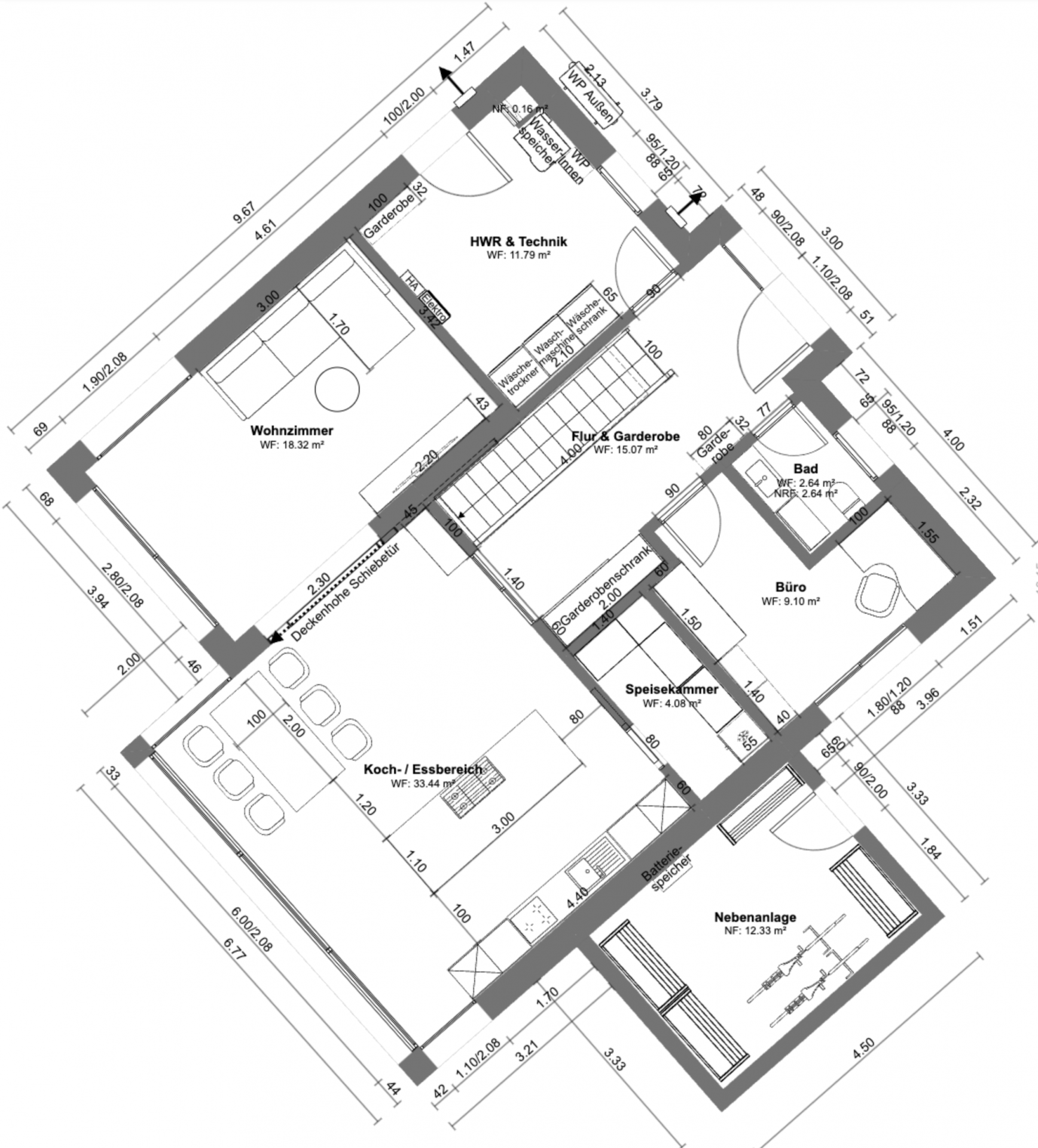
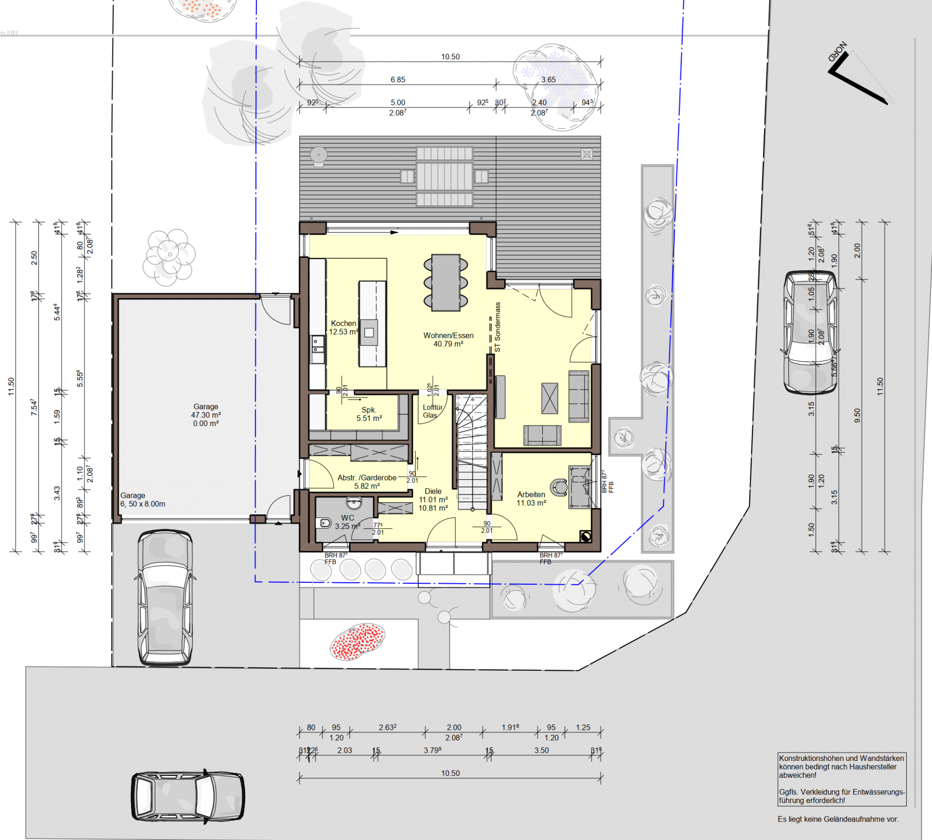
    Das mit der Bauvoranfrage und den Kosten stimmt wohl. Wir werden nun wohl mit der Variante bauen die genehmigungsfähig ist - Carport mit Pultdach innerhalb des Baufensters oben mit seitlichem Nebeneingang durch den HWR, offener Stellplatz daneben; die Nebenanlage außerhalb des Baufensters unten:

    Lageplan.png

    Grundriss EG.png

    Danke für eure Beratung und den Input an dieser Stelle, ihr habt uns vor einem größeren Disaster bewahrt, in das wir ansonsten unwissend hinein gelaufen wären!
     
  11. #31 Holzhaus61, 03.02.2025
    Holzhaus61

    Holzhaus61

    Dabei seit:
    10.04.2023
    Beiträge:
    1.363
    Zustimmungen:
    600
    Nee, so ganz stimmt das auch nicht. Sicherlich schuldet der Architekt eine genehmigungsfähige Planung. Aber ich habe zu oft erlebt, daß die Bauherren quasi eine Garage/Carport quasi für lau mitgeplant haben wollten, ohne Rücksicht auf Verluste. Was denn teilweise zu sowas geführt hat wie hier, oder GRZ überschritten usw. usw.

    Man muß hier erst mal ergründen, was genau beauftragt wurde. Denn der Kurs (und erst mit Keller, dann ohne Keller usw.) für 5.500 deutet nicht unbedingt auf einen freien Architekten hin. Da würde ich wirklich gern beide (!) Seiten hören....
     
  12. #32 maxbaut, 03.02.2025
    maxbaut

    maxbaut

    Dabei seit:
    01.02.2025
    Beiträge:
    13
    Zustimmungen:
    0
    Das war eine Planung für LP1-3 zum Festpreis für das Haus und die Garage, also keine HOAI
     
  13. #33 nordanney, 03.02.2025
    nordanney

    nordanney

    Dabei seit:
    15.09.2021
    Beiträge:
    6.467
    Zustimmungen:
    3.760
    Beruf:
    Finanzierer/Investor/Bau- und Sanierungslaie
    Ort:
    Niederrhein
    Damit also eine genehmigungsfähige Planung als "Ziel".
     
    maxbaut gefällt das.
Thema:

Baufenster und Grenzbebauung Neubaugebiet Bayern

Die Seite wird geladen...

Baufenster und Grenzbebauung Neubaugebiet Bayern - Ähnliche Themen

  1. Abriss-Neubau gilt altes Baufenster oder BayBau-O

    Abriss-Neubau gilt altes Baufenster oder BayBau-O: Guten Abend zusammen! Ich benötige Ihre Hilfe bzgl Verständnis des Beamtendeutsch im Bebauungsplan. Wir haben bereits einen uns bekannten...
  2. Baufenster überschreiten

    Baufenster überschreiten: Guten Morgen zusammen, Da ich leider nicht anderweitig zu dem Thema fündig geworden bin, hoffe ich, dass mir evtl. hier jemand eine Frage...
  3. Abweichung GRZ/Baufenster - Zustimmung Nachbar erforderlich?

    Abweichung GRZ/Baufenster - Zustimmung Nachbar erforderlich?: Hallo zusammen, wir planen auf dem Familiengrundstück in Mecklenburg-Vorpommern mit qualifziertem B-Plan von 2004 ein weiteres Einfamilienhaus...
  4. Baufenster Wochenendgebiet

    Baufenster Wochenendgebiet: Hallo allerseits, wir haben ein Grundstück mit Häuschen in einem Wochenendgebiet erworben. Das Gebäude welches daraf im Baufenster gebaut wurde...
  5. Grenzbebauung im Baufenster

    Grenzbebauung im Baufenster: Mein Grundstück misst 40x14 m. Für die Bautiefe gibt es durchlaufende Baugrenzen nach 6 und nach 24 m. Rechts und links ist demnach eine...