Bebauungsplan in Rastatt - Vogelsand

Diskutiere Bebauungsplan in Rastatt - Vogelsand im Architektur Allgemein Forum im Bereich Architektur; Hallo Leute, letztes Jahr im April haben mein Mann und ich ein Grundstück in Rastatt, besser gesagt Rauental Vogelsand gebiet gekauft. Nun wurden...

  1. #1 Blackstill, 07.02.2026
    Zuletzt bearbeitet: 07.02.2026
    Blackstill

    Blackstill

    Dabei seit:
    04.02.2025
    Beiträge:
    5
    Zustimmungen:
    1
    Hallo Leute,

    letztes Jahr im April haben mein Mann und ich ein Grundstück in Rastatt, besser gesagt Rauental Vogelsand gebiet gekauft. Nun wurden wir letzte Woche darauf angesprochen, dass wir unser Carport wie ursprünglich geplant war so nicht bauen dürften (Architekt der Firma Weiss) und zwar war geplant dass Carport ca 4m breite und 8 m länge, zum einen die 4m breite, weil in unseren Garten hinten dann noch ein Anhänger + ein Wohnwagen von Minatouring M22 seinen Platz finden soll. Begründung es würde so im Bebauungsplan unter Nebenanlagen stehen.

    Da haben wir dann folgenden Satz gefunden:

    Außerdem folgendes:

    Nun ist die Frage ob der Architekt nun damit recht hat?!? Weil wenn es nachdem vom Architekten geht, dürfte unser Carport dann nur maximal 3m länge und 3m breite haben. Was bei unseren jetzigen Auto maximal noch ca. 50cm vom Auto zur Eingangstür ausmacht. Also nicht einmal mehr Platz für Mülltonnen und co.
    Des weiteren haben wir 8m länge ursprünglich veranschlagt, dass wir zum einen noch unsere Fahrräder (E Roller) unterbringen können ohne dass sie im Nassen stehen.
    Da hat uns der Architekt ebenfalls darauf angesprochen und gemeint: wäre nicht zulässig.

    Gefunden habe ich daraufhin im Bebauungsplan folgendes:

    Nun hat uns damit natürlich der Architekt sehr verunsichert, in der Hinsicht: Wie groß darf unser Carport nun wirklich werden?!? ...

    Des weiteren habe ich noch eine Frage bezüglich "Kleintierhaltung" im allgemeinen. Und zwar besitzen wir auch 2 Wohnungskatzen, die mittlerweile 9 Jahre alt sind und in ihrem ganzen Leben noch nie eine Straße kennen gelernt haben, woraufhin wir sie in unseren Haus dann ebenfalls weiter drinnen behalten wollen, allerdings mit der Möglichkeit hinterm Haus in eine sogenannte "Voliere" zu gehen und damit ein wenig Natur haben. Darauf haben wir folgende Sätze im Bebauungsplan gefunden:

    außerdem:

    Ist damit auch eine Katzenvoliere gemeint?!? Weil Hühner oder sonstige Kleintiere besitzen wir ja nicht.

    Gruß Blackstill
     

    Anhänge:

  2. #2 ichweisnix, 07.02.2026
    ichweisnix

    ichweisnix

    Dabei seit:
    21.11.2022
    Beiträge:
    1.925
    Zustimmungen:
    733
    ???? Zeichnung?
     
  3. #3 Blackstill, 07.02.2026
    Blackstill

    Blackstill

    Dabei seit:
    04.02.2025
    Beiträge:
    5
    Zustimmungen:
    1
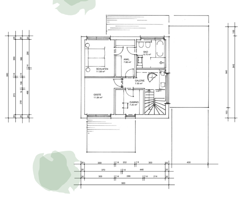
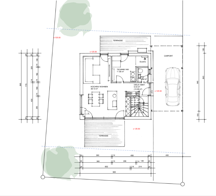
    So, hab soeben Zeichnungen von unseren ersten Archtiekt, mit denen wir dann zu den Fertighausbauern gegangen sind eingestellt + Bebauungsplan
     
  4. Pflunz

    Pflunz

    Dabei seit:
    14.08.2024
    Beiträge:
    85
    Zustimmungen:
    27
    Hast du noch dein Grundstück? Soweit ich das sehe gilt die Einschränkung nur, wenn die Garage ausserhalb der für Garagen eingezeichneten Fläche liegt.
     
    Dimeto und 11ant gefällt das.
  5. 11ant

    11ant

    Dabei seit:
    28.02.2017
    Beiträge:
    2.579
    Zustimmungen:
    1.624
    Beruf:
    Bauherrenberater
    Ort:
    RLP Nord
    Benutzertitelzusatz:
    bringt Sie gut beraten ins Eigenheim
    Ein Carport soll hier wohl im Baufenster des Hauses stehen und ist in diesem grundsätzlich grenzprivilegiert bis zu einer gewissen meist von der LBO vorgegebenen maximalen Gesamtlänge der Grenzbebauung, 8m Länge und 4m Breite kämen in die Ecke des Grundstückes gestellt (also an beide Grenzen anstoßend) somit auf 12m Gesamtlänge, was insoweit im Rahmen bleiben dürfte. Allerdings wird mit dem Caravan eine mittlere Höhe von 3m an der Nachbargrenze wohl leicht tangiert oder gar überschritten werden. Der Bebauungsplan will vermutlich hauptsächlich Gartenhäuschen in ihrem Gesamtvolumen begrenzen. Den Stubentigern jenseits der Katzenklappe eine "Voliere" auf die Terrasse zu stellen, würde ich nicht mit Hasen- und Hühnerställen gleichsetzen. Hier ist es vermutlich in anderen Stadtteilen bereits zur Störung des Nachbarfriedens gekommen, weil Gewohnheiten von Spätaussiedlern mit denjenigen der Eingeborenen kollidierten. Eine Anfeindung Eurer hierzulande üblichen Haustierhaltung sehe ich darin nicht. Sory, daß ich hier in meiner offenen pro bono Sprechstunde nicht auch noch Bebauungspläne en Detail durchlesen kann, das ist im Zweifel aber auch eher eine Anwaltsaufgabe.
     
    Dimeto und Pflunz gefällt das.
  6. #6 Blackstill, 07.02.2026
    Zuletzt bearbeitet: 07.02.2026
    Blackstill

    Blackstill

    Dabei seit:
    04.02.2025
    Beiträge:
    5
    Zustimmungen:
    1
    Doch ein Grundstück besitzen wir bereits. Und so haben wir es eben auch gelesen, bloß der eine besagte Architekt meinte, dass wir dies so verkehrt lesen würden. Und wenn jeder zweite etwas anderes darunter versteht, wird dies echt schwierig, welcher denn nun recht hat?!?

    Carport selbst wird eine Höhe von ca 2,50m ungefähr haben, da kommen wir locker mit unseren Wohnwagen drunter nach hinten in den Garten, ich glaube nicht mal 2m hat er in der Höhe. Wirklich nur ein Miniteil. Desweitern soviel wir wissen, müssen wir die 3m nur zu der Nachbarsgrenze (von vorne betrachtet) links zum Nachbarn einhalten und dies tun wir. Mit den Nachbarn rechts von uns hingegen teilen wir uns eine Zufahrt und somit steht hier Carport entweder an Garage oder Carport, je nachdem was der Nachbar baut.


    Nun ja, Stubentigern zählen ja seit ein paar Jahren in Deutschland eben zu Kleintieren, leider. Aber wenn du damit kein Problem siehst, werden es andere wohl auch nicht und damit freut es mich schon wieder für unsere Katzen, Danke.
     
  7. Pflunz

    Pflunz

    Dabei seit:
    14.08.2024
    Beiträge:
    85
    Zustimmungen:
    27
    Ich meinte damit, ob du den grafischen Teil für dein Grundstück hast. Wo beispielsweise Baufenster eingezeichnet ist.
     
  8. Dimeto

    Dimeto

    Dabei seit:
    22.07.2017
    Beiträge:
    1.635
    Zustimmungen:
    2.145
    Beruf:
    Vermessungsingenieur
    Ort:
    NRW
    Wenn damit gemeint ist, dass zusätzlich zum dargestellten Carport im EG-Grundriss ein weiterer Stellplatz außerhalb der überbaubaren Fläche geplant ist, dann hat der "neue" Architekt recht.
    Am besten zeigst Du mal den Lageplan vom ganzen Grundstück mit maßstäblicher und lagerichtiger Eintragung aller zur Zeit gewünschten Gebäude und Gebäudeteile. Und dann beschreibst Du, was genau der "neue" Architekt aus welchem Grund für unzulässig hält.
    Eine Garage, ein Carport oder ein Stellplatz ist keine Nebenanlage im Sinne des §14 BauNVO.
    Meines Erachtens ja. Die Begründung im BPlan ist allerdings sehr schwach und ich bezweifle, dass diese Festsetzung einer juristischen Überprüfung standhielte.
     
  9. #9 Kriminelle, 08.02.2026
    Kriminelle

    Kriminelle

    Dabei seit:
    16.05.2013
    Beiträge:
    3.839
    Zustimmungen:
    2.163
    Beruf:
    .
    Ort:
    Niedersachsen
    Bist Du sicher? Es gibt ja die kleinen Eribas mit ihren Hubdächern, aber auch die sind knapp 2,30 hoch. Und ein Carport nennt erst einmal zur Planung die äußeren Maße, nicht die inneren zur Durchfahrt.
     
    11ant gefällt das.
  10. ToTi

    ToTi

    Dabei seit:
    27.01.2025
    Beiträge:
    1.284
    Zustimmungen:
    745
    Beruf:
    Dachdecker
    Ort:
    Im Süden von Deutschland
    Wie wäre es, du rennst damit zum Baurechtsamt und fragst da nach, mit der Begründung dass ihr und der Architekt das unterschiedlich interpretieren und ihr selbstverständlich alles richtig machen wollt. Sollen die das doch mal zu erst erklären.
    Aber was ich noch viel faszinierender auf deinem Plan ist: DU HAST EIN VERDAMMTES GAMING-ZIMMER GEPLANT!!!!:respekt
    Da könnte ich echt neidisch werden!:cry
     
    Pflunz gefällt das.
  11. #11 driver55, 09.02.2026
    driver55

    driver55

    Dabei seit:
    22.02.2008
    Beiträge:
    6.933
    Zustimmungen:
    1.843
    Beruf:
    Dipl.-Ing.
    Ort:
    Pforzheim
    Dafür hat das Wohnzimmer gerade mal 10 qm und die Hälfte davon ist mit Couch belegt.:mega_lol:
     
  12. #12 VollNormal, 09.02.2026
    VollNormal

    VollNormal

    Dabei seit:
    20.11.2021
    Beiträge:
    4.227
    Zustimmungen:
    2.858
    Beruf:
    Bauingenieur
    Ort:
    Bochum
    Man muss halt Prioritäten setzen ...
    :28:
     
    ToTi gefällt das.
  13. #13 Fasanenhof, 09.02.2026
    Fasanenhof

    Fasanenhof

    Dabei seit:
    20.02.2023
    Beiträge:
    1.508
    Zustimmungen:
    850
    Beruf:
    Ing für Maschinenbau
    Ort:
    Norddeutschland
    In anderen Plänen steht da "Büro", "Studio", "Handarbeiten" oder "Hobbyraum". Er ist nur ehrlich.
     
  14. #14 Blackstill, 09.02.2026
    Blackstill

    Blackstill

    Dabei seit:
    04.02.2025
    Beiträge:
    5
    Zustimmungen:
    1
    Ziemlich sicher, der M22 Minatouring ist grade einmal 1,90m bis 2,15m hoch. Wir hatten uns den damals ausgesucht, da er uns legendlich zum schlafen dienem soll. Mittlerweile waren wir mit den auch schon in Schottland, England, Italien, Österreich und Niederlande. Und dass innerhalb von einen Jahr.

    Das Gamingzimmer gehört meinen Mann, ich hätte da lieber einen Hauswirtschaftsraum gehabt. Aber gut, somit bekomme ich oben im Flur meine Gallerie und mein Mann sein Gamingzimmer und gut ist.

    Geht leider nicht anders, da wir mittlerweile wirklich ein riesiges Sofa haben, wo wir beiden + 2 Katzen und ein Hund (Border Collie) Platz haben
     
  15. #15 Kriminelle, 09.02.2026
    Kriminelle

    Kriminelle

    Dabei seit:
    16.05.2013
    Beiträge:
    3.839
    Zustimmungen:
    2.163
    Beruf:
    .
    Ort:
    Niedersachsen
    :bef1003:
     
  16. #16 hanghaus2000, 11.02.2026
    hanghaus2000

    hanghaus2000

    Dabei seit:
    24.11.2021
    Beiträge:
    1.554
    Zustimmungen:
    656
    Beruf:
    Bauleiter, Kalkulator, Controller, Salzdesign
    Ort:
    Bayern
    Ich vermisse den Planteil des BBP. Nach der Textfassung kannst den CP so bauen.

    Zeigen die blauen Linien in der GR Zeichnung das Baufeld?
     
    11ant gefällt das.
  17. #17 Blackstill, 12.02.2026
    Blackstill

    Blackstill

    Dabei seit:
    04.02.2025
    Beiträge:
    5
    Zustimmungen:
    1
    Ja genau, die blauen Linien sind das Baufeld, die hatte ich komplett vergessen. Der Plan wurde direkt von einen Architeket so gemacht.
     
    hanghaus2000 gefällt das.
Thema:

Bebauungsplan in Rastatt - Vogelsand

Die Seite wird geladen...

Bebauungsplan in Rastatt - Vogelsand - Ähnliche Themen

  1. Rechtmäßigkeit Bebauungsplan - Einfriedungen

    Rechtmäßigkeit Bebauungsplan - Einfriedungen: !
  2. Befreiung vom Bebauungsplan; Garage

    Befreiung vom Bebauungsplan; Garage: Hallo zusammen, wir planen den Bau eines Einfamilienhauses innerhalb eines Neubaugebiets mit (neu aufgestelltem) Bebauungsplan. Es handelt sich...
  3. Bebauungsplan (4m Traufhöhe, 38 grad Sattel)

    Bebauungsplan (4m Traufhöhe, 38 grad Sattel): Hi, Ich überlege ein Grundstück zu kaufen, dass folgende Informationen im Bebaungsplan enthält (NRW): Vollgeschossanzahl: 1 Maximale Traufhöhe:...
  4. Bayern: Bebauungsplan nach Baugenehmigung

    Bayern: Bebauungsplan nach Baugenehmigung: Folgende Situation in Bayern: Ein Bebauungsplan tritt erst ca. 2 Monate nach der Baugenehmigung aber einige Monate vor Baubeginn in Kraft. Vorher...
  5. Bebauungsplan vs. Bauantrag - Was hat Vorrang?

    Bebauungsplan vs. Bauantrag - Was hat Vorrang?: Hallo zusammen, wir hoffen, dass die Schwarmintelligenz hier im Forum uns ein paar Denkanstöße zu folgenden Thema geben kann: Wir haben vor ein...