Bestandsgebäude EFH - Änderung Grundriss ?!

Diskutiere Bestandsgebäude EFH - Änderung Grundriss ?! im Architektur Allgemein Forum im Bereich Architektur; Guten Tag zusammen, ich würde gerne das Schwarmwissen nutzen und umsetzbare Ideen für die Anpassung der Raumaufteilung bzw. des Grundrisses mit...

  1. #1 FragenderNeuling, 02.01.2026
    Zuletzt bearbeitet: 03.01.2026
    FragenderNeuling

    FragenderNeuling

    Dabei seit:
    01.01.2026
    Beiträge:
    1
    Zustimmungen:
    0
    Guten Tag zusammen,

    ich würde gerne das Schwarmwissen nutzen und umsetzbare Ideen für die Anpassung der Raumaufteilung bzw. des Grundrisses mit dem Forum austauschen.
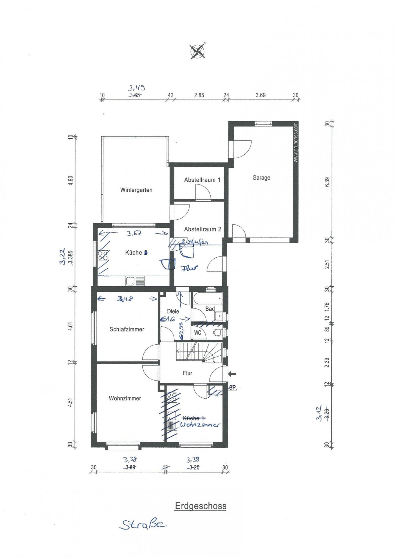
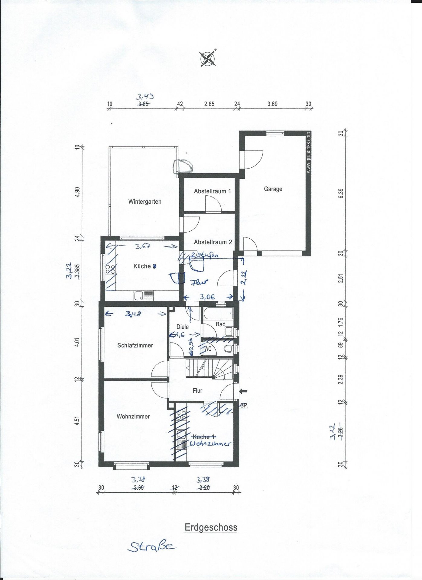
    Es geht um ein älteres (Einfamilien-) Haus.
    Die Maßangaben der Grundrisse sind nicht 100% genau, sollten jedoch für einen Überblick und eine Planung ausreichend sein.

    Die Immobilie besteht aus mehreren Teilen: EFH, daran angeschlossen ein Flachdach-Anbau mit Küche und Flur, daran ein ehemaliger Schuppen mit Küchenschränken sowie Spüle und Vorratsraum und Zugang zum Wintergarten. Garage direkt neben ehemaligen Schuppen. Die Innenliegenden Wand der Garage ist die des Schuppens und wahrscheinlich tragend. (Garage hat Betondecke). Grobe Einschätzung ob hier überhaupt eine Tür von Garage zum "Abstellraum 2" möglich wäre?

    - Derzeit gibt es 2 Eingänge in das Haus von der Auffahrt aus. Einer im EFH selbst, einer im Flachdach-Anbau.
    - Fußboden im Erdgeschoss (außer Wohnzimmer) Beton, Badezimmer und Wintergarten jeweils mit Fußbodenerwärmung).

    Meine Wünsche/Ideen:
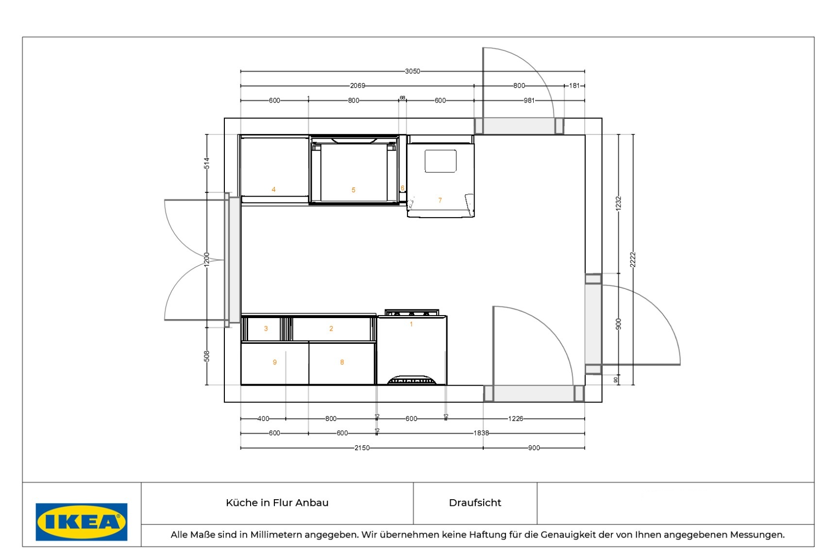
    - Größere Küche bzw. Esszimmer - dazu hinteren Flur als Küche verwenden und Küche als Esszimmer? Hinteren Zugang zum Haus durch Fenster ersetzen und dafür eine Tür von der Garage in den ehemaligen Schuppen (im Grundriss "Abstellraum 2") schaffen? Wäre die Küche dann groß genug (Raum "Flur" im Anbau ist ca. 3,05m in Querrichtung, 2,20m in Längsrichtung. > Küche nur im Raum "Flur" im Anbau wäre zu klein (siehe Screenshot Ikea Küchplaner)
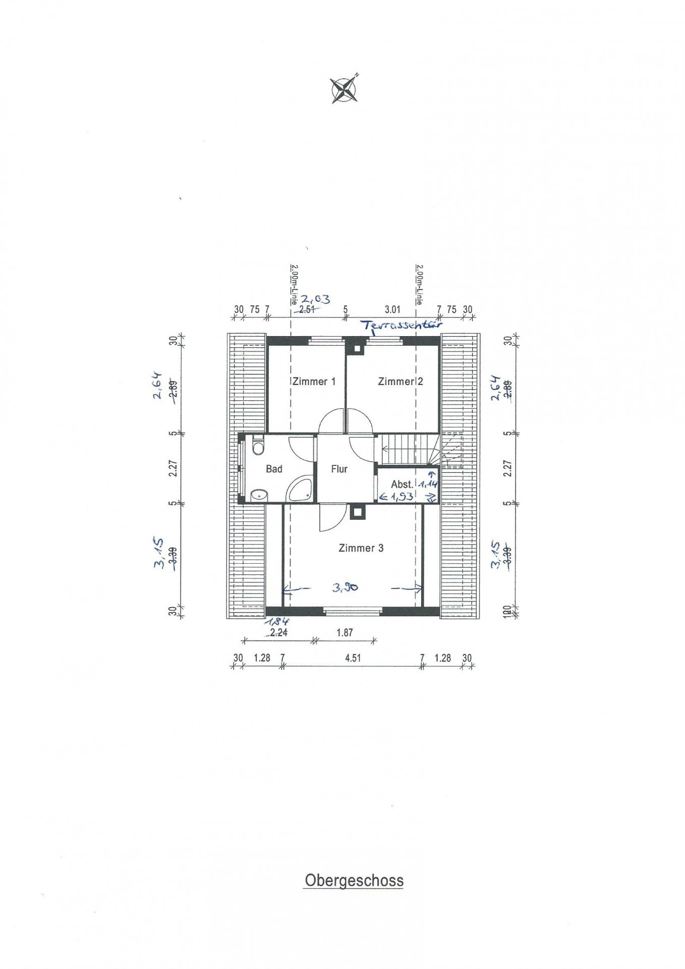
    - Unter dem Wohnzimmer befindet sich noch ein Kriechkeller, welcher zukünftig durch Betonfußboden ersetzt werden soll. (ggf. im gleichen Zuge das Wohnzimmer durch einen kleinen Anbau erweitern, um dieses etwas großzügiger zu gestalten? ca. 16 m² darf wg. Grundflächenzahl noch bebaut werden. Meinungen dazu?

    - "Abstellraum 1" sollte Vorratsraum bleiben. "Abstellraum 2" soll als HWR nutzbar sein.

    Was habt ihr für Ideen? Was würdet ihr bei dem bestehenden Grundriss ändern und warum?
    Planung sollte für einen 2-4 Personen Haushalt sein.
     

    Anhänge:

Thema:

Bestandsgebäude EFH - Änderung Grundriss ?!

Die Seite wird geladen...

Bestandsgebäude EFH - Änderung Grundriss ?! - Ähnliche Themen

  1. Abstandsflächen Bestandsgebäude bei Grundstücksteilung

    Abstandsflächen Bestandsgebäude bei Grundstücksteilung: Hallo, folgender Sachverhalt. Wir planen in Bayern auf dem Grundstück der Schwiegereltern zu bauen. Es soll eine Grundstücksteilung erfolgen...
  2. Fragen Trockenbau OG, Bestandsgebäude auf oder unter Estrich?

    Fragen Trockenbau OG, Bestandsgebäude auf oder unter Estrich?: Hallo, wir wollen das ganze OG unseres Einfamilienhauses mit ca 90 m² Bodenfläche im OG neu aufteilen, z.T. stehen dort noch gar keine Wände...
  3. Anschlussdetail Bodenplatte Zubau an Bestandsgebäude

    Anschlussdetail Bodenplatte Zubau an Bestandsgebäude: Servus, ich plane im Zuge der thermischen Sanierung des Bestandsgebäudes einen Zubau und bin mir hinsichtlich der Wärmedämmung und Abdichtung...
  4. Unsicherheit neue Heizung für Bestandsgebäude

    Unsicherheit neue Heizung für Bestandsgebäude: Hallo zusammen, ich nenne ein altes Dorfhaus, BJ 1905, mein Eigen. Grundfläche des Hauses (6m x 7m) entspricht der Grundstücksfläche, bereits...
  5. Neue Ölbrennwertheizung 2024 in Bestandsgebäude

    Neue Ölbrennwertheizung 2024 in Bestandsgebäude: Hallo, in Bestandsgebäuden soll es ja auch in 2024 möglich sein eine Ölheizung einzubauen, welche Voraussetzungen müssen erfüllt werden? Was...