Bewertung Grundriss HRB - 3 Kinderzimmer

Diskutiere Bewertung Grundriss HRB - 3 Kinderzimmer im Architektur Allgemein Forum im Bereich Architektur; Bitte einmal um ehrliches Feedback. Mich beschäftigt aktuell folgendes: Genügend Licht im Flur oben? Kein direktes Fenster vorhanden. Werden die...

  1. #1 GravityWST, 08.09.2020
    Zuletzt bearbeitet: 08.09.2020
    GravityWST

    GravityWST

    Dabei seit:
    08.09.2020
    Beiträge:
    70
    Zustimmungen:
    11
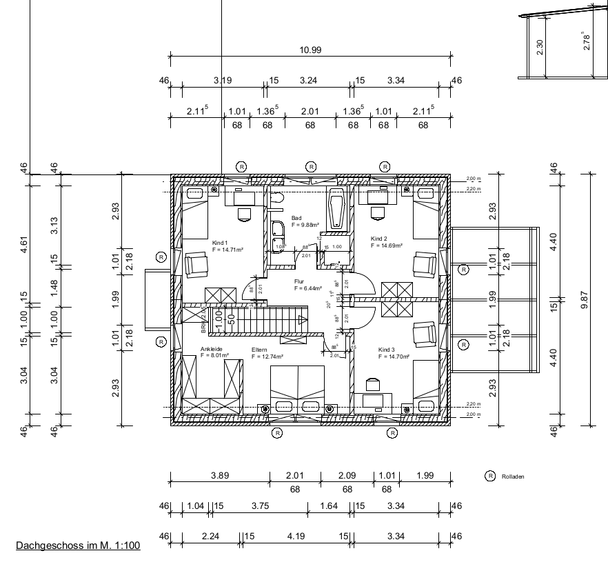
    Bitte einmal um ehrliches Feedback.
    Mich beschäftigt aktuell folgendes:

    Genügend Licht im Flur oben? Kein direktes Fenster vorhanden.
    Werden die Flügel von den 1.26m großen Fenstern (z.B. in den Kinderzimmern) zu weit in die Zimmer ragen? Alternative?
    Wäre ein Wäscheschacht vom Badezimmer in den HWR noch sinnvoll?

    Generell würde mich noch interessieren wie hellhörig dieser Aufbau wäre , aber dazu schreib ich dann noch in dem entsprechendem Unterforum.

    Anmerkung: Dort wo die Baulastfläche geplant ist, kann der Garten hinter der bestehenden Garage voll genutzt werden.
     

    Anhänge:

    • EG.png
      EG.png
      Dateigröße:
      129,4 KB
      Aufrufe:
      1.137
    • DG.png
      DG.png
      Dateigröße:
      179,4 KB
      Aufrufe:
      1.653
  2. #2 Kriminelle, 08.09.2020
    Kriminelle

    Kriminelle

    Dabei seit:
    16.05.2013
    Beiträge:
    3.668
    Zustimmungen:
    2.022
    Beruf:
    .
    Ort:
    Niedersachsen
    Ich fange mal da an, was mir als erstes aufgefallen ist:
    Erstmal ist es nämlich ein schön strukturierter Grundriss, der auf der Grundfläche passt.
    Leider sind einige Sächelchen zu überarbeiten (nach meiner Meinung), aber das ist hier einfach gemacht, da Kleinigkeiten, die aber viel bewirken.
    1. Grundsätzlich finde ich die meisten Fenster von der Breite her zu klein für dieses doch eher gösseren Hauses. So würde ich die Fenster wie zB Küche und Schlafräume, die jetzt 150er Breite haben, grundsätzlich auf 2 Meter verbreitern. Alles andere sieht fipsig aus.Die 126er Fenster würde ich dann als 100er Breite machen. Somit hast Du ein 100/200er Raster, welches modern aussieht und auch Licht bringt. Probleme mit übergrossen Fensterflügeln wirst Du dann nicht haben. Denn die würde ich vermeiden, da die Konstruktion der Fenster darunter schon sehr leiden könnten. Ich glaube, mehr als 100 gehen auch nicht.
    2. Abstellfläche! Ihr habt für 4/5 Personen viel zu wenig Abstellfläche. Schon allein der Garderobenschrank (der übrigens gut gelöst ist) ist aber zu klein. Ich würde ihn vertiefen und etwas von der Speis wegnehmen, sodass man in den Schrank hineingehen kann. Ggf sogar noch eine 60er Ausbuchtung des Schrankes innen Richtung links, sodass die Hochschränke der Küche von der Ausbuchtung geschützt sind (also quasi ein Hochschrank in der Garderobe)
    Der HWR muss dringend grösser. Das würde auch die zu große Fläche bzw Länge von 5,80 für den TV/Sofabereich kompensieren, also ich würde hier halben bis einem Meter opfern zugunsten des HWRs.
    3. Ja, 5,80 halte ich zum TV schauen zu weit, ist auch etwas ungemütlich auf der Länge. Denn so wie hier gibt es irgendwie kein WZ zum Chillen.
    4. Auch die Küche erscheint mir zu breit. Das sind doch mehr als 130 zwischen Insel und Zeile? Das halte ich für viel zu weit, würde da auf 110 oder 100 gehen. Charmanter wäre, die Insel etwas von der Wand weg zu stellen.
    5. Gefangene Ankleide habe ich noch nie verstanden. Man stört doch ständig den noch Schlafenden, wenn man da nochmal wieder rein muss. Auch ist der Weg ja nun nicht gerade kurz. Da würde Kind 3 mit dem SZ-Bereich tauschen und die Ankleide vor das SZ setzen.
    6. der Flur ohne Licht wäre dann auch mit einem Fenster von SW machbar.
    7. das Bad ist für 4 Personen zu klein. Da wäre mit dem Tausch SZ/K3 möglich, dass Bad etwas zu verbeitern und ggf auf Wunsch auch eine schöne begehbare Dusche einzubauen.

    8. Feintuning: in der Küche bitte keine Hochschränke links und rechts setzen wie in den 70ern, sondern zeitgemäß im Block.

    9. Schacht vom Bad in den HWR: dann würde ich die Außentür weglassen.
     
    11ant und GravityWST gefällt das.
  3. #3 GravityWST, 08.09.2020
    GravityWST

    GravityWST

    Dabei seit:
    08.09.2020
    Beiträge:
    70
    Zustimmungen:
    11
    Hey Kriminelle, danke für deine Hinweise.

    zu 1) das klingt nicht verkehrt, so könnte man die großen Flügel vermeiden. Das lassen wir evtl. mal so zeichnen.
    zu 2) Man könnte tatsächlich überlegen den Garderobenschrank Richtung Speisekammer zu vergrößern wenn dieser zu klein sein sollte, die von dir interpretierten Hochschränke sind ein Platzhalter für einen großen Kühlschrank nach amerikanischem Vorbild (Side-By-Side). Ich weiß nicht ob dann eine Ausbuchtung möglich ist.
    zu 3.) Das gezeichnete Sofa entspricht nicht dem realen Sofa, vielmehr ist es ein U-Sofa und ragt noch etwas über dem Mauervorsprung hervor. der Tisch wird bei Familienfeiern deutlich vergrößert, deswegen hatten wir den Platz extra etwas größer gelassen, bei vergrößertem Tisch bleiben von den 5,80 nicht mehr viel über. Warum muss der HWR größer? Um möglichen Stauraum zu erhöhen oder reicht dieser schlicht für Technik nicht aus? Könnte man sowas nicht sonst auf den Dachboden verlagern?
    zu 4) klingt gut, könnte man mal zeichnen lassen
    zu 5) Das Elternbett düfte dafür zu groß sein um das zu tauschen. Benötigen mind. 220x200 + Gestell
    zu 7) Macht es nicht Sinn die HWR Anschlüsse direkt unter dem Bad zu haben? Ansonsten könnten wir das zeichnen lassen.
    zu 8) klingt gut ;) Küche ist noch nicht geplant
     
  4. JPtm

    JPtm

    Dabei seit:
    10.05.2019
    Beiträge:
    995
    Zustimmungen:
    316
    Beruf:
    IT
    Ort:
    Thüringen
    Ich würde das obere Bad auf jeden Fal zweiteilen, in ein separates Wc und den Rest. Wenn Ihr da wirklich zu Fünft seid wollt ihr das defintiv nicht in einem Raum haben.
     
    11ant gefällt das.
  5. #5 driver55, 09.09.2020
    driver55

    driver55

    Dabei seit:
    22.02.2008
    Beiträge:
    6.840
    Zustimmungen:
    1.782
    Beruf:
    Dipl.-Ing.
    Ort:
    Pforzheim
    Kriminelle hat quasi schon alles gesagt!
    • Bei den wenigen Abstellmöglichkeiten platzt die Hütte schon beim Einzug aus allen Nähten
    • Flur dunkel
    • KiZi gibts keine Wände für einen Schrank
    • WoZi zu schmal, 4 m mindestens
    • Küche zu groß und unpraktisch
    • Essen dafür viel zu klein
    • Carport mit 5,5 m zu kurz
    • ...
     
    simon84 und 11ant gefällt das.
  6. 11ant

    11ant

    Dabei seit:
    28.02.2017
    Beiträge:
    2.459
    Zustimmungen:
    1.535
    Beruf:
    Bauherrenberater
    Ort:
    RLP Nord
    Benutzertitelzusatz:
    bringt Sie gut beraten ins Eigenheim
    [ich beschränke mich auf das "Unterschreiben" bestehender Beiträge mit "Likes", statt dasselbe doppelt zu sagen]
    Gibt es die Kinder (M/J?) alle drei schon und wie alt sind sie ?
    (Yvonnes Fragebogen könnte auch in diesem Forum nützlich sein)
    Ich verstehe kein Wort.
    Aus meiner Sicht hier kein wesentlicher Gewinn. Ich denke, im wesentlichen ist hier das beste rausgeholt.
     
    simon84 gefällt das.
  7. #7 GravityWST, 29.10.2020
    GravityWST

    GravityWST

    Dabei seit:
    08.09.2020
    Beiträge:
    70
    Zustimmungen:
    11
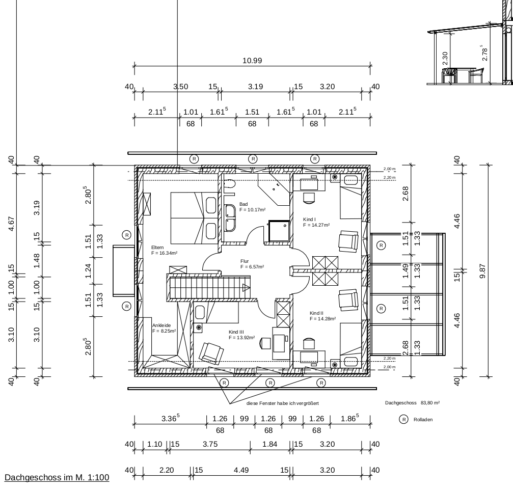
    Haben die Räume nochmal etwas angefasst:
    - Bei der Küche haben wir die Tür zur Terrasse gestrichen, laut Küchenbauer würde die nur stören bei Küchenarbeiten. Dafür Lichtband über Eck hinzugefügt.
    - Kind III mit Elternzimmer getauscht, über der Treppe ein Oberlicht hinzugefügt um auch Licht im Flur oben zu haben (zumindest etwas)
    - Fensterraster oben auf 100/200 getauscht
    - Ankleide soll gefangen bleiben
    - Kühlschrank wurde in die Speisekammer eingelassen (hier muss die Tür der SK aber wohl noch gedreht werden)
    - Außenwände wurden leider 6cm breiter (I-Ebene hinzugefügt)
    - Innenwände könnten noch auf 13cm (aktuell 15,5) schrumpfen (je nach Statik)
    - Entfernung TV <-> Couch soll bleiben damit bei Familienbesuch der Tisch ausgezogen werden kann. TV wird dann etwas größer (>= 77")
     

    Anhänge:

    • DG.png
      DG.png
      Dateigröße:
      121,1 KB
      Aufrufe:
      656
    • EG.png
      EG.png
      Dateigröße:
      179,7 KB
      Aufrufe:
      666
  8. #8 driver55, 29.10.2020
    Zuletzt bearbeitet: 29.10.2020
    driver55

    driver55

    Dabei seit:
    22.02.2008
    Beiträge:
    6.840
    Zustimmungen:
    1.782
    Beruf:
    Dipl.-Ing.
    Ort:
    Pforzheim
    Das ist minimal anders, aber kein bisschen besser! Wie auch? Die entscheidenden Räumlichkeiten sind unverändert. Ca. 19 qm Spk/Küche, verbleiben 26 für Wohnen/Essen!
    Du bekommst auf 8 m netto Küche/Essen/Wohnen nicht vernünftig gelöst. Platz von Couch zur "Glotze" kann nicht wirklich genutzt werden, dafür hast du um den Esstisch gerade mal 1 m Luft. Auch ist der "Saloon-Zugang" im Rücken suboptimal. Wozu eigentlich 2 Flügel?
    Wenn du bei diesem (schlechten) Grundriss bleibst, musst du jeden qm sinnvoll nutzen! z.B. Zugang Essen mit einer Türe (die links), dafür die Garderobe ums Eck verlängern...
    Die "Hütte" aber ist und bleibt für fünf Köpfe zu kompakt.

    Korrektur: Sind knapp 9 statt 8 m. Ändert aber insgesamt nicht viel an der Situation.
     
  9. 11ant

    11ant

    Dabei seit:
    28.02.2017
    Beiträge:
    2.459
    Zustimmungen:
    1.535
    Beruf:
    Bauherrenberater
    Ort:
    RLP Nord
    Benutzertitelzusatz:
    bringt Sie gut beraten ins Eigenheim
    Wären wir im orangen Forum, würde ich der TE empfehlen, mal bei Tolentino und Zaba12 hereinzuschauen - beide bauen zwar in Stein, was aber bei dieser Wandstärke nicht wirklich ins Gewicht fällt, und die Häuser haben ein ähnliches Format.
     
  10. #10 GravityWST, 29.10.2020
    GravityWST

    GravityWST

    Dabei seit:
    08.09.2020
    Beiträge:
    70
    Zustimmungen:
    11
    Nach hinten bin ich auf die 987cm beschränkt, und die Auffahrt würde ich ungern noch weiter verkleinern.

    was ist denn das orangen Forum? :)
     
  11. 11ant

    11ant

    Dabei seit:
    28.02.2017
    Beiträge:
    2.459
    Zustimmungen:
    1.535
    Beruf:
    Bauherrenberater
    Ort:
    RLP Nord
    Benutzertitelzusatz:
    bringt Sie gut beraten ins Eigenheim
    Das orange Forum ist das Hausbau-Forum (das ist orange, wo dieses hier grün ist), und da empfehle ich Dir die Häuser von Tolentino https://www.hausbau-forum.de/threads/lage-stadtvilla-oder-efh-auf-500-m2-rechteck.33505/ und Zaba12 Grundriss für 11m x 8,25m ok? einmal näher zu betrachten. Aber Vorsicht, da wird man vom Admin verwarnt, wenn man verrät, daß es im Internet hinter den sieben Bergen bei den sieben Zwergen auch noch andere Foren gibt, das orange Forum ist natürlich das allereinzigste auf der ganzen Welt (und wer es besser weiß, darf das nicht weitererzählen).
     
Thema: Bewertung Grundriss HRB - 3 Kinderzimmer
Besucher kamen mit folgenden Suchen
  1. efh grundriss 3 kinderzimmer

    ,
  2. grundriss 3 kinderzimmer

Die Seite wird geladen...

Bewertung Grundriss HRB - 3 Kinderzimmer - Ähnliche Themen

  1. Grundriss Bewertung

    Grundriss Bewertung: Hallo zusammen, wir wollen demnächst ein Haus bauen. Die Vorgabe ist ein staffelgeschoss. Wir haben bereits ein Grundriss erstellt, habt ihr...
  2. Grundriss Bewertung

    Grundriss Bewertung: 1. Wir sind: 2 Erwachsene (30-35 Jahre), 1 Kind + 1 geplantes Kind. 2. Unser Raumprogramm: Offener Wohn/ Essbereich mit Küche,...
  3. EFH- Grundriss Bewertung und Fragen

    EFH- Grundriss Bewertung und Fragen: Hallo zusammen, anbei mein Entwurf für ein Einfamilienhaus mit der Bitte um offenes Feedback und gerne auch Anregungen Kurze Infos: Der...
  4. Grundriss Bewertung

    Grundriss Bewertung: Hallo zusammen, endlich stehen uns die überarbeiteten Entwürfe zur Verfügung. Keller und Ansichten werden nach Freigabe der vorliegenden Geschosse...
  5. Bewertung Grundriss - Kleine Dachgeschoss-Wohnung

    Bewertung Grundriss - Kleine Dachgeschoss-Wohnung: Hallo zusammen, ich plane gerade einen möglichen Umbau des Dachgeschosses. In der Vergangenheit bestand das Dachgeschoss aus drei...