Bitte um Bewertung Entwurf EFH ohne Keller - Tipps+Hinweise; Garagendach,Fenster Heiz

Diskutiere Bitte um Bewertung Entwurf EFH ohne Keller - Tipps+Hinweise; Garagendach,Fenster Heiz im Architektur Allgemein Forum im Bereich Architektur; Bitte um Bewertung Entwurf EFH ohne Keller - Tipps und Hinweise; Garagendach, Heizungsraum und Fenster ? Hallo zusammen, ich möchte euch...

  1. sasa17

    sasa17

    Dabei seit:
    11.08.2014
    Beiträge:
    50
    Zustimmungen:
    1
    Beruf:
    KfZ-ler
    Ort:
    NRW
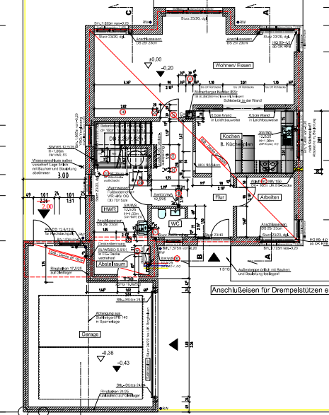
    Bitte um Bewertung Entwurf EFH ohne Keller - Tipps und Hinweise; Garagendach, Heizungsraum und Fenster ?


    Hallo zusammen,
    ich möchte euch gerne unsere Planung vorstellen und hören, was ihr davon haltet.
    (wir haben wirklich schon einige Stunden an Gedanken rein gesteckt und auch viele Tipps aus dem Bauexpertenforum einfließen lassen)

    Es handelt sich um das Grundstück Nr.1 und wir bauen in NRW.



    Wo seht ihr Potential, muss ggf. anders angesetzt werden oder was findet ihr gut und macht Sinn oder keinen Sinn?
    Für uns ist noch die Frage nach:

    - Fenster, insbesondere Esszimmer (Eckfenster) und die Frage nach den Fenstermaßen [brauche da eigtl. keins, aber dann sieht es opt. von außen nicht aus]

    - Das Dach der Garage gefällt mich nicht zu 100% - habt ihr ne Idee? (in der Mitte darf keine Decke sein auf einer Breite von 2m und 5m Tiefe)

    - Schlafzimmer: Zugang über Ankleide wäre mir am liebsten – lässt sich in der Form aber nicht realisieren – habt ihr Tipps?

    - Habt ihr Tipps für die Heizungsanlage? Geplant ist Erdwärme zu nutzen und die Anlage – falls möglich - unter die Treppe zu platzieren, um den toten Raum
    auszufüllen. Falls es kostentechnisch nicht passt würden wir auf Erdgas setzen.

    - Seht ihr Platzprobleme oder haben wir irgendwo Platz (Geld) verschenkt?



    Der Spitzboden soll später einmal ausgebaut werden, da wir ja keinen Keller haben. Größe ca. 35m²

    Vielen Dank für eure Hilfe!


    Falls ihr Fragen habt oder irgendetwas fehlt reiche ich das nach

    VG
    sasa
     

    Anhänge:

  2. sasa17

    sasa17

    Dabei seit:
    11.08.2014
    Beiträge:
    50
    Zustimmungen:
    1
    Beruf:
    KfZ-ler
    Ort:
    NRW
    Ansichten.jpg Nordansicht.jpg Nordwestansicht.jpg Schnitt   C-C.jpg Schnitt  C-C.jpg Schnitt C-C.jpg
     
  3. sasa17

    sasa17

    Dabei seit:
    11.08.2014
    Beiträge:
    50
    Zustimmungen:
    1
    Beruf:
    KfZ-ler
    Ort:
    NRW
    Nordansicht.jpg Südostansicht.jpg Südwestansicht.jpg
     
  4. #4 driver55, 23.04.2017
    driver55

    driver55

    Dabei seit:
    22.02.2008
    Beiträge:
    6.938
    Zustimmungen:
    1.843
    Beruf:
    Dipl.-Ing.
    Ort:
    Pforzheim
    Trotz Sehhilfe kann ich nichts erkennen...
     
  5. #5 simon84, 23.04.2017
    simon84

    simon84
    Moderator

    Dabei seit:
    11.11.2012
    Beiträge:
    23.325
    Zustimmungen:
    6.939
    Beruf:
    Schrauber
    Ort:
    Muenchen
    Finde die Fassade wirkt mit den Fenstern extrem chaotisch, unruhig.
    Die Fenster passend mMn überhaupt nicht zusammen.

    Was sehr ihr als Vorteil von den ganzen Eckfenstern ?
    Warum nicht einfach normale auf der Südseite bzw. Nordseite im Arbeitszimmer und das dann passend zu denen darüber?

    Da könnt ihr sicher Geld sparen.
    Und das Giebelfenster im Dach würde ich auch sparen.

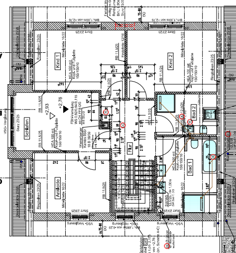
    Der "Bunker" mit Gaube oben bis ins Schlafzimmer wirkt zu fett. Geht das nicht filigraner?
    Warum nicht mit Satteldach ?

    Sicher auch alles Geschmackssache !

    Zur Heizungsanlage kann ich nur sagen, plant das sauber durch.
    Egal ob "Erdwärme" oder Gas, viel wichtiger ist eine saubere Heizlastberechnung und Planung.
     
  6. #6 vollmond, 23.04.2017
    vollmond

    vollmond

    Dabei seit:
    18.12.2012
    Beiträge:
    925
    Zustimmungen:
    134
    Beruf:
    PL
    Ort:
    Würzburg
    Haus 90 Grad drehen, den Flur zur Garage streichen, Garage 50cm breiter, das Haus 1m nach Norden schieben.
    Danach Zimmer neu würfeln.....

    Ein Elternbad macht nur Sinn wenn man einen direkten Zugang vom SZ hat.
     
  7. sasa17

    sasa17

    Dabei seit:
    11.08.2014
    Beiträge:
    50
    Zustimmungen:
    1
    Beruf:
    KfZ-ler
    Ort:
    NRW
    Ich konnte es bei mir ganz gut erkennen, nur leider scheint sich das durch das hochladen geändert zu haben. Ich werde es mal mit ner PDF probieren.

    Ich glaube auch, dass ich es falsch eingestellt habe - gehört es hier rein?
    http://www.bauexpertenforum.de/forumdisplay.php?22-Architektur-Allgemein
    ..dann setzte ich da mal ein Querverweis
     
  8. sasa17

    sasa17

    Dabei seit:
    11.08.2014
    Beiträge:
    50
    Zustimmungen:
    1
    Beruf:
    KfZ-ler
    Ort:
    NRW

    Besten Dank erst einmal.
    Die Fenster sind generell noch nicht gesetzt.

    Eckfenster wg. Lichteinfall.
    Ähmm, darüber? da ist doch das Dach auf den Seiten.
    Was dabei gedacht wurde:
    Im Südosten ist das Problem, dass der TV noch an die Wand soll/ generell keine Stellfläche sonst vorhanden ist. Im SW wird es eine Eck-Terrasse (nicht eingezeichnet) geben, daher dann auch noch einmal die Möglichkeit von der Küche aus hinauszugehen.

    Südseite - wie geschrieben - bin ich mir ja selbst nicht sicher mit. Im Norden - Arbeitszimmer - finde ich es nicht so verkehrt. Größe ist halt noch nicht definiert.

    Westseite, mittig, ist das Küchenfenster. Es soll mittig sitzen, ist dort noch falsch aufgeführt.

    Warum das Giebelfenster weglassen, um dort allein mit Lampen zu leben? Was ist der Sinn?

    Die Gaube wollte gerne die Frau. Über die Maße kann man streiten, hatte der Architekt nach Verhältnis berechnet - was wäre denn Dein optimales Längenverhältnis?

    Die Heizlastberechnung und Planung nimmt natürlich auch noch einmal der Heizmann auch noch einmal vor. Frage meinerseits ist natürlich wo man die Anlage sinnvoll platziert?
     
  9. sasa17

    sasa17

    Dabei seit:
    11.08.2014
    Beiträge:
    50
    Zustimmungen:
    1
    Beruf:
    KfZ-ler
    Ort:
    NRW
    Hätte dann aber auch weniger Garten, warum?


    Geht wegen der Baugrenze nicht!

    Das Ki-Bad wird später erst ausgebaut. Mit kleinen Kindern wollten wir nicht erst immer durch das SZ mit denen (war ganz zu Beginn auch erst die Überlegung, haben uns dann aber andere Eltern von abgebracht. Finde ich sinnvoll auf dem 2. Blick der Betrachtungsweise. Einzig das mit dem Zugang zum SZ gefällt mir nicht)
     
  10. #10 sasa17, 24.04.2017
    Zuletzt von einem Moderator bearbeitet: 19.09.2018
    sasa17

    sasa17

    Dabei seit:
    11.08.2014
    Beiträge:
    50
    Zustimmungen:
    1
    Beruf:
    KfZ-ler
    Ort:
    NRW
    so hier mal die PDFs, damit sollte es besser gehen.
     

    Anhänge:

  11. 11ant

    11ant

    Dabei seit:
    28.02.2017
    Beiträge:
    2.583
    Zustimmungen:
    1.626
    Beruf:
    Bauherrenberater
    Ort:
    RLP Nord
    Benutzertitelzusatz:
    bringt Sie gut beraten ins Eigenheim
    Gibt es evtl. eine Möglichkeit, Bilder als "Vollbild" hochzuladen ? - auf den PDF´s erkennt man immerhin etwas, aber das Hin und Her zwischen Browser und mehreren PDF´s ist etwas mühselig.

    Ich schau´s mir die Tage ´mal an. Spontan erst´mal: warum kann sich die Garage nicht entscheiden ? - dieser Zwitter aus Satteldach vorn und Walmdach hinten sieht sehr gewöhnungsbedürftig aus. Gleiche Dachformen für Haupt- und Nebengebäude wirken harmonischer, ibs. wo ja auch die Firstrichtungen gleich sind.

    Im PDF ist der Grundriß schön genordet, dafür stehen die Maßzahlen kopf - umgekehrt ist es angenehmer zu lesen.
     
  12. #12 Leser112, 24.04.2017
    Leser112

    Leser112

    Dabei seit:
    23.12.2016
    Beiträge:
    1.843
    Zustimmungen:
    254
    Beruf:
    Dipl.-Ing., TGA Planer
    Ort:
    Berlin-Brandenburg
    Benutzertitelzusatz:
    Energieeffizienzexperte
    Nur zur Heizung:
    Vielleicht hier mal Lesen:
    http://www.bauexpertenforum.de/show...nierungsnotwendigkeiten-f%FCr-Heizungsanlagen

    Für die Wahl des Wärmeerzeugers:
    Ist der Baukörper weitestgehend definiert, zunächst den tatsächlichen Energie- und Leistungsbedarf für Heizung und WW von einem Profi feststellen lassen (Grundlagenermittlung).
    http://www.bauexpertenforum.de/showthread.php?100736-EnEV-h%E4ufig-missverstanden

    Bei GBW wird es ohne zusätzliche STA, die in EFH meist unwirtschaftlich ist, wohl nicht gehen.
    Falls SWP, zunächst die untere Wasserbehörde kontaktieren, ob überhaupt genehmigungsfähig. Dabei beachten, dass Betriebsgenehmigungen zunehmend meist nur noch befristet erteilt werden (Planungssicherheit).
    Mit hoher Wahrscheinlichkeit kann auch eine vollmodulierende LWP wirtschaftlich sinnvoll sein.
    Bei WP insgesamt auf Qualitätskriterium VDI 4645 achten! Danach müssen Heizflächen und Hydraulik wärmepumpenfreundlich dimensioniert werden.
    Diese gesamte Angelegenheit eher einem externen Profi überlassen, der auch für die Anlagenaufwandszahl eine Verantwortung übernimmt, und nicht einfach ahnungslos auf den verkaufenden Heizungsbauer vertrauen, welcher lediglich fürs „warm machen“ geradesteht.

    Wichtig auch: KWL m WRG vorgesehen?

    NB: Unter die Treppe gehört eine Heizungsanlage sicher nicht hineingewürgt!
    [​IMG]
     
  13. #13 Andybaut, 24.04.2017
    Andybaut

    Andybaut

    Dabei seit:
    02.04.2015
    Beiträge:
    5.127
    Zustimmungen:
    329
    Beruf:
    Architekt
    Ort:
    Baden-Württemberg
    ganz andere Frage :-)
    für mich sieht das nach Werkplänen, zumindest aber sehr detaillierten Eingabeplänen aus.
    Bischen spät nun noch was zu verändern !?
     
  14. #14 simon84, 24.04.2017
    simon84

    simon84
    Moderator

    Dabei seit:
    11.11.2012
    Beiträge:
    23.325
    Zustimmungen:
    6.939
    Beruf:
    Schrauber
    Ort:
    Muenchen
    Ich meinte z.B. das Eckfenster in der TV Ecke weglassen und dafür in die östliche Außenwand, bündig und gleiches Format mit dem Fenster der Ankleide darüber.
    So wie das jetzt geplant ist kann man sowieso keinen Film schauen ohne Genickstarre zu bekommen. Würde den TV eher an die nördlich oder südlich Wand hängen, vielleicht passt dann ein längeres Sofa oder eins mit Ecke und ihr braucht nicht die Doppelsitzgruppe.

    Hätte auch den Vorteil dass man bei nicht TV schauen Richtung Garten/Terrasse blickt.
    Finde ich persönlich schöner und praktischer, Kinder beaufsichtigen z.B.

    Genau das gleiche auf der Westseite beim Tischbereich.

    Im Arbeitszimmer würde sicher auch ein normales Fenster zur Einfahrt reichen (Kosten sparen und für anderes verwenden).
    Dann schaut automatisch das hochgezogene Küchenfenster auch nicht mehr so schepps aus.

    Das Treppenhausfenster würde ich entweder ganz weg
    oder nur unten bündig mit dem Wohnzimmer Fenster,
    und oben wie gesagt Dachfenster statt Giebelfenster.

    Im HWR die gleiche Höhe für das Fenster wie im Arbeitszimmer.

    Ich denke ihr wollt viel Licht und Ausblick.
    Zu der Gaube sag ich mal so.
    Wenn ihr die Gaube komplett weglassen würdet, könntet ihr euch von dem gesparten Geld warscheinlich auch eine 5,6,7 Meter Glasfront unten einbauen auf der Länge der Terrasse und oben ein grosses oder evtl sogar Panorama Dachfenster.

    Bringt die Gaube euch wirklich so viel?
    Finde Bett unter oder bei Dachschräge bei 42 Grad kein Problem!
    Der gewonnene Platz wirkt verschwendet mit dem Nachtkästchen

    Giebelfenster meinte ich nicht ersatzlos streichen :)
    Bei 35qm nutzbarer Fläche kann man jetzt schon eine grobe Skizze machen wie das später aussehen soll.
    Also Treppenhaus, Bad, Anschlüsse usw. sind bekannt, danach kann man die Räume ausrichten.

    Lieber jetzt schon die 2-3 Dachfenster einbauen, dann hast du danach keinen Ärger mit Mehrkosten durch nachträglichen Einbau (Dämmung, Anschlüsse usw.)

    Und du sparst dir die (mMn potthässlichen) Giebelfenster.

    Ich finde ein Giebefenster sieht nur bei bestimmten Kombinationen gut aus, z.B. als Dreieck oder mit feststehendem Teil bis oben gezogen.
    So ein "Viereck im Dreieck" finde ich einfach gräuslig.

    Wie gesagt, vieles ist natürlich auch Geschmackssache und ihr werdet euch schon was gedacht haben, aber nur mal so ein paar Ideen.
     
  15. 11ant

    11ant

    Dabei seit:
    28.02.2017
    Beiträge:
    2.583
    Zustimmungen:
    1.626
    Beruf:
    Bauherrenberater
    Ort:
    RLP Nord
    Benutzertitelzusatz:
    bringt Sie gut beraten ins Eigenheim
    Mir gefällt der Grundriß des EG mit Ausnahme des winzigen Büros und der Eck-Fensterlagen sehr gut, aber das OG und mindestens die Firstrichtung - aber auch die Dachform(en) - nicht.

    Im wesentlichen würde ich mich

    gerne anschließen, allerdings fürchte ich, daß an

    "etwas wahres dran ist".

    Also - außer uns früher zu "beteiligen" - wären mehr Infos zum Bebauungsplan schön gewesen, u.a. zu Anforderungen an das Dach.

    Der Grundriß (EG) hat eine angenehme Klarheit, die m.E. nach Flachdach schreit (was ganz andere Möglichkeiten für das OG ergäbe).

    Meine Begeisterung für die Halbmeter-Burgmauern hält sich in Grenzen. Und ohne Keller würde ich nicht alles Abzustellende unters Dach schleppen mögen.
     
  16. #16 driver55, 24.04.2017
    driver55

    driver55

    Dabei seit:
    22.02.2008
    Beiträge:
    6.938
    Zustimmungen:
    1.843
    Beruf:
    Dipl.-Ing.
    Ort:
    Pforzheim
  17. #17 driver55, 24.04.2017
    driver55

    driver55

    Dabei seit:
    22.02.2008
    Beiträge:
    6.938
    Zustimmungen:
    1.843
    Beruf:
    Dipl.-Ing.
    Ort:
    Pforzheim
    Sieht doch ganz ordentlich aus:
    * Haustüre zu klein, oder alle anderen zu groß...
    * die Türe zur Küche ist natürlich äusserst ungeschickt vor den Küchenschränken...
    * die "1 m - Warze" ist wie immer Geschmacksache (Ausser Mehrkosten keinen wirklichen Mehrwert)

    ...ansonsten schliesse ich mich den Ausführungen von 11ant an. Büro reicht aber. Meins ist noch kleiner.:biggthumpup:

    Ach ja, den Flur in die Garage kannst dir fast sparen. Besteht doch nur aus 2 Türen. --> HWR vergrößern. (Natürlich Wandstärken entspr. anpassen; Thermische Hülle...)
     
  18. #18 petra345, 24.04.2017
    petra345

    petra345

    Dabei seit:
    17.02.2017
    Beiträge:
    5.207
    Zustimmungen:
    1.015
    Beruf:
    Ing. plus B. Eng.
    Ort:
    Rhein-Main-Gebiet
    Benutzertitelzusatz:
    Ing.(grad.) plus B. Eng.
    Auf den (ursprünglichen ) Plänen ist fast nichts zu erkennen.

    Aber die Treppe könnte man als Fertigtreppe erstellen und auf entsprechenden Schalldämmungen auflagern.
    Auf einer derartigen Fertigtreppe kann man sehr schön die Holzstufen auflegen.
    Problem ist das Gewicht der Fertigtreppenteile und die Kosten des Einlegens.

    Diese Eckfenster der Architekten "liebe" ich. Viel Bewehrungsaufwand und Rechnerei aber wenig Nutzen.
     
  19. #19 sasa17, 18.09.2018
    Zuletzt von einem Moderator bearbeitet: 19.09.2018
    sasa17

    sasa17

    Dabei seit:
    11.08.2014
    Beiträge:
    50
    Zustimmungen:
    1
    Beruf:
    KfZ-ler
    Ort:
    NRW
    Hallo zusammen,

    leider bin ich länger erkrankt und musste mich einigen Operationen unterziehen.

    Dennoch möchte ich mich abermals bedanken!! - wir haben noch einiges umsetzen können.
    Viele Sachen gingen auch einfach nicht anders => Bebauungsplan, Gegebenheiten, etc.
    ( Abstand Garage - Haus, Garagendach und Flachdach,..)

    Einige Änderungen:
    Das Eckfenster im WZ entfällt – nun im Süden hochgesetzt, TV nach Süden, der HWR ist ein großer Raum, garage und Abstellraum ist ein großer Raum, Erdwärme + WP via 2 Bohrungen, Die gaube wollte die Frau, Arbeitszimmer sollte nicht zu groß werden, Bad OG wurde neu angeordnet, Treppe massiv mit Holzstufen, Schlafzimmer umgestaltet, Küche – Schiebetür, WZ – Glastür, Küche-EZ Doppelschiebetür, Hausausrichtung = extra gewählt, wg. Süd/West, Heizungsbauer haben wir einen guten bekommen = alles schön berechnet, HKs gleich lang und nicht zu lang, Tür HWR versetzt

    Im Nachhinein hätten wir nen paar Sachen anders gemacht, aber gut, muss man mit Leben => Optik vs. Nutzen.

    Was ich nicht verstehen konnte. „NB: Unter die Treppe gehört eine Heizungsanlage sicher nicht hineingewürgt!“ 5m² oben + unten mehr nur für die Anlage, hmm

    Ne WRL ist nicht gekommen. Stein wurde ein 42,5er ohne Füllung,

    Was ich gut verstehen konnte: „Hätte auch den Vorteil dass man bei nicht TV schauen Richtung Garten/Terrasse blickt.“ => wurde nun so gemacht


    Fragen die wir zur Zeit noch haben
    1) Gartengestaltung und Einfahrt = wegen Eckgrundstück
    2) FBH auf dem Spitzboden (Aufbauart, ab OSB-Platte => da gibt es wohl verschiedene Möglichkeiten)
    3) Dachflächenfenster Süden?
    4) PV komplett auf Südseite (Kabel liegen bereits unter dem Dach)
     
  20. sasa17

    sasa17

    Dabei seit:
    11.08.2014
    Beiträge:
    50
    Zustimmungen:
    1
    Beruf:
    KfZ-ler
    Ort:
    NRW
    so, nun noch einige Bilder - aber auch nicht alle aktuell (Fenster Süden, Terrasse soll Eckterasse werden,..)
     

    Anhänge:

    • Ansichten.PNG
      Ansichten.PNG
      Dateigröße:
      353,4 KB
      Aufrufe:
      435
    • DG.PNG
      DG.PNG
      Dateigröße:
      97,2 KB
      Aufrufe:
      397
    • EG.PNG
      EG.PNG
      Dateigröße:
      124,7 KB
      Aufrufe:
      512
    • Lageplan.PNG
      Lageplan.PNG
      Dateigröße:
      138,5 KB
      Aufrufe:
      408
    • OG.PNG
      OG.PNG
      Dateigröße:
      123,1 KB
      Aufrufe:
      408
    11ant gefällt das.
Thema: Bitte um Bewertung Entwurf EFH ohne Keller - Tipps+Hinweise; Garagendach,Fenster Heiz
Besucher kamen mit folgenden Suchen
  1. betontreppen statik

    ,
  2. Betontreppe statik

    ,
  3. haus schnitt dachfenster

    ,
  4. garagedach als terrasse grundriss maße
Die Seite wird geladen...

Bitte um Bewertung Entwurf EFH ohne Keller - Tipps+Hinweise; Garagendach,Fenster Heiz - Ähnliche Themen

  1. Blasige Teilablösungen von Attikas (bitte um Wissen & Bewertung)

    Blasige Teilablösungen von Attikas (bitte um Wissen & Bewertung): Guten Tag, Ich habe ein Satteldachhaus gebaut. Die Dachneigung ist 50°. An den beiden Gibelseiten befinden sich Attikas, die das Mauerwerk...
  2. Bitte um Einschätzung/Bewertung der Architektenarbeit bei Haussanierung

    Bitte um Einschätzung/Bewertung der Architektenarbeit bei Haussanierung: Hallo Community, meine Haussanierung läuft seit 1/2022, und wird seitdem auch von einem Architekten begleitet. Es war ein beschwerlicher Weg,...
  3. Fenstertausch, bitte um Bewertung der Angebote

    Fenstertausch, bitte um Bewertung der Angebote: In der Kategorie Altbau gibt es die Rubrik Fenster nicht, daher poste ich das hierher. Wenn es falsch ist, bitte verschieben. Ich plane mein Haus...
  4. Angebote LWWP bitte um Bewertung

    Angebote LWWP bitte um Bewertung: Hallo zusammen, ich habe mich in diesem Thread Entscheidungshilfe neuere Gasheizung gegen LWP ablösen wg. "Gaskrise"beraten lassen bzw. auch im...
  5. Grundriss EFH 2 Vollgeschosse- bitte bewerten!

    Grundriss EFH 2 Vollgeschosse- bitte bewerten!: Hallo, so sieht unser Hausprojekt aus: - Grundstück 500m², Nordseite=Straßenseite, etwas geringe Grundstücksbreite ca. 17,50m - gewünschte...