Dach auf quadratischen Grundriss

Diskutiere Dach auf quadratischen Grundriss im Architektur Allgemein Forum im Bereich Architektur; nicht nur der angehängte appendix, wird wie ein pickel auf der backe sein. auch vieles andere. ein pickel im gesicht kann man mal eben so...

  1. Baumal

    Baumal

    Dabei seit:
    02.08.2007
    Beiträge:
    16.077
    Zustimmungen:
    8
    Beruf:
    Architekt
    Ort:
    Ravensburg
    nicht nur der angehängte appendix, wird wie ein pickel auf der backe sein.
    auch vieles andere.

    ein pickel im gesicht kann man mal eben so ausdrücken, das gute an
    an solch einem pickel ist, er kommt nicht mehr wieder.

    im gegensatz zu den pickeln, mit dem dieser entwurf leben muß,
    denn diese pickel begleiten ein leben lang.
     
  2. #62 Mathias1980, 23.01.2013
    Mathias1980

    Mathias1980

    Dabei seit:
    21.09.2011
    Beiträge:
    369
    Zustimmungen:
    1
    Beruf:
    Dipl.-Ing. Maschinenbau
    Ort:
    Halle
    Hallo und danke für die Meldungen:
    @rolf a i b:
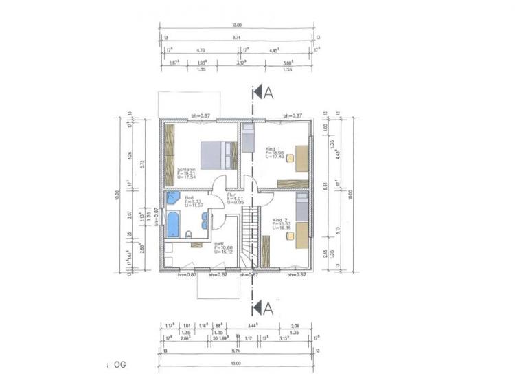
    der angehängte appendix als eingang mit flacher pseudo-garderobe wird sich bewähren, der wird euch als hindernis begleiten!
    => Du würdest also auf den Windfang verzichten? Innenliegender Windfang wäre mir auch viel lieber, aber es passt nicht und wir haben nur das 10 x 10 Baufeld. Unser Architekt sieht keine Alternative

    das eg wirkt unbeholfen und lieblos, erkennbar am kleinen versrung der längswand küche + flur und essraum + wohnraum sowie an der tür zum wohnraum ´unter´ der treppe.
    => Ich habe das auch angesprochen, aber Küche hat eine Breite von 3m und Esszimmer 3,26m, folglich würde bei Anpassung Küche an Esszimmer der Flur von 2,9m auf 2,64m schrumpen und dann funktioniert die Treppe und die Hauseingangstür nicht mehr. (?)

    @baumal:
    Bitte mal weg von der "Akne" und hin zum Haus. Vorschläge? Was ist so negativ / unpraktisch an dem Windfang?

    Anbei bessere Darstellungen:

    Folie1.jpg Folie2.jpg Folie3.jpg
     
  3. ypg111

    ypg111 Gast

    Wozu denn überhaupt einen Windfang? Ihr habt einen geschlossenen Flur.
    Bei dem heutigen Standard ist der wohl überflüssig
     
  4. Baumal

    Baumal

    Dabei seit:
    02.08.2007
    Beiträge:
    16.077
    Zustimmungen:
    8
    Beruf:
    Architekt
    Ort:
    Ravensburg
    die akne kommt im eingansbereich zum vorschein triit, in der eszimmerecke wieder aus.
    völligst lieblos dahingepinselt. wo brauch ich noch ein wenig m² ? hier und da, auh ja,
    dann häng ich halt noch ein ein paar pickel oder warzen ans haus.

    aber deinen entree, also zugang zu wohnzimmer und arbeitszimmer, küche, hast du dir schon einmal in 1:1 vorgestellt?
     
  5. #65 Mathias1980, 23.01.2013
    Mathias1980

    Mathias1980

    Dabei seit:
    21.09.2011
    Beiträge:
    369
    Zustimmungen:
    1
    Beruf:
    Dipl.-Ing. Maschinenbau
    Ort:
    Halle
    @Baumal:
    Anbau an Esszimmer: zulässige Überschreitung der Baugrenze (auf einem Drittel der Gesamtlänge)
    Windfang: hielt ich immer für praktisch
    Esszimmerecke: okay (ich bin Laie) , Begründung: s.o.

    aber deinen entree, also zugang zu wohnzimmer und arbeitszimmer, küche, hast du dir schon einmal in 1:1 vorgestellt?
    Ja (war in einem ähnlichen Haus), ich fand es okay. (Vielleicht habe ich zu wenig Geschmack und denke da ganz praktisch... keine Ironie, ernst gemeint), deshalb habe ich ja einen Architekten.
     
  6. #66 Gast036816, 23.01.2013
    Gast036816

    Gast036816 Gast

    deine hausundwindfangtür ist mit 1,01 m geplant. bei normalen haustüren mit offenstehendem flügel bei 90° hast du gerade mal einen lichten durchgang von 85 cm und dann dieser windfang mit leicht versetzten türen. ihr werdet euch ärgern. mach die türen 1,26 m im rohbau breit, damit ein vernünftiger durchgang entsteht.

    jetzt beiss dich nicht an dem bestehenden entwurf fest und sag nicht, dass eine wand nicht verschoben werden kann. wenn das nicht geht, muss man mal den entwurf beiseite schieben und einen neuen machen. wenn etwas schlecht ist, muss man keine begründung suchen, warum es schlecht bleiben muss. geht nicht geht beim entwerfen nicht, wenn es bessere lösungen gibt. außerdem stehen die 17,5-er wände im eg und og sowieso nicht übereinander, da kann ich deiner argumentation erst recht nicht folgen.
     
  7. Baumal

    Baumal

    Dabei seit:
    02.08.2007
    Beiträge:
    16.077
    Zustimmungen:
    8
    Beruf:
    Architekt
    Ort:
    Ravensburg
    dein windfang ist mit 1,76m "geplant".
    das ist gelinde gesagt, eine lachnummer.

    schnapp dir mal einen zollstock und meß mal
    ein lichtes innenmaß von 1.76m nach.
    abzüglich ca. 60cm. garderobe und ca 1.26m eingangstür.
    viel spass damit!

    seis drum.

    szenario:
    man betritt aus diesem windfang das gebäude.
    alle türen zu allen räumen stehen nicht offen,
    wie in plänen dargestellt, sondern sind (wie im täglichen
    leben) zu? was nun? wo mag man sich orienterien
    in diesem dunklen flur?

    welche tür darf ich zuerst öffnen, welches zimmer mag sich
    dahinter verbergen?

    das ist wie in der adventszeit, da haben kinder
    freude dran. respekt.:respekt

    da kommt freude auf.
     
  8. #68 Mathias1980, 23.01.2013
    Mathias1980

    Mathias1980

    Dabei seit:
    21.09.2011
    Beiträge:
    369
    Zustimmungen:
    1
    Beruf:
    Dipl.-Ing. Maschinenbau
    Ort:
    Halle
    Danke für den Tipp mit der Haustür! Klar, du hast Recht war mir noch nicht aufgefallen.
    Das mit den Wänden zumindest die "durchgehende" Wand EG/OG habe ich auch in Diskussion, denn ich sehe die Notwendigkeit auch nicht, dass die Räume im OG tiefer sein sollen.
     
  9. #69 Mathias1980, 23.01.2013
    Mathias1980

    Mathias1980

    Dabei seit:
    21.09.2011
    Beiträge:
    369
    Zustimmungen:
    1
    Beruf:
    Dipl.-Ing. Maschinenbau
    Ort:
    Halle
    Das mit dem Windfang ist nicht rund:
    Funktion: finde ich super und sehr praktisch
    Ausführung: zu klein, zu dunkel
    Verbesserungsvorschläge
     
  10. Baumal

    Baumal

    Dabei seit:
    02.08.2007
    Beiträge:
    16.077
    Zustimmungen:
    8
    Beruf:
    Architekt
    Ort:
    Ravensburg
    nicht nur der windfang ist nicht
    ganz rund.

    verbesserungsvorschläge?

    ich würde die mikrowelle in der linken
    ecke küche anordnen und auf einen
    schuhabstreifer im windfang verzichten.
     
  11. #71 Gast036816, 23.01.2013
    Gast036816

    Gast036816 Gast

    ich frage mich, was soll der hintergrund deiner beratung werden, wenn die klopser deines entwurfs von dir alle gesund geschrieben werden?
     
  12. #72 Mathias1980, 24.01.2013
    Mathias1980

    Mathias1980

    Dabei seit:
    21.09.2011
    Beiträge:
    369
    Zustimmungen:
    1
    Beruf:
    Dipl.-Ing. Maschinenbau
    Ort:
    Halle
    Leider gibt es für fast jeden sog. Klopser eine objektive Begründung (Raumprogramm, Baufeld, Budget, ...) , aber z.B. nicht für den Windfang. Und ich bin dankbar für das Finden von Klopsern (mein Architekt kann Sie nicht finden, ist ja sein Entwurf), welche keine objektive Begründung haben.
     
  13. #73 Gast036816, 24.01.2013
    Gast036816

    Gast036816 Gast

    meinst du, dass dir jemand diesen widerspruch abnimmt?
     
  14. #74 Mathias1980, 24.01.2013
    Mathias1980

    Mathias1980

    Dabei seit:
    21.09.2011
    Beiträge:
    369
    Zustimmungen:
    1
    Beruf:
    Dipl.-Ing. Maschinenbau
    Ort:
    Halle
    @rolf a i b:
    So ist es, auf 10 m x 10 m und unserem Raumprogramm ist dies der aktuelle Kompromiss.
     
  15. #75 Gast41733, 24.01.2013
    Gast41733

    Gast41733 Gast

    Das ist die Begründung für den Anbau?
    Da könnte ich genauso gut sagen "Ein pinkes Dach ist erlaubt, also baue ich ein pinkes Dach"
     
  16. #76 Gast036816, 24.01.2013
    Gast036816

    Gast036816 Gast

    dann schreib am besten nachher ein buch: der bau meiner aktuellen kompromisse.

    titel hast du ja schon.
     
  17. #77 Mathias1980, 24.01.2013
    Mathias1980

    Mathias1980

    Dabei seit:
    21.09.2011
    Beiträge:
    369
    Zustimmungen:
    1
    Beruf:
    Dipl.-Ing. Maschinenbau
    Ort:
    Halle
    @rolf a i b:
    Leider ist da etwas dran, aber vermutlich sind sehr viele Häuser "Kompromisse" aus Platz und Geld. Weiterhin ist vieles auch aus dem persönlichen Geschmack heraus geprägt, z.B. die Diskussion der "offenen Küche" und einiges ist auch Zeitgeist, so z.B. drehten früher viele die Wohnräume aus Prestigegründen zur Straße und hatten hinten Nebengebäude, heute will man in den Garten "hinein" wohnen.
    Ich habe auch schon einen Titel "Wie ich auf einem 3.000 m² Grundstück in bebauter Ortslage genötigt wurde innerhalb der sog. faktischen Baugrenzen nach §34 BauGB zu bauen und wie das Bauordnungsamt dies sehr streng und eng auslegte."
     
  18. Baumal

    Baumal

    Dabei seit:
    02.08.2007
    Beiträge:
    16.077
    Zustimmungen:
    8
    Beruf:
    Architekt
    Ort:
    Ravensburg
    mathias, was hast du erwartert?

    dass dein "entwurf" lobgepreist wird?
    ist halt nicht so.

    u.a. antworten auch
    fachmänner/frauen hier.

    dein gedachter bau steckt voller hilfloser kompromisse,
    die kannst du dir auch nicht von laien meinungen schön reden lassen.

    mach was besseres daraus, das ist mein tipp.
     
  19. #79 Gast036816, 24.01.2013
    Gast036816

    Gast036816 Gast

    Mathias - wenn ich deine kompromiss-begründungen, die vergleiche zu hier und da von dir lese - ist es da nicht besser, du baust einfach dein ding mit deinen kompromissen und deinen entwurfsfehlern? du kriegst ratschläge und machst anschließend auf hilflos!

    kompromisse geht man nur ein, wenn ich ein fertiges haus - ob neu oder alt - kaufe. bei eigenem entwurf kann der kompromissanteil auf einem minimum reduziert werden, was dann mit grundstück und umgebung zusammen hängen kann.
     
  20. #80 Mathias1980, 24.01.2013
    Mathias1980

    Mathias1980

    Dabei seit:
    21.09.2011
    Beiträge:
    369
    Zustimmungen:
    1
    Beruf:
    Dipl.-Ing. Maschinenbau
    Ort:
    Halle
    Da habt ihr mich falsch verstanden.
    Ich erkenne drei Themen, die von euch kritisiert werden:
    - Windfang: Im Zweifel entfällt der.
    - Knick zwischen Esszimmer und Küche: hat für mich keinen praktischen Nachteil (Esszimmer schmaler nicht gewollt, Küche breiter nicht möglich)
    - Anbau an Esszimmer: soll Esszimmer heller machen, da auch Licht von Süden -und nicht nur Osten- kommt
    Ist doch o.k. ich weiß nur nicht, was ich zu meinem Architekten sagen soll, wenn ich es selber nicht problematisch finde (außer dem Windfang)

    Ich danke euch für eure Unterstützung und finde es prima, dass ihr Laien unterstützt! Sagt mir konkret was ihr anders machen würdet!
     
Thema: Dach auf quadratischen Grundriss
Besucher kamen mit folgenden Suchen
  1. satteldach quadratisches haus

    ,
  2. quadratischer grundriss satteldach

    ,
  3. quadratisches haus mit satteldach

    ,
  4. satteldach quadratisches ,
  5. haus quadratisch dach,
  6. satteldach quadratisch,
  7. quadratisch mit satteldach,
  8. grundriss dach,
  9. haus mit quatratischem grundriss,
  10. satteldach quatrat
Die Seite wird geladen...

Dach auf quadratischen Grundriss - Ähnliche Themen

  1. Neue Unterspannbahn oder komplett neues Dach?

    Neue Unterspannbahn oder komplett neues Dach?: Hallo, bei uns wurde ein Wintergarten gebaut. Dafür wurde der Dachvorsprung eingekürzt wobei die total poröse Unterspannbahn sichtbar wurde. Der...
  2. Dach neu decken

    Dach neu decken: Wir haben vor einigen Jahren ein Haus (DHH) gekauft, Baujahr 1972. Das Dach sowie der Fußboden auf dem kleinen Dachboden zum darunterliegenden...
  3. Regenrinne über Dach verlängern

    Regenrinne über Dach verlängern: Hallo, ich habe ein Haus gekauft und im Nachgang leider bemerkt, dass die 125m2 große westliche Dachhälfte über eine Hebeanlage im EG entwässert...
  4. Sanierung Dach Turnhalle

    Sanierung Dach Turnhalle: Hallo liebe Bauexperten, ich bin in der Liegenschaftsverwaltung einer kleinen Kommune tätig. Auf einer unserer Mehrzweckhallen befindet sich ein...
  5. Dach und Kellerdeckendämmung im Jugenstilhaus 1911

    Dach und Kellerdeckendämmung im Jugenstilhaus 1911: Hallo zusammen, wir haben uns an ein spannendes, aber auch herausforderndes Projekt gewagt: Ein Einzelhaus aus dem Jahr 1911 mit ca. 130 m²...