Dach-Balken entfernen

Diskutiere Dach-Balken entfernen im Architektur Allgemein Forum im Bereich Architektur; Hallo, wieder ich. Wie schon in einer anderen Diskussion erwähnt, habe ich ein älteres Haus gekauft. Geabut 1970, 2011 "leicht" umgebaut, wobei...

  1. #1 Emaborsa, 22.11.2025
    Emaborsa

    Emaborsa

    Dabei seit:
    09.11.2025
    Beiträge:
    8
    Zustimmungen:
    0
    Ort:
    Neumarkt
    Hallo, wieder ich.

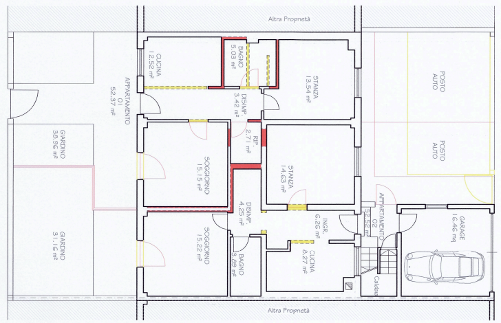
    Wie schon in einer anderen Diskussion erwähnt, habe ich ein älteres Haus gekauft. Geabut 1970, 2011 "leicht" umgebaut, wobei das EG 120mq aufgeteilt wurde:
    tutto.PNG

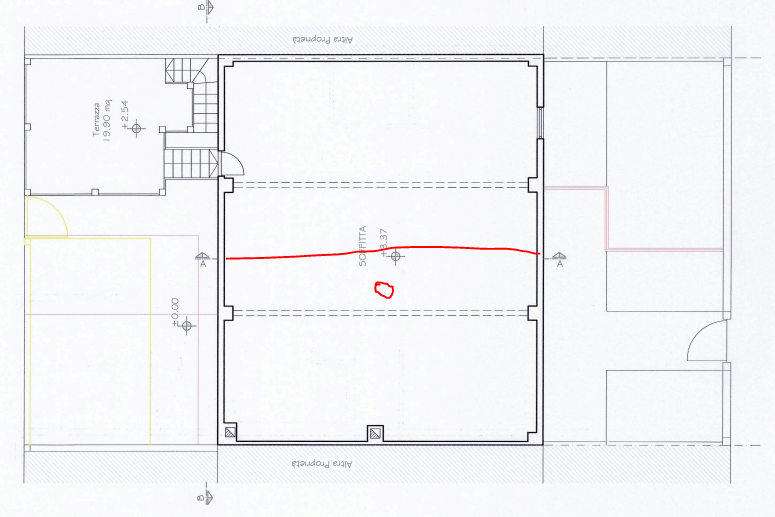
    OG ist quasi rohbau, nur durch einer schmalen Holzwand getrennt:
    soffitta.PNG

    Ich habe Zutritt über die Terrasse, der Nachbar hat am roten Kreis eine klappbare+ausziehbare Treppe einbauen lassen.

    Wie ihr euch vorstellen könnt, blieb das Dach gemeinschaftlich. Auf dem letzten Bild sind acht Stützen zu erkennen, die das Dach tragen. Hier sieht man sie von der Seite:
    laterale.PNG

    Tatsächlich gibt es noch zwei weitere Stützen, die im Plan nicht verzeichnet sind:
    plinti.PNG

    Auf dem letzten Bild sind zwei Dachstützbalken eingezeichnet, die auf den seitlichen Stützen aufliegen. Auf dem vorherigen Bild hingegen sieht man die Bögen, die alles tragen, und da es keinen First gibt, sind diese Balken entscheidend. Das Problem ist, dass diese Balken nach Estrich u.a. etwa 120 cm über dem Boden liegen würden, wodurch der Raum nicht nutzbar wäre. Außerdem sieht der Plan eine Verbindungstreppe vor:
    umbau.png

    Damit muss dieser Balken verschwinden.

    Jetzt frage ich euch, Forumsteilnehmer, vielleicht sogar Ingenieure :) – welche Möglichkeiten seht ihr? Welche Lösungen würdet ihr vorschlagen? Mir ist bewusst, dass der Dachbalken nicht einfach entfernt werden kann, ohne etwas zu verstärken, sonst würde mir das Dach auf den Kopf fallen. Der Balken trägt nicht nur das Gewicht nach unten, sondern wirkt auch den seitlichen Kräften entgegen (ich kenne die genauen Fachbegriffe nicht, entschuldigt bitte).

    Ich habe ein paar Ideen und Meinungen, möchte aber zunächst eure hören, ohne euch zu beeinflussen.
    Ich bin gespannt…
    Danke aus Bozen.
     
  2. artibi

    artibi

    Dabei seit:
    08.02.2014
    Beiträge:
    1.404
    Zustimmungen:
    517
    Beruf:
    ITler
    Ort:
    Ludwigsburg
    Soll das eine Bewerbung um den Darwin-Award werden? Die Variante, die am meisten gefällt?

    Ruf einen Statiker an. Und besorg dir davor die Statik, falls vorhanden.
     
    Alex88 gefällt das.
  3. jsp

    jsp

    Dabei seit:
    20.11.2025
    Beiträge:
    14
    Zustimmungen:
    4
    Auf einen Dachstuhl wirken Kräfte aus div. Richtungen und darauf all diese komplexem Kräfte abzuleiten ist so ein Gebälk hin ausgelegt.
    Abänderunsmöglichkeiten gibt es meist schon. ABER, wenn Du nicht willst, das Dir das Dach beim Sturm auf den Kopf fällt und die Versicherung wg. unfachmännischer Veränderungen nix zahlt, beauftrage einen FACHMANN, der sich das VOR ORT ansieht und Veränderungen entwickeln und berechnen kann und dann auch dafür gerade steht.
     
    ToTi und Alex88 gefällt das.
  4. ToTi

    ToTi

    Dabei seit:
    27.01.2025
    Beiträge:
    1.273
    Zustimmungen:
    738
    Beruf:
    Dachdecker
    Ort:
    Im Süden von Deutschland
    Wenn ich das richtig sehe ist das eine Art Sprengwerk. Normalerweise sollte man daran nicht rumspielen. Aber wie die Vorredner schon gesagt haben, hol dir einen Statiker, der sich das vor Ort ansieht und entscheidet was machbar ist und was nicht. Machbar ist wahrscheinlich viel, aber ich denke mal es wird auf ein Kosten-Nutzen-Verhältnis hinauslaufen und günstig wird das sicherlich nicht.
     
  5. #5 Fasanenhof, 24.11.2025
    Fasanenhof

    Fasanenhof

    Dabei seit:
    20.02.2023
    Beiträge:
    1.494
    Zustimmungen:
    839
    Beruf:
    Ing für Maschinenbau
    Ort:
    Norddeutschland
    Einfache Antwort:
    Nein.
    Das ganze Dach "schiebt" sich über die Dachschräge nach Außen, diese Kräfte könnten die stehenden Wände aber nicht tragen und würden nach außen Knicken.
    Der Horizontale Träger übernimmt die Zugkräfte, welche die Kräfte auf das tragende Mauerwerk überträgt. Zugleich gibt es eine Halbierung der vertikalen Last.
    upload_2025-11-24_8-39-8.png

    Ich persönlich verstehe nicht die Agenda hinter dieser Konstruktion. Sie schafft einen großen, nicht nutzbaren Raum, kostet aber genau so viel wie eine zweigeschossige Konstruktion. die komplette Spannbetondecke ist doch redundant, oder nicht?
    upload_2025-11-24_8-40-51.png
     
Thema:

Dach-Balken entfernen

Die Seite wird geladen...

Dach-Balken entfernen - Ähnliche Themen

  1. Gartenhaus sanieren. Sind alle Balken im Dach notwendig?

    Gartenhaus sanieren. Sind alle Balken im Dach notwendig?: Hallo, es gibt eine Scheune im Garten, die damals vom Vorbesitzer zum Gartenhaus umfunktioniert wurde. Das Gartenhaus ist etwa 3,60m breit und...
  2. Dach dicht - Balken naß

    Dach dicht - Balken naß: Hallo Experten
  3. Schimmel im Dachgebälk bei Neubau

    Schimmel im Dachgebälk bei Neubau: Guten Morgen liebes Forum. Ich bitte und hoffe auf Rat von Fachleuten, der Bauleiter sagt, dies sei harmlos, bzw. komme oft vor... (!?!) Meine...
  4. Wie nennt man diese Balken im Dach ?

    Wie nennt man diese Balken im Dach ?: Guten Morgen, ich plane (natürlich unter Einbezug eines Statikers), diese mit x1 - x4 markierten Balken zu entfernen. Sie liegen den...
  5. Dach Balken zwischen Mauerwerk mit Reste

    Dach Balken zwischen Mauerwerk mit Reste: Hallo Zusammen, leider sieht das für mich nicht wirklich gut verarbeitet aus oder liege ich falsch ? Einfach zum ausgleichen z.b Dachpappe...