Dachgeschossausbau in Zweifamilienhaus (Grundriss-/ Planungsdiskussion)

Diskutiere Dachgeschossausbau in Zweifamilienhaus (Grundriss-/ Planungsdiskussion) im Architektur Allgemein Forum im Bereich Architektur; Hallo zusammen, lese hier schon länger mit und bin echt beeindruckt von der Expertise, die sich in den Diskussionen zeigt. Gerne stelle ich...

  1. #1 Golovkin, 15.03.2025
    Golovkin

    Golovkin

    Dabei seit:
    08.01.2025
    Beiträge:
    1
    Zustimmungen:
    0
    Hallo zusammen,

    lese hier schon länger mit und bin echt beeindruckt von der Expertise, die sich in den Diskussionen zeigt. Gerne stelle ich deshalb auch mal unser Projekt vor und freue mich auf euer Feedback!

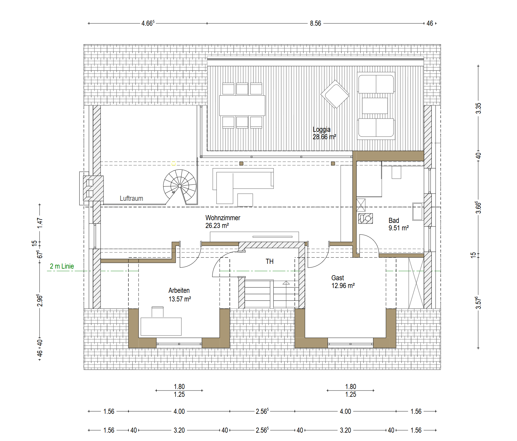
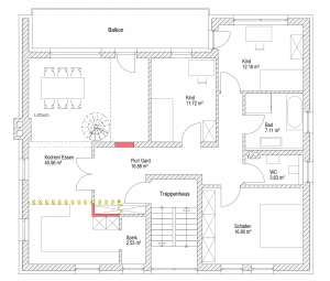
    Anbei erstmal ein kurzer Freitext zu unserem Projekt, den ausgefüllten „Fragebogen“ findet ihr unten (Pläne füge ich auch unten ein, erster Plan ist Grundriss 1. OG, zweiter Plan ist Grundriss DG und dritter Plan ist Ansicht Süd als Perspektiven).

    Folgender Hintergrund: Wir planen den Um- bzw. Ausbau eines Zweifamilienhauses. Aktuell sind schon zwei abgetrennte Wohnungen jeweils im EG und dem 1. OG. Das Dachgeschoss ist nicht ausgebaut. Unser Plan ist das 1. OG innenliegend mit dem Dachgeschoss zu verbinden, dieses als Wohnraum auszubauen und mit einer großen Dachterrasse zu ergänzen. Wir haben aktuell eine Holzbau-Firma, die sich auf Dachausbauten spezialisiert haben, mit der Planung LPH1-4 beauftragt. Das Haus wurde vor ca. 10 Jahren energetisch saniert (Wärmedämmung, neue Fenster, Dämmung Kellerdecke/ Decke 1. OG – Dach nicht) gedämmt.

    Folgende Anforderungen haben wir an die Planung formuliert:

    - großzügige Dachterrasse als Garten-Ersatz, der Balkon im 1. OG reicht uns nicht.
    - Galeriewohnung mit Deckendurchbruch
    - langfristig wollen wir uns die Möglichkeit offen halten, aus dem Zweifamilienhaus in Dreifamilienhaus zu machen und das 1. OG und das DG wieder abzutrennen und als eigenständige Wohneinheiten zu nutzen, deshalb soll auch das alle Stockwerke verbindende Treppenhaus erhalten bleiben. Uns ist bewusst, dass die ersten zwei Punkte einen Konflikt mit dieser langfristigen Flexibilität darstellen, dennoch sind der Deckendurchbruch und die große Terrasse für unsere Wohnqualität wichtig und wir wollen daran festhalten)

    In der Planung stellen sich aktuell folgende Fragen:
    - die Firma hat gemeint, dass durch die großen Eingriffe in das Dach (Zwei Gauben, großer Dacheinschnitt für Dachterrasse) ein komplett neuer Dachaufbau wirtschaftlicher wäre. Hintergrund ist, dass die Module für einen neuen Dachstuhl vorgefertigt werden und dann recht schnell eingebaut werden könnten – dem gegenüber stehen gewisse Unsicherheiten bei der Ertüchtigung des Bestand-Dachstuhls (zeitlich/ mehr Schnittstellen zwischen den Gewerken). Auch könnten wir bei einem neuen Dachstuhl die Dachneigung etwas anpassen, um die Deckenhöhe im DG zu vergrößern und wir hätten mehr Freiheiten in der Grundrissgestaltung weil bestimmte Stützen nicht benötigt werden. Für uns klang das erstmal plausibel, gibt es da andere Meinungen dazu?
    - wir haben das Dilemma, dass die Küche im 1. OG ist, wir aber unseren Wohnraum im Dachgeschoss haben wollen (vor allem wegen dem Bezug zur Dachterrasse). Wir haben das nun so gelöst, dass wir im 1. OG ein Esszimmer haben, wo auch die innenliegende Treppe nach oben geht und oben in der Galerie das Wohnzimmer. So ganz zufrieden mit der Situation sind wir aber noch nicht, weil es etwas umständlich wirkt. Auch ist der Weg zwischen Terrasse und Küche sehr weit und die Treppe wird aufgrund des verfügbaren Platzes nicht besonders großzügig sein (Tablett mit Essen, Kiste Bier usw. zur Terrasse zu bringen wird da schon eine Herausforderung). Wie schätzt ihr das ein?

    Schonmal vielen Dank an alle, die sich in unser Projekt reindenken! :)



    1. Wir sind:
    2 Erwachsene + 1 Kind ( + evtl. noch eins)

    (Schwiegermutter in eigener Wohnung im EG)

    2. Unser Raumprogramm:
    Schlafzimmer + evtl. Ankleide

    2 Kinderzimmer

    Gäste-/ Arbeitszimmer (gerne kombiniert)

    Wohnzimmer

    Esszimmer

    Küche

    mind. 2 Bäder
    HWR (wird im Keller sein)

    3. Welchen Hausstil bevorzugen wir?
    Obsolet, da Umbau

    4. Welche Zusatzwünsche/Features
    große Dachterrasse, zusätzlich zum Balkon
    Galerie

    Kamin (schon vorhanden)

    5. Bebauungsplan/Einschränkungen
    B-Plan vorhanden, Austausch mit Aufsichtsbehörde/ Gemeinde über Befreiungen läuft schon

    6. weitere Wünsche/Besonderheiten/Tagesablauf
    -

    7. angedachte Haustechnik
    Ölheizung im Bestand

    8. Hausentwurf
    Architektin eines Bauunternehmers (Zimmerei/ GU für Umbau-/ Ausbauprojekte)

    Das gefält uns besonders:

    die große Dachterrasse mit Westausrichtung (und schönem Ausblick)

    der großzügige Eingangsbereich mit Garderobe und Doppeltür Richtung
    eigener, großzügiger Essbereich

    Was gefällt nicht? Warum?
    Aktuelle Lösung der Galerie mit Spindeltreppe „mitten im Raum“ (unruhiger, unentschiedener Raum“

    Raumaufteilung im DG (z.B. Bad nur über Gästezimmer erreichbar – haben wir so gemacht, dass das Wohnzimmer oben nicht zu viele Türen hat)


    9. Preisschätzung lt. Architekt/Planer

    aktuelle Kostenannahme für Umbau ca. 350.000€ (entspricht auch ziemlich genau unserem Preislimit)
     

    Anhänge:

Thema:

Dachgeschossausbau in Zweifamilienhaus (Grundriss-/ Planungsdiskussion)

Die Seite wird geladen...

Dachgeschossausbau in Zweifamilienhaus (Grundriss-/ Planungsdiskussion) - Ähnliche Themen

  1. Raumhöhe bei Dachgeschossausbau zu Wohnraum

    Raumhöhe bei Dachgeschossausbau zu Wohnraum: Hallo, für verfahrensfreien Dachgeschossausbau in Bayern gibt es folgenden Gesetzestext. Raumhöhen für Aufenthaltsräume im Dachgeschoss: Für...
  2. Dachgeschossausbau verfahrensfrei in Bayern

    Dachgeschossausbau verfahrensfrei in Bayern: Darf ich bei einem verfahrensfreien Dachgeschossausbau in Bayern Dachgauben errichten? Was ist hier zu beachten das kein Bauantrag nötig ist? Was...
  3. Förderung Dachgeschossausbau

    Förderung Dachgeschossausbau: Hallo zusammen! Ich plane, das Dachgeschoss eines Mehrfamilienhauses ausbauen zu lassen. Dabei soll die Dacheindeckung erneuert und Gauben sollen...
  4. Dachgeschossausbau Bayern

    Dachgeschossausbau Bayern: Hallo, ist es richtig das seit Jahresanfang ein Dachgeschossausbau in Bayern genehmigungsfrei ist und es kein Bauantrag gestellt werden muss. Wie...
  5. Dachgeschossausbau Holzbalkendecke mit FBH im Trockenestrich aber wie?

    Dachgeschossausbau Holzbalkendecke mit FBH im Trockenestrich aber wie?: Hallo, Ich habe versucht über die Suche etwas zu finden was meinen Sachverhalt wiederspiegelt, leider habe ich nur teilweise Übereinstimmungen...