EFH; 170 qm, Meinung zum Grundriss, insbesondere WoZi gewünscht

Diskutiere EFH; 170 qm, Meinung zum Grundriss, insbesondere WoZi gewünscht im Architektur Allgemein Forum im Bereich Architektur; Liebe Experten, wir bauen nur einmal im Leben (hoffentlich), haben also keine besonderen Vorkenntnisse und sind schon so lange mit unserem...

  1. Sirix

    Sirix

    Dabei seit:
    02.01.2017
    Beiträge:
    1
    Zustimmungen:
    0
    Beruf:
    Lehrerin
    Ort:
    Leipzig
    Liebe Experten,

    wir bauen nur einmal im Leben (hoffentlich), haben also keine besonderen Vorkenntnisse und sind schon so lange mit unserem Grundriss beschäftigt, dass man vielleicht manchmal den Wald vor Bäumen nicht sieht. Wir wünschen uns, eine unvoreingenommene Meinung von Leuten, die sich auskennen und hoffen, wir haben die wichtigsten Informationen zusammengestellt.

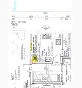
    Der Lageplan zeigt nur den vorderen Bereich des Grundstückes. Hinten geht es noch weiter. In der Siedlung stehen zum einen alte Bestandsimmobilien mit steilen Satteldächern und neue Stadtvillen. Wir liegen also in etwas dazwischen :-).

    Wir haben versucht, die Räume optimal auszunutzen, um Platz für 2 Kinderzimmer, Arbeitszimmer und Gästezimmer zu haben. Beim Wohnzimmer sind wir unsicher, wie wir Couch und TV am besten ausrichten (auch unter Berücksichtigung von 5.1 Sound).

    Vor kurzem war der Schonstein noch mittig bei der Küche angeordnet, aber mittlerweile gefällt er uns an der Außenwand besser.

    Also, wir sind dankbar für eure Meinung.
    Vielen Dank im Vorsaus für euer Interesse und eure Mühe!
     

    Anhänge:

  2. #2 Andybaut, 02.01.2017
    Andybaut

    Andybaut

    Dabei seit:
    02.04.2015
    Beiträge:
    5.127
    Zustimmungen:
    329
    Beruf:
    Architekt
    Ort:
    Baden-Württemberg
    pfffffffffffffffff

    wenn´s euch gefällt soll´s recht sein.
    Also,

    ihr schaut lieber Fern als in euren Garten? So verstehe ich das, da ihr das Sofa auf die Wand ausgerichtet habt.

    Im EG sind ein paar merkwürdige Rücksprünge.
    Zwischen WC und dem rechten Raum ist so einer. Schiebt die Dusche nach rechts und die Türe
    zu dem rechten Raum nach links. Dann habt ihr die ganze tote Fläche gewonnen.

    Das gleiche bei der Küche und der Speißekammer.

    Aber die ganze Küche, das Esszimmer und das Wohnen ist ein grausiges Kuddelmuddel.
    Ihr habt keine Türe um direkt ins Wohnzimmer zu kommen, weil ihr sonst nicht euer
    übergroßes Sideoard an die Wand bekommt. Dafür müsst ihr nun alle Besucher
    durch die Küche ins Wohnzimmer leiten.

    Die Küche und die Speißekammer würde ich in das 7,32m² Zimmer und den jetzigen Wohnbereich schieben und das Wohnzimmer nach unten. Dadurch bekommt ihr den momentan toten Gang ins Wohnzimmer integriert.

    Im OG habt ihr einen dunklen Gang. Ein Dachfenster würde helfen.

    V1:
    Ihr hattet einen Architekten der unmotiviert oder unfähig war
    oder
    V2:
    ihr habt den ärmsten so lange mit Umplanungen generct, bis dieser irgendwann aufgegeben hat.

    Wenn euch euer Haus so wichtig ist, solltet ihr den Grundriss wirklich gründlich überdenken.

    Ist der Kamin für einen Kaminofen? Wenn ja, werdet ihr bei der Entfernung und einem neuen Gebäude einseitig gegrillt.
     
  3. #3 driver55, 02.01.2017
    driver55

    driver55

    Dabei seit:
    22.02.2008
    Beiträge:
    6.898
    Zustimmungen:
    1.809
    Beruf:
    Dipl.-Ing.
    Ort:
    Pforzheim
    Ich muss leider in die gleiche Kerbe hauen wie Andybaut.
    Das ist nix und wird nix.

    Weder V1 noch V2, eher V3, der Bauherr ist der Architekt.

    Schreibt auf, was ihr alles wollt / nicht wollt, KiZi-Größe, Eingangsbereich hell, Küche offen / geschlossen oder trennbar von Wohnen/Essen, Anzahl Zimmer insgesamt mit ungefähren m² etc. und lasst dann planen...
     
Thema:

EFH; 170 qm, Meinung zum Grundriss, insbesondere WoZi gewünscht

Die Seite wird geladen...

EFH; 170 qm, Meinung zum Grundriss, insbesondere WoZi gewünscht - Ähnliche Themen

  1. 3 Grundrisse - Bitte um Meinungen

    3 Grundrisse - Bitte um Meinungen: Ich würde hiermit gerne eure Meinung zu diesen drei Grundrissen erfragen - Grundriss 1 und 2 berücksichtigen eine spätere Familienplanung, Plan 3...
  2. Grundriss - eure Meinung

    Grundriss - eure Meinung: Hallo zusammen, 1. Wir sind: Paar Anfang 30. Arbeiten beide 4 Tage die Woche im Home-Office. Kind 3,5 Jahre alt, zweites kommt im März....
  3. Grundriss Einfamilienhaus - Eure Meinung?

    Grundriss Einfamilienhaus - Eure Meinung?: Guten Tag , ich plan gerade mein Hause . Ich brauche bitte eure Meinung .Erdgeschoss ist tiefer als die Straße . Ich werde der Eingang von EG...
  4. Grundriss Flachdach über 300qm / bitte um Meinung

    Grundriss Flachdach über 300qm / bitte um Meinung: 1. Wir sind: 2 Erwachsene Mitte 30, 2 Kleinkinder keine Beeinträchtigungen 2. Unser Raumprogramm: wir wünschen uns einen offenen...
  5. Grundriss / eure Meinung

    Grundriss / eure Meinung: 1. Wir sind: 2 Erwachsene Mitte 30, geplant 2 Kinder keine Beeinträchtigungen 2. Unser Raumprogramm: wir wünschen uns einen offenen...