EFH 1965 - Anbau & Sanierung
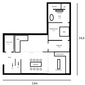
Diskutiere EFH 1965 - Anbau & Sanierung im Mein Hausbau Forum im Bereich Rund um den Bau; Hallo zusammen, anbei findet ihr unser Bauvorhaben mit aktuellen Grundrissen, Fotos, B-Plan und ersten Entwurf des Grundrisses meinerseits (sehr...
Thema:
EFH 1965 - Anbau & Sanierung
Die Seite wird geladen...
-
EFH 1965 - Anbau & Sanierung - Ähnliche Themen
-
Sanierung Haus Baujahr 1965
Sanierung Haus Baujahr 1965: Hallo liebe Community, ich habe vor Jahren das Haus meiner Großeltern geerbt. Basics Baujahr: 1965 Bauweise: alleinstehendes Einfamilienhaus... -
Tragende Trennwand in der Garage (Bj. 1965) oder Brandschutz?
Tragende Trennwand in der Garage (Bj. 1965) oder Brandschutz?: Hallo zusammen. Es handelt sich um eine Einheit aus Werkstatt (Grenzbebauung links zum Nachbarn) und Garage (entsprechend die rechte Hälfte) in... -
Kellerboden BJ 1965: Ist das Stampfbeton oder Estrich (Fotos)?
Kellerboden BJ 1965: Ist das Stampfbeton oder Estrich (Fotos)?: Hallo zusammen, wir haben ein Haus aus den 1960er Jahren. Laut Baubeschreibung besteht der Kellerboden aus Stampfbeton (B120?). Auf auf dem... -
EFH (1965) zu DHH umfunktionieren und neue DHH anbauen
EFH (1965) zu DHH umfunktionieren und neue DHH anbauen: Moin zusammen, wir sind aus dem Hamburger Umfeld und haben aktuell folgende Konstellation: Wir würden gerne mit Bekannten zusammen ein Doppelhaus... -
Sanierung Einfamilienhaus BJ 1965
Sanierung Einfamilienhaus BJ 1965: Hallo zusammen, wir stehen evtl. kurz davor ein Einfamilienhaus aus den 65er Jahren zu kaufen mit 120qm Wohnfläche + Keller. Haus wurde in...