Efh Neubau in Massivbauweise
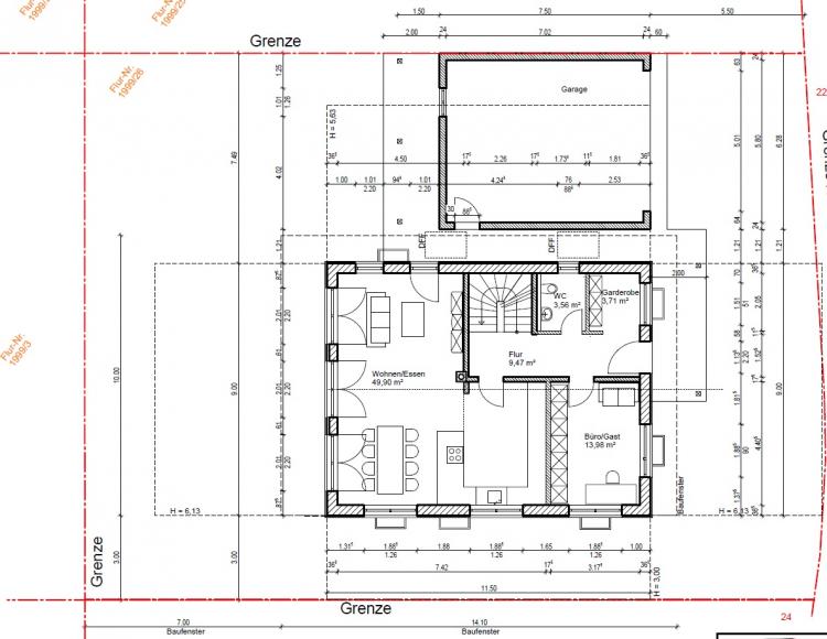
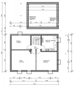
Diskutiere Efh Neubau in Massivbauweise im Architektur Allgemein Forum im Bereich Architektur; schade. abgesehen davon, dass der entwurf viele (undiskutierte) ecken hat, die mir sehr gut gefallen, finde ich die probleme sehr überschaubar und...
Seite 3 von 11
Thema:
Efh Neubau in Massivbauweise
Die Seite wird geladen...
-
Efh Neubau in Massivbauweise - Ähnliche Themen
-
Fensterrahmen im Neubau nicht richtig gedämmt?
Fensterrahmen im Neubau nicht richtig gedämmt?: Moin zusammen, ich habe eine Frage im Bereich Rollladenkasten/Fenster. Unser Haus ist ein Einfamilienhaus-Neubau von 2023. Jetzt war der erste... -
Planung Neubau
Planung Neubau: Moin zusammen! Wir beabsichtigen im Kreis Plön ein Haus zu bauen. Ein Grundstück ist in Aussicht, dieses soll mit einem weiteren Bauherren... -
Feuchtigkeitsschutz Außenwand bei Neubau Außentreppe mit Podest
Feuchtigkeitsschutz Außenwand bei Neubau Außentreppe mit Podest: Hallo zusammen, ich habe eine Frage zu einer baulichen Änderung bei uns am Haus (Baujahr 1995). Vor einiger Zeit wurde die alte Holztreppe mit... -
Kalter Kamin im Neubau - Wasserschäden durch Kondenswasser?
Kalter Kamin im Neubau - Wasserschäden durch Kondenswasser?: Hallo zusammen, ich habe ein Problem mit einem Wasserschaden und da ich persönlich niemanden kenne der mir helfen kann, versuche ich es hier mal... -
Beginn Neubau Massivbauweise - besser warten?
Beginn Neubau Massivbauweise - besser warten?: Hallo zusammen, ich plane seit einiger Zeit einen Neubau (Bungalow in Massivbauweise - Walmdach ) und wollte eigentlich im zweiten Halbjahr 2021...