Eure Meinung für unseren Grundriss

Diskutiere Eure Meinung für unseren Grundriss im Architektur Allgemein Forum im Bereich Architektur; Hallo zusammen, wir haben eine Vorentwuf und ein Angebot von unsere Bauträger bekommen. Ich wollte gerne eure Meinung dazu wissen. Es soll ein...

  1. zizzi

    zizzi

    Dabei seit:
    01.09.2017
    Beiträge:
    15
    Zustimmungen:
    2
    Beruf:
    Technischer Produktdesigner
    Ort:
    Osnabrück
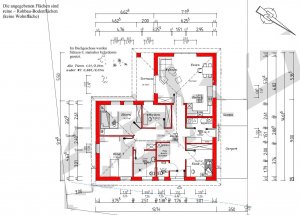
    Hallo zusammen,
    wir haben eine Vorentwuf und ein Angebot von unsere Bauträger bekommen. Ich wollte gerne eure Meinung dazu wissen.
    Es soll ein barrierefreier Bungalow sein(ungefähr 131 qm) mit 3 Schlafräume und möglicherweise ein Arbeitszimmer die hier realisiert wurde. Vorher war ja so, dass anstatt Arbeitszimmer eine Küche(aber etwas größer) gab und das Wohnzimmer etwas größer war.
    Meine Meinung:
    Ich würde das Haus von Straßenseite etwas schmaler machen, dadurch Schlafzimmer und Kind1 wird etwas kleiner. Anstatt zieht man das Wohnzimmer und Küche etwas länger, dadurch Küche kann etwas größer gemacht werden(mir fällt zu klein auf).
    Von die andere Seite habe ich die Möglichkeit der Carport etwas breiter machen. Ich versuche für Carport eine Innenbreite von 3,5 m schaffen(wegen Rollstuhl).
    Ich werde noch von Bauträger fragen was von Preis her ausmacht wenn man anstatt Holzbalkendecke eine Betondecke mit Dämmung, eine Drempelhöhe von vielleicht 30 cm und eine Dachneigung von 40 Grad schafft, dadurch man im Zukunft das Dachgeschoss noch ausbauen kann.(vielleicht nach 25 – 30 Jahren)
    Ein Carport für zwei Autos hintereinander mit Geräteraum möchte ich gerne geplant werden aber das will ich selber machen oder wo anderes machen lassen, 14000 € die Bauträger für ein Einzellcarport mit Geräteraum haben will, ich denke zu teuer ist.

    Wir würden und auf eure Vorschläge sehr freuen.
    Danke
     

    Anhänge:

Thema: Eure Meinung für unseren Grundriss
Besucher kamen mit folgenden Suchen
  1. angebot für ein grundriss

Die Seite wird geladen...

Eure Meinung für unseren Grundriss - Ähnliche Themen

  1. Erhöhung der Türhöhe, gemischte Höhe...eure Meinung

    Erhöhung der Türhöhe, gemischte Höhe...eure Meinung: Hallo Zusammen, Ich renoviere gerade das Haus, inklusive neuem Estrich, Heizung und FBH. Das Haus (BJ 1983) ist mit Innentüren, Haustür und (ich...
  2. 3 Grundrisse - Bitte um Meinungen

    3 Grundrisse - Bitte um Meinungen: Ich würde hiermit gerne eure Meinung zu diesen drei Grundrissen erfragen - Grundriss 1 und 2 berücksichtigen eine spätere Familienplanung, Plan 3...
  3. Dachdämmung von innen - eure Meinungen

    Dachdämmung von innen - eure Meinungen: Hallo! Ich möchte mein Dachgeschoss wohnlicher machen. Dabei geht es mir zunächst um einen Raum mit etwa 50qm Grundfläche (abzgl....
  4. Mangelhafte Dachdämmung erneuern, 3 Handwerker 3 Meinungen

    Mangelhafte Dachdämmung erneuern, 3 Handwerker 3 Meinungen: Hallo zusammen, ich bin leicht verzweifelt und wende mich deshalb an das Experten Kollektiv. Unser EFH BJ 2000 hat eine mangelhaft ausgeführte...
  5. Meinung: Perimeterdämmung bis Fundament? Ja oder nein?

    Meinung: Perimeterdämmung bis Fundament? Ja oder nein?: Hallo, es geht um ein EFH Baujahr 1970. Der Keller ist unbeheizt. Laut iSFP müssen die Außenwände mit 160 mm WDVS bis 50 cm unter Oberkante...