Eure Meinung zum Grundriss EFH Flachdach

Diskutiere Eure Meinung zum Grundriss EFH Flachdach im Architektur Allgemein Forum im Bereich Architektur; Hallo liebe Bauexperten, mich würden eure Meinungen/Anregungen/Kommentare zu folgendem Grundriss interessieren. Zu den Rahmenbedingungen:...

Status des Themas:
Es sind keine weiteren Antworten möglich.
  1. #1 TACiboy, 24.04.2019
    Zuletzt bearbeitet: 24.04.2019
    TACiboy

    TACiboy

    Dabei seit:
    23.04.2019
    Beiträge:
    4
    Zustimmungen:
    0
    Hallo liebe Bauexperten,

    mich würden eure Meinungen/Anregungen/Kommentare zu folgendem Grundriss interessieren.

    Zu den Rahmenbedingungen:

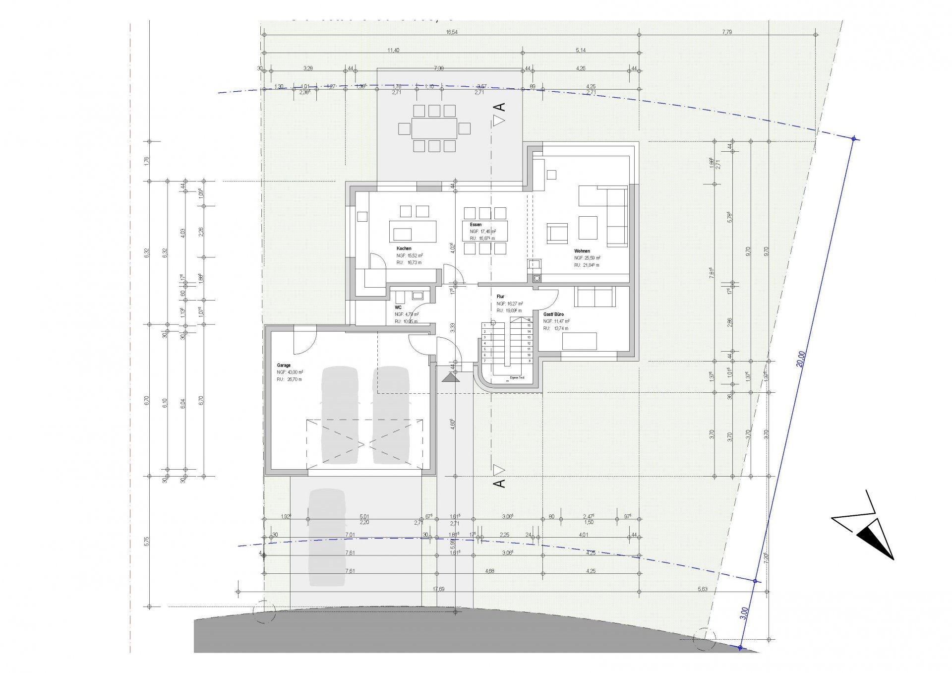
    Gebaut werden soll ein EFH, Flachdach, 2-geschossig mit Keller. Mit eingeplant werden sollen zwei Kinderzimmer sowie ein Arbeitszimmer/Gästezimmer. Großzügiger, offener und gemütlicher Wohn-Essbereich. Bodentiefe Fenster mit Raffstores, Platz für ein Klavier (Flügel wird wohl nicht passen).
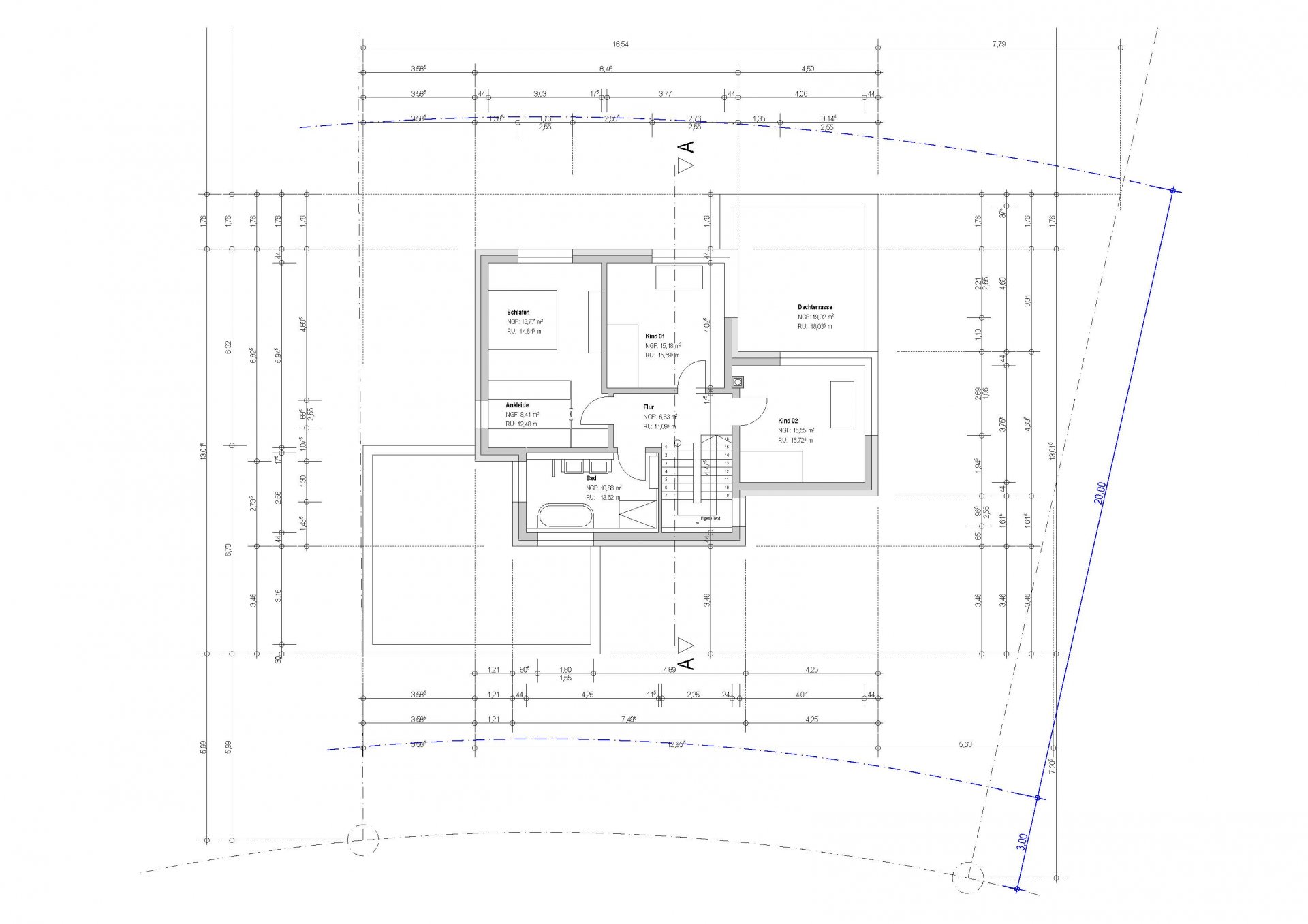
    Im OG sollen die Schlafräume, Hauptbad sowie Kinderzimmer Platz finden. Elternschlafzimmer mit Ankleide. Ein Balkon/Dachterrasse ist nicht zwingend erforderlich, ist aber jetzt aufgrund des Baukörpers als "Nebenprodukt" mit entstanden.
    Von der Garage aus soll ein Zugang direkt ins Haus erfolgen. Die Haustechnik sowie Platz für große Speisekammer/Hobbyraum etc. wandert in den Keller.

    Das Grundstück in Form einer Raute hat Süd/SüdWest Ausrichtung (Straße im Norden) und folgende Maße knapp 40m tief, im Norden (Straßenseite) 19,5m breit, im Süden (Gartenseite) 28m breit.

    Meine Bedenken:
    - Garage guckt zu weit aus dem Baukörper heraus --> sieht komisch aus
    - Offener Wohn/Essbereich zu "schlauchig"? (trotz großer Fenster und großem Garten)
    - Elternschlafzimmer zu klein für eine separate Ankleide?
    - Flur zu dunkel?
    - Zimmergrößen?
    - Haus zu weit von Straße entfernt?
    - irgendwelche Verbesserungsvorschläge / kritische Ecken / weitere Ideen?

    Was haltet ihr davon? Bin gespannt auf euer Feedback...


    PS: Die Garderobe soll als Einbauschrank ggü. der Treppe realisiert werden (siehe separates Bild).
     

    Anhänge:

    • Garderobe.PNG
      Garderobe.PNG
      Dateigröße:
      12,2 KB
      Aufrufe:
      726
    • EG.jpg
      EG.jpg
      Dateigröße:
      319,9 KB
      Aufrufe:
      750
    • OG.jpg
      OG.jpg
      Dateigröße:
      189,4 KB
      Aufrufe:
      734
  2. #2 Kriminelle, 24.04.2019
    Kriminelle

    Kriminelle

    Dabei seit:
    16.05.2013
    Beiträge:
    3.747
    Zustimmungen:
    2.072
    Beruf:
    .
    Ort:
    Niedersachsen
    Das scheint alles ok zu sein :)
     
    TACiboy und jodler2014 gefällt das.
  3. #3 jodler2014, 24.04.2019
    Zuletzt bearbeitet: 24.04.2019
    jodler2014

    jodler2014

    Dabei seit:
    20.12.2014
    Beiträge:
    3.907
    Zustimmungen:
    542
    Beruf:
    Angestellter
    Ort:
    RP
    Warum der Radius im EG Treppenhaus ?
    Und im OG ist da eine gerade Wand ???
    Das Abwasser vom Bad im OG fließt wohin ?
    Das muß aber der Badplaner nochmal ran .Oder im EG die Decke abhängen ?
    Die Kids haben eine Dachterrasse ?
    Bei dem Grundriss wird es wohl nur ein Keyboard werden ..
    Da ist kein Platz für ein Klavier !
     
    TACiboy gefällt das.
  4. #4 TACiboy, 24.04.2019
    TACiboy

    TACiboy

    Dabei seit:
    23.04.2019
    Beiträge:
    4
    Zustimmungen:
    0
    Die runde Mauer ist ein Stilelement, welches uns ganz gut gefallen hat. So soll das Haus in etwa von außen aussehen: siehe Anhang. Im OG ist die Mauer dann von außen tatsächlich eckig, da Überstand. Innen muss hier der Bogen antürlich noch nachgezogen werden - das wäre dann Aufgabe der Ausführungsplanung aber soweit sind wir noch nicht...

    Fallschächte müssen noch eingearbeitet werden, ist tatsächlich noch nicht geschehen :-)

    Ja. Eine Dachterrasse/Balkon war uns eigentlich nicht wichtig und hätten wir uns aus Kostengründen auch gespart. Jetzt ist es allerdings so, dass sich die Dachterrasse aufgrund der Hausform (Baukörper) ergeben hat und dieser Bereich auch schlecht hätte erschlossen werden können - wir haben jedenfalls keine sinnige Zuwegung gefunden um den Platz noch als weiteren Raum zu nutzen. Daher ist es jetzt eine Dachterrasse geworden und ich finde, das sieht außen auch gar nicht so verkehrt aus.

    PS: Die Außenverkleidung aus Holz steht noch nicht fest... Ist nur ein Beispiel.
     

    Anhänge:

  5. #5 Lexmaul, 24.04.2019
    Lexmaul

    Lexmaul

    Dabei seit:
    15.09.2014
    Beiträge:
    8.921
    Zustimmungen:
    2.163
    Benutzertitelzusatz:
    Mimosenlecker
    Ts ts ts, sieht man doch, dass die Bäder und Wände übereinander stehen, wo ein Fallrohr dann durchgehen kann :)

    Wo ist der Kellergrundriss? Sehe übrigens auch keinen Platz für ein Klavier.
     
    TACiboy gefällt das.
  6. #6 TACiboy, 25.04.2019
    TACiboy

    TACiboy

    Dabei seit:
    23.04.2019
    Beiträge:
    4
    Zustimmungen:
    0
    Hi Lexmaul,

    Also eigentlich hätte ich das Klavier im Wohnzimmer in der linken Ecke südliches Fenster gesehen. Da ist knapp 1,80m Platz. Von der Tiefe sollte es doch eigentlich passen? Oder wird das Wohnzimmer dann zu gedrückt/eng? Das ist ja ohnehin meine Befürchtung (auch wenn der offene Wohn/Essbereich eigentlich großzügig dimensioniert sein sollte)...
     
  7. #7 Lexmaul, 25.04.2019
    Lexmaul

    Lexmaul

    Dabei seit:
    15.09.2014
    Beiträge:
    8.921
    Zustimmungen:
    2.163
    Benutzertitelzusatz:
    Mimosenlecker
    Ich find den ganz ehrlich gesagt nicht gerade großzügig - es ist dort nicht mickrig, aber ich befürchte, dass das alles sehr eng gestellt dann wirkt und ist.

    Auf den Zeichnungen sieht das immer großzügiger aus...

    Garahe übrigens ebenso - so werden die Autos da nie stehen und auch in der Länge werden sie mehr Platz brauchen.
     
  8. Aljana

    Aljana

    Dabei seit:
    13.01.2019
    Beiträge:
    35
    Zustimmungen:
    13
    Gibt’s denn ein Klavier, das da hin soll? Dann müssten die Maße doch eigentlich klar sein. Für ein richtiges Klavier ist so ein Platz an der Sonne übrigens denkbar ungünstig.
     
  9. #9 TACiboy, 25.04.2019
    TACiboy

    TACiboy

    Dabei seit:
    23.04.2019
    Beiträge:
    4
    Zustimmungen:
    0
    Ich weiß, nicht der ideale Standort. Evtl. muss das Klavier auch unterhalb des Esstischs platz finden. Auch wenn da der Kamin hin soll und das dann auch nicht der beste Standort wäre.

    Ich kann nur schlecht einschätzen, ob - wie Lexmaul schon angedeutet hat - der Wohnraum diesbezüglich nicht zu klein geraten ist.
     
  10. #10 Lexmaul, 25.04.2019
    Lexmaul

    Lexmaul

    Dabei seit:
    15.09.2014
    Beiträge:
    8.921
    Zustimmungen:
    2.163
    Benutzertitelzusatz:
    Mimosenlecker
    Fahr doch mal zu einem großen Parkplatz Sonntags und mal es Dir auf!
     
  11. #11 Leser112, 25.04.2019
    Zuletzt von einem Moderator bearbeitet: 29.04.2019
    Leser112

    Leser112

    Dabei seit:
    23.12.2016
    Beiträge:
    1.843
    Zustimmungen:
    254
    Beruf:
    Dipl.-Ing., TGA Planer
    Ort:
    Berlin-Brandenburg
    Benutzertitelzusatz:
    Energieeffizienzexperte
    Hallo,
    Sehr interessant das Ganze und kein GU/GÜ Vorhaben.!
    Bei freier Planung haben Bauherren ausreichend Möglichkeiten selbst Einfluß auf die Anlagentechnik zu nehmen (Energieeffizienz, Kosten).
    An Grundrissdiskussionen beteilige ich mich eher selten, da meist sehr subjektiv, nur wenn bezüglich der Anlagentechnik relevant.
    Ich erkenne ein WDVS, was zu geringen Verbrauchskosten für Heizenergie führt (geringe Heizlast). Dementsprechnd muß die Anlagentechnik fachgerecht dimensioniert werden.

    [Beitrag editiert]
     
  12. #12 arch, 25.04.2019
    Zuletzt bearbeitet: 25.04.2019
    arch

    arch

    Dabei seit:
    01.06.2017
    Beiträge:
    568
    Zustimmungen:
    234
    Beruf:
    Architekt
    Ort:
    Bodensee
    Sieht eigentlich ganz ok aus, aber der Kamin im OG finde ich unglücklich, und sehe irgendwie kein WC im Bad oben, was aber bestimmt in die Ecke neben den Waschtischen soll? Ich finde Häuser, die nicht allzu protzig Wohn-Essbereiche haben, können trotzdem gut sein. Dann sollten sie aber gut organsiiert sein. Finde die stelle, an der man so knapp auf den esstisch läuft, zb wenn dort jemand sitzt, recht eng. Vor allem wenn dort noch eine Anrichte/sideboard oder Klavier steht.

    Diese Kücheninseln verbrauchen irre viel Platz, würde überlegen, ob ich sie drehen und an die innen ode raußen wand schiebenwürde, und sie als eine art Bar ausführen würde. Dadurch wäre man im Essbereich etwas flexible und der durchgang zu wohen wäre dann nicht so eng.

    Die dusche im WC unten finden ich an sich ok ( bei vier personen im Haushalt kann eine 2te dusche leben retten ;)) Aber das die direkt vor dem Fenster ist, ist etwas unglücklich. das fenster wird zwar nciht durchsichtig sein, und die Brüstung wohl höher, aber je nach lichtfall könnte man da schon die silouhette von der duschenden person sehen.

    Was ich schön finde, ist die Sichtachse, von der Haustür in den Garten. Wirkt großzügig. Super wirds, wenn du die achsen in deiner Gartengestaltung mit einbeziehst, und sie ein Punkt hat, auf den sie sich bezieht, z.B ein Sitzplatz, Teich, Kirschbaum, Skulptur, Brunnen oder ähnliches am Ende des Grundstücks.

    Bei der Haustür könnte man die Aufschlags richtung spiegeln, damit die nicht so in die Tür der Garage auf schlägt. So betritt man das Haus dann auch etwas mittiger in der oben beschriebenen Sichtachse.

    Bei der Dachterasse sind die Ausführungsdetails kompliziert. Zum einen ist der Dachaufbau ( dämmung, gefälle, Belag (zb. splitbett und Betonplatten) wesentlich höher als der Bodenaufbau innen, und zum andern muss die abdichtungsebene mindestens 15 cm hochgeführt werden, was bedeutet, dass man aus den Zimmern ca 1-2 stufen Hoch muss um auf die Terasse zu kommen. Diese Stufen müssten dann im Grundriss irgendwo sein. Alternativ kann man die Betondecke in dem Bereich absenken, was aber garnicht gut für das Wohnzimmer ist.

    Aber die meisten sachen sind eine art "feinschliff" im großen und ganzen finde ich das Haus ganz gut, und es scheint auch in der größe Verhältnismäßig zu sein. Habt ihr bereits eine Kostenschätzung und ein Budget? Passen die beiden Zusammen?
     
    Mijo gefällt das.
  13. Marii

    Marii

    Dabei seit:
    22.07.2018
    Beiträge:
    22
    Zustimmungen:
    6
    Hat die Garage nicht 6 m Tiefe? Mehr Platz ist natürlich (fast) immer gut, aber wieso sollte diese Tiefe Probleme bereiten, sofern nicht geplant ist, was vor die Autos zu stellen?

    Ich denke da an unsere Noch-Garage die zu unserer Wohnung gehört mit 5,5 Tiefe bei knapp 5 m langem Auto - es steht sogar noch Kram vorm Auto. Ist natürlich ne knappe Kiste (im wahrsten Sinne des Wortes), aber wenn da nix stehen würde und zudem noch ein halber Meter mehr da wäre, wäre das super und das bei einem langen Auto...

    Ist an sich keine Kritik deiner Aussage, nur reine Neugier: "in der Länge werden sie mehr Platz brauchen" - weil mir hier Beispiele aus der Praxis / Realität fehlen...
     
  14. arch

    arch

    Dabei seit:
    01.06.2017
    Beiträge:
    568
    Zustimmungen:
    234
    Beruf:
    Architekt
    Ort:
    Bodensee
    Ich glaube es geht darum, wie die Garage benutzt wird. Reinfahren, tor offenlassen zum Kofferraum ausladen, Garage durchs tor verlassen, und durchs freie ins haus gehen, dafür sind 6 meter mehr als gut. Aber wenn man in die Garage fährt, den Kofferraum in der Garage entladen, mit den Einkäuf oder ähnlichem durch die Garage ins Haus möchte, könnte das knapp sein. Vor allem, wenn man nicht jedes mal das Garagentor öffnen möchte, um den Kofferraum zu be- und entladen. Und die Tatsache, das man an die Fahräder und Mülltonnen durch die Garage bewegen möchte, ohne das Auto vorher raus zu stellen, spricht auch für ein wenig mehr luft in der Garage.
     
  15. #15 Lexmaul, 25.04.2019
    Lexmaul

    Lexmaul

    Dabei seit:
    15.09.2014
    Beiträge:
    8.921
    Zustimmungen:
    2.163
    Benutzertitelzusatz:
    Mimosenlecker
    Genau wie @arch es beschreibt - natürlich passt nen 7er in der Langversion rein, aber das ist auch mit einem Passat ne knappe Kiste. Mit Kindern wird es noch schlimmer - dann steht normal ein Auto eh vor der Garage (bei uns quasi beide Autos immer - trotz Doppelgarage) :).

    Auf der Zeichnung ok, aber in der realität nicht angenehm praktikabel. Tetris spielen kann man immer, aber ob man das möchte? Muss einem halt nur bewusst sein - manchen ist es auch dann egal und dann ist das auch OK!
     
  16. Marii

    Marii

    Dabei seit:
    22.07.2018
    Beiträge:
    22
    Zustimmungen:
    6
    @ arch: Stimmt, hatte ich so nicht bedacht.
    Eigentlich fehlt eine Ausgangstür zur Einfahrt.. Ich denke, ich würde statt der Tür zum Garten eher eine zur Einfahrt machen (oder beides? Dann wären es satte drei...puh), so käme man mit Mülltonen oder Kinderwagen bequemer raus als an den Autos vorbei.
    Aber da sollte lieber ein Profi ran bzw der Bauherr entscheiden - jeder hat andere Gewohnheiten und auch Autogrößen :-)
     
  17. #17 driver55, 25.04.2019
    driver55

    driver55

    Dabei seit:
    22.02.2008
    Beiträge:
    6.898
    Zustimmungen:
    1.809
    Beruf:
    Dipl.-Ing.
    Ort:
    Pforzheim
    Prinzipiell ok. Der Teufel steckt allerdings im Detail:
    • Kochen zu groß, Essen zu klein (echte 14 m²)
    • wirkt i.d.T. schlauchig: 12 m lang! und über 8 m Länge nur 4 m breit
    • die Speisekammer ist "natürlich" Nonsens: mit Küchenzeile 0,84 m² Stellfläche, mit Speisekammer 0,72 m². Türe stört doch dort im Eck!
    • dann kann man auch die Dusche im EG schieben. (So funktioniert sie ohnehin nicht. Fenster wird beim Duschen immer geflutet?!)
    • Haustür nach rechts und Anschlag spiegeln. (wurde ja schon genannt...)
    • eine ordentliche Garderobe ragt zu weit in den Flur (Treppe), bzw. kollidiert mit Tür zu Gast...
    • Platz für Schlafen/Ankleide ist vorhanden. Würde Bett um 90 Grad drehen und nach oben schieben (Fenster), Fenster dann links. Kommode an Ankleideseite oder sogar weitere Schrankreihe an Ankleideschrank
    • Belichtung Flur EG müsste man prüfen (Fenster sitzt im OG)
    • Das Problem ist, dass die "Hütte" von Haustüre zur Wand (Essen) weniger als 7.8 m misst, also nicht sonderlich tief ist.
    • Garage (2 Autos) funktioniert so nur, wenn der Zweitwagen ein Rechtslenker ist.:biggthumpup: (Die Fzge. sind zusammen auf 4,5 m Breite dargestellt.:eek:)
    • ...
     
  18. #18 jodler2014, 25.04.2019
    Zuletzt bearbeitet: 25.04.2019
    jodler2014

    jodler2014

    Dabei seit:
    20.12.2014
    Beiträge:
    3.907
    Zustimmungen:
    542
    Beruf:
    Angestellter
    Ort:
    RP
    Gute Frage Lexmaul !
    Wo steht der Trockner ? ;)
    Gibt es einen HTR ?
    Ja,gibt es !
    Und zwar im Nutzkeller !
    Dient Gast als Abstellraum für die Dinge des täglichen Leben ( Staubsauger ,Klopapier ,etc. )
     
  19. #19 jodler2014, 25.04.2019
    jodler2014

    jodler2014

    Dabei seit:
    20.12.2014
    Beiträge:
    3.907
    Zustimmungen:
    542
    Beruf:
    Angestellter
    Ort:
    RP
    Kochen / Essen kann man mit gescheiter Küchenplanung verbessern .
    Durch die großen Fensterflächen wirkt das nicht schlauchig.
    Was mich stört ist die vorgezogene Garage .
     
    TACiboy gefällt das.
  20. #20 Fabian Weber, 25.04.2019
    Fabian Weber

    Fabian Weber

    Dabei seit:
    03.04.2018
    Beiträge:
    16.331
    Zustimmungen:
    6.489
    Bin gespannt, wie die Details gelöst werden, die bunten Bilder sind ein bisschen trügerisch.

    Mir fällt hier z.B. das gebogene Holz ein an der runden Ecke.

    Auch muss die im Freien liegende Unterseite des Dachterasse gedämmt werden, da wird es dann schon kniffelig mit der raumhohen Verglasung.

    Kommt in die Übereckverglasung wirklich keine Stütze, die die Decke trägt. Ist darum die Brüstung der Dachterrasse so mächtig?
     
Thema:

Eure Meinung zum Grundriss EFH Flachdach

Die Seite wird geladen...

Eure Meinung zum Grundriss EFH Flachdach - Ähnliche Themen

  1. 3 Grundrisse - Bitte um Meinungen

    3 Grundrisse - Bitte um Meinungen: Ich würde hiermit gerne eure Meinung zu diesen drei Grundrissen erfragen - Grundriss 1 und 2 berücksichtigen eine spätere Familienplanung, Plan 3...
  2. Grundriss - eure Meinung

    Grundriss - eure Meinung: Hallo zusammen, 1. Wir sind: Paar Anfang 30. Arbeiten beide 4 Tage die Woche im Home-Office. Kind 3,5 Jahre alt, zweites kommt im März....
  3. Grundriss Einfamilienhaus - Eure Meinung?

    Grundriss Einfamilienhaus - Eure Meinung?: Guten Tag , ich plan gerade mein Hause . Ich brauche bitte eure Meinung .Erdgeschoss ist tiefer als die Straße . Ich werde der Eingang von EG...
  4. Grundriss Flachdach über 300qm / bitte um Meinung

    Grundriss Flachdach über 300qm / bitte um Meinung: 1. Wir sind: 2 Erwachsene Mitte 30, 2 Kleinkinder keine Beeinträchtigungen 2. Unser Raumprogramm: wir wünschen uns einen offenen...
  5. Grundriss / eure Meinung

    Grundriss / eure Meinung: 1. Wir sind: 2 Erwachsene Mitte 30, geplant 2 Kinder keine Beeinträchtigungen 2. Unser Raumprogramm: wir wünschen uns einen offenen...
Status des Themas:
Es sind keine weiteren Antworten möglich.