Feedback Grundriss // Feuer frei?!

Diskutiere Feedback Grundriss // Feuer frei?! im Architektur Allgemein Forum im Bereich Architektur; Hallo liebes Expertenforum, seit einiger Zeit verfolgen meine Frau und ich dieses Forum und haben schon einige hilfreiche Beiträge gefunden. Nun...

  1. #1 JohannFugger, 26.04.2020
    JohannFugger

    JohannFugger

    Dabei seit:
    26.04.2020
    Beiträge:
    5
    Zustimmungen:
    0
    Hallo liebes Expertenforum,

    seit einiger Zeit verfolgen meine Frau und ich dieses Forum und haben schon einige hilfreiche Beiträge gefunden.
    Nun sind wir an einem Punkt angelangt, wo wir auch 'unseren' Grundriss zur Diskussion stellen möchten.

    Nachdem die Zusammenarbeit mit unserem Architekten eigentlich ganz gut gestartet ist, gab es doch einen erheblichen Abfall in der Performancekurve und wir sind momentan nicht mehr ganz sicher, ob er wirklich sein Bestes gibt, um das Optimum für uns zu erreichen.
    --> Zeit für’s Expertenforum!
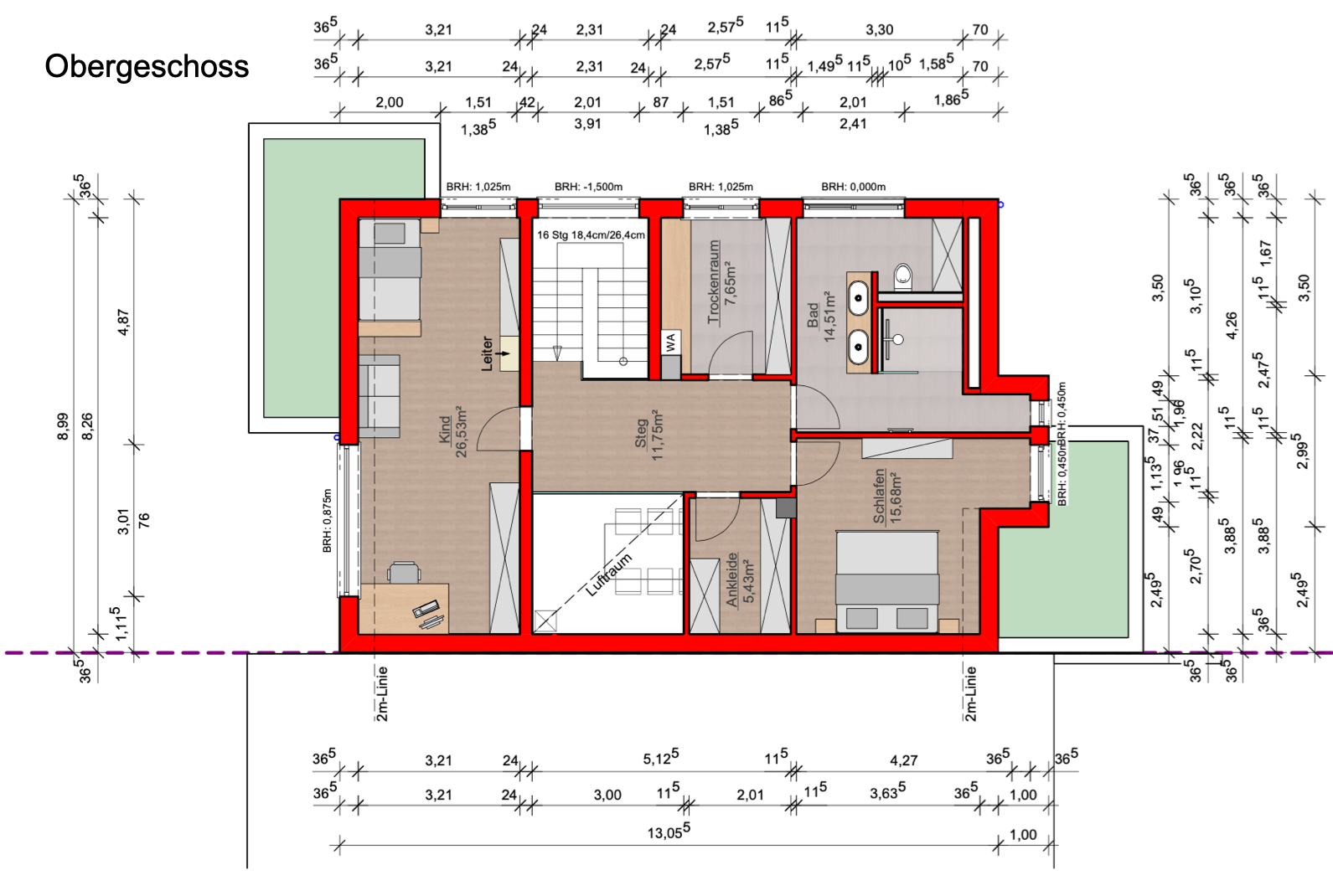
    Im Anhang die Grundrisse von ELW, OG, DG und Außenansichten.

    Wo wir gestartet sind/Grundlagen:
    - Einfamilienhaus mit Grenzbebauung – ein Kind (10)
    - Leichte Hanglage – optimal für eine kleine ELW zur späteren Benutzung durch den Nachwuchs oder Vermietung
    - Dachneigung 38° - Satteldach
    - Südhanglage
    - Grundstück ca. 650qm
    - der kleine Anbau im hinteren Wohnraum EG ist zustande gekommen, da die Nachbarn ein deutlich längeres Haus stellen wollen und wir versuchen, die entstehende Wand an unserer Terrasse etwas zu kaschieren.
    - meine Frau hatte einen Bandscheibenvorfall und wir haben beschlossen einen Wäscheaufzug vom Keller in’s OG einzuplanen. Die Waschmaschinen sollen aber auf jeden Fall im Keller bleiben.
    - Wir planen momentan eine einfache Gasheizung, PV-Anlage und zentrale Wohnraumbelüftung
    - Gaskamin
    - offene Bauweise


    Unsere Hauptbedenken sind momentan:
    - Ist die Größe angemessen? Auf dem Plan Sieht das alles ganz nett aus, aber wenn der Architekt einen voraussichtlichen Preis von 545kEUR aufruft, kommt man schon in’s grübeln, ob das alles so seine Richtigkeit hat. (Der Bauplatz wollte ja auch schon bezahlt werden)
    - Findet Ihr die Außenansicht harmonisch/stimmig?
    - haltet Ihr einen Kleiderschrank in der Größe im OG für ausreichend?
    - Wir haben den Architekten momentan nur bis Phase 4 beauftragt --> haltet Ihr es für sinnvoll, auch die anderen Bauphasen von ihm durchführen zu lassen, oder besser durch einen externen Baufachmann? Für 5-9 stehen immerhin nochmal 45kEUR auf der Uhr und das kommt mir doch recht viel vor.

    Wir freuen und jetzt schon auf Eure Rückmeldungen und eine offene Diskussion!

    Liebe Grüße
    Der Johann
    Aussenansichten_JFugger.png
    ELW_JFugger.png
    EG_JFugger.png
    OG_JFugger.png
     
  2. #2 Gast85808, 26.04.2020
    Gast85808

    Gast85808 Gast

    ich bezweifel mal, daß die Summe reicht...
     
    11ant gefällt das.
  3. #3 Kriminelle, 26.04.2020
    Kriminelle

    Kriminelle

    Dabei seit:
    16.05.2013
    Beiträge:
    3.747
    Zustimmungen:
    2.075
    Beruf:
    .
    Ort:
    Niedersachsen
    Hallo Johann,
    Zeichne doch mal bitte den Lageplan mit Ausrichtung und gedachtem Gebäude ein.
    Und entweder einen Querschnitt des Hanges oder eine Beschreibung der Neigung/Steigung im Baufenster.
    Danke.
    Wenn Du es noch hast, dann auch Euer Raumprogramm, was Ihr dem Archi gegeben habt.
    Auf IPad kann ich zwar die Fotos nicht ohne Reue öffnen, aber bis ich am Bildschirm sitze, hast Du sicherlich die Angaben auch eingestellt.
     
  4. #4 JohannFugger, 26.04.2020
    JohannFugger

    JohannFugger

    Dabei seit:
    26.04.2020
    Beiträge:
    5
    Zustimmungen:
    0
    Hallo,
    danke für die schnelle Antwort! Hier noch der Lageplan (unser Haus in rot) und Querschnitt.
    Der künftige Nachbar ist im Schnitt auch in rosa eingezeichnet - ist im Lageplan aber noch nicht berücksichtigt...
    Grüße
    Der Johann
    Lageplan_JFugger.png Schnitt_JFugger.png
     
  5. 11ant

    11ant

    Dabei seit:
    28.02.2017
    Beiträge:
    2.501
    Zustimmungen:
    1.578
    Beruf:
    Bauherrenberater
    Ort:
    RLP Nord
    Benutzertitelzusatz:
    bringt Sie gut beraten ins Eigenheim
    Al und ich glauben das nicht, Johann - und zwar schon exklusive Grundstück nicht.
    In der Erker-Diagonalkaskade sehe ich keinen Mehrwert, und ...
    ... never ever käme ich auf solch´ eine Idee, aber das ist hier ja relativ noch die Ansichtssache unter den Kritikpunkten.
    Mit Schädeldecke und Halswirbelsäule sehe ich die gesamte Familie ein Problem bekommen. Der Architekt ist offenbar ein großer Verehrer von M.C. Escher (an die Zlatkos und Schantalles unter den Mitlesern: nein, das ist kein Rapper).
     
    simon84 und Gast85808 gefällt das.
  6. #6 JohannFugger, 26.04.2020
    JohannFugger

    JohannFugger

    Dabei seit:
    26.04.2020
    Beiträge:
    5
    Zustimmungen:
    0
    Hallo 11ant,

    erstmal danke für Deine Antwort - noch zwei Rückfragen, damit ich es auch richtig verstehe:

    Soll heißen, Du/Ihr findet es ebenfalls zu teuer?

    Warum? Wegen der Kellertreppe? Haben wir etwas übersehen?

    Danke und Grüße
    Der Johann
     
  7. #7 driver55, 26.04.2020
    driver55

    driver55

    Dabei seit:
    22.02.2008
    Beiträge:
    6.898
    Zustimmungen:
    1.809
    Beruf:
    Dipl.-Ing.
    Ort:
    Pforzheim
    Bevor hier weiter geplant / optimiert wird, würde ich das Budget festlegen. Das ist normalerweise die erste „Amtshandlung“ beim Projekt Eigenheim. (Ausser, Geld spielt keine Rolle.)

    Wer hat den „Längsten“?


    Für wen oder was. Hört sich nach „Archi bitte mach mal“ an. (Und so sieht’s auch aus.) Gab es keine (konkreten) Vorgaben von euch? Außer offen und Gasheizung?

    S.o.

    Ich sehe mehrere Schränke. Über den oder die Schränke muss aktuell aber auch nicht diskutiert werden.

    Ich sehe z.B. ca. 200 qm, seltsam aufgeteilte 95 qm Kochen/EssenWohnen, Luftraum und eine Ankleide die nicht funktioniert...und noch viele weitere „Baustellen“.
    Weitere ca. 120 qm (ELW, Garage etc.)...

    ...puh...und dann „schlanke“ 545 k€
     
    Jo Bauherr und simon84 gefällt das.
Thema:

Feedback Grundriss // Feuer frei?!

Die Seite wird geladen...

Feedback Grundriss // Feuer frei?! - Ähnliche Themen

  1. Grundriss EFH 150m2 (Hang, Souterrain, ELW) – Feedback zu Effizienz & Raumaufteilung

    Grundriss EFH 150m2 (Hang, Souterrain, ELW) – Feedback zu Effizienz & Raumaufteilung: Hallo liebe Bauexperten, wir planen ein Eigenheim mit ELW in Hanglage und haben uns schon zahlreiche Gedanken gemacht. Ich möchte die Chancen, die...
  2. Grundriss EFH Nordgarten - Feedback erwünscht

    Grundriss EFH Nordgarten - Feedback erwünscht: Hallo zusammen, wir sind eine Familie mit zwei Kindern (2+5J) und haben ein Grundstück für den Bau eines EFH (Satteldach, 1 Vollgeschoss)...
  3. Mein Grundriss für ein EFH - Feedback erwünscht

    Mein Grundriss für ein EFH - Feedback erwünscht: Hallo zusammen, wir haben das rot eingezeichnete Grundstück 677/15 in der Flurkarte unten gekauft. Das große Grundstück (677/15 und 677/4) wurde...
  4. Mein Grundriss fürs Doppelhaus – Feedback erwünscht

    Mein Grundriss fürs Doppelhaus – Feedback erwünscht: Hallo zusammen, ich habe für ein Doppelhaus einen Grundriss entworfen und möchte ihn gerne hier mit euch teilen. [ATTACH] [ATTACH] [ATTACH]...
  5. EFH Grundriss - Bitte um Feedback

    EFH Grundriss - Bitte um Feedback: Hallo zusammen, nach langem Tüfteln würden wir uns über Feedback zu unserem Grundriss sehr freuen ☺️ 1. Wir sind: aktuell 2 Erwachsene (32 Jahre)...