Feedback zum Grundriss gewünscht

Diskutiere Feedback zum Grundriss gewünscht im Architektur Allgemein Forum im Bereich Architektur; @RingoStar: das mit dem Ofen im Wohnzimmer ist noch mal ein guter Hinweis, danke J da wir uns jetzt für eine Erdwärmeheizung entschieden haben,...

  1. #41 RingoStar, 22.03.2013
    RingoStar

    RingoStar

    Dabei seit:
    04.02.2013
    Beiträge:
    478
    Zustimmungen:
    0
    Beruf:
    Lager Arbeiter
    Ort:
    Duisburg
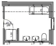
    Schade um den Ofen der aufgrund schlechter Planung jetzt herausfällt.

    Ja, aber optimal ist das mMn alles nicht. Ich hab euer Bad als Vorlage genommen um die echten Maße einzuhalten. Sag bitte Bescheid wenn das nicht in deinem Sinne ist, dann löscht der Ralf das wieder. Die Duschwand nicht deckenhoch mauern, sonst zieht der Dampf nicht richtig ab.
    Aufnahme2.jpg

    Gruß,
    RINGO
     
  2. #42 Thomas B, 22.03.2013
    Thomas B

    Thomas B

    Dabei seit:
    17.08.2005
    Beiträge:
    11.181
    Zustimmungen:
    4
    Beruf:
    Dipl.Ing.
    Das ist der Dachüberstand an der Giebelseite.

    solltetst Du schon wissen, wenn diese das Erscheinungsbild Deines Hauses maßgeblich beeinflussen! Ein großer Ortgangüberstand hält ja nicht von alleine. Er muß statisch unterstützt werden. Zum Beispeil mit einem Dachsparren (Holzbalken, auf dem die dachdeckung aufliegt). Dieser aber kann auch nicht in der Luft hängen. Also wird vor der Giebelseite noch ein Sparrenpaar liegen, welches wiederum auf insgesamt 5 auskragenden Pfetten (Balken parallel zur Firstrichtung, auf denen die Sparren aufliegen) ruht. Eine Pfette am First, zwei ganz unten (Fußpfette) und zwei in der Mitte (Mittelpfette). Würde mir nicht gefallen.
     
  3. #43 Thomas B, 22.03.2013
    Thomas B

    Thomas B

    Dabei seit:
    17.08.2005
    Beiträge:
    11.181
    Zustimmungen:
    4
    Beruf:
    Dipl.Ing.
    bevor ich hier noch weitere Romane verafsse, ein Bild eines Hauses mit auskragenden Pfetten + Flugsparrenpaar.

    130322_Pfetten_01.jpg
     
  4. #44 Gast036816, 22.03.2013
    Gast036816

    Gast036816 Gast

    Lucy - zum thema dachkonstruktion sage ich es mal anders rum:

    wenn dein dach so gebaut wird, wie gezeichnet wurde, fällt es zusammen. an den konstruktiven und entwerferischen qualitäten deines zeichners hapert es an einigen stellen!
     
  5. #45 Ralf Dühlmeyer, 22.03.2013
    Ralf Dühlmeyer

    Ralf Dühlmeyer

    Dabei seit:
    14.06.2005
    Beiträge:
    34.296
    Zustimmungen:
    24
    Beruf:
    Architekt
    Ort:
    Hannover
    Moment - Ihr habt ja recht und es ist gut, darauf hinzuweisen, aber eine Genehmigungszeichnung ist keine Ausführungszeichnung.
    Von daher darf die sogar Schwächen haben.
     
  6. #46 Thomas B, 22.03.2013
    Thomas B

    Thomas B

    Dabei seit:
    17.08.2005
    Beiträge:
    11.181
    Zustimmungen:
    4
    Beruf:
    Dipl.Ing.
    Ja, die Entwurfszeichnung muß nicht alles darstellen...logo.

    Aber wesentliche Punkte (schlanker Ortgang ohne durchdringende Bauteile vs. üppiger Ortgang mit aufwendiger und sichtbarer Konstruktion) die das Erschenungsbild wesentlich beeinflussen, sollten dann schon dargestellt werden.
     
  7. #47 Gast036816, 22.03.2013
    Gast036816

    Gast036816 Gast

    lieber jetzt konstruktiv gerade rücken, die kosten sollen schliesslich auch passen. von daher sehe ich zwischen diesen schwächen in der entwurfszeichnung mit genauem kostenbudget eine gehörige diskrepanz! baukonstruktive elemente gehören für mich in diesem stadium mit erfasst, was man durchgehen lassen kann, dass die mittelpfetten z. b. nicht in den erforderlichen dimensionen dargestellt werden.
     
  8. #48 Thomas B, 22.03.2013
    Thomas B

    Thomas B

    Dabei seit:
    17.08.2005
    Beiträge:
    11.181
    Zustimmungen:
    4
    Beruf:
    Dipl.Ing.
    ...nur mal als Beispiel (sofern richtig interpretiert...ist aber nur schlecht zu erkennen):

    Die Kehlbalkenlage ist in einer Gesamtstärkew von 16 cm dargestellt (vermaßt!). Eine Mittelpfette fehlt gänzlich. Die tatsächliche (wirklich...echte) Deckenstärke dürfte aber eher im Bereich 25 - 30 cm liegen (GK-Decke - Unterkonstruktion...evtl. dopp. UK? - Kehlbalkenlage - Bretterboden: 15 mm + 30 mm + (evtl. 30 mm) + 180 mm + 20 mm = 24,5 - 27,5 cm. Das hat Auswirkungen auf die Lichte im OG oder Spitzboden. Oder beides.

    Im Entwurf ist eine Mittelpfette bei mir auch nur ein Rechteck ohne genaue Dimension...sie ist eben da. Im Bauantrag genauso. Da nehme ich eben eine erfahrungsgemäß funktionierendes Maß. Aber deren gänzlicher Verzicht ist in diesem Planungsstadium schon etwas befremdlich, sicher kein K.O. - Kriterium...natürlich nicht! Aber sie gehört dargestellt. Vor allem wenn ich schon alles vermaße. Bin ich noch nicht so weit, ist hier noch einiges im Flusse, dann vermaße ich das auch nicht. Nicht vermaßt ist dann m.E. besser als falsch vermaßt/ falsch dargestellt.
     
  9. #49 TraurigerBauher, 22.03.2013
    TraurigerBauher

    TraurigerBauher

    Dabei seit:
    14.03.2010
    Beiträge:
    273
    Zustimmungen:
    0
    Beruf:
    Beamter
    Ort:
    Norddeutschland
    Unsere auskragenden Pfetten wurden schon von vielen für schön befunden, das Beispiel, das Thomas gebracht hat, sieht ja in der Tat recht hässlich aus:
    Auskragende Pfetten.gif
     
  10. #50 Thomas B, 22.03.2013
    Thomas B

    Thomas B

    Dabei seit:
    17.08.2005
    Beiträge:
    11.181
    Zustimmungen:
    4
    Beruf:
    Dipl.Ing.
    "Schön" ist halt "Geschmacksache"

    ich finde Durchdringungen immer problematisch. WEenn nötig, klar, dann muß es halt sein. Lassen sie sich verhindern, verhindere ich sie.

    Holz verwindet, verdreht sich....die Fugen zw. Putz und Holz werden aufreissen....
     
  11. #51 TraurigerBauher, 22.03.2013
    TraurigerBauher

    TraurigerBauher

    Dabei seit:
    14.03.2010
    Beiträge:
    273
    Zustimmungen:
    0
    Beruf:
    Beamter
    Ort:
    Norddeutschland
    @Lucy: Wie viel mehr sollten denn 20 cm mehr kosten? Bei uns waren das ca. 3000 € auf den Komplettpreis. Vielleicht waren es auch 5000€, aber mehr auf keinen Fall. Vielleicht könnt Ihr da noch etwas verhandeln.
     
  12. #52 Anna1985, 22.03.2013
    Anna1985

    Anna1985

    Dabei seit:
    09.01.2013
    Beiträge:
    16
    Zustimmungen:
    0
    Beruf:
    Project Manager
    Ort:
    Neukirchen-Vluyn
    Wir haben in einem Musterhaus gesehen, dass der Platz unter der Treppe als Schuhschrank genutzt wurde und ich fand es ganz angenehm.
     
  13. #53 Gast036816, 22.03.2013
    Gast036816

    Gast036816 Gast

    @ TraurigerBauher - es geht momentan nicht um schönheit von pfettenköpfen, sondern um mittelpfetten im entwurf insgesamt, um die richtige konstruktive darstellung im plan überhaupt. das foto von Thomas sollte dem laien erst einmal eine konstruktive ansicht vermitteln, ästhetik ist dabei erst einmal nebensache.

    ganz nebenbei - deine pfettenköpfe gefallen mir aber auch nicht!
     
  14. #54 Baufuchs, 22.03.2013
    Baufuchs

    Baufuchs Gast

    Oder mal ein weiteres Angebot einholen. Gibt in Lippstadt ja mehrere Hausbauer...:biggthumpup:
     
  15. Lucy79

    Lucy79

    Dabei seit:
    11.03.2013
    Beiträge:
    162
    Zustimmungen:
    0
    Beruf:
    Personalreferentin
    Ort:
    Nicht weit weg
    Also erstmal ein ganz dickes fettes Lob an alle, die sich so viele Gedanken machen :) Mir schwirrt so langsam der Kopf von den ganzen Informationen. Ich glaub, ich muss mir das alles noch mal ein paar Tage durch den Kopf gehen lassen.


    @Thomas B:
    so ganz ist mir nicht klar, was an den Zeichnungen fehlt und warum das Probleme geben kann. Der Architekt hat uns noch eine Zeichnung gemacht, wie der Spitzbodenausbau aussehen könnte und hat da auch die qm berechnet. Irgendwie passt das dann ja nicht, oder? *grübel*

    Hab jetzt noch mal genauer geschaut und ich muss sagen, dass mit den auskragenden Pfetten ist hier Standard, also zumindest wenn ich mich bei den Häusern in der Umgebung so umschaue. Was wäre denn die Alternative dazu?


    @Ralf Dühlmeyer:
    Danke für deine Ideen. Mit der ausziehbaren Tischplatte kann ich mich so gar nicht anfreunden. Sieht sehr ungemütlich und improvisiert aus. Das mit dem eingezeichneten Fenster an der Südseite hatte unser Architekt ursprünglich auch vorgeschlagen, aber an der Wand soll die Dunstabzugshaube und 2 Hängeschränke hin, somit kam dadurch erst die Idee, ein bodentiefes Fenster zu integrieren.


    @Ringo Starr:
    der Ofen fällt nicht wegen einer möglichen schlechten Planung raus, sondern weil wir mit einer Erdwärmeheizung keinen zusätzlichen Ofen mehr haben wollen (bzw. finanzieren wollen).

    Danke für deinen Vorschlag fürs Bad (natürlich ist das vollkommen i.O., wenn du die Zeichnung als Grundlage nimmst!). Mir persönlich gefällt die Anordnung so nicht bzw. kann ich es mir nicht so gut vorstellen. Sieht irgendwie aneinandergereit aus, kann aber sein, dass es in der Realität gut aussehen würde. Ich werde da noch mal drüber nachdenken

    @trauriger Bauherr:
    ich hatte am Telefon nachgefragt und der Bauunternehmer meinte, ca. 5.000 – 7.000 €.

    @Baufuchs:
    momentan steht nur das Rohbauunternehmen fest und da das ein guter Freund von mir ist werden wir auf jeden Fall mit ihm bauen. Und das Einholen von anderen Angeboten gestaltete sich in der Realität als eher schwierig
     
  16. #56 Baufuchs, 22.03.2013
    Baufuchs

    Baufuchs Gast

    Stell doch mal den Schnitt mit der Treppe zum Spitzboden und den Spitzbodengrundriss hier ein, dann sehen wir mal ob das passt.
     
  17. Lucy79

    Lucy79

    Dabei seit:
    11.03.2013
    Beiträge:
    162
    Zustimmungen:
    0
    Beruf:
    Personalreferentin
    Ort:
    Nicht weit weg
    Das ist das einzige, was ich noch habe ;) muss aber dazu sagen, dass uns das so nicht gefällt. Wenn, dann würden wir den Spitzboden als einen Raum ausbauen. Ich weiß nicht, ob man die qm-Angaben in der Skizze erkennen kann, also links steht NGF 6,25 qm und rechts NGF 6,98 qm.

    Schnitt2.jpg
     
  18. #58 NixPlan, 22.03.2013
    NixPlan

    NixPlan

    Dabei seit:
    14.03.2013
    Beiträge:
    216
    Zustimmungen:
    1
    Beruf:
    Student Architektur
    Ort:
    Trier
    Benutzertitelzusatz:
    Schlüsselfertiger Wohnungsbau
    Bitte laß dein Bad mit dem "T". Dieses T-reicht wenn es 2,20m hoch gemauert wird, dann zieht auch der Dampf ab :D. Den kleinen Zippel an der Dusche laß aber lieber weg. Kannst dein Bad aber gerne umbauen und die Sachen nett aneinanderreihen.

    Kommt eine Wohnraumlüftung ins Haus?

    Der Spitzboden macht in meinen Augen nur sinn als Abstellraum (stell mal einen Schrank dort hinein), ich würde das Geld und den Platz für diese Treppe sparen.

    Und bitte mach laßt euch den Dachüberstand möglichst gering ohne Auskragenden Pfetten planen, wenn ich sowas von Trauriger Bauherr sehe bekomm ich fast immer krämpfe, sorry.
     
  19. #59 NixPlan, 22.03.2013
    NixPlan

    NixPlan

    Dabei seit:
    14.03.2013
    Beiträge:
    216
    Zustimmungen:
    1
    Beruf:
    Student Architektur
    Ort:
    Trier
    Benutzertitelzusatz:
    Schlüsselfertiger Wohnungsbau
    so stell ich mir nen Dachüberstand vor:
    Dach.JPG
     
  20. #60 Gast036816, 22.03.2013
    Gast036816

    Gast036816 Gast

    Lucy - wie willst du die einschubtreppe betreten, wenn die treppenöffnung im og mit einer brüstung umwehrt ist.

    das 1. gesetz der physik gilt noch: wo ein körper ist, kann kein zweiter sein!
     
Thema: Feedback zum Grundriss gewünscht
Besucher kamen mit folgenden Suchen
  1. Flugsparrenpaar holz

    ,
  2. ausbauen grundriss spitzboden

Die Seite wird geladen...

Feedback zum Grundriss gewünscht - Ähnliche Themen

  1. Grundriss EFH Nordgarten - Feedback erwünscht

    Grundriss EFH Nordgarten - Feedback erwünscht: Hallo zusammen, wir sind eine Familie mit zwei Kindern (2+5J) und haben ein Grundstück für den Bau eines EFH (Satteldach, 1 Vollgeschoss)...
  2. Mein Grundriss für ein EFH - Feedback erwünscht

    Mein Grundriss für ein EFH - Feedback erwünscht: Hallo zusammen, wir haben das rot eingezeichnete Grundstück 677/15 in der Flurkarte unten gekauft. Das große Grundstück (677/15 und 677/4) wurde...
  3. Mein Grundriss fürs Doppelhaus – Feedback erwünscht

    Mein Grundriss fürs Doppelhaus – Feedback erwünscht: Hallo zusammen, ich habe für ein Doppelhaus einen Grundriss entworfen und möchte ihn gerne hier mit euch teilen. [ATTACH] [ATTACH] [ATTACH]...
  4. EFH Grundriss - Bitte um Feedback

    EFH Grundriss - Bitte um Feedback: Hallo zusammen, nach langem Tüfteln würden wir uns über Feedback zu unserem Grundriss sehr freuen ☺️ 1. Wir sind: aktuell 2 Erwachsene (32 Jahre)...
  5. Feedback zu unserem Grundriss gewünscht

    Feedback zu unserem Grundriss gewünscht: Hallo zusammen, wir haben nun unseren Hausentwurf im Groben fertig. Schaut Euch das gerne mal an und gebt uns Feedback. Niedriges Dach ist...