Feedback zum Grundriss / Hausentwurf

Diskutiere Feedback zum Grundriss / Hausentwurf im Architektur Allgemein Forum im Bereich Architektur; Eine gerade Treppe hat den größten Platzbedarf. Deine Treppe sieht man auch oft bei Grundrissen von Reihenhäusern. Es gibt zwar noch kompaktere...

  1. JarnoC

    JarnoC

    Dabei seit:
    24.07.2014
    Beiträge:
    320
    Zustimmungen:
    1
    Beruf:
    Mathematiker
    Ort:
    Potsdam
    Eine gerade Treppe hat den größten Platzbedarf. Deine Treppe sieht man auch oft bei Grundrissen von Reihenhäusern. Es gibt zwar noch kompaktere Treppen. Diese sind aber wohl kaum geeignet.
     
  2. nolu13

    nolu13

    Dabei seit:
    29.01.2013
    Beiträge:
    1.448
    Zustimmungen:
    1
    Beruf:
    Elektriker
    Ort:
    RLP
    Naja,wenn der Raum größer werden soll,verschiebt sich natürlich wieder alles .
    Im OG dann genauso.
    Ob es dann noch passt?

    Das wird verdammt eng.
    Hat aber weiter oben auch schon mal jemand geschrieben.
    Evtl.kann man ja die Haustechnik und Elektro auf die 2 HWR aufteilen.
     
  3. #43 Havanadiver, 21.11.2014
    Havanadiver

    Havanadiver

    Dabei seit:
    27.09.2011
    Beiträge:
    218
    Zustimmungen:
    0
    Beruf:
    Geschäftsführer
    Ort:
    BW
    Wäre es keine Option das Gästezimmer mit dem Schlafzimmer zu tauschen?
     
  4. Cosmos

    Cosmos

    Dabei seit:
    31.10.2014
    Beiträge:
    25
    Zustimmungen:
    0
    Beruf:
    Bauherr
    Ort:
    Thüringen
    Das Gäste- / Arbeitszimmer wird wahrscheinlich deutlich mehr genutzt, da dort auch ein Homeoffice hin soll. Das große Fenster würde in einem reinen Schlafzimmer wahrscheinlich seinen Zweck verfehlen. Dort sind wir ja hauptsächlich nachts und schlummern. Die Aussicht würde so nicht gewürdigt ;)
     
  5. Cosmos

    Cosmos

    Dabei seit:
    31.10.2014
    Beiträge:
    25
    Zustimmungen:
    0
    Beruf:
    Bauherr
    Ort:
    Thüringen
    nächste Entwurfsphase

    Hallo alle miteinander,

    anbei möchten wir mal den nächsten Stand unserer Entwurfsplanung einstellen und zur Diskussion freigeben. Würden uns freuen, wenn ihr wieder ein Feedback abgebt.

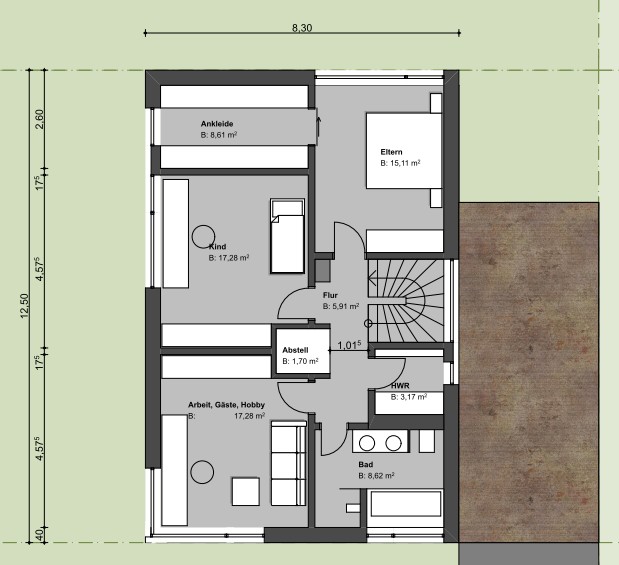
    Welchen Variante im OG würdet ihr bevorzugen?
    Oder habt ihr eine Idee, wie man im OG aus den 3 Entwürfen ein Optimum erstellen kann?


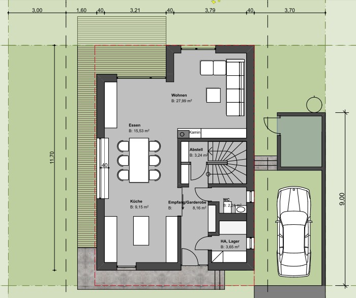
    Anmerkung EG:
    - eine „Einbaugarderobe“ im Flur wurde vorgesehen
    - Laut Architekt bekommt er alle Medien und Anschlüsse im unteren HWR unter. Wir möchten hier u.a. auf die bereits erwähnte Hauswirtschaftsnische setzen. Lager wird hier nicht entstehen
    - Die Sitzfläche des Sitzfensters im Essbereich wurde schmaler / der Tischbereich entsprechend weitläufiger (jetzt auch mit 2 Stuhlreihen :e_smiley_brille02:
    - Im Wohnbereich wurde das Fenster zum Garten vergrößert
    - Die Insel in der Küche kommt nicht. Wir werden eine „L-Form“ auf der linken Seite planen
    - Im Bad EG wurde die Dusche wieder entfernt


    Anmerkung OG:
    - Beschriftung Kinder- und Elternschlafzimmer ist noch vertauscht
    - Das Bad wurde vergrößert – jetzt ist Platz für einen Badschrank auf der linken Seite
    - Die Sitzbank neben der Dusche hat der Architekt mal als Idee skizziert – kommt eher nicht
    - Positionen Kind und Ankleide wurde wieder geändert – die Ankleide ist jetzt vom Flur für alle begehbar
    - Der Abstellbereich oben ist jetzt „bündig“ im Flur
    - Flur ist dadurch etwas geräumiger


    Anmerkung OG Alternative:
    - Eltern und Kind getauscht
    - Ankleide gehört wieder zum SZ der Eltern – dadurch werden die Schrankflächen etwas größer
    - Die „Abstellkammer“ entfällt
    - Flur wieder etwas „kleiner“


    Zur besseren Einordnung haben wir nochmal "OG urspünglich" beigefügt.


    Danke im Voraus
     

    Anhänge:

  6. #46 Gast036816, 24.11.2014
    Gast036816

    Gast036816 Gast

    wo ist etwas besser geworden? ankleide ist z. b. immer noch zu schmal.
     
  7. Cosmos

    Cosmos

    Dabei seit:
    31.10.2014
    Beiträge:
    25
    Zustimmungen:
    0
    Beruf:
    Bauherr
    Ort:
    Thüringen
    @ rolf a i b:

    ...die Änderungen habe ich in dem Post vor deinem beschrieben.
    Was die Ankleide anbelangt, hatten wir ja schon geschrieben, dass wir mit dieser Lösung / Breite leben können. Oder meintest du noch was anderes?
     
Thema:

Feedback zum Grundriss / Hausentwurf

Die Seite wird geladen...

Feedback zum Grundriss / Hausentwurf - Ähnliche Themen

  1. Feedback zu Grundriss EFH Nordhang

    Feedback zu Grundriss EFH Nordhang: Hallo zusammen, nachdem unser erster Planungsanlauf mit einem Architekten im letzten Jahr leider komplett gescheitert ist, haben wir nun einen...
  2. Grundriss EFH 150m2 (Hang, Souterrain, ELW) – Feedback zu Effizienz & Raumaufteilung

    Grundriss EFH 150m2 (Hang, Souterrain, ELW) – Feedback zu Effizienz & Raumaufteilung: Hallo liebe Bauexperten, wir planen ein Eigenheim mit ELW in Hanglage und haben uns schon zahlreiche Gedanken gemacht. Ich möchte die Chancen, die...
  3. Grundriss EFH Nordgarten - Feedback erwünscht

    Grundriss EFH Nordgarten - Feedback erwünscht: Hallo zusammen, wir sind eine Familie mit zwei Kindern (2+5J) und haben ein Grundstück für den Bau eines EFH (Satteldach, 1 Vollgeschoss)...
  4. Mein Grundriss für ein EFH - Feedback erwünscht

    Mein Grundriss für ein EFH - Feedback erwünscht: Hallo zusammen, wir haben das rot eingezeichnete Grundstück 677/15 in der Flurkarte unten gekauft. Das große Grundstück (677/15 und 677/4) wurde...
  5. Mein Grundriss fürs Doppelhaus – Feedback erwünscht

    Mein Grundriss fürs Doppelhaus – Feedback erwünscht: Hallo zusammen, ich habe für ein Doppelhaus einen Grundriss entworfen und möchte ihn gerne hier mit euch teilen. [ATTACH] [ATTACH] [ATTACH]...