Ferienwohnung umbauen / renovieren

Diskutiere Ferienwohnung umbauen / renovieren im Architektur Allgemein Forum im Bereich Architektur; Wir haben ein Ferienhaus an der Ostsee, was eine Renovierung nötig hat. Das Haus ist zu DDR-Zeiten unter widrigen Umständen entstanden. Damals...

  1. #1 K a t j a, 07.06.2020
    K a t j a

    K a t j a

    Dabei seit:
    31.05.2019
    Beiträge:
    1.009
    Zustimmungen:
    582
    Ort:
    Leipziger Land
    Wir haben ein Ferienhaus an der Ostsee, was eine Renovierung nötig hat. Das Haus ist zu DDR-Zeiten unter widrigen Umständen entstanden. Damals waren Neubauten ein Ding der Unmöglichkeit. Also wurde an ein vorhandenes Objekt dran gestückelt, umgebaut und erweitert - alles was möglich war. Einen Schönheitspreis kann man damit sicher nicht gewinnen, aber unsere Stammkunden sind jedes Jahr wieder da. Nun planen wir wenigtsens die nötigesten Dinge zu machen, denn wie immer ist das Budget winzig und die Wünsche endlos.

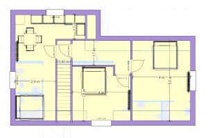
    Das Objekt gliedert sich in 2 Parteien mit 1x 2 Schlafzimmern (2x Eltern) und 1x 2+1 Zimmern (2x Eltern + 1x Kizi). Ich hab die Parteien mal farblich markiert. Die Ausgangssituation sieht etwa so aus:

    Istzustand EG.jpg
    Istzustand OG.jpg


    Wie man sieht, gibt es so einige Baukatastrophen - die wir leider nicht alle ausmerzen können. Was uns mitlerweile aber sehr stört ist, dass es im OG keine Duschen/WCs an den Zimmern gibt. Die Gäste müssen die Treppe runter und dann wieder hoch. Das ist vor allem für unsere älteren Gäste unzumutbar geworden, wenn diese 5x die Nacht raus müssen (die Treppe ist ja auch nicht ohne mit nur 3,50m Länge). Zudem sind die Minibäder bei Zimmer 1 und 2 eine Katatstrophe bzgl. Dusche. Hier gibt es nur eine offene Dusche, so dass immer das ganze WC mit nass wird. Für einen Abtrennung ist es zu eng, die Dusche wäre unter 80cm.

    Der Inhaber würde außerdem gern die Nachtspeicheröfen entfernen und dafür Gasheizungen einbauen. Die Heizkörper sind also auch flexibel.

    Bislang ist diese Idee aktuell:

    Umbau-Idee-EG.jpg
    Umbau-Idee-OG.jpg


    Probleme dabei: Zimmer 1 und 2 nutzen eine gemeinsame Dusche. Ich hatte mal eine ähnliche Lösung in meiner Studentenbude. Die Tür gegenüber ging zu, wenn ich rein ging und ich konnte nur zu meiner Seite wieder raus. Schmetterlingsbad nennt man das wohl. Allerdings ist die Machbarkeit fragwürdig und auch die Frage, ob die Gäste das akzeptieren.

    Die Wand raus reißen, um die Bäder einfach größer zu machen, will der Eigner keinsfalls, da dort auch die Elektrik verläuft. Wir müssen also mit dem Minibad eine praktikable Lösung finden.
    Diskutiert wird noch diese Variante, die allerdings ein sehr großer Aufwand inkl. Schleppdach, Bodenplatte und dem ganzen Terz wäre:

    Umbau-Idee-EG3.jpg

    Hier sind die Kosten aber vermutlich gigantisch nur für eine Dusche. Das schreckt den Bauherren ab.

    Im OG wäre der Plan, die Küche aus Zimmer 3 zu entfernen und dort 2 Duschen / WCs einzufügen. Die Abwasserrohre wären vermutlich machbar, da sowieso schon Rohre hoch und runter gehen. Zumindest kam das OK vom Bauherren, der das ganze Objekt selbst mit gebaut hat und daher gut kennt. Mit den Dachschrägen sind wir hier spitz auf Knopf, aber es könnte gerade so klappen. Damit es nicht zu dunkel wird, könnte man noch einige DFF einfügen. Das Dach soll sowieso irgendwann neu gedämmt werden. Also könnte man dabei gleich mal ein paar Löcher rein sägen.

    Umbau-Idee-OG.jpg


    Die Küche für die DG-Partei im EG ist natürlich recht klein, aber noch akzeptabel oder? Unter der Treppe ist die Elektrik - da kann man leider auch nix mehr einbauen. In die Sitzecke kommt man nur von einer Seite, das ist dann eben so.

    Auf Zimmer verzichten können wir nicht, es wird jeder Schlafplatz gebraucht.
    Was denkt Ihr? Habt Ihr vielleicht noch Tipps für uns? Was würdet Ihr machen?
     
  2. #2 Andreas Teich, 07.06.2020
    Andreas Teich

    Andreas Teich

    Dabei seit:
    20.03.2012
    Beiträge:
    3.102
    Zustimmungen:
    529
    Beruf:
    Gebäude-Energieberater, Planungsbüro, HW-Meister
    Ort:
    Bonn und Kärnten/Österreich
    Benutzertitelzusatz:
    Ggf anrufen sofern sich’s im Rahmen hält…
    Wie sind denn nun die Eigentumsverhältnisse?
    Mit kleinem Budget ist das nicht machbar, wobei es momentan doch ohnehin einen Run auf Ferien an der Ostsee geben soll, also Rentabilität einer Ferienimmobilie möglich sein müßte.
    Ich würde das einmal richtig planen und dann umbauen bzw sanieren, um es an heutige Ansprüche anzupassen und um langfristig gute Vermietbarkeit zu ermöglichen.
    Das dann auch mit Kredit finanzieren und wenn möglich Eigenleistungen erbringen zur Kostenersparnis.
    Wie ist das Gebäude baurechtlich eingestuft? Wurde alles genehmigt?
    Fotos sind sinnvoll.
     
  3. #3 K a t j a, 07.06.2020
    K a t j a

    K a t j a

    Dabei seit:
    31.05.2019
    Beiträge:
    1.009
    Zustimmungen:
    582
    Ort:
    Leipziger Land
    Wie meinste das? Das Objekt gehört meinem Vater. Er hat das letzte Wort ist aber schon 75 Jahre und möchte uns die Initiative überlassen - klar.
    Die Rentabilität spielt weniger eine Rolle - das Objekt war noch nie rentabel, sondern eher Eigenbedarf. Das Budget gestaltet sich so, dass man jedes Jahr wieder etwa 30K einbringen könnte. Allerdings nicht 90K auf einmal.
    Kredit ist eher nicht gewollt. Theoretisch könnte man alles aus der Eigenkapitalkasse einer vorhandenen Firma nehmen, aber das ist auch nicht gewollt. Das Geld brauchts als Sicherheit. Ich sehe hier auch die Möglichkeit, in 2 Schritten zu sanieren. Das dürfte dem Modell der schrittweisen Modernisierung entgegen kommen. Klar wäre eine Hauruck-Aktion schöner, aber dort oben hast Du sowieso nicht so viele Handwerker. Wir müssen alle mit hoch nehmen. Das ist irrwitzig und kostet Zeit.
    Ja klar, das Geäude ist seit mehr als 40 Jahren so genehmigt.
    Fotos wird jetzt schwierig. Wir wohnen in Sachsen und das Haus steht auf Usedom. ;)
     
  4. #4 MartialW, 28.06.2020
    MartialW

    MartialW

    Dabei seit:
    14.06.2020
    Beiträge:
    18
    Zustimmungen:
    9
    Ich kann nur zum Thema Schmetterlingsbad sagen, dass ich das nicht akzeptieren würde...ausser ich bin mit der ganzen Familie dort und kenne die Badmitbenutzer sehr gut.
     
  5. #5 K a t j a, 18.08.2020
    K a t j a

    K a t j a

    Dabei seit:
    31.05.2019
    Beiträge:
    1.009
    Zustimmungen:
    582
    Ort:
    Leipziger Land
    Möchte mal ein kleines Update geben.
    Bei dem Projekt hat sich das Budget auf 150K erhöht. Zur Diskussion steht deshalb nun dieser Entwurf:
    EG.jpg OG-V2.jpg

    Der Anbau soll eine richtige Decke erhalten und das Dach ausgebaut werden. Am EG ändert sich nicht viel. Im OG hätten wir nun 3 bequeme Duschbäder und 3 vollwertige Doppelzimmer. Zimmer 3 muss zwar leider über den Flur zum Bad, aber die 3m müssen verschmerzt werden. Ideen und Kritik sind willkommen. :)
     
    11ant gefällt das.
  6. #6 K a t j a, 21.09.2020
    K a t j a

    K a t j a

    Dabei seit:
    31.05.2019
    Beiträge:
    1.009
    Zustimmungen:
    582
    Ort:
    Leipziger Land
    Ich hätte mal eine simple Frage. Wenn ich mehrere Unterzüge brauche, wen frag ich da eigentlich? Problem: wir möchten mehrere Wände wegnehmen. Das Haus hat nur EG und DG. Blöderweise ist die Decke wie ein Puzzle aus lauter kleinen Stücken gegossen worden (es gab halt nix anderes). Daher wurde jede Miniwand als tragend genutzt. Insgesamt geht es da um einen Raum mit nur 4x4m. Dort brauche ich vermutlich jetzt 4 Unterzüge. Kann man die auch aus Holz machen und sichtbar als rustikales Gestaltungselement? Hält das dann? Oder wäre eher ein Stahlträger zu empfehlen? Könnte ersteres der Zimermann mit machen? Und wenn es Stahl sein soll, wer kann mir das liefern?
     
  7. Alex88

    Alex88
    Moderator

    Dabei seit:
    14.10.2014
    Beiträge:
    6.601
    Zustimmungen:
    3.565
    Beruf:
    GF, Kaufmann, Trockenbaumeister
    einen Architekten und einen Statiker

    dafür gibt es doch Teleobjektive..:mega_lol::mega_lol::mega_lol:
     
    11ant und simon84 gefällt das.
Thema: Ferienwohnung umbauen / renovieren
Besucher kamen mit folgenden Suchen
  1. zwei ferienwohnungen in ein haus umbauen

Die Seite wird geladen...

Ferienwohnung umbauen / renovieren - Ähnliche Themen

  1. Wohnhaus in Haus mit Ferienwohnungen umwandeln

    Wohnhaus in Haus mit Ferienwohnungen umwandeln: Hallo zusammen, ich habe ein altes Haus in Rheinlandpfalz. Ich wollte dieses nun in ein Haus mit Ferienwohnungen umwandeln. Zuvor war es ein...
  2. Warmwasserversorgung in Ferienwohnungen

    Warmwasserversorgung in Ferienwohnungen: Aktuell planen wir einen Umbau eines landwirtschaftlichen Gebäudes zu Ferienwohnungen. Insgesamt 4, jede FW (a 5 Personen) mit 2 Bädern (Duschen)...
  3. Grundriss Ferienwohnung Teil 2

    Grundriss Ferienwohnung Teil 2: Hallo liebe Bauexperten, Anfang nächsten Jahres werde ich ein Haus Bj. 1906 übernehmen. In dieses Haus sind 2 Einlieger-/Ferienwohnungen...
  4. Dezentrale Lüftungsanlage für Ferienwohnung im Keller

    Dezentrale Lüftungsanlage für Ferienwohnung im Keller: Hallo, wir betreiben in unserem Haus eine Ferienwohnung im Keller. Wir haben leichte Hanglage, so dass die Südseite des Hauses nur etwa zur...