Fragen zu unserem Grundriss

Diskutiere Fragen zu unserem Grundriss im Architektur Allgemein Forum im Bereich Architektur; Hallo zusammen, ich bin neu hier im Forum. Ich benötige Rat und hoffe mir, dass ihr mich unterstützen könnt. Wir möchten bauen und haben unseren...

  1. #1 Daniel1990, 09.02.2025
    Daniel1990

    Daniel1990

    Dabei seit:
    09.02.2025
    Beiträge:
    3
    Zustimmungen:
    0
    Hallo zusammen,

    ich bin neu hier im Forum. Ich benötige Rat und hoffe mir, dass ihr mich unterstützen könnt. Wir möchten bauen und haben unseren Grundriss soweit fertiggestellt. Bevor wir die weiteren Schritte angehen, bin ich in Gewissen Themen noch unschlüssig und würde euch gerne meine Fragen stellen:

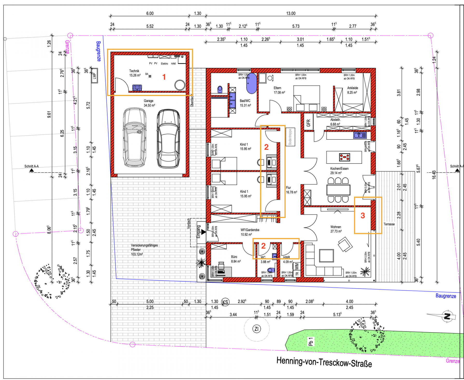
    Das ist unser Grundriss:

    upload_2025-2-9_20-51-32.png

    Ich habe die Bereiche im Grundriss farbig markiert und nummeriert. Die Nummern entsprechen der Fragen. Sollte einfacher für das Auge sein.

    1) Die allerwichtigste Frage ist der Technikraum hinter der Garage. Hier kommt ja das Wasser von der Stadt aus dem Boden raus und wird ins Haus verteilt. Da sich der Technikraum außerhalb des Hauses befindet, muss man ja das Wasser vom Technikraum wieder durch den Boden ins Haus bringen. Und aufgrund Frostschutz muss das Wasser denke ich mindestens 80 cm unter dem Boden verlaufen. Und dann muss das Wasser quasi unter die Bodenplatte des Hauses wieder ins Haus gelangen. Ich hatte das mal mit einem Freund besprochen, der das etwas als problematisch gesehen hat. Aber ich möchte mich nicht auf seine Meinung begrenzen. Seht ihr es als Problem, wenn der Technikraum sich außerhalb des Hauses befindet? Kostentechnisch, Machbarkeit, Aufwand?
    Wenn der Technikraum sich innerhalb des Hauses befindet würde, müsste man einmal durch die Bodenplatte durch und kann das Wasser durch das ganze Haus verteilen.

    2) Türen Kinderzimmer: Die Türen der Kinderzimmer sind im Grundriss am Rand des Zimmers gestellt. Diese könnte man auch mittig hinstellen. Habt ihr dazu eine Meinung oder sollte man die Position nach der zukünftigen Einrichtung richten? Vielleicht gibt es ja vor und Nachteile für beide Optionen die ich nicht sehe. Dasselbe gilt auch für HWR und WC. Wobei es hier wahrscheinlich unwichtiger ist.

    3) Da ich im Wohnzimmer ein Eckfenster haben möchte, frage ich mich, ob diese Wand, die übrig bleibt eventuell unschön aussehen könnte, wenn der Rest der Wand aus einem Schiebefenster besteht und nur dieser Teil als Wand bestehen bleibt. Oder sollte ich eurer Meinung nach auch diesen Teil als Fenster bestücken. Am Ende ist natürlich wichtig, was das kostet, aber die Frage kann uns nur der Fachmann beantworten.

    Und falls euch sonst noch etwas einfällt oder ihr eine Anmerkung machen wollt, sehr gerne.

    Ich freue mich auf eure Beiträge.
     

    Anhänge:

  2. #2 driver55, 10.02.2025
    driver55

    driver55

    Dabei seit:
    22.02.2008
    Beiträge:
    6.929
    Zustimmungen:
    1.837
    Beruf:
    Dipl.-Ing.
    Ort:
    Pforzheim
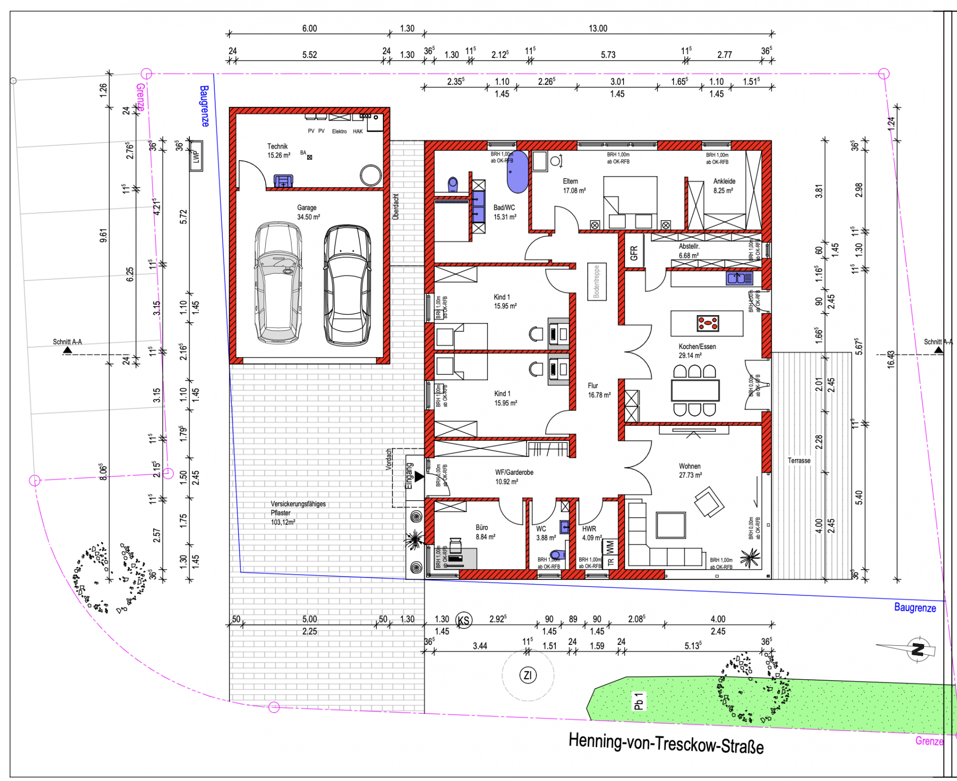
    Ich weiß, ein Bungalow ist deutlich schwieriger zu planen als ein Zweigeschösser, aber das mit den Türanschlägen ist hier noch das kleinste Übel.

    • wer will heute noch einen 16…17 m langen Flur mit fast 28 qm? (die Fläche kann man sinnvoller nutzen)
    • Wohnen/Essen und Terrasse auf Nord?
    • die KiZi auf Süd sind durch die Minifenster aber auch nicht wirklich hell(er), das obere Kind1 ist ne Dunkelkammer
    • Büro gehört auf Nord…
    • Reihenfolge Schlafen/Ankleide passt nicht (man pendelt bei Bad-Ankleide immer am Bett vorbei)
    • Türen Wohnen/Essen sind Glastüren? Sonst ist der Flur auch noch dunkel…
    Und ja, Türen würde man einrücken, damit Schrank/Regal dahinter passt…

    Rollt demnächst schon der Bagger an und ihr wolltet nur noch Details klären oder wie ist der Stand?
     
    11ant gefällt das.
  3. #3 Daniel1990, 10.02.2025
    Daniel1990

    Daniel1990

    Dabei seit:
    09.02.2025
    Beiträge:
    3
    Zustimmungen:
    0
    Erst einmal vielen lieben Dank für deine ausführliche und schnelle Rückmeldung. Nein, wir sind noch relativ am Anfang. Diese Zeichnung wurde vor einer Woche fertiggestellt und der Architekt wartet auf unsere Freigabe, damit die nächsten Schritte getan werden können. Statiker, Genehmigungen, etc. Also noch ist gar nichts passiert. Eilig haben wir es auch nicht. Aber Schritt für Schritt wollen wir eben vorankommen.

    Also mit der Floh bin ich auch nicht ganz zufrieden. Der ist mir auch wirklich sehr breit. Ich glaube 1,20 m würden wir da wirklich ausreichen. Ich weiß aber nur nicht, wie ich die Länge eigentlich noch verkürzen soll. Es ist halt immerhin ein Bungalow und ich weiß, um ehrlich zu sein wirklich nicht, wie ich das verkürzen soll. Und mein Architekt ist auch nicht wirklich eine Hilfe. Hast du Ideen bezüglich Flur? Oder hast du auch eine schnelle, spontane Idee, wie man das alles umstrukturieren kann auch mit deinen Ideen, die du da genannt hast? Vielleicht hast du ne schnelle Skizze für mich. Das kann ich dann selber ausbessern. Oder ist das zu viel verlangt? Also was die Flur angeht, bin ich total überfordert..

    Da wo der Eingang ist, ist der Norden. Also Wohnen/Essen sind auf Süd Seite. Büro ist mit dem Eckfenster Auf Nord und West.

    Reihenfolge Schlafe/Ankleide ist eine gute Anmerkung. Das kann ich denke ich noch anpassen.

    Genau, Wohnen/Essen werden Glastüren sein.

    Ich versuche immer schon eine alternative zu finden für diesen Grundriss, aber vergeblich. Grundsätzlich bin ich wirklich sehr zufrieden. Aber ich weiß nicht, wie ich das Problem mit der Flur lösen soll. Und anstatt Kinderzimmer müsste dann ja auch ein anderes Zimmer hin. Das wird ja dann auch dunkel oder? Oder sollte ich einfach größere Fernster einbauen lassen...
     
  4. 11ant

    11ant

    Dabei seit:
    28.02.2017
    Beiträge:
    2.566
    Zustimmungen:
    1.620
    Beruf:
    Bauherrenberater
    Ort:
    RLP Nord
    Benutzertitelzusatz:
    bringt Sie gut beraten ins Eigenheim
    Ich vermute, Du bist zu einer Baufirma gegangen und wurdest in der Hoffnung enttäuscht, daß die ansprechende Hausentwürfe anzubieten hätten; deren Zeichenknecht bringt auch keine zustande, und einen freien Architekten wähnst Du zu teuer. Dann hast Du es irgendwie selbst versucht, Dich irgendwie belesen und mühst Dich nun ab wie eine Stubenfliege im Todeskampf. Fangen wir doch einmal vorne an: 1. wie sind die Vorgaben des Bebauungsplanes, ist da tatsächlich ein Bungalow zwingend vorgegeben ?; 2. wer hat sich ausgedacht, daß die Garage vom Haus abgerückt steht (und dann auch noch die Idee mit dem Hausanschlußraum hinter der Garage gehabt) ?
    Lege mal die Grundlagen / Rahmenbedingungen auf den Tisch und stelle mal Dein Denken auf laut - dann finden wir gemeinsam die Stelle, wo Du (offensichtlich) grundlegend falsch abgebogen bist.
    170 qm für grob geschätzt 513k EUR zzgl. Garage ohne daß irgendwelche Zimmer zu üppig geraten wären, das sieht schon alles sehr erbarmungswürdig aus. Ist Dir klar, wie leicht bei einer Laienplanung für die rein aus der ungelenken Planung resultierende und kein Gramm Mehrwohnwert erzeugenden Überquadratmeter erheblich mehr Geld für Baukosten ausgegeben wird, als ein freier Architekt an Honorar gekostet hätte (das er de facto zum Teil sogar wieder einspart) ?
     
    driver55 gefällt das.
  5. #5 driver55, 11.02.2025
    driver55

    driver55

    Dabei seit:
    22.02.2008
    Beiträge:
    6.929
    Zustimmungen:
    1.837
    Beruf:
    Dipl.-Ing.
    Ort:
    Pforzheim
    Lass das mal die machen, die das gelernt haben und dafür bezahlt werden. Ihr müsst nur die Wünsche äußern.
    (Zumindest Nord/Süd passt.)
     
  6. #6 Daniel1990, 11.02.2025
    Daniel1990

    Daniel1990

    Dabei seit:
    09.02.2025
    Beiträge:
    3
    Zustimmungen:
    0
    Ich weiß nicht, ob man mich falsch verstanden hat. Aber ich mache hier auch nichts selber. Ich wollte hier nur Rat einholen, da der Fachmann, mit dem ich aktuell zusammenarbeite, leider keine große Hilfe ist. Kreativität ist hier das A und O. Und einfach mal den Architekten wechseln geht halt nicht so einfach. Das sind Kosten.

    Aber danke euch für die Meinungen. Und falls jemand noch helfen kann, nehme ich die Hilfe sehr gerne an.
     
  7. #7 Kriminelle, 11.02.2025
    Zuletzt bearbeitet: 11.02.2025
    Kriminelle

    Kriminelle

    Dabei seit:
    16.05.2013
    Beiträge:
    3.827
    Zustimmungen:
    2.154
    Beruf:
    .
    Ort:
    Niedersachsen
    Wo wird gebaut???

    Die Fragen beantworte ich gern mit, aber im Grunde ist da irgendwie alles verdreht geplant - außer man will das so.

    Hier handelt es sich um ein Eckgrundstück, wo auch immer in Deutschland. Norden ist planlinks..
    Der Bungalow sowie die Garage ist plump mittig auf das schöne Grundstück gesetzt, sodass man gar nicht mehr von einem schönen Gartenanteil sprechen kann.
    Es liegt für mich nahe, dass man planoben die Garage auf die Grenze setzt mit kostengünstiger kurzer Auffahrt von Nord.
    Das Haus dann so positionieren, dass man im Süden und Westen schöne Gartenanteile bekommt.
    Es kann allerdings sein, dass hier ein Hang eine Rolle spielt (Norden?), sodass man diese Variante gewählt hat, aber das weiß ich/wissen wir nicht.

    Dann sollte man das mehr persönliche Wohnzimmer eher so im Haus planen, dass man von der Straße nicht den Einblick (wie hier durch ein Panoramafenster) bekommt. Richtung Straße wäre eher die Alltagsküche bzw der Aktionsraum Wohnküche einzuplanen. Wohnzimmer könnte weniger Tageslichtfenster vertragen, dafür sollten Kinderzimmer viel Tageslicht bekommen.
    Nebenräume wie WC, Bad und HWR können gern und gut im Norden (oder Osten) eingeplant werden. Da kann sich auch besser der Technikraum einreihen.

    Gab es solche Gedanken bei der Planung? Ich sehe das Grundlegende hier überhaupt nicht bedacht. Zudem ist das eine Kizi durch die Garage völlig abgedunkelt, die Fenster der Kizis sind eh nicht üppig, sondern eher das Gegenteil, nämlich für 15qm überhaupt nicht ausreichend. Hier verdreifacht sich der Planungsfehler quasi.

    Dann fällt mir auf, dass die Kinderzimmer auch genau ggü der Alltags- und Gastzone sind. Bedeutet für Kinder Unruhe und schlaflose Abende, wenn die Eltern mal Besuch haben.
    Was mir noch auffällt:
    - Die Speis ist sehr lang. Das bedeutet lange Wege beim Kochen.
    - Die 5 Meter 67 in der Küche sind sehr knapp für Inselküche und Esstisch.
    - Die Terrasse gehört an die Küche und nicht an das Wohnzimmer
    - Die Ankleide ist ein gefangener Raum , das Schlafzimmer ein Durchgang zur Ankleide. Bedeutet, dass man den noch Schlafenden mit Licht und Geräuschen stört, wenn man sich morgens als erster fertig macht. Abends umgekehrt: wer früher ins Bett möchte, der wird dann wieder vom Nachttreibenden geweckt.
    Wer krank ist, bekommt keine Ruhe. Deshalb, wenn es planbar machbar ist, die Ankleide vor das SZ setzen.
    - Der lange Flur ist eine teure Vergeudung von Wohnfläche. 26qm sind auch 50 tsd €. Da gibt es weit aus geschickter geplante Bungalows.

    Das, was wirklich schön ist, ist die große Garderobenschrankwand, die von der Größe und Lage perfekt ist. Auch die Größen und der Schnitt der Kizis finde ich toll. Allerdings, wie schon erwähnt, hat man von den schön geschnittenen Räumen nichts, wenn sie kaum Tageslicht bekommen. Die Fensterflächen müssten vom Richtwert so ca. das Doppelte haben und dann eben auch Richtung Süd oder West.

    Ja. Du hast es ja ganz schön erfasst. Solang man es anders planen kann, sollte man es tun!

    Kann man machen, muss man aber nicht.
    Die "übrige" Wand ist keine übrige Wand, sondern kann man sehr schön als Highlight betonen mit einem schönen Möbel oder einem besonderen Wanddesign . Eigentlich bietet sich so eine Wand genau dafür an, was ich weiter oben schrieb: als eine Sichtschutzwand gegen Einblicke von draußen.

    Überlege, wenn Ihr dieses Eckfenster unbedingt haben wollt, ob es im WZ die gerechte Anerkennung von Euch bekommt. Ich gehe davon aus, dass Ihr in einer Wohnung lebt, wo das WZ eine sehr zentrale Rolle spielt, da Wohnungsgrundrisse darauf ausgerichtet sind. Allerdings ist ein Haus-Leben dann doch etwas anders: Man hält sich zentraler in der Küche bzw am Esstisch auf, dann geht es Richtung Terrasse, die im Sommer den Essraum ersetzt und dann weiter in den Garten, wo man sich bei gutem Wetter auch abends aufhält, aldiweil zum entspannen in der Natur (Garten) und weil der Garten auch etwas Arbeit bedeutet. Man sitzt bis zur Dämmerung und länger im Garten, eventuell an der Feuerschale oder quatscht am Nachbarzaun, WZ ist quasi nur noch TV- und Lümmelecke, ggf mal an einem faulen Wochenende im Winter Aufenthaltsort.

    Dann lasst Euch Zeit! Ich sehe hier noch gar keinen Bauantrag.

    Fülle mal am besten den Fragebogen aus, stelle das ganze Grundstück ein, und dann sehen wir weiter :-)
     
    Christoph628, driver55 und 11ant gefällt das.
  8. #8 Kriminelle, 11.02.2025
    Kriminelle

    Kriminelle

    Dabei seit:
    16.05.2013
    Beiträge:
    3.827
    Zustimmungen:
    2.154
    Beruf:
    .
    Ort:
    Niedersachsen
    Außerdem möchte ich mal sagen, dass man ja seine berechtigten Gründe haben darf, ein Bungalow zu bauen (ich hätte in meinem körperlichen Zustand auch gern einen), aber 200qm der Erde zu versiegeln mit der Garantie, dass es in der Mitte des Bungalows ohne Tageslicht dunkel werden wird, dabei aber zudem bedenken sollte, dass man für 4 Personen inklusive Kinder plant, sind die Kinderzimmer (oder später Hobby- und Enkelzimmer) in einem weiteren Geschoss viel besser aufgehoben. Nähe und innige Familienverhältnisse sind wichtig - noch wichtiger aber ist auch gefühlter Freiraum im seinem Heim. Und da sorgt ein Geschosswechsel für manch Frieden, den man "auf eng", auch wenn es 200qm sind, nicht so einfach hätte.
     
    driver55 und 11ant gefällt das.
  9. #9 11ant, 11.02.2025
    Zuletzt bearbeitet: 11.02.2025
    11ant

    11ant

    Dabei seit:
    28.02.2017
    Beiträge:
    2.566
    Zustimmungen:
    1.620
    Beruf:
    Bauherrenberater
    Ort:
    RLP Nord
    Benutzertitelzusatz:
    bringt Sie gut beraten ins Eigenheim
    In den bisherigen "Meinungen" stecken bereits einige Hilfen drin, von denen ich nicht den Eindruck habe, daß sie Dich erreichten.
    Ich sagte bereits, daß allein das Bauen der schlechtgelungenen Bereiche mehr kosten wird als das ganze Architektenhonorar nach HOAI-Tabelle im Mandatsumfang LP 1 bis 8. Der Architekt soll Dir nicht nur "eine Hilfe sein", sondern seinen Job ganz ohne Deine Unterstützung erfüllen können. Den Garage-Haus-Abstand in den Papierkorb zu werfen (oder die DiskutantInnen zumindest zu erleuchten, welchen Zweck der haben sollte) kostet überhaupt nichts. Rat nicht anzunehmen, kostet mindestens die Baukosten der Realisierung der Fehlplanung.
     
  10. #10 driver55, 11.02.2025
    driver55

    driver55

    Dabei seit:
    22.02.2008
    Beiträge:
    6.929
    Zustimmungen:
    1.837
    Beruf:
    Dipl.-Ing.
    Ort:
    Pforzheim
    Zusammengefasst / Kurz und knapp: Gehe nicht über Los, sondern betätige den Resetknopf (wenn du einen gut funktionierenden Grundriss und auch noch sparen möchtest.)
     
  11. #11 Kriminelle, 25.03.2025
    Kriminelle

    Kriminelle

    Dabei seit:
    16.05.2013
    Beiträge:
    3.827
    Zustimmungen:
    2.154
    Beruf:
    .
    Ort:
    Niedersachsen
    @Daniel1990 kommt hier noch etwas von Dir?
    Da gibt man sich Mühe, konzentriert sich auf Eure Planung, und dann kommt nix mehr. ...:respekt
     
    11ant gefällt das.
Thema:

Fragen zu unserem Grundriss

Die Seite wird geladen...

Fragen zu unserem Grundriss - Ähnliche Themen

  1. kommt in unserem Altbau eine Deckenheizung in Frage

    kommt in unserem Altbau eine Deckenheizung in Frage: Hallo, wir sanieren gerade ein Haus aus 1976. Es ist ein unterkellerter Bungalow mit ca 130qm Grundflaeche. - Aussenwand ist Poroton 30cm...
  2. Fragen zur Renovierung unserer Dachkästen

    Fragen zur Renovierung unserer Dachkästen: Hallo, ich habe einige Fragen zur Renovierung unserer Dachkästen. Wir besitzen ein Friesenhaus mit Krüppelwalmdach (Bj. 1995), die Dachüberstände...
  3. Eine Frage zu unseren Löchern im Boden und dem Geldfund darin...

    Eine Frage zu unseren Löchern im Boden und dem Geldfund darin...: Moinmoin aus dem hohen Norden! Im Obergeschoss unseres Hauses habe ich beim rausreißen des alten Teppichs (danke ihr lieben Vorbesitzer, der...
  4. Frage zur Positionierung unseres Hauses

    Frage zur Positionierung unseres Hauses: Hallo, ich lese hier schon länger mit, habe mich aber gerade eben erst angemeldet. Wir möchten nächstes Jahr bauen und lassen gerade vom...
  5. Fragen zur Ausführung unseres KS Mauerwerks

    Fragen zur Ausführung unseres KS Mauerwerks: Hallo Experten, unser Rohbau wächst zur Zeit rasant und an der einen oder anderen Ecke kommen uns Zweifel ob unser KS Mauerwerk fachgerecht...