Garage/Carport zu nah am Haus geplant

Diskutiere Garage/Carport zu nah am Haus geplant im Begleitende Ingenieurleistungen Forum im Bereich Neubau; Du kommst zur Tür raus und stehst auf dem Podest. Dann drehst du dich 90 Grad nach rechts und gehst 2 Steigungen runter. So ist es jedenfalls...

  1. #21 tillfisc, 17.02.2016
    tillfisc

    tillfisc

    Dabei seit:
    19.09.2012
    Beiträge:
    368
    Zustimmungen:
    3
    Beruf:
    Architekt
    Ort:
    Rottweil
    Du kommst zur Tür raus und stehst auf dem Podest.
    Dann drehst du dich 90 Grad nach rechts und gehst 2 Steigungen runter.
    So ist es jedenfalls gezeichnet.

    Und nun brauchst du halt 3 Steigungen - ist doch kein Problem.

    Gesendet von meinem D6603 mit Tapatalk
     
  2. Baumal

    Baumal

    Dabei seit:
    02.08.2007
    Beiträge:
    16.077
    Zustimmungen:
    8
    Beruf:
    Architekt
    Ort:
    Ravensburg
    ich frage mich was da für treppen-"planungsfirmen" zugegen waren,
    die unverrichterter dinge, das weite gesucht haben.
     
  3. #23 Ralf Dühlmeyer, 17.02.2016
    Ralf Dühlmeyer

    Ralf Dühlmeyer

    Dabei seit:
    14.06.2005
    Beiträge:
    34.296
    Zustimmungen:
    24
    Beruf:
    Architekt
    Ort:
    Hannover
    Ich gehe davon aus, dass der TE abweichend von der Planung eine dreiseitige Treppe haben wollte, um
    • vom Weg ins Haus
    • vom Carport direkt (und nicht über LOS ;)) ins Haus
    • von Carport und Haus direkt nach hinten
    gehen zu können.

    DAS geht natürlich nicht!
     
  4. #24 flehmann, 17.02.2016
    flehmann

    flehmann

    Dabei seit:
    13.09.2010
    Beiträge:
    220
    Zustimmungen:
    0
    Beruf:
    IT
    Ort:
    Potsdam
    Benutzertitelzusatz:
    Werbeeinblendungen im Beiträg sind nicht von mir
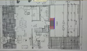
    treppe.jpg
    Wird nur so funktionieren vorne hoch hinten wieder runter zum Carport reicht der Platz nicht. Im Plan wurde es schon so angedeutet allerding mit nur 2 Steigungen vorn.
     
  5. #25 eltorito, 17.02.2016
    eltorito

    eltorito

    Dabei seit:
    07.08.2014
    Beiträge:
    574
    Zustimmungen:
    2
    Beruf:
    Anwendungsentwickler
    Ort:
    Viersen
    Selbst wenn die Treppe zum Carport hinunter ginge. Könnte diese, je nach Auto, Probleme mit den Autotüren machen. Manch ein Coupé kommt schon mit > 1m. Türen daher ...
     
  6. #26 Kater432, 17.02.2016
    Kater432

    Kater432

    Dabei seit:
    27.10.2011
    Beiträge:
    1.447
    Zustimmungen:
    0
    Beruf:
    Techniker
    Ort:
    Teltow bei Berlin
    Ich glaube es ist eine "sie" ;-)

    vom Plan her sieht es eh aus wie eine Garage mit einem Carport 'davor' Hier wurde ja nun eher eine Doppelgarage mit offener Seitenwand gebaut.
    Von der Planung her, ist doch klar auf dem Bild zu sehen, das ein Podest geplant war mit Stufe nach vorne raus.
    nichts mit seitlichen Abgang zum Carport oder abgang nach hinten.
    Wenn die Pläne so unterschrieben & freigegeben wurden, was will man da noch gegen angehen ?

    Der Wunsch ist jetzt sicherlich kein Podest sondern mit 3 Stufen ins Carport und 3 Stufen nach vorne und nach hinten. Und das geht natürlich mit 1,2m nicht.
    Den Höhenunterschied von Haus / Carportboden haben wir ja auch noch nicht. Bei 3 Stufen vom Podest ins Carport und 25cm Auftritt würden da also 50cm verloren gehen von den 1,2m, also bleiben noch 0,70 als Podest oben, diese wären mir wohl auch etwas schmal um nach vorne rauszukommen.
     
  7. #27 blacksun2912, 17.02.2016
    blacksun2912

    blacksun2912

    Dabei seit:
    16.02.2016
    Beiträge:
    10
    Zustimmungen:
    0
    Beruf:
    Angestellte
    Ort:
    Thierhaupten
    Nach vorne richtung Carport zur gehen ist schlicht unmöglich, weil das deutlich niedriger steht und man sich jedes mal an der Carportdecke die Birne einschlägt beim rausgehen
     
  8. #28 Ralf Dühlmeyer, 17.02.2016
    Ralf Dühlmeyer

    Ralf Dühlmeyer

    Dabei seit:
    14.06.2005
    Beiträge:
    34.296
    Zustimmungen:
    24
    Beruf:
    Architekt
    Ort:
    Hannover
    Ja, ist schon klar, das es da Kopfaua gibt.

    Aber das war in der Planung auch gar nicht vorgesehen! Da habt ihr bei der Planung halt nicht gemerkt, dass die Treppe nicht nur ein Platzhalter für Eure Wunschtreppe ist.
    Ist so, ärgern, abhaken.
     
  9. #29 abcdefg2014, 17.02.2016
    abcdefg2014

    abcdefg2014

    Dabei seit:
    14.01.2014
    Beiträge:
    23
    Zustimmungen:
    2
    Beruf:
    Ingenieur
    Ort:
    Schwaben (Bayern)
  10. #30 flehmann, 17.02.2016
    flehmann

    flehmann

    Dabei seit:
    13.09.2010
    Beiträge:
    220
    Zustimmungen:
    0
    Beruf:
    IT
    Ort:
    Potsdam
    Benutzertitelzusatz:
    Werbeeinblendungen im Beiträg sind nicht von mir
    treppe.jpg
    Nach vorn war als in Richtung Einfahrt gemeint und mit nach hinten warscheinlich in Richtung Garten. Aus der Haustür raus grade Richtung Carport geht nicht. Hätte der Planer (fals er das überhaupt geplant hat) eigentlich sehen müssen.
     
  11. #31 Bauliesl, 17.02.2016
    Bauliesl

    Bauliesl

    Dabei seit:
    02.02.2012
    Beiträge:
    1.129
    Zustimmungen:
    0
    Beruf:
    Architektin
    Ort:
    73230
    Aber das war offensichtlich noch nie so vorgesehen - zumindest vom Planer nicht. Der TE konnte evtl. den Plan nicht lesen, der aber eigentlich eindeutig ist, und hatte in seiner Vorstellung eine Treppe, die von allen Seiten zugänglich ist. Ist sie aber nicht, und sie war auch nicht so geplant.
     
  12. #32 flehmann, 17.02.2016
    flehmann

    flehmann

    Dabei seit:
    13.09.2010
    Beiträge:
    220
    Zustimmungen:
    0
    Beruf:
    IT
    Ort:
    Potsdam
    Benutzertitelzusatz:
    Werbeeinblendungen im Beiträg sind nicht von mir
    Stimmt, auf dem Plan ist ja das Podest mit 2 Steigungen zur Strasse hin eingezeichnet. Und wenn jetzt 3 Steigungen benötigt werden (so ca. 55-60cm Höhenunterschied) ist das was in den Plan eingezeichnet wurde, auch nur ein "Platzhalter". So wie es eingezeichnet wurde, müssten man um in den Garten zukommen immer 3 Stuffen runter und durchs Carport oder einmal ums Haus. BH und Planer das bestimmt nicht richtig besprochen oder Aussenanlagen wr nicht Bestandteil der Planung (machen wir später) Aber das sind alles nur Spekulationen.
     
  13. R.B.

    R.B.

    Dabei seit:
    19.08.2005
    Beiträge:
    48.826
    Zustimmungen:
    17
    Beruf:
    Dipl.Ing. NT
    Ort:
    BW
    Zur Erinnerung, Garage sitzt schon auf der Grenze. Ob noch Platz war um das Haus zu verschieben, wer weiß. Umsonst war das Podest mit den Stufen sicherlich nicht eingezeichnet, und aus dem Plan ist auch ersichtlich, wie das später realisiert werden soll. Jetzt nach einer komplett anderen Lösung zu suchen ist sinnfrei, der Zug ist durch. Umsetzen wie geplant, und alles wird gut.
     
  14. #34 Ralf Wortmann, 17.02.2016
    Ralf Wortmann

    Ralf Wortmann

    Dabei seit:
    30.09.2009
    Beiträge:
    2.206
    Zustimmungen:
    2
    Beruf:
    Fachanwalt für Bau- und Architektenrecht
    Ort:
    Magdeburg
    Ich frage mich, ob der Fertig-Carport und die Fertiggarage überhaupt bei der Hausbaufirma beauftragt wurden. Oft bitten die Bauherren den GU auch nur, diese im Bauantrag nebenbei mit einzuzeichnen und kaufen sich später dann so eine Fertiggarage direkt beim Hersteller/Händler.

    @Blacksun2012 war das auch bei euch so, oder hat der GU/GÜ die Lieferung und Aufstellung der Garagen mit in seinem Werkvertrag gehabt?
    Wenn nicht, ist das „Erwähnen“ z.B. einer Doppelgarage im Bauantrag oder im Kenntnisgabeverfahren meist nur eine unentgeltliche Nebenleistung, die der vom GU/GÜ beauftragte Architekt nebenbei miterledigt.

    Die Eingangstreppe zur Haustür war ja offensichtlich nicht Gegenstand des Werkvertrags mit der Baufirma, somit wäre unter der o.g. Prämisse die Baufirma auch nicht verpflichtet, diese in ihrer konkreten Ausgestaltung zu planen.

    Eine Hinweispflicht der Baufirma sehe ich nicht, da es ja eine Möglichkeit gibt, die Treppe mit drei Stufen nach vorne zur Straße hin mangelfrei zu errichten.
     
  15. #35 SirSydom, 17.02.2016
    SirSydom

    SirSydom

    Dabei seit:
    18.02.2014
    Beiträge:
    1.197
    Zustimmungen:
    0
    Beruf:
    Ingenieur (Dipl.-Inf.)
    Wie wäre es denn mit Garage + Carport 40cm höher setzen, dann reicht das Podest als einzige Steigung. Einfahrt hat dann halt etwas mehr Gefälle..

    Sollte doch machbar sein?
     
  16. #36 Baufuchs, 17.02.2016
    Baufuchs

    Baufuchs Gast

    wenn die in NRW bei Grenzgaragen zulässige max. Wandhöhe von 3,00m ausgereizt sind, geht da nix.

    Das, was der TE sich vorgestellt hat "geradeaus ins Car-Port gehen", war so nicht geplant und wäre bei den Gegebenheiten "Abstand Treppe zum Car-Port--Höhenunterschied" auch gar nicht möglich.

    Geplant war eine Treppe Richtung Straße, die kann nach wie vor gebaut werden, nur eben mit 1 Stufe mehr.

    TE war nicht in der Lage, den Plan zu lesen und sucht jetzt einen Planungsfehler. Den gibt's aber nicht.
     
  17. #37 Ralf Dühlmeyer, 17.02.2016
    Ralf Dühlmeyer

    Ralf Dühlmeyer

    Dabei seit:
    14.06.2005
    Beiträge:
    34.296
    Zustimmungen:
    24
    Beruf:
    Architekt
    Ort:
    Hannover
    Grenzgarage - Ja.
    Hier aber ist das Carport ja 3 m weg, könnte also gegenüber der Garage hochgesetzt werden (Grausame Optik mal aussen vor gelassen)
     
  18. #38 Frau Maier, 17.02.2016
    Frau Maier

    Frau Maier

    Dabei seit:
    28.01.2015
    Beiträge:
    1.116
    Zustimmungen:
    1
    Beruf:
    Dipl.-Ing.
    Ort:
    Bodensee
    Also hier wird von 10 Leuten die immer gleiche Antwort gegeben. Warum wiederholen neun Leute die Antwort noch einmal, die einer schon gegeben hat? Das will mir irgend wie nicht in die Birne... :hammer:
     
Thema: Garage/Carport zu nah am Haus geplant
Besucher kamen mit folgenden Suchen
  1. abstand haus garage

    ,
  2. abstand zwischen haus und garage

    ,
  3. Hauseingang seitlich Stufe Garage

    ,
  4. 1 meter platz zwischen haus und garage,
  5. wegüberdachung uwischen haus und garage,
  6. abstand carport hauswand,
  7. garage tiefer als haus,
  8. carport falsch geplant,
  9. garage neben hauseingang 3 meter,
  10. Durchgang breite Garage Haus,
  11. wie weit mindestabstand carport hauswand,
  12. abstand fertiggarage zum haus,
  13. durchgang haus garage podest,
  14. durchgang garage haus,
  15. zwischenraum garage haus,
  16. haus zu carport abstand,
  17. abstand haus zur garage,
  18. Haus Garage
Die Seite wird geladen...

Garage/Carport zu nah am Haus geplant - Ähnliche Themen

  1. Berechnung der mittleren Wandhöhe Carport/Garage

    Berechnung der mittleren Wandhöhe Carport/Garage: Hallo, auf unserem Grundstück haben wir bereits eine Bestandsgarage mit Abmessung Länge 6m x Breite 3m stehen. Da der Bau einer Doppelgarage...
  2. Abstandsflächen für Garage/Carport (Bayern)

    Abstandsflächen für Garage/Carport (Bayern): Garage Laut bayerische Bauordnung gilt für Abstandsflächen bei Garagen folgendes BayBO, Art. 6, Absatz 7 Bauvorhaben Garage Garage steht mit zwei...
  3. Baukosten individuelle Beton Garage+Carport

    Baukosten individuelle Beton Garage+Carport: Hallo Zusammen, da ich gerade ein privates Bauprojekt habe und viel Umbaue hoffe ich hier ein paar Experten zu finden und mir ein paar...
  4. Pultdach-Garage mit Carport und PV als Grenzbebauung in Bayern

    Pultdach-Garage mit Carport und PV als Grenzbebauung in Bayern: Hallo zusammen, ich recherchiere nun schon eine ganze Weile zum Thema Grenzbebauung und so ganz schlau werde ich beim Thema Höhe noch nicht....
  5. Carport zwischen Garage und Haus

    Carport zwischen Garage und Haus: guten Tag, bald wird unser Mehrfamilienhaus fertig gestellt! Da haben wir einen Stellplatz und eine Garage erworben, sieht man auf Bild:...