Gefälle zwischen Straße und Haustür/Garage

Diskutiere Gefälle zwischen Straße und Haustür/Garage im Architektur Allgemein Forum im Bereich Architektur; Hallo zusammen, ich habe am Freitag den Entwurf vom Architekten bekommen, beim reviewen ist mir ein Punkt aufgefallen, der mich seit 2 Tagen...

  1. #1 Baulaie1900, 11.02.2024
    Baulaie1900

    Baulaie1900

    Dabei seit:
    08.03.2023
    Beiträge:
    50
    Zustimmungen:
    8
    Beruf:
    Elekro Ingenieur
    Hallo zusammen,

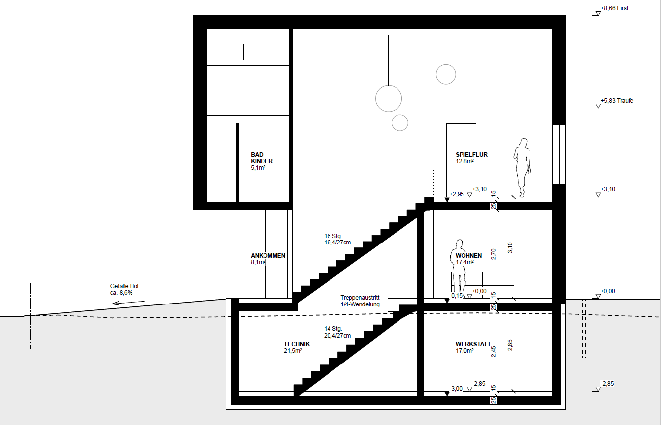
    ich habe am Freitag den Entwurf vom Architekten bekommen, beim reviewen ist mir ein Punkt aufgefallen, der mich seit 2 Tagen beschäftigt. Der Abstand zwischen Straße und Haustür bzw. Garage beträgt genau 6m. Da das Grundstück nicht ebenerdig ist (max Höhenunterschied zw. Nord und Süd = 1m) hat sich ein Gefälle von 8,6% ergeben (S. Anhang). Ich finde persönlich 8,6% für viel zu viel aber sicher bin ich mir nicht.
    Was ist Eure Einschätzung und was habt Ihr da für Vorschläge, falls meine Interpretation korrekt ist ?!?

    P.S.: Haustür und Garage befinden sich auf Westseite

    Vielen Dank & Grüße
     

    Anhänge:

  2. Dimeto

    Dimeto

    Dabei seit:
    22.07.2017
    Beiträge:
    1.635
    Zustimmungen:
    2.144
    Beruf:
    Vermessungsingenieur
    Ort:
    NRW
    Barrierefrei (max. 6%) ist es nicht mehr aber noch weit vom max. zulässigen Wert (15%) für Rampen zu Garagen entfernt.
    Architekten anrufen und fragen, warum das Haus so hoch gesetzt wurde. Wenn Dich die Erklärung nicht überzeugt, bitten das Haus tiefer zu planen.
     
    Jo Bauherr und 11ant gefällt das.
  3. #3 Baulaie1900, 11.02.2024
    Baulaie1900

    Baulaie1900

    Dabei seit:
    08.03.2023
    Beiträge:
    50
    Zustimmungen:
    8
    Beruf:
    Elekro Ingenieur
    Hallo Diemeto,

    vielen Dank für Deine Antwort, die mich bestätigt hat.

    Liebe Grüße aus Stuttgart
     
  4. #4 WilderSueden, 12.02.2024
    WilderSueden

    WilderSueden

    Dabei seit:
    26.11.2022
    Beiträge:
    736
    Zustimmungen:
    394
    Ort:
    Westlicher Bodensee
    Und den Flur oberhalb der Treppe nutzt man doch bitte als Flur und nicht als Spielplatz mit Absturzgarantie ;)
     
  5. #5 hanghaus2000, 13.02.2024
    hanghaus2000

    hanghaus2000

    Dabei seit:
    24.11.2021
    Beiträge:
    1.505
    Zustimmungen:
    619
    Beruf:
    Bauleiter, Kalkulator, Controller, Salzdesign
    Ort:
    Bayern
    Eventuell hilft hier ein Lageplan mit Hoehenangaben. Das Urgelaende sieht eben aus im Schnitt. Geht das Gefaelle vom Urgelaende zur Strasse?
     
  6. #6 Baulaie1900, 13.02.2024
    Baulaie1900

    Baulaie1900

    Dabei seit:
    08.03.2023
    Beiträge:
    50
    Zustimmungen:
    8
    Beruf:
    Elekro Ingenieur
    geht klar :-)
     
  7. #7 Baulaie1900, 13.02.2024
    Baulaie1900

    Baulaie1900

    Dabei seit:
    08.03.2023
    Beiträge:
    50
    Zustimmungen:
    8
    Beruf:
    Elekro Ingenieur
    ja das Gefälle geht zur Strasse. Ich babe mich für eine Stufe am Hauseingang entschieden, somit hat sich das Gefälle fast halbiert.
     
    hanghaus2000 gefällt das.
Thema:

Gefälle zwischen Straße und Haustür/Garage

Die Seite wird geladen...

Gefälle zwischen Straße und Haustür/Garage - Ähnliche Themen

  1. Poolterrasse verdichten und Gefälle Planung

    Poolterrasse verdichten und Gefälle Planung: Hallo zusammen, ich möchte dieses Jahr einen ConZero Stahlwandpool samt Terrasse errichten. Ich habe einen Lehmigen Boden. Jetzt benötige ich...
  2. Kein Gefälle auf Balkon

    Kein Gefälle auf Balkon: Hallo, ich habe hier einen Balkon der kürzlich mit Folie abgedichtet wurde. Nun hat der Balkon kein Gefälle zum Abfluss und es steht ~2cm Wasser...
  3. Zu hohes Gefälle von HT Bögen?

    Zu hohes Gefälle von HT Bögen?: Hallo zusammen, schon häufig konnte ich Beiträge in diesem Forum nutzen, um meine Probleme bei der Sanierung zu lösen. Jetzt gibt es ein...
  4. Duschwanne / Gefälle

    Duschwanne / Gefälle: Hallo zusammen, wir sind gerade in den ersten Zügen der Planung unserer Badsanierung und es taucht eine Frage auf: Die Dusche 90x90 (in der Ecke...
  5. Hebeanlage: Höhe Rückstauebene bei Straße mit Gefälle

    Hebeanlage: Höhe Rückstauebene bei Straße mit Gefälle: Hatte gestern eine Diskussion mit einem Installateur. Dieser misst einfach die Straßenhöhe vor der Haustür und überträgt diese Höhe ins Haus und...