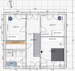
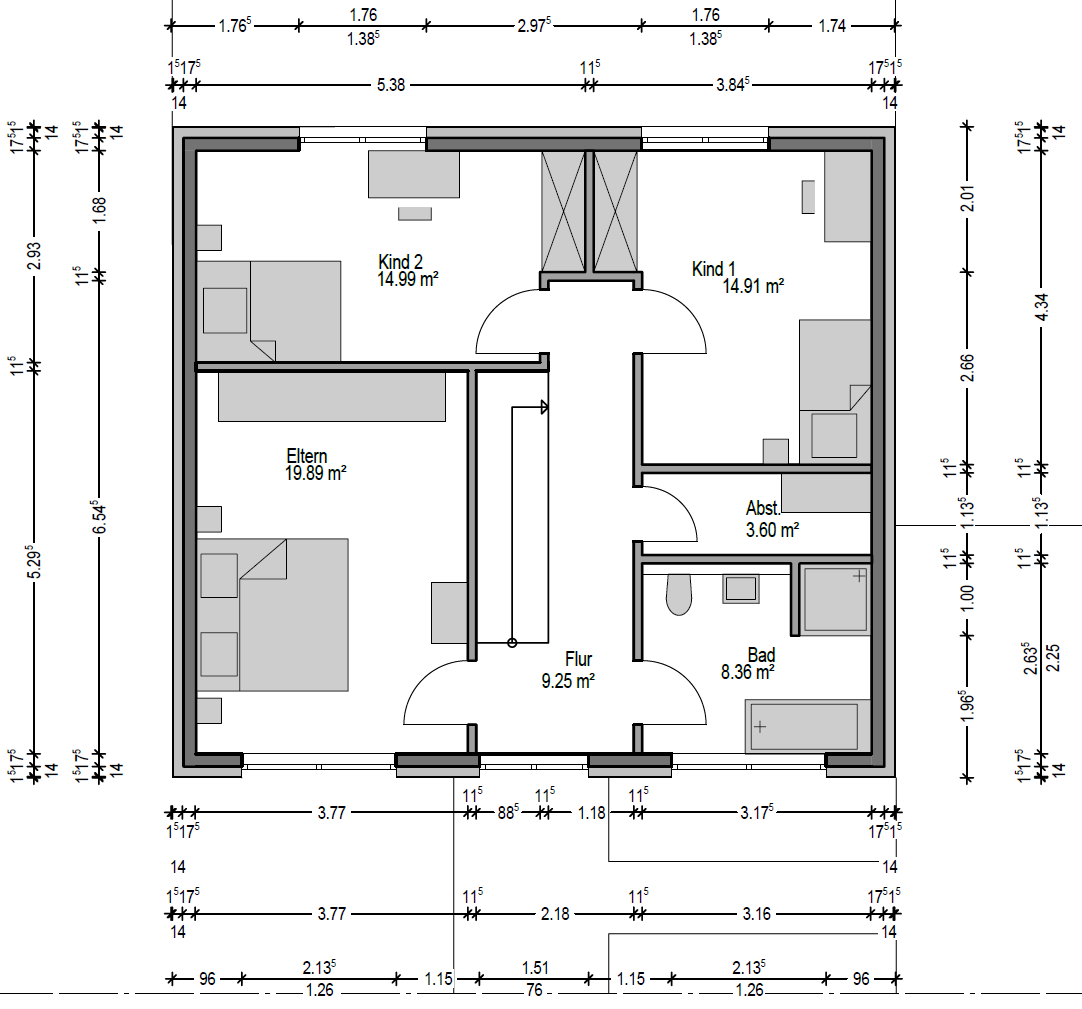
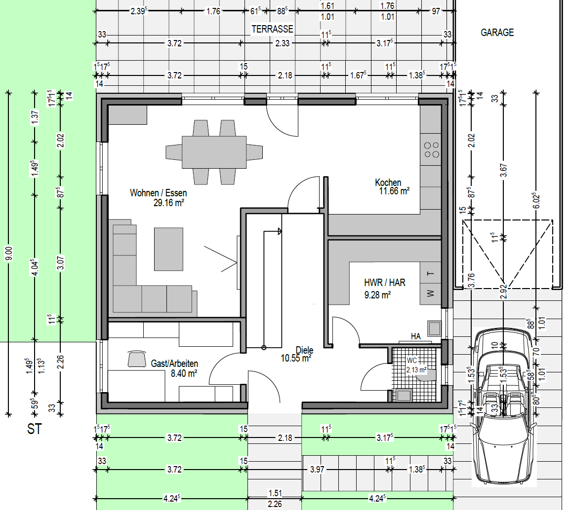
Grundriss 10x8/8,5: Schlafzimmer im Erdgeschoss
Diskutiere Grundriss 10x8/8,5: Schlafzimmer im Erdgeschoss im Architektur Allgemein Forum im Bereich Architektur; Das Haus von Nachbar 9 verschattet eh eure Westseite. Das ist uns schon klar. Es ging ja um eine zusätzliche Licht-Quelle. Die Zufahrt zur Garage...
Seite 12 von 18
Thema: Grundriss 10x8/8,5: Schlafzimmer im Erdgeschoss
Besucher kamen mit folgenden Suchen
grundriss einfamilienhaus 10 x 8
,smarte Grundrissplanung 10x8m
,erdgeschoss grundriss haus 10x10
,- grundriss haus 8 5 x 10,
- reihenhaus grundrisse beispiele,
- haus 10x8,
- Haus Grundriss 8 x 10 m nur erdgeschoss,
- grundriss haus 10x10,
- grundrisse 8.5 mal 10,
- einfamilienhaus pultdach gerade treppe,
- grundriss 100 qm 3 schlafzimmer,
- grundriss eg einfamilienhaus 8×12,
- einfamilienhaus schlafzimmer erdgeschoss,
- grundriss unten schlafen oben wohnen,
- grundriss haus 10 x 8 5,
- bautagebuch signus,
- grundrisse einfamilienhäuser 10x8 m,
- erdgeschoss schlafzimmer plan,
- 10x8 grundriss,
- Grundriss Erdgeschoss mit Schlafzimmer und arbwitszimmer,
- reihenhaus grundriss 8 5 x 9 8 m,
- offener grundriss einfamilienhaus,
- grundriss 10 x 10,
- grundriss 10 x 8 5,
- grundriss haus oben Schlafzimmer
Die Seite wird geladen...
-
Grundriss 10x8/8,5: Schlafzimmer im Erdgeschoss - Ähnliche Themen
-
Grundriss Stadtvilla (155qm2) - Eure Anmerkungen werden gebraucht!
Grundriss Stadtvilla (155qm2) - Eure Anmerkungen werden gebraucht!: Hallo zusammen, meine Frau und ich planen bald zu bauen (Grundstück, 760qm2 ist bereits in unserem Besitz). Wir möchten gerne zweigeschossig... -
Grundriss Haus
Grundriss Haus: [ATTACH] [ATTACH] Ich wollte euch mal nach eurer Meinung zu diesen Grundrissplänen unseres Einfamilienhauses fragen? Wie findet ihr diese... -
Grundriss EFH Nordgarten - Feedback erwünscht
Grundriss EFH Nordgarten - Feedback erwünscht: Hallo zusammen, wir sind eine Familie mit zwei Kindern (2+5J) und haben ein Grundstück für den Bau eines EFH (Satteldach, 1 Vollgeschoss)... -
Optimierung Grundriss - Eure Ideen oder Empfehlung Archi
Optimierung Grundriss - Eure Ideen oder Empfehlung Archi: Ihr Lieben, Wir bauen den DB aus. Weil wir wenig Erfahrung haben und möglicherweise eine Baugenehmigung brauchen, haben wir ein Architekturbüro... -
Hilfe bei Grundriss-Optimierung unserer DHH in Weinheim – junges Paar sucht kreative Ideen!
Hilfe bei Grundriss-Optimierung unserer DHH in Weinheim – junges Paar sucht kreative Ideen!: Hallo zusammen, 1. Wir sind: wir sind ein junges Paar und wollen uns für unsere Familie - 2 Erwachsene, 31 und 28 Jahre alt + 2 Kinder, 11Monate...