Grundriss 10x8/8,5: Schlafzimmer im Erdgeschoss

Diskutiere Grundriss 10x8/8,5: Schlafzimmer im Erdgeschoss im Architektur Allgemein Forum im Bereich Architektur; Zb möchte man vielleicht das Büro nicht im Osten, sondern im Westen, weil man mehr abends dort ist? HWR im schönen Westen muss jedenfalls nicht...

  1. #21 Gast48331, 04.10.2018
    Gast48331

    Gast48331 Gast

    Ja, so etwas sollte man auch berücksichtigen, Wobei ich wer bin, der früh morgens anfängt zu arbeiten und dann gg. 16 Uhr fertig bin.
    Hinzu kommt, dass bei diesem Haus wahrscheinlich die Garage im Westen stehen wird (siehe Anlage). Überlegen aber auch, ob man diese nicht besser auf die andere Seite packen sollte (wäre dann auch ein zusätzlicher Sichtschutz zu den Nachbarn auf der östlichen Seite). Anderseits würde die Garage im Westen den Bereich zur Anliegerstraße (Wendehammer) verschließen.

    Im Moment ist unsere Küche auch ein Nebenraum vom Wohnzimmer. Wir lagern auch alles an Lebensmittel und Getränken dort. In den HWR würden wir höchstwahrscheinlich nur die zu lagernden Getränke auslagern. Da wäre mir der geschlossene Platz in der Küche lieber als ne Durchgangstür.

    Die 110 m² sind die nach Abzug aller Schrägen. Bodenfläche sind es um die 130 m².
     
  2. 11ant

    11ant

    Dabei seit:
    28.02.2017
    Beiträge:
    2.449
    Zustimmungen:
    1.522
    Beruf:
    Bauherrenberater
    Ort:
    RLP Nord
    Benutzertitelzusatz:
    bringt Sie gut beraten ins Eigenheim
    Warum sollte man es breiter ziehen ? - mir scheint, Ihr habt keine Vorstellungen, wonach Ihr die Qualität eines Grundrisses beurteilen solltet. Man kann den Flairs nachsagen, Nullachtfuffzehn zu sein - aber funktionieren tun sie, so wie sie im Katalog stehen.

    Technisch geht das ja auch so. Aber das verschiebt das Verhältnis der Raumgrößen zwischen EG und OG, und da können ja wohl kaum die Varianten "Vorher" / "Nachher" beide gleichzeitig die passendere sein.

    Abgesehen davon, daß es wohl eher ein GU ist: soll der da einziehen oder Ihr ?

    Typischerweise sind gleiche Außenmaße / Baumassen preisgleich, größer kostet mehr, kleiner nicht so stark weniger.
     
  3. #23 Gast48331, 04.10.2018
    Gast48331

    Gast48331 Gast

    Das war mein Gedanke um die 10 m Breite des Grundstücks optimal ausnutzen zu können.

    Er sagt, dass die als klassischer Bauträger agieren.
    Der Architekt kennt unsere Wünsch und die Maße der meister Möbel. Mal schauen, was er drauf macht.

    Ich muss sagen, dass der angebotene Preisnachlass für 20 m² fair ist: 18.000 EUR.

    Hier nun der Plan des Grundstücks 10.
    Geplant ist die Garage im Westen, denkbar wäre sie aber auch im Osten. Man würde dann die Privatstraße bis zur Grenze von Haus 11 verlängern.

    Sind da irgendwie auch noch am Grübeln.
    Auf der Westseite könnte man direkt reinfahren, hätte aber auf der Terrasse ab späten Nachmittag ein wenig Schatten. Anderseits wäre man zum Wendehammer ein wenig geschützt.
    Auf der Ostseite ist die Frage, ob man sich einen Gefallen damit tut. Man müsste komplett rückwärts bis zum Wendehammer zurückfahren.
    Anderseits läuft es vielleicht drauf hinaus noch einen weiteren Stellplatz anzulegen. Wir werden wohl größtenteils nur noch ein Auto benötigen. Das andere dann in der Garage zu parken ist im Winter sinnfrei. Und die Autos dann zu rangieren auch.
     

    Anhänge:

    • Plan.JPG
      Plan.JPG
      Dateigröße:
      53 KB
      Aufrufe:
      411
  4. 11ant

    11ant

    Dabei seit:
    28.02.2017
    Beiträge:
    2.449
    Zustimmungen:
    1.522
    Beruf:
    Bauherrenberater
    Ort:
    RLP Nord
    Benutzertitelzusatz:
    bringt Sie gut beraten ins Eigenheim
    Ins Grübeln komme da auch ich: Grundstück 11 sieht hinter Grundstück 10 gefangen aus.

    Wenn es ein Bauträger ist (d.h. sein Grundstück, er verkauft es mitsamt Haus, auch wenn das noch nicht gebaut sein muß), kannst Du Innenwände und Türen schieben, mehr nicht. Wenn er Dir ein Grundstück verkauft und Du es mit ihm bebauen mußt, ist er ein verkappter Bauträger (böse Steuerfalle).

    Ausnutzen beinhaltet ja "nutzen" - das trifft auf eine unnötige Verbreiterung eines funktionierenden Bauvorschlags-Grundrisses ebenso wenig zu wie darauf, OG-Räumen ohne die Flächen neu zuzuschneiden mehr Stehhöhe zu geben. Da machst Du planerische Laienfehler, vor denen Dich ein Architekt bewahren muß (es ein GU oder BT aber nicht tun wird, und dessen "sogenannter Architekt" auch nicht).
     
  5. #25 Gast48331, 05.10.2018
    Gast48331

    Gast48331 Gast

    Das mag sein. Anderseits man dort seine Ruhe ;-).
    So schauen dann leider Bebauungspläne aus, wenn man auf recht kleine Fläche viele Häuser drauf sollen. Bei diesem Neubaugebiet kann man schon froh sein, dass es dann freistehende Häuser werden. Sonst bekommt man hier leider fast nur noch Doppelhaushälften oder Reihenhäuser auf kleine Fläche zusammengepresst.

    Er verkauft Grundstück mit Haus. Auf die komplette Summe dürften wir dann die Grunderwerbssteuer zahlen.
    Dieser BT lässt dem späteren Käufer scheinbar viel mit entscheiden: kleiner, größer, Gewerke rausnehmen.

    Ja, ich bin Laie ;-).
    Aber verständlicherweise hat man dennoch viele Fragen und Ideen.
    Müssen eigentlich HWR, Küche und WC nah beieinander liegen und darüber dann das Bad? Oder wäre es auch denkbar das WC zu positionieren?
     
  6. #26 jodler2014, 05.10.2018
    Zuletzt bearbeitet: 05.10.2018
    jodler2014

    jodler2014

    Dabei seit:
    20.12.2014
    Beiträge:
    3.907
    Zustimmungen:
    542
    Beruf:
    Angestellter
    Ort:
    RP
    Natürlich geht es darum die Versorgungsleitungen möglichst kurz zu halten .
    Weniger Investition .
    Mehr Effizienz der Haustechnik , um mal beim Thema Flair zu bleiben.

    Man kann natürlich auch das Bad über dem Wohnzimmer planen !
     
  7. #27 simon84, 05.10.2018
    simon84

    simon84
    Moderator

    Dabei seit:
    11.11.2012
    Beiträge:
    23.215
    Zustimmungen:
    6.872
    Beruf:
    Schrauber
    Ort:
    Muenchen
    Übereinander macht soweit es geht schon Sinn.
    Ansonsten halt genauestens die Abwasser Leitungen planen
     
  8. #28 jodler2014, 05.10.2018
    jodler2014

    jodler2014

    Dabei seit:
    20.12.2014
    Beiträge:
    3.907
    Zustimmungen:
    542
    Beruf:
    Angestellter
    Ort:
    RP
    Richtig ! Macht Sinn !
    Aber es geht auch anders. BT sind da auch manchmal sehr flexibel, was die Planung angeht.
    Die Gespräche mit dem Architekten stehen ja noch aus...
     
  9. #29 Gast48331, 06.10.2018
    Gast48331

    Gast48331 Gast

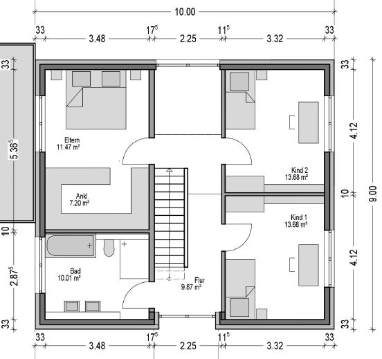
    Das man nicht das WC in die eine Ecke des Hauses, den HWR in eine andere Ecke und die Küche in noch eine andere Ecke und das Bad oben dann noch in eine andere Ecke passt ist schon klar. Im Standard-Grundriss waren WC, HWR und Küche auf einer Linie und drüber das Bad.
    Das man die Wege kurz halten will ist auch nachvollziehbar. War eher interessehalber.

    Das erste Gespräch mit dem Architekten gab es. Er kennt unsere Wünsche und die Maße der Möbel. Mal schauen was er drauf macht.

    Wie seht ihr das denn mit der Garage? Der Grundriss vom Haus ist übrigens der eines anderen Hauses, bei welchem die Garage auf der Ostseite geplant ist.
     

    Anhänge:

    • EG.JPG
      EG.JPG
      Dateigröße:
      43,3 KB
      Aufrufe:
      521
    • OG.JPG
      OG.JPG
      Dateigröße:
      49,5 KB
      Aufrufe:
      526
    • Plan.JPG
      Plan.JPG
      Dateigröße:
      53 KB
      Aufrufe:
      432
  10. #30 simon84, 06.10.2018
    simon84

    simon84
    Moderator

    Dabei seit:
    11.11.2012
    Beiträge:
    23.215
    Zustimmungen:
    6.872
    Beruf:
    Schrauber
    Ort:
    Muenchen
    Man kann das je nach Lage der Abwasserleitung schon machen mit WC im gegenüberliegenden Eck. WC Abwasserleitung kannst halt nur ungut im ganzen Haus verziehen.

    Kommt halt immer auf die Nutzung und die Planung an.

    An Schall auch denken, WC Spülung hört man im EFH immer etwas, meistens schon sinnvoll alles übereinander zu haben.

    Garage so machen dass man normal reinfahren kann. Wenn du schon rückwärts anfahren musst damit du mit einem pkw und Eck kommst vergiss es
     
  11. #31 Lexmaul, 06.10.2018
    Lexmaul

    Lexmaul

    Dabei seit:
    15.09.2014
    Beiträge:
    8.921
    Zustimmungen:
    2.163
    Benutzertitelzusatz:
    Mimosenlecker
    Wir haben in praktisch jeder Ecke nen WC - geht alles ;)
     
    simon84 gefällt das.
  12. #32 Gast48331, 06.10.2018
    Gast48331

    Gast48331 Gast

    War vielleicht was merkwürdig von mir vorgedacht.
    Der private Weg wäre 3,5 Meter breit. Das sollte doch eigentlich ausreichend sein um vorwärts rein zu fahren. Rückwärts raus muss man dann eh und 90 Grad Rum auch, nur das man dann noch 10 Meter weiter rückwärts fahren müsste.
    Ging halt darum die Garage auf die Ostseite zu packen.
     
  13. #33 Lexmaul, 06.10.2018
    Lexmaul

    Lexmaul

    Dabei seit:
    15.09.2014
    Beiträge:
    8.921
    Zustimmungen:
    2.163
    Benutzertitelzusatz:
    Mimosenlecker
    Wie, Du musst über so einen Schlauch zu Deinem Grundstück fahren?

    Wäre für mich ein absolutes nogo, wird aber gerne schön geredet. Bekannte von uns haben sich in einem Neubauviertel nen Prachtbau hingesetzt - mit Zufahrt über das Nachbargrundstück. Alles eng und wirkt wie ein schlechter Kompromiss - ne, es ist einer ;).

    Und natürlich gab es schon Stress mit den Nachbarn wegen der Zufahrt..
     
  14. #34 simon84, 06.10.2018
    simon84

    simon84
    Moderator

    Dabei seit:
    11.11.2012
    Beiträge:
    23.215
    Zustimmungen:
    6.872
    Beruf:
    Schrauber
    Ort:
    Muenchen
    Die Zufahrt muss auf mind. 3 Meter hoch komplett frei sein und bleiben für lkw usw
    (Bäume, Hecken, Dachüberstand von Gartenhaus etc)
     
  15. #35 Gast48331, 06.10.2018
    Gast48331

    Gast48331 Gast

    Nein, planmäßig steht die Garage von Haus 10 dort im Bereich des Wendehammers (über 20 Meter Durchmesser).
    Die Garage (eingezeichnet ist eine 6 Meter Garage, es wird aber eine 9 Meter Garage) steht so jedoch leider auf der Westseite.
    Wenn man die Garage auf die andere Seite packen würde, würde der 3,5 Meter breite Privatweg (gehört 10+11) bis zur Grundstücksgrenze zu 11 verlängert. Aktuell würde der Privatweg mit der langen Zufahrt zu Haus 11 verlängert. Diese wäre aktuell 3 Meter breit und gehört ab dem Ende des Privatwegs zu Haus 11.
     
  16. 11ant

    11ant

    Dabei seit:
    28.02.2017
    Beiträge:
    2.449
    Zustimmungen:
    1.522
    Beruf:
    Bauherrenberater
    Ort:
    RLP Nord
    Benutzertitelzusatz:
    bringt Sie gut beraten ins Eigenheim
    Ich meinte, daß es über das vorliegende Grundstück seine Zuwegung hat.
     
  17. #37 Gast48331, 07.10.2018
    Gast48331

    Gast48331 Gast

    Eigentlich nicht.
    Der Privatweg bis zur Mitte von Haus 10 gehört Haus 10 und 11. Der Weg der dann bis zur Garage von Haus 11 geht gehört nur Haus 11.
     
  18. #38 jodler2014, 07.10.2018
    jodler2014

    jodler2014

    Dabei seit:
    20.12.2014
    Beiträge:
    3.907
    Zustimmungen:
    542
    Beruf:
    Angestellter
    Ort:
    RP
    Mal ganz grundsätzlich :
    Der Wendehammer und die enge Bebauung bringen wohl keine Ruhe oder etwa eine Wohlfühl-Oase mit sich .
    Das wird ein lebendiges Wohngebiet werden !

    "Hausbau-Unternehmen " ,egal mit welchem Buchstaben- Kürzel ,sind nun mal auf dem Vormarsch .
    Auch für die Städte , Dörfer ist es bequemer wenn in dem Fall ein Bauträger das Grundstück für einen potentiellen Käufer quasi fast schon verkauft hat .
    Ein paar bunte Bilder und die Werbetrommel kräftig trommeln.
    Internet -Auftritt mal ganz ordentlich gemacht und schon hagelt es Anfragen?

    Der Mensch möchte beschissen werden .
    usw. usf.
     
  19. 11ant

    11ant

    Dabei seit:
    28.02.2017
    Beiträge:
    2.449
    Zustimmungen:
    1.522
    Beruf:
    Bauherrenberater
    Ort:
    RLP Nord
    Benutzertitelzusatz:
    bringt Sie gut beraten ins Eigenheim
    Das würde ich nicht so generell sagen - allein schon weil der Anteil derjenigen Grundstücke zunimmt, die für Bauträger wirtschaftlich nicht attraktiv sind.

    Bequemer ist es gewiß, möglichst wenige neue Baugebiete selbst zu entwickeln, sondern gleich einen Interessenten dafür zu haben, einen vorhabenbezogenen Bebauungsplan zu erarbeiten.
     
  20. #40 jodler2014, 08.10.2018
    Zuletzt bearbeitet: 08.10.2018
    jodler2014

    jodler2014

    Dabei seit:
    20.12.2014
    Beiträge:
    3.907
    Zustimmungen:
    542
    Beruf:
    Angestellter
    Ort:
    RP
    Neubau im Bereich Oberhausen.. ,Infrastruktur vorhanden ..
    Die Schwester wohnt drei Blocks weiter...
    Das ist Deutschland !
    Da wird beim Grillabend die türkische Pizza serviert ..
    Jeder bringt was mit zum Grillabend !
    So funktioniert Integration und Wohnraumverdichtung !
    Der BVB hat 3 Tore kassiert und trotzdem gewonnen ..
    Mund abputzen und weiter im Text !
    Schönes WE !
     
Thema: Grundriss 10x8/8,5: Schlafzimmer im Erdgeschoss
Besucher kamen mit folgenden Suchen
  1. grundriss einfamilienhaus 10 x 8

    ,
  2. smarte Grundrissplanung 10x8m

    ,
  3. erdgeschoss grundriss haus 10x10

    ,
  4. grundriss haus 8 5 x 10,
  5. reihenhaus grundrisse beispiele,
  6. haus 10x8,
  7. Haus Grundriss 8 x 10 m nur erdgeschoss,
  8. grundriss haus 10x10,
  9. grundrisse 8.5 mal 10,
  10. einfamilienhaus pultdach gerade treppe,
  11. grundriss 100 qm 3 schlafzimmer,
  12. grundriss eg einfamilienhaus 8×12,
  13. einfamilienhaus schlafzimmer erdgeschoss,
  14. grundriss unten schlafen oben wohnen,
  15. grundriss haus 10 x 8 5,
  16. bautagebuch signus,
  17. grundrisse einfamilienhäuser 10x8 m,
  18. erdgeschoss schlafzimmer plan,
  19. 10x8 grundriss,
  20. Grundriss Erdgeschoss mit Schlafzimmer und arbwitszimmer,
  21. reihenhaus grundriss 8 5 x 9 8 m,
  22. offener grundriss einfamilienhaus,
  23. grundriss 10 x 10,
  24. grundriss 10 x 8 5,
  25. grundriss haus oben Schlafzimmer
Die Seite wird geladen...

Grundriss 10x8/8,5: Schlafzimmer im Erdgeschoss - Ähnliche Themen

  1. Symbol Grundriss ca. 1875 Preußen Bitte um Erklärung

    Symbol Grundriss ca. 1875 Preußen Bitte um Erklärung: Hallo, ich habe vor einiger Zeit eine alte Försterei gekauft und suchte ewig nach Bauzeichnungen oder Grundrissen dazu. Lange Story kurz, ich...
  2. Grundriss. EFH 1 Vollgeschoss ohne Schrägen ca. 180qm

    Grundriss. EFH 1 Vollgeschoss ohne Schrägen ca. 180qm: Hi zusammen, wir sind gerade fleißig am Planen. Der Plan ist ein DIY. Habt ihr anregungen, wie man das ganze verbessern kann oder wo Probleme...
  3. Altbau-Sanierung BJ 1904: Grundriss neu, WP/PV, Dämmung – wo übersehe ich Risiken?

    Altbau-Sanierung BJ 1904: Grundriss neu, WP/PV, Dämmung – wo übersehe ich Risiken?: Liebe Community, wir (2 Erwachsene + 2 kleine Kinder) überlegen, einen Altbau (PLZ 33739) zu kaufen und umfassend zu sanieren und würden uns sehr...
  4. Grundriss- Betriebsblind – brauche euren frischen Blick

    Grundriss- Betriebsblind – brauche euren frischen Blick: Hallo zusammen, ich beschäftige mich nun schon seit einiger Zeit intensiv mit diesem Thema/Projekt und habe mittlerweile das Gefühl, etwas...
  5. Bestandsgebäude EFH - Änderung Grundriss ?!

    Bestandsgebäude EFH - Änderung Grundriss ?!: Guten Tag zusammen, ich würde gerne das Schwarmwissen nutzen und umsetzbare Ideen für die Anpassung der Raumaufteilung bzw. des Grundrisses mit...