Grundriss 10x8/8,5: Schlafzimmer im Erdgeschoss

Diskutiere Grundriss 10x8/8,5: Schlafzimmer im Erdgeschoss im Architektur Allgemein Forum im Bereich Architektur; Neubau im Bereich Oberhausen. Es wäre noch nicht einmal in OB. Wir schauen schon eine Weile und sind da ortmäßig recht flexibel, solange wir zu...

  1. #41 Gast48331, 08.10.2018
    Gast48331

    Gast48331 Gast

    Es wäre noch nicht einmal in OB.
    Wir schauen schon eine Weile und sind da ortmäßig recht flexibel, solange wir zu unseren Arbeit kommen. Suchen mehr oder weniger im kompletten nördliche Ruhrgebiet und Teilen des Niederrheins. Und von den vielen Grundstücken, die wir uns angesehen haben, waren die Wenigsten in OB.
     
  2. #42 Kriminelle, 08.10.2018
    Kriminelle

    Kriminelle

    Dabei seit:
    16.05.2013
    Beiträge:
    3.769
    Zustimmungen:
    2.094
    Beruf:
    .
    Ort:
    Niedersachsen
    Mir kommt es so vor, als wenn auf der Welt nur dieser eine Grundriss existiert und man jetzt das beste draus macht.

    Der ist doch so schön suboptimal, wenn Ihr noch ein SZ im EG haben wollt, sowieso nicht machbar.

    Warum entscheidet Ihr Euch nicht im EG für eine größere Grundfläche (mit anderer Aufteilung), dann ein DG mit 2 Kizis, Abstellraum und Bad auf kleinerer Fläche? Mit einem Satteldachhaus und etwas durchschnittlichem KS ist das doch eher machbar als mit ner 2-geschossigen Stadtvilla, und später, wenn die Kinder flügge sind, werden aus dem OG schöne Universalzimmer, die nicht zuviel Fläche verbrauchen.
     
  3. #43 Gast48331, 09.10.2018
    Gast48331

    Gast48331 Gast

    Der wird ja gerade vom Architekten unter Berücksichtigung unserer Wünsche und Möbel überarbeitet.

    Wie schon weiter oben beschrieben haben wir uns von dieser Idee verabschiedet.
    Sollte es im Alter in Richtung Barrierefreiheit gehen, wäre das OG durchaus auch mit einem Lift erreichbar, oder aber man muss sich dann noch einmal anderweitig umschauen.

    In diesem Baugebiet sind nur Flachdächer zulässig ... davon ab möchten wir möglichst keine Dachschrägen mehr im Wohn- und Schlafbereich haben.
     
    11ant gefällt das.
  4. #44 Gast48331, 09.10.2018
    Gast48331

    Gast48331 Gast

    So, der neue Entwurf ist da:
    • Das Treppenhaus gefällt uns so irgendwie nicht wirklich.
    • Der HWR ist überschaubar klein. Was anderes als die Technik wird dort wohl kaum reinpassen?
    • Die Tür zum Vorratsraum aus der Küche heraus ist irgendwie verschenkter Raum in der Küche. Lieber wäre uns der Zugang über den HWR.
    • Der Fernseher ist dort mal irgendwie ungünstig positioniert. Jede Person, die zur Küche geht, läuft durchs Bild.
    • Wäre eine Tür vom Flur zum Wohnzimmer nicht sinnvoll? Der Flur ist ja nicht beheizt und tendenziell kühler. Zudem bekommt man so jegliche Bewegung im Flur mit.
    • Das Bad könnte ein bisschen kleiner sein, dafür der Abstellraum entsprechend größer. Ein Doppel-Waschtisch benötigen wir z.B. gar nicht.
    Vielleicht habt ihr noch Anregungen?

    Feuer frei ;-)
     

    Anhänge:

  5. #45 Fabian Weber, 09.10.2018
    Fabian Weber

    Fabian Weber

    Dabei seit:
    03.04.2018
    Beiträge:
    16.337
    Zustimmungen:
    6.489
    Wieso setzt Ihr euch nicht einfach mal mit Eurem Architekten einen ganzen Tag lang hin bis der Grundriss steht. Wenn Ihr keinen Doppelwaschtisch braucht dann sagt ihm das doch vorher.

    Über den HWR kommst Du doch gar nicht in die Kammer, da ist doch die Treppen gerade mal zur hälfte geschafft.

    Schmeiß den Fernseher ganz raus, aber mal im Ernst, das ist doch kein Argument. Erst wollt Ihr klein bauen und dann wird's zu eng oder wie?

    Wohnzimmertür würde immer irgendwie ungünstig aufschlagen und wenn sie offen steht, dann blöde rumnerven.

    Bad kleiner und Abstellraum größer geht nicht weil Treppe im Weg.

    So schlecht ist der Grundriss doch gar nicht, der andere war aber irgendwie schon besser.
     
  6. #46 Fabian Weber, 09.10.2018
    Fabian Weber

    Fabian Weber

    Dabei seit:
    03.04.2018
    Beiträge:
    16.337
    Zustimmungen:
    6.489
    Wie wäre es denn ungefähr so?

    Also nur mal so in Photoshop zusammengeschoben. Die Tür zur Küche müsste weg und die ganzen Fenster müssten natürlich noch überarbeitet werden. Aber ich fand die einläufige Treppe sehr schön.

    Die Treppe könnt zum Wohnzimmer sogar vielleicht ein Regal sein und die Kammer entfällt dafür.
     

    Anhänge:

  7. #47 jodler2014, 09.10.2018
    jodler2014

    jodler2014

    Dabei seit:
    20.12.2014
    Beiträge:
    3.907
    Zustimmungen:
    542
    Beruf:
    Angestellter
    Ort:
    RP
    Logisch ,
    #1 war 9x10
    und #44 8 x10 ..
     
  8. #48 Fabian Weber, 09.10.2018
    Fabian Weber

    Fabian Weber

    Dabei seit:
    03.04.2018
    Beiträge:
    16.337
    Zustimmungen:
    6.489
    Sowas in der Art. Da passt auch eine Glotze rein.
     

    Anhänge:

  9. #49 Kriminelle, 09.10.2018
    Kriminelle

    Kriminelle

    Dabei seit:
    16.05.2013
    Beiträge:
    3.769
    Zustimmungen:
    2.094
    Beruf:
    .
    Ort:
    Niedersachsen
    Eine Frage:
    Deckt dieser Entwurf Euren Bedarf? Für mich las sich der Eingangsthread anders.
    Die Küche als Gefangener Raum ist suboptimal. Immer an der Chilllounge vorbei, das hab ich schon erwähnt.
    WS ist das denn für eine Treppe, wo man drei! Mal die Laufrichtung ändern muss? Geht gar nicht!
     
  10. #50 jodler2014, 09.10.2018
    jodler2014

    jodler2014

    Dabei seit:
    20.12.2014
    Beiträge:
    3.907
    Zustimmungen:
    542
    Beruf:
    Angestellter
    Ort:
    RP
    Das Schlafzimmer im EG ist ja schon mal gestrichen und an den Außenmaßen wurde auch geschraubt..
    Es geht nicht , muß aber irgendwie !
     
  11. 11ant

    11ant

    Dabei seit:
    28.02.2017
    Beiträge:
    2.517
    Zustimmungen:
    1.586
    Beruf:
    Bauherrenberater
    Ort:
    RLP Nord
    Benutzertitelzusatz:
    bringt Sie gut beraten ins Eigenheim
    Wo habe ich das überlesen ?
     
  12. #52 jodler2014, 10.10.2018
    jodler2014

    jodler2014

    Dabei seit:
    20.12.2014
    Beiträge:
    3.907
    Zustimmungen:
    542
    Beruf:
    Angestellter
    Ort:
    RP
    … und warum ist der Flur nicht beheizt ?
    #44 .:shades
     
  13. #53 Gast48331, 10.10.2018
    Gast48331

    Gast48331 Gast

    Das wäre auch unser Gedanke.
    Beim ersten Treffen mit dem BT hat der Architekt erstmal unsere Wünsche aufgenommen.

    Dies hatten wir schlicht vergessen zu erwähnen ;-).

    Vielleicht denken wir hier auch einfach zu umständlich.

    Der Gedanke war den Abstellraum unten um die Ecke im Badezimmer, wo derzeit ein Eckschrank eingezeichnet ist, zu erweitern

    So ähnlich war auch der ursprüngliche Gedanke: einfach in der Mitte nen Meter nehmen.
    Warum das nun anders gemacht wurde ist eine spannende Frage. Vielleicht weil wir noch die Idee hatten, dass beide Kinderzimmer gleichberechtigt zur Südseite ausgerichtet sind. Werde dies den Architekten heute noch einmal fragen.
    Wollte hier ja noch weitere vakante Punkte sammeln.

    Vom Grundsatz her schon: Es sollte etwas kleiner werden, vom Schlafzimmer im EG haben wir uns verabschiedet. Aber ein kleines Büro benötige ich.

    Eben, das empfinden wir auch als suboptimal.

    Nein, anfangs hab ich hier nur das EG betrachten wollen, das OG und somit das Dach außen vor gelassen.

    War mein Gedanke, da unser Flur nicht durch die Fußbodenheizung beheizt wird.
     
  14. #54 Kriminelle, 10.10.2018
    Kriminelle

    Kriminelle

    Dabei seit:
    16.05.2013
    Beiträge:
    3.769
    Zustimmungen:
    2.094
    Beruf:
    .
    Ort:
    Niedersachsen
    In einem sparsamen Neubau herrschen fast in allen Räumen identische Temperaturen. Darum musst Du Dich bei der Planung nicht kümmern.
     
  15. #55 Gast48331, 18.10.2018
    Gast48331

    Gast48331 Gast

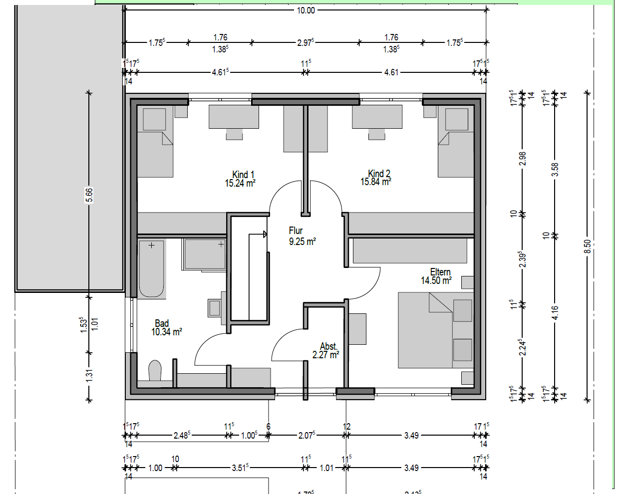
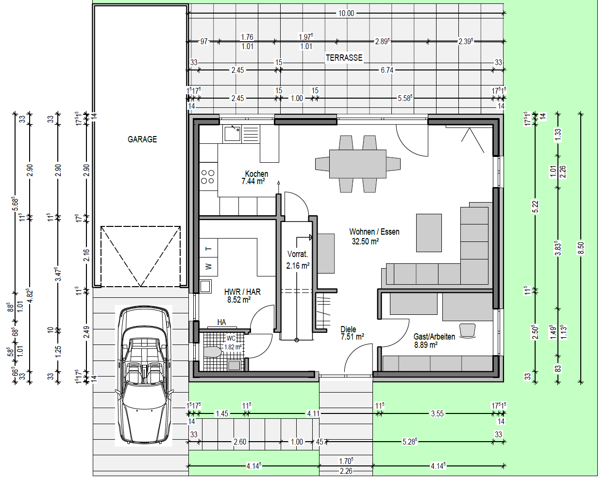
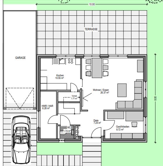
    So, die neuen Grundrisse sind da. Mit 8 Meter Tiefe wird es leider nichts, sind nun bei 8,5 Meter gelandet.

    Die Zufahrt wird (hoffentlich) verbreitert, damit die Garage auf die Ostseite kommen kann.

    Das Arbeitszimmer wird noch ein wenig schmaler (225 statt 250 cm reichen vollkommen aus, da hab ich hinterm Schreibtisch mehr Platz als im Büro) und dafür das Wohnzimmer minimal tiefer.

    Die Küche ist im Moment noch das hoffentlich letzte Manko.
    Zwischenzeitlich ging die Küche noch 115 cm weiter in Richtung Essbereich. Platz-technisch hat man hierdurch (durch die Tür zum Vorratsraum) kaum nutzbare Fläche in der Küche gewonnen. Man hätte an der Fensterseite vielleicht 1-2 zusätzliche Schränke hinstellen können (die wir aber nicht brauchen, haben ja den Vorratsraum), aber der Essbereich wäre schon gut eng gewesen. Daher tendieren wir im Moment zu einer halb-offenen Küche, wobei dieses Element, welches im Moment in die Küche hineinschaut, noch ein wenig (40-60 cm) in Richtung Essbereich geschoben werden sollte und dort dann eine halb hohe Wand hinkommen könnte.
    Die Breite mit 160-170 cm (x ca 180 cm Tiefe) ist vielleicht noch ein wenig gewöhnungsbedürftig. Alternativ überlegen wir noch, ob man mit den Küchenschränken auf der HWR/HAR-Seite nicht noch 10-30 cm in den HWR/HAR hineinrückten sollte. Aber dann würde der Raum vielleicht zu knapp bemessen sein. Da muss ja einiges rein: WM, WT, Waschbecken, Gas-Therme, Warmwasser-Speicher, Elektrokasten, Stromzähler, Wasser- und Gasuhren, Fußbodenheizungsanschlüsse und vielleicht noch ein Regal.

    Habt Ihr noch irgendwelche Anmerkungen/Ideen?
     

    Anhänge:

    • EG.png
      EG.png
      Dateigröße:
      143 KB
      Aufrufe:
      923
    • OG.png
      OG.png
      Dateigröße:
      85,6 KB
      Aufrufe:
      745
    • LP.png
      LP.png
      Dateigröße:
      115,5 KB
      Aufrufe:
      796
  16. #56 Fabian Weber, 18.10.2018
    Fabian Weber

    Fabian Weber

    Dabei seit:
    03.04.2018
    Beiträge:
    16.337
    Zustimmungen:
    6.489
    Oben unbedingt auf die Kammer verzichten, die zerstört ja den ganzen Raum.

    Unten auf die Kammertür an dieser Stelle verzichten und dafür eine Geheimtür in ein dann größeres Küchenmöbel machen.
     
  17. #57 jodler2014, 18.10.2018
    jodler2014

    jodler2014

    Dabei seit:
    20.12.2014
    Beiträge:
    3.907
    Zustimmungen:
    542
    Beruf:
    Angestellter
    Ort:
    RP
    Jo !
    Es bleibt ein kleines Haus..
    Wo wird die Wäsche gebügelt , gefaltet ?
    Im OG und nicht im HTR/ HWR !
    Oder im Wohnzimmer ?
    Denn im Abstellraum im OG steht das Bügelbrett und der Staubsauger .
    Noch dazu hat dieser Raum ein Fenster.
    Zurück zum EG .
    Die Ansicht in Richtung Hauseingang gefällt mir nicht.
    Der einzige Blickfang ist die Haustür mit Seitenteil .Ansonsten schaut man auf eine Hauswand ..wenig einladend
    Fenster von WC weg von Garageneinfahrt .
    Haustür ohne Seitenteil mit Festverglasung und ein separates bodentiefes satiniertes Fenster in der Diele ?
     
    Kriminelle gefällt das.
  18. #58 Kriminelle, 18.10.2018
    Kriminelle

    Kriminelle

    Dabei seit:
    16.05.2013
    Beiträge:
    3.769
    Zustimmungen:
    2.094
    Beruf:
    .
    Ort:
    Niedersachsen
    Ich bin selten so krüsch mit Entwürfen, aber auch dieser will mir nicht gefallen.
    Irgendwie ist man gefühlt schon auf dem Sofa, wenn man ins Haus kommt.
    Das mag zwar entspannend sein :o , aber nicht wirklich: die Sofastellung (im Nacken irgendwie die Haustür) und der Verkehrsweg zur Küche macht das WZ unruhig. Der Esstisch ragt in der virtuellen Sitzecke rein, die Küche irgendwie unspektakulär. Nicht falsch verstehen, aber gerade eine schlichte, aber nette Küche könnte so einen WoEsKü ordentlich aufmöbeln.
    Im Prinzip ist das WZ viel zu groß, die Küche zu klein.
    Ich moniere auch die fensterlose Front, die ist nicht einladend.

    Vielleicht sollte man einfach mal eine normale gewandelte Treppe planen, oder als Joker die Raumausrichtung mal um 90 Grad im Uhrzeigersinn drehen (HWR ausgeschlossen)
     
    11ant gefällt das.
  19. #59 Kriminelle, 19.10.2018
    Kriminelle

    Kriminelle

    Dabei seit:
    16.05.2013
    Beiträge:
    3.769
    Zustimmungen:
    2.094
    Beruf:
    .
    Ort:
    Niedersachsen
    Genau SO ist es: 10 x 8,5 ist zu klein für eine gerade Treppe. Ist zu klein für einen Entwurf, der für 160+ ausgelegt ist.
     
    11ant gefällt das.
  20. #60 Gast48331, 19.10.2018
    Gast48331

    Gast48331 Gast

    Irgendwo brauchen wir ja leider ein wenig Abstellfläche bei einem Haus ohne Stauraummöglichkeit unterm Dach.

    Die Idee ist interessant. Jedoch ist der Durchgang vom Wohnzimmer in die Küche schmal. Mit einem festen Küchenmöbelstück würde man es noch weiter einengen. Die Tür zum Vorratsraum ist hingegen ja nur temporär geöffnet, wenn man mal eben etwas rausholt.

    Klein ist relativ. Mittlerweile sind es fast 140 m².
    Ganz ehrlich, wir bügeln äußerst selten und wenn, dann mal im Wohnzimmer und mal im Schlafzimmer.
    Viel wichtiger ist es ja eher, dass die Wäsche trocken ist ;-), aber nen Wäscheständer sollte wohl noch im HWR reinpassen.
    Das Fenster in Abstellraum oben soll eher ein Deko-Element sein, damit es mit dem Fenster nebenan im Flur ein gemeinsames Bild mit dem Hauseingang bildet.

    Der Hauseingang befindet sich im Norden, daher sind die Fenster möglichst alle zu den anderen Richtungen ausgerichtet, bis auf das Schlafzimmerfenster.
    Vielleicht könnte man drüber nachdenken das Badezimmerfenster noch nach vorne auszurichten.
    Das Fenster am WC ist halt optisch mit dem vom HWR verbunden. Interessanterweise gab es mal in der Diele vorne an der Treppe ein kleines Fenster, welches wir aber erstmal wieder weggenommen haben, da über die Haustür mit Seitenteil eigentlich ausreichend Licht reinfallen sollte.
    Die Haustür mit Seitenteil scheint das Element zu sein, welches sich in allen Häusern wiederspiegeln soll.

    Das mit dem Esstisch täusch ein wenig, der soll eigentlich noch etwas weiter in Richtung Terrasse und Küche.
    Zufälligerweise stehen unsere Möbel im Wohn-/Esszimmer fast genauso und mit recht ähnlichen Maßen und da steht bei weitem nichts im Blickfeld zum TV oder Balkon/Terrasse.

    Das mit dem Esstisch täusch ein wenig, der soll eigentlich noch etwas weiter in Richtung Terrasse und Küche.
    Zufälligerweise stehen unsere Möbel im Wohn-/Esszimmer fast genauso und mit recht ähnlichen Maßen und da steht bei weitem nichts im Blickfeld zum TV oder Balkon/Terrasse.

    Und hierfür suche ich ja noch irgendwie eine Lösung.

    Was ist eine normale gewandelte Treppe?
    Die Idee mit der Treppe hatte ich auch schon. Hab da mal was in Excel gemalt. Nicht schön, leider noch spiegelverkehrt, aber vielleicht verständlich.
     

    Anhänge:

    • Plan1.jpg
      Plan1.jpg
      Dateigröße:
      108,5 KB
      Aufrufe:
      548
    • Plan2.jpg
      Plan2.jpg
      Dateigröße:
      108,7 KB
      Aufrufe:
      501
    • Plan3.jpg
      Plan3.jpg
      Dateigröße:
      109,8 KB
      Aufrufe:
      614
Thema: Grundriss 10x8/8,5: Schlafzimmer im Erdgeschoss
Besucher kamen mit folgenden Suchen
  1. grundriss einfamilienhaus 10 x 8

    ,
  2. smarte Grundrissplanung 10x8m

    ,
  3. erdgeschoss grundriss haus 10x10

    ,
  4. grundriss haus 8 5 x 10,
  5. reihenhaus grundrisse beispiele,
  6. haus 10x8,
  7. Haus Grundriss 8 x 10 m nur erdgeschoss,
  8. grundriss haus 10x10,
  9. grundrisse 8.5 mal 10,
  10. einfamilienhaus pultdach gerade treppe,
  11. grundriss 100 qm 3 schlafzimmer,
  12. grundriss eg einfamilienhaus 8×12,
  13. einfamilienhaus schlafzimmer erdgeschoss,
  14. grundriss unten schlafen oben wohnen,
  15. grundriss haus 10 x 8 5,
  16. bautagebuch signus,
  17. grundrisse einfamilienhäuser 10x8 m,
  18. erdgeschoss schlafzimmer plan,
  19. 10x8 grundriss,
  20. Grundriss Erdgeschoss mit Schlafzimmer und arbwitszimmer,
  21. reihenhaus grundriss 8 5 x 9 8 m,
  22. offener grundriss einfamilienhaus,
  23. grundriss 10 x 10,
  24. grundriss 10 x 8 5,
  25. grundriss haus oben Schlafzimmer
Die Seite wird geladen...

Grundriss 10x8/8,5: Schlafzimmer im Erdgeschoss - Ähnliche Themen

  1. Feedback zu Grundriss EFH Nordhang

    Feedback zu Grundriss EFH Nordhang: Hallo zusammen, nachdem unser erster Planungsanlauf mit einem Architekten im letzten Jahr leider komplett gescheitert ist, haben wir nun einen...
  2. Grundriss Bewertung Architektenhaus

    Grundriss Bewertung Architektenhaus: Hallo zusammen, wir wären über euren Input sehr dankbar. Was kann man verbessern? Was würdet ihr ändern? 1. Wir sind: Familie mit einem Kind...
  3. Hilfe Grundriss Untergeschoss

    Hilfe Grundriss Untergeschoss: Ich benötige etwas Hilfe beim Grundriss für das Untergeschoss. Ich würde gerne die Eingangstür nach Süden legen, da dort die Straße ist. Außerdem...
  4. Neubau – Grundriss, Firstrichtung und Vorgehen

    Neubau – Grundriss, Firstrichtung und Vorgehen: Hallo zusammen, wir sind noch ganz am Anfang unseres Bauprojekts: das Grundstück steht fest (muss noch geteilt und umgeschrieben werden,...
  5. Grundriss EFH 150m2 (Hang, Souterrain, ELW) – Feedback zu Effizienz & Raumaufteilung

    Grundriss EFH 150m2 (Hang, Souterrain, ELW) – Feedback zu Effizienz & Raumaufteilung: Hallo liebe Bauexperten, wir planen ein Eigenheim mit ELW in Hanglage und haben uns schon zahlreiche Gedanken gemacht. Ich möchte die Chancen, die...