Grundriss 160m2 Holständerhaus am Nordhang mit Keller - Meinungen erbeten

Diskutiere Grundriss 160m2 Holständerhaus am Nordhang mit Keller - Meinungen erbeten im Architektur Allgemein Forum im Bereich Architektur; Hallo, nachfolgend findet ihr unseren (beinahe) finalen Grundriss. Lediglich bei den Fenstern wird noch ein bisschen rumgeschoben und geändert....

  1. #1 Lammbock, 26.08.2018
    Lammbock

    Lammbock

    Dabei seit:
    29.07.2014
    Beiträge:
    1
    Zustimmungen:
    0
    Beruf:
    medizin. Bereich
    Ort:
    Wetter
    Hallo,

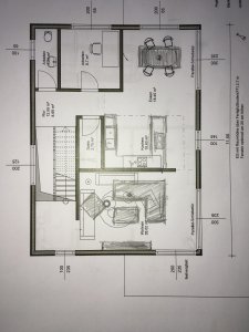
    nachfolgend findet ihr unseren (beinahe) finalen Grundriss. Lediglich bei den Fenstern wird noch ein bisschen rumgeschoben und geändert. Wir würden uns über Feedback freuen.

    Bebauungsplan/Einschränkungen
    Bebauung nach nach Paragraph 34 BauGB. Nachbargebäude 1,5 bis 2 geschossig mit Satteldach.

    Grösse des Grundstücks
    3000m2, Baufenster ca 600m2 an der Straße

    Hang
    Nordhang, nach Süden unverbaubar. ca 2m in der Diagonale dort wo das Haus stehen soll von Südwest nach Nordost ansteigend

    Ausrichtung
    Süden (Hangaufwärts)

    Unsere Anforderungen:
    Stilrichtung, Dachform, Gebäudetyp
    EFH, Satteldach (da am kostengünstigsten), eher offene Bauweise

    Keller, Geschosse
    Vollkeller + 2 Geschosse

    Anzahl der Personen, Alter
    2+2 Kinder (geplant)

    Raumbedarf im EG, OG
    offene Küche+Essbereich+Wohnzimmer, Speisekammer, Arbeitszimmer, GästeWC, Elternbereich (Schlafz, Ankleide, Bad), Kinderbereich (2 Kinderzimmer+ Bad), Garage, HWR, Abstellraum

    Büro: Familiennutzung oder Homeoffice?
    Familiennutzung + „Notfall“Kinderzimmer

    Schlafgäste pro Jahr
    1-2

    offene oder geschlossene Architektur
    eher offen

    konservativ oder moderne Bauweise
    eher modern

    offene Küche, Kochinsel
    offene Küche, Insel nicht notwendig

    Anzahl Essplätze
    6

    Kamin
    Nein

    Musik/Stereowand
    5.1, ca. 3 Meter für TV etc

    Balkon, Dachterrasse
    Nein

    Garage, Carport
    Im Keller

    Entwurf:
    Von wem stammt die Planung:
    Grundriss eines Bauunternehmens, nach unseren Wünschen verändert durch den Planer eines Fertighausunternehmens (Bau-Ing)

    Was gefällt uns besonders?

    -Der separate Elternbereich
    -Die offene Bauweise mit dem von 2 Seiten zugänglichen Wohnzimmer
    -Das Treppenhaus im Norden, wo auch die Straße ist
    -Garage im Haus
    -Große Fenster im Süden
    -Wohnzimmer+Küche+Essbereich nach Süden
    -Obergeschoss firstoffen


    Was gefällt nicht?

    -Tiefliegende, kleine Fenster im OG wegen des 1,8m Kniestocks – den werden wir voraussichtlich daher auf 2,10 Meter anheben lassen
    -Langweilige Außenansicht.
    -Kleines Arbeitszimmer, ist aber aktuell für uns der bestmögliche Kompromiss
    -Fenster bei der Küche nicht bodentief, wird noch verändert
    -Eventuell zu wenig Fenster

    Preisschätzung lt Architekt/Planer:

    ca 400 000 Euro Schlüsselfertig inkl Photovoltaikanlage und JuteDämmung (ökologisch) Festpreisangebot inkl Keller, elektr. Garagentor usw.
    Klickparkettboden
    Raffstores im Wohn/Koch/Essbereich
    Keine KWL.
    Keine Weiße Wanne.

    Persönliches Preislimit fürs Haus, inkl Ausstattung:
    Haus inkl aller Nebenkosten 470 000 Euro

    favorisierte Heiztechnik:
    Luft/Wasser WP + Photovoltaik

    Wenn Ihr verzichten müsst, auf welche Details/Ausbauten könnt Ihr verzichten:
    Keller, aber durch die Hanglage macht das wirtschaftlich wenig Sinn. Sonst wurde im Grunde schon alles weggekürzt was für uns vorstellbar war

    Warum ist der Entwurf so geworden, wie er jetzt ist?
    Der Entwurf hat uns von vorneherein gut gefallen, besonders die Südausrichtung aller wichtigen Räume passt sehr gut zum Grundstück.

    Offene Fragen/Probleme:
    1. Ab welcher Kniestockhöhe machen Fenster inkl Rolläden unterm Kniestock wirklich Sinn? Bei 1,8m Kniestock kämen die Fenster ja auf Hüfthöhe, was für uns keine Lösung wäre. Im Kinderzimmer sollte zB ein Tisch darunter passen.

    2. Wir haben laut Bodengutachten ca 1m Bodenklasse 4 und darunter Bodenklasse 5-6. Mit was für Kosten müsste man für die Erdarbeiten rechnen bei Hanglage.

    3. Ist eine Wohnrumlüftung eurer Meinung nach bei einem Holständerhaus zwingend erforderlich? Laut 2 verschiedenen (seriösen) Fertighausuanbietern sei das in dem Fall eher rausgeschmissenes Geld bzw. nur für Allergiker wichtig.


    Eine kleine Anmerkung zu den angehängten Dateien: beim Google-Maps Bild ist Süden oben und das Grundstück wäre da wo die beiden gelben Markierungen sind. In den Ansichten habe ich leider etwas "herumskizziert".
     

    Anhänge:

  2. #2 jodler2014, 05.09.2018
    jodler2014

    jodler2014

    Dabei seit:
    20.12.2014
    Beiträge:
    3.907
    Zustimmungen:
    542
    Beruf:
    Angestellter
    Ort:
    RP
    Warum die gechoppten Fenster im OG ? Aussicht in Richtung Nordhang nicht zu berücksichtigen ?
    Was ist mit der "toten Ecke " im Wohnzimmer ?
    Da rauscht die Entwässerung vom Kinderbad durch ..:wow
    Gibt es schon einen Schnitt ? A oder B .. ?
     
  3. #3 jodler2014, 05.09.2018
    Zuletzt bearbeitet: 05.09.2018
    jodler2014

    jodler2014

    Dabei seit:
    20.12.2014
    Beiträge:
    3.907
    Zustimmungen:
    542
    Beruf:
    Angestellter
    Ort:
    RP
    zu 1. : Kinderzimmer sind zu klein und der Elternbereich ist zu groß..
    zu 2. : wer hat das Gutachten erstellt ?
    20000 bis 50000 € mit / ohne Kanalanschluss ??
    zu 3. : Es geht auch ohne KWL ..
    Mit KWL hat den Vorteil : Bei richtiger Wartung und Konzeption der Anlage und fachgerechter Ausführung riecht es im Haus immer gut und so weiter und sofort ...:konfusius
     
  4. #4 driver55, 06.09.2018
    driver55

    driver55

    Dabei seit:
    22.02.2008
    Beiträge:
    6.873
    Zustimmungen:
    1.798
    Beruf:
    Dipl.-Ing.
    Ort:
    Pforzheim
    Wo sind die 160 m²?
    Leider nur auf dem Papier zu finden, denn die Verkehrsflächen (Flur/Diele/Luftraum...) sind doch viel zu groß! ca. 30m²!!!
    • Essen ist mit 18 m² angegeben, effektiv nutzbar aber nur so viel wie etwa im Arbeitszimmer 9...10m² >> Miniessecke für 6 Personen
    • Durch das separate "Wohnen" bekommt ihr keinen vernünftigen Wohn-Essbereich (in m²) zusammen. Schon ab 10 Personen sitzen die einen in "Essen" die anderen in "Wohnen"
    • Speistüre liegt ungünstig >> um die Küche rumlaufen
    • Eingang im KG muss einem gefallen...(nochmals 10 m² Verkehrsfläche...)
    • "Kinderhasenställe"
    • 1 Türe für 3 Räume (Schlafen/Ankleide/Bad)???
    • WoZi-Schrank, Garderobe, Esszimmer-Kommode, etc., finden wo Platz?
    • viele verschenkte (nicht nutzbare) m²...
    • ...
    Ich würde sagen, zurück auf Los. Aber das Thema ist ja durch, wenn's nur noch um die Fensterpositionen geht.:eek:

    Schade um das viele Geld!
     
    Canyon99 gefällt das.
  5. #5 Canyon99, 06.09.2018
    Canyon99

    Canyon99

    Dabei seit:
    25.10.2017
    Beiträge:
    583
    Zustimmungen:
    113
    Beruf:
    Dipl. Ing.
    Ort:
    Rhein/Main
    Bitte nicht böse sein, aber eine offene Bauweise sieht anders aus... Ich finde den Entwurf überhaupt nicht gelungen und muss insbesondere @driver55 Recht geben. Wo genau sieht man hier die 160m² und eine offene großzügige ineinander übergehende Wohnlandschaft ??? Ihr habt viel zu viel Verkehrsfläche, die gar nicht genutzt werden kann :confused: Ich würde das im EG schon mal ganz anders planen: Die Mauer zwischen Küche und Wohnbereich weg - ggf. deckengleicher Unterzug oder Überzug und / oder ein zwei Stützen - und die Küche ins rechte obere Hauseck. Ungefähr so:

    Vorschlag .jpg


    Und das OG mit den kleinen verschachtelten Räumen würde ich mir auch nochmal vornehmen: Kinderzimmer & Schlafen deutlich zu klein, dafür Badezimmer riesig. Der Weg ins Elternbad zu eng und zu kompliziert.... Das geht deutlich besser ;)
     
  6. #6 Kriminelle, 06.09.2018
    Kriminelle

    Kriminelle

    Dabei seit:
    16.05.2013
    Beiträge:
    3.707
    Zustimmungen:
    2.048
    Beruf:
    .
    Ort:
    Niedersachsen
    Die Hasenställe haben immerhin ein eigenes Bad. Aber irgendwie bekommt man das Gefühl, das auch nur, damit die Bälger nicht das Ehe-Domizil betreten müssen.
    Letzteres ist übrigens auch der Dimensionen, schon allein wegen des ultralangen Toilettenweges, unmöglich verzogen.
     
Thema: Grundriss 160m2 Holständerhaus am Nordhang mit Keller - Meinungen erbeten
Besucher kamen mit folgenden Suchen
  1. haus nordhang

    ,
  2. raumaufteilung 2 stockwerke 160m2

    ,
  3. grundriss efh nordhang

    ,
  4. haus sm hang 160m2,
  5. haus am nordhang
Die Seite wird geladen...

Grundriss 160m2 Holständerhaus am Nordhang mit Keller - Meinungen erbeten - Ähnliche Themen

  1. Grundriss Bewertung Architektenhaus

    Grundriss Bewertung Architektenhaus: Hallo zusammen, wir wären über euren Input sehr dankbar. Was kann man verbessern? Was würdet ihr ändern? 1. Wir sind: Familie mit einem Kind...
  2. Hilfe Grundriss Untergeschoss

    Hilfe Grundriss Untergeschoss: Ich benötige etwas Hilfe beim Grundriss für das Untergeschoss. Ich würde gerne die Eingangstür nach Süden legen, da dort die Straße ist. Außerdem...
  3. Neubau – Grundriss, Firstrichtung und Vorgehen

    Neubau – Grundriss, Firstrichtung und Vorgehen: Hallo zusammen, wir sind noch ganz am Anfang unseres Bauprojekts: das Grundstück steht fest (muss noch geteilt und umgeschrieben werden,...
  4. Grundriss EFH 150m2 (Hang, Souterrain, ELW) – Feedback zu Effizienz & Raumaufteilung

    Grundriss EFH 150m2 (Hang, Souterrain, ELW) – Feedback zu Effizienz & Raumaufteilung: Hallo liebe Bauexperten, wir planen ein Eigenheim mit ELW in Hanglage und haben uns schon zahlreiche Gedanken gemacht. Ich möchte die Chancen, die...
  5. Grundriss EFH 160m2

    Grundriss EFH 160m2: Hallo, Wir befinden uns ganz am Anfang unserer Reise Nach langem Suchen haben wir endlich ein Grundstück gefunden (eben, ca. 900 m2,...