Grundriss 2.0- einer neuer Ansatz-Meinungen Pläne eingestellt
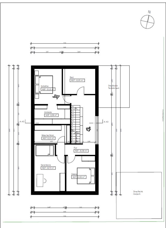
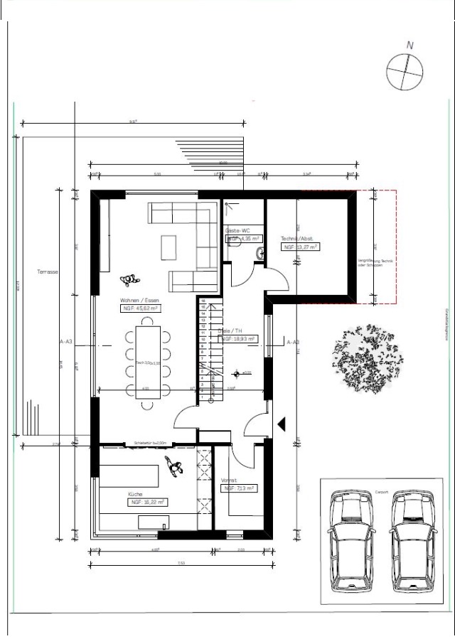
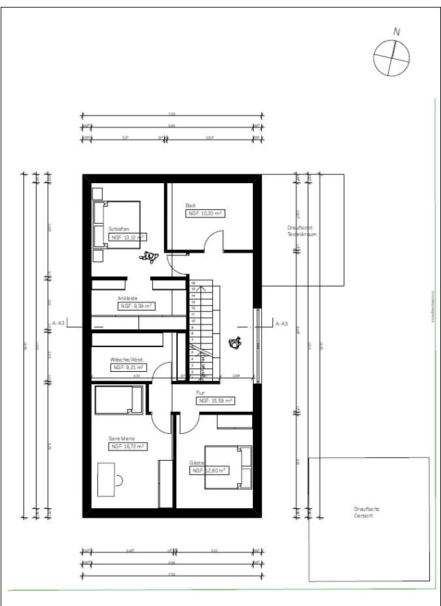
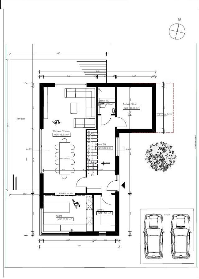
Diskutiere Grundriss 2.0- einer neuer Ansatz-Meinungen Pläne eingestellt im Architektur Allgemein Forum im Bereich Architektur; Hallo Zusammen, vor einiger Zeit habe ich hier einen Entwurf unseres Einfamilienhauses eingestellt. Nach langem Hin und Her mit der Architektin,...
Thema:
Grundriss 2.0- einer neuer Ansatz-Meinungen Pläne eingestellt
Die Seite wird geladen...
-
Grundriss 2.0- einer neuer Ansatz-Meinungen Pläne eingestellt - Ähnliche Themen
-
Altbau-Sanierung BJ 1904: Grundriss neu, WP/PV, Dämmung – wo übersehe ich Risiken?
Altbau-Sanierung BJ 1904: Grundriss neu, WP/PV, Dämmung – wo übersehe ich Risiken?: Liebe Community, wir (2 Erwachsene + 2 kleine Kinder) überlegen, einen Altbau (PLZ 33739) zu kaufen und umfassend zu sanieren und würden uns sehr... -
Wer zahlt neuen Grundriss?
Wer zahlt neuen Grundriss?: Hallo zusammen, mein Partner und ich waren gewillt eine Immobilie zu kaufen. Dies wurde von einem Makler begleitet. Das Haus wurde in den 60er... -
Grundrisse neu. Was ist eure geschätzte Meinung?
Grundrisse neu. Was ist eure geschätzte Meinung?: Hallo an Alle, plane nun schon seit längerer Zeit an meinem Haus. Habe nun einen neuen Entwurf. Was ist eure Meinung dazu? Grüße joey -
Grundriss Neu bitte um Tipps !
Grundriss Neu bitte um Tipps !: Hallo an allen, nachdem mein erster Grundriss hier den test nicht bestanden hatte, nun hier ist der neue... ich bin hart in nehmen, daher... -
DG-Umbau (evtl. mit neuem Dachstuhl) - Grundriss-Varianten | Bitte um Input
DG-Umbau (evtl. mit neuem Dachstuhl) - Grundriss-Varianten | Bitte um Input: Hallo! Wir planen relativ kurzfristig den Umbau unseres Dachgeschosses (2. Stock, Haus Baujahr 1950) – evtl./wohl mit neuem Dachstuhl und zwei...