Grundriss Bad unter Schlafzimmer Schallschutz

Diskutiere Grundriss Bad unter Schlafzimmer Schallschutz im Architektur Allgemein Forum im Bereich Architektur; Hallo, bedingt durch die individuellen Wünsche bei der Raumplanung hat es sich so ergeben, dass in einem 2 etagigen Massivhaus aus Poroton nun...

  1. #1 intoyou, 08.02.2024
    intoyou

    intoyou

    Dabei seit:
    25.08.2017
    Beiträge:
    37
    Zustimmungen:
    0
    Beruf:
    freiberufler
    Ort:
    koblenz
    Hallo,

    bedingt durch die individuellen Wünsche bei der Raumplanung hat es sich so ergeben, dass in einem 2 etagigen Massivhaus aus Poroton nun das Badezimmer im UG unter dem Schlafzimmers des EG liegt.

    Die Frage: Bekommt man es so hin, dass im Schlafzimmer keine Geräusche aus dem Bad zu hören sind....Dusche, Fön, Toilettenspülung....etc

    Oder aber, ist hier selbst bei bester Planung hinsichtlich Schallschutz nicht zu verhindern, dass Geräusche im Schlafzimmer wahrnehmbar sind aus dem Bad darunter.

    Vielen Dank
     
  2. 11ant

    11ant

    Dabei seit:
    28.02.2017
    Beiträge:
    2.501
    Zustimmungen:
    1.578
    Beruf:
    Bauherrenberater
    Ort:
    RLP Nord
    Benutzertitelzusatz:
    bringt Sie gut beraten ins Eigenheim
    Genügt Dir, daß ich den Widerspruch im Zitat fett markiert habe ?
     
  3. #3 Fasanenhof, 08.02.2024
    Fasanenhof

    Fasanenhof

    Dabei seit:
    20.02.2023
    Beiträge:
    1.454
    Zustimmungen:
    814
    Beruf:
    Ing für Maschinenbau
    Ort:
    Norddeutschland
    Semantik, ich denke es geht hier um die bestmögliche Umsetzung und nicht um die Planung.

    Dass die Anordnung der Räume so gegeben ist, steht ja fest (so lese ich das) also bleibt die Überlegung zur Planung und Umsetzung, WIE man den Schall aus dem UG soweit vermindert, dass er im EG nicht hörbar ist.

    Dabei ist natürlich offen: Welche Bauweise, welche Wand/Deckenkonstruktion, wo liegen Wasserleitungen, wo liegen Lüftungen, etc.

    Teile deine Pläne, Grundrisse und Entwürfe, dann kann man darüber reden.
     
  4. #4 Fred Astair, 08.02.2024
    Fred Astair

    Fred Astair

    Dabei seit:
    02.07.2016
    Beiträge:
    12.682
    Zustimmungen:
    6.555
    Beruf:
    Tänzer
    Ort:
    San Bernardino
    Bad unter Schlafzimmer ist auch bei mittelmäßiger Planung gut und problemlos umsetzbar.
    Bei sehr guter Planung und Umsetzung derselben ist auch ein Bad über dem Schlafzimmer realisierbar, ohne Geräusche wahrzunehmen.
     
  5. #5 intoyou, 08.02.2024
    intoyou

    intoyou

    Dabei seit:
    25.08.2017
    Beiträge:
    37
    Zustimmungen:
    0
    Beruf:
    freiberufler
    Ort:
    koblenz
    Genau so war es gemeint.
    Die Anordnung ist gegeben und die Planung bezieht sich auf die Realisierung trotz der "Schwäche" im Grundriss. Ich kann als Laie nicht beurteilen, ob es eine wirkliche Schwäche ist. Weiss nur aus praktischer Erfahrung, dass man schalltechnisch sehr schlechte Häuser bauen kann. Gerade in einem Neubau (Mehrfamilienhaus) merke ich das Tag für Tag.

    Bislang liegt keine Planung hinsichtlich Lüftung und Wasserleitung vor. Nur die Tatsache, dass die Räume übereinander liegen.
    Grundrisse des betroffenen Gebäudeteils lade ich hoch.

    @FredAstair
    Vielen Dank. Auf was könnte ich als Laie bei den Gewerken achten, dass es auch wirklich sehr gut geplant und durchgeführt wird? grundrissbauexperten.jpg
     
  6. #6 Fred Astair, 08.02.2024
    Fred Astair

    Fred Astair

    Dabei seit:
    02.07.2016
    Beiträge:
    12.682
    Zustimmungen:
    6.555
    Beruf:
    Tänzer
    Ort:
    San Bernardino
    Falls der scharze Punkt ginter dem WC ein Fallrohr sein soll, wäre das als Erstes zu ändern.
    Leitungen, die über Bleistiftstärke hinausgehen und noch dazu schallkritisch sind, haben in Massivwänden nichts verloren, auch wenn es nur eine Ent-und Belüftung ist.
    badunterschlafzimmer.png
    Untergeschoss lässt die Frage nach der Rückstauebene aufkommen.
    Auf welcher Höhe befindet sich das Straßenniveau vor dem Haus?
     
    hanghaus2000 gefällt das.
  7. #7 hanghaus2000, 08.02.2024
    hanghaus2000

    hanghaus2000

    Dabei seit:
    24.11.2021
    Beiträge:
    1.523
    Zustimmungen:
    630
    Beruf:
    Bauleiter, Kalkulator, Controller, Salzdesign
    Ort:
    Bayern
    Normalerweise ist eine Betondecke mit darauf ligendem Trittschall recht gut als Schallschutz geeignet. Eine Leitung die durchs Schlafzimmer geht leitet den Schall dagen sehr gut.

    In der Regel stimmt man sich im Zweifel mit den Bewohnern im EFH ab. Da ist alle paar Stunden ein Rauschen in der Wand kein Problem. Zumal man ja in der Regel entweder das Bad benutzt oder schlaeft.
     
    BaUT, simon84 und 11ant gefällt das.
  8. #8 intoyou, 08.02.2024
    intoyou

    intoyou

    Dabei seit:
    25.08.2017
    Beiträge:
    37
    Zustimmungen:
    0
    Beruf:
    freiberufler
    Ort:
    koblenz
    Danke.
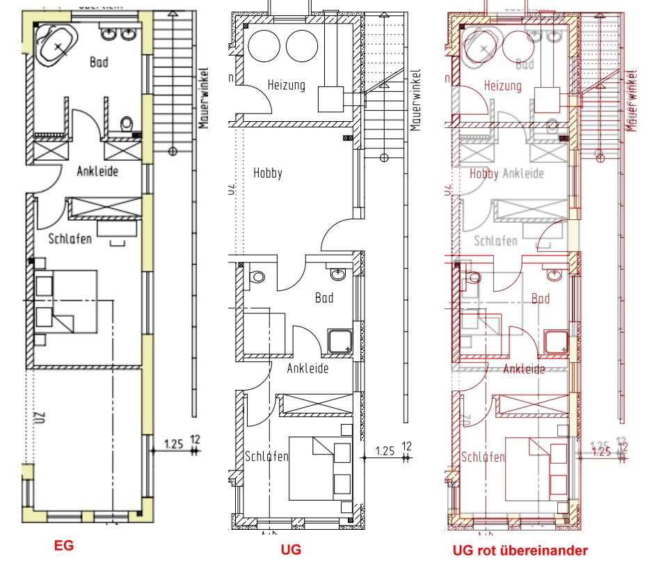
    Habe das EG mal vergrößert und da sieht man die schwarzen Punkte besser als Kreis mit X. Das Symbol befindet sich überall dort, wo ein Wasseranschluss vorgesehen ist (ausser unten rechts im EG an der Aussenwand). Da ist drunter ein Schlafzimmer.

    Das Strassenniveau sollte so 3 m oberhalb liegen. Hebeanlage ist geplant für das UG.


    grundrissbauexperten2.jpg
     
  9. #9 intoyou, 08.02.2024
    intoyou

    intoyou

    Dabei seit:
    25.08.2017
    Beiträge:
    37
    Zustimmungen:
    0
    Beruf:
    freiberufler
    Ort:
    koblenz
    Das ist bei einem Bad schwer möglich. Auch im Hinblick, falls man das UG mal als Einliegerwohnung nutzen will.
    Bsp: der Bewohner des UG steht berufsbedingt morgens um 4 Uhr auf. Da kann er kaum auf Toilettengang und Wassergebrauch etc. verzichten, weil der Bewohner im EG erst um 7 Uhr aufsteht.:-)
     
  10. 11ant

    11ant

    Dabei seit:
    28.02.2017
    Beiträge:
    2.501
    Zustimmungen:
    1.578
    Beruf:
    Bauherrenberater
    Ort:
    RLP Nord
    Benutzertitelzusatz:
    bringt Sie gut beraten ins Eigenheim
    Das ist oft aus dem Text allein nicht erkennbar, die Threadhistorie gab nichts an Erhellung dazu her.
    Das ist auch mit den Zeichnungen teilweise offen geblieben: was ist Fallrohr, was ist Steigleitung, was ist Rohr und was ist Schlauch; wo sind Deckendurchbrüche, wie sind Decken- und Fußbodenaufbauten ausgeführt und und etcetera. Was sind die Materialien von Wänden (, Vorwänden) und Decken ... es sind noch Fragen offen - und ob der Vorhang zu (Realität) oder noch offen (änderbarer Bauplan) ist, wissen wir nicht.

    Vor diesem Hintergrund Spekulationen durchzudeklinieren, führte m.E. zu weit, also ließ ich es. Die beste "Heilung" ist die Prävention, auch beim Schallschutz. Vor dem konstruktiven Schallschutz würde ich immer erst den konzeptionellen Schallschutz "abarbeiten", daher der Hinweis auf die offenbar verbesserungswürdige Planung.
     
  11. #11 intoyou, 08.02.2024
    intoyou

    intoyou

    Dabei seit:
    25.08.2017
    Beiträge:
    37
    Zustimmungen:
    0
    Beruf:
    freiberufler
    Ort:
    koblenz
    Es ist so: Man plant als Bauherr und dann kommt ein Grundriss raus, der das aufzeigt, was man sich wünscht.....der Architekt setzt es um.
    Dann fällt auf, da könnte eine Schwachstelle liegen, an die man nicht gedacht hat, weil man die Ebenen einzelnen geplant hat, sodass sie jeweils für einen passen.

    Der Bauplan ist änderbar, daher frage ich hier. Das heisst auch: Wenn jemand sagt, für Schallschutz muss die Leitung dort laufen, das Material muss dieses sein, die Wand so und so, dann hilft einem das weiter.

    Wenn die Experten sagen, man kann es hinbekommen (mit welchen Maßnahmen auch immer), dass das Bad das Schlafzimmer darüber nicht beeinflusst in Punkto Schall, dann kann auch der Grundriss bleiben.

    Wenn aber die übereinstimmende Meinung ist, das Bad wird man nie schalltechnisch entkoppelt bekommen....dann muss man damit entweder leben oder Änderungen im Grundriss vornehmen, die "schmerzen" würden.

    Bezüglich Prävention bin 100 % bei Dir. Allerdings funktioniert Prävention in dem Fall auch nur, wenn man den Grundriss der Prävention wegen anders aufbaut, als man es gerne wohntechnisch haben würde. Und damit sind wir wieder am Anfang. Wenn man es bautechnisch so hinbekommt, sollte der Grundriss nach Möglich in erster Linie wohntechnisch und sekundär schalltechnisch passen.

    Und genau das ist meine Frage. Wenn man bautechnisch (mit dem vorliegenden Grundriss) alle Möglichkeiten hat, kann man es so gestalten, dass Schall keine Rolle spielt oder ist das schlichtweg nicht möglich sondern einzig die Umstellung der Räume führt zum gewünschten Schallschutz?
     
  12. 11ant

    11ant

    Dabei seit:
    28.02.2017
    Beiträge:
    2.501
    Zustimmungen:
    1.578
    Beruf:
    Bauherrenberater
    Ort:
    RLP Nord
    Benutzertitelzusatz:
    bringt Sie gut beraten ins Eigenheim
    Wenn ein Architekt plant, sind "Schwachstellen, an die man nicht gedacht hat" auch nicht ganz ausgeschlossen, aber doch signifikant seltener als wenn der Bauherr selber "plant" und es einem ehrfürchtig als "Architekt" etikettierten GU-Zeichenknecht zum "Umsetzen" aka Abmalen gibt. Das fängt meist damit an, daß Otto Normalselberplaner mit dem Wohngeschoß (meist EG) beginnt, und das komplexere Stockwerk aus dem einfacheren abzuleiten versucht (was regelmäßig zu Labyrinthgrundrissen und fett Stahl in der Decke führt). In Deinem Fall ist es vermutlich zudem so, daß hier eine Hanglage dazu genutzt werden soll, der Hauptwohneinheit einen Einlieger unterzuschieben.
    Das liest sich erst einmal gut, wenn die Bereitschaft auch ernsthaft besteht. Das ...
    ... hingegen klingt eher nicht so. Sondern als könne man nun nur noch Retter sein, wenn man sich gleichzeitig den Schuh des Spielverderbers anzuziehen bereit wäre.
    Nein, die einzige Möglichkeit ist es nicht, wenn wohl auch meist die sauberste und beste.

    Du hast Dir also in der so schönen "Rechnung ohne den Wirt" einen Mieter in Dein Eigenheim geträumt und nun Muffensausen, das könne jemand sein, der früher aufstehen müsse als Du (und der Dich dann mit dem Föhnen seiner Glatze weckt). Wenn das die Strafe für den Hochmut wäre, sich einen Architekten zu sparen weil es einem der Bauzeichner billiger stempelfertig macht, wäre Dir mein ausbleibendes Mitleid gewiß ;-)

    Natürlich kannst Du jetzt einfach jedes Rohr in Watte packen und so weiter und beten, daß Dir die Rachegötter gnädig seien. Oder aber Dein Bauprojekt mit bis aufs Grundstück runtergelassenen Hosen auf den Tisch legen und Dir helfen lassen, die Hütte von der Pike auf klüger zu konzipieren. Meine Meinung ist ja, der Architekt verdiene sein ganzes Honorar in der zweiten Halbzeit (LP 5 bis 8) wieder herein. Aber es steht immer noch jeden Morgen ein Schlauberger auf, der sein Eigenheim als Zauberlehrling billiger zu verwirklichen glaubt. Und zumindest der Glaube daran - mehr davon läßt sich meist nicht umsetzen - sei ihm auch gegönnt.
     
  13. #13 intoyou, 09.02.2024
    intoyou

    intoyou

    Dabei seit:
    25.08.2017
    Beiträge:
    37
    Zustimmungen:
    0
    Beruf:
    freiberufler
    Ort:
    koblenz
    Danke:-)

    In allen Punkten schaut die Realität ein wenig anders aus. Der Architekt hat nach Wünschen des Bauherren geplant. Dennoch gibt es, in jedem Haus, individuelle Anforderungen (bedingt durch Lage, Zuschnitt des Grundstücks, Bedürfnisse Bewohner), die es zu berücksichtigen gilt.

    Insofern kann man den Bereich "Geld sparen durch Grundriss selbst entwickeln" vergessen. Aber man sollte auch umgekehrt nicht die Fähigkeiten von Architekten überschätzen. Diese können und sollen zwar auf Schwachstellen achten, aber darauf zu hoffen, dass sie auch alle in der Lage sind, Häuser so zu bauen, dass Probleme wir vorhanden nicht auftauchen, ist wünschenswert, aber nur bedingt der Fall. Was aber natürlich nicht zwangsläufig an mangelndem Können liegen muss sondern eben an oben genannten Umständen...Lage, Grundstück, indiv. Wünsche etc.

    Was das Unterschieben des "Einliegers" anbelangt, so kann das ja auch schlichtweg die eigene Familie sein, sprich Kinder etc. die das Bad unter dem Schlafzimmer nutzen.

    Und natürlich kann man das Haus grundlegend anders aufbauen von den Räumlichkeiten, dann würden eben nur individuelle Wünsche des späteren Eigentümers zurückstehen müssen.

    Dass die Verlagerung des Bades an andere Stelle die Beste und Sauberste ist und gewesen wäre, war von Anfang an klar. Sonst hätte es den Thread niemals geben.
    Es war und ist aber nicht die gewünschte Variante....sofern es noch eine praktikable Alternative gibt.

    Die Frage ist und bleibt, was ist möglich, wenn man die Beste Option nicht wählt und welche Risiken hinsichtlich "Schall" bleiben damit verbunden?

    Die Aussage "Bad unter Schlafzimmer ist auch bei mittelmäßiger Planung gut und problemlos umsetzbar." klingt ja eher nach einem gut gehbaren Weg ohne Grundrissänderung.
     
  14. #14 Fred Astair, 09.02.2024
    Fred Astair

    Fred Astair

    Dabei seit:
    02.07.2016
    Beiträge:
    12.682
    Zustimmungen:
    6.555
    Beruf:
    Tänzer
    Ort:
    San Bernardino
    Da das Kellerbad ohnehin mittels Hebeanlage entwässert wird, ist dafür eine gesonderte Planung erforderlich. Die senkrechte Abwasserleitung durchs darüberliegende Schlafzimmer entfällt an dieser Stelle und ist im Zusammenhang mit der Hebeanlage zu platzieren.
    Was macht eigentlich der Kellerbewohner bei Stromausfall oder Pumpendefekt?
    Als ich vor 25 Jahren das letzte Mal sowas errichtet habe, musste ich eine Doppelpumpenanlage mit Alarmüberwachung und Ersatzstromanlage bauen. Kosten lagen damals im fünfstelligen DM-Bereich.
    Die bisher befürchteten Schallprobleme hinsichtlich Fön, Klospülung und Brausegeräusche sind Peanuts, wenn man von einer einigermaßen soliden Bauausführung ausgeht.
     
    11ant gefällt das.
  15. #15 nordanney, 09.02.2024
    nordanney

    nordanney

    Dabei seit:
    15.09.2021
    Beiträge:
    6.331
    Zustimmungen:
    3.652
    Beruf:
    Finanzierer/Investor/Bau- und Sanierungslaie
    Ort:
    Niederrhein
    Damit finde ich das "Problem" hervorragend beschrieben. Nämlich als im Normalfall nicht existent. Der sich neben einem im Bett drehende Partner macht da mehr Krach als das Bad unter dem Schlafzimmer. Mache mir mehr Sorgen, wenn nachts auf derselben Etage der Partner ins Bad geht - DAS wird viel lauter sein.
     
    11ant gefällt das.
  16. #16 intoyou, 09.02.2024
    intoyou

    intoyou

    Dabei seit:
    25.08.2017
    Beiträge:
    37
    Zustimmungen:
    0
    Beruf:
    freiberufler
    Ort:
    koblenz
    @fredastair + nordannay

    Danke, dass ihr die Frage ohne große Umschweife mit einem "machbar" beantwortet habt. Der Rest obliegt somit dem Bauingenieur, der es korrekt ausführen bzw. planen lassen muss.
     
  17. #17 Fred Astair, 09.02.2024
    Fred Astair

    Fred Astair

    Dabei seit:
    02.07.2016
    Beiträge:
    12.682
    Zustimmungen:
    6.555
    Beruf:
    Tänzer
    Ort:
    San Bernardino
    Bauingenieure sind mit der Sanitärplanung nicht befasst und von einer Hebeanlagenentwässerung sind auch gestandene Handwerker oftmals hoffnungslos überfordert und kommen dann mit einem Sainbroy um die Ecke.
     
    11ant gefällt das.
  18. #18 Andreas Teich, 09.02.2024
    Andreas Teich

    Andreas Teich

    Dabei seit:
    20.03.2012
    Beiträge:
    3.102
    Zustimmungen:
    529
    Beruf:
    Gebäude-Energieberater, Planungsbüro, HW-Meister
    Ort:
    Bonn und Kärnten/Österreich
    Benutzertitelzusatz:
    Ggf anrufen sofern sich’s im Rahmen hält…
    Zuerst auf entsprechende Planung- anschließend aber sehr intensiv auf korrekte Ausführung achten!
    ZB.:
    - Schallgedämmte, schwere Abwasserrohre verwenden,

    - schallgedämmte Armaturen,

    - Decke ggf mit Schalldämmung u Schallabsorbierung versehen,

    - bei Rohre und Installationen auf entsprechende Dämmung u Konstruktion achten-
    Vorwandmontagesysteme sind besser/ einfacher hinsichtlich Schalldämmung

    - für evt Fehlstellen Weichzellenschaum und keinen üblichen Montageschaum verwenden

    - Schalldämmpolster unterlegen, ggf Gummigranulatplatten und Schalldämmfolien aus dem KFZ-Sektor

    - auf schallgedämmte Fenster, Lüftung und Rolladenkadten achten

    etc
     
    11ant gefällt das.
  19. #19 Fabian Weber, 09.02.2024
    Fabian Weber

    Fabian Weber

    Dabei seit:
    03.04.2018
    Beiträge:
    16.331
    Zustimmungen:
    6.489
    Einfach die Strangentlüftung in den Heizungsraum über den Hobbyraum verziehen. Die geht dann dort parallel zum Unterzug, kann also mit diesen abgekoffert werden.

    im Gegensatz zu @11ant kann ich aus den Plänen sehr wohl erkennen, dass es sich um einen Massivbau handelt.

    Frag den Planer, ob er das so umsetzen kann.

    Anbei eine Skizze.

    Die Betondecke und der Estrich haben eine Masse von über 500kg/m2, da kommt kein störender Schall durch.
     

    Anhänge:

  20. #20 Fabian Weber, 09.02.2024
    Fabian Weber

    Fabian Weber

    Dabei seit:
    03.04.2018
    Beiträge:
    16.331
    Zustimmungen:
    6.489
    Wie sieht denn die zweite Etage aus? Oder meinst Du mit zwei Etagen UG + EG?
     
Thema:

Grundriss Bad unter Schlafzimmer Schallschutz

Die Seite wird geladen...

Grundriss Bad unter Schlafzimmer Schallschutz - Ähnliche Themen

  1. Grundriss Bewertung Architektenhaus

    Grundriss Bewertung Architektenhaus: Hallo zusammen, wir wären über euren Input sehr dankbar. Was kann man verbessern? Was würdet ihr ändern? 1. Wir sind: Familie mit einem Kind...
  2. Hilfe Grundriss Untergeschoss

    Hilfe Grundriss Untergeschoss: Ich benötige etwas Hilfe beim Grundriss für das Untergeschoss. Ich würde gerne die Eingangstür nach Süden legen, da dort die Straße ist. Außerdem...
  3. DIY-Grundriss-Eigenkomposition... 80qm Grundfläche, 5,7 Hausbreite, 4 Schlafzimmer!??

    DIY-Grundriss-Eigenkomposition... 80qm Grundfläche, 5,7 Hausbreite, 4 Schlafzimmer!??: ...naja, liebes Forum, es gibt manchmal Umgebungen, da sollte man vielleicht garnicht bauen. Ich denke aber, dass ich mit dem anliegenden...
  4. Grundriss Schlafzimmer, Ankleide & Bad

    Grundriss Schlafzimmer, Ankleide & Bad: Hallo zusammen, ich hätte eine Frage zu unserem Grundriss. Wir planen ein Haus zu bauen und anbei bekommt ihr den Grundrissplan des OG. Wir...