Grundriss barrierefreies EFH. Optimierungspotential?

Diskutiere Grundriss barrierefreies EFH. Optimierungspotential? im Architektur Allgemein Forum im Bereich Architektur; Die Eltern schlafen im EG? Das ist ja mal ungewöhnlich.

  1. #81 Doubtfire, 21.04.2015
    Doubtfire

    Doubtfire

    Dabei seit:
    27.03.2015
    Beiträge:
    34
    Zustimmungen:
    0
    Beruf:
    Beamter
    Ort:
    Ulm
    Die Eltern schlafen im EG? Das ist ja mal ungewöhnlich.
     
  2. #82 JamesTKirk, 21.04.2015
    JamesTKirk

    JamesTKirk Gast

    Lies mal das 2. Wort des Titels ... :shades
     
  3. #83 bral0011, 21.04.2015
    bral0011

    bral0011

    Dabei seit:
    12.02.2015
    Beiträge:
    100
    Zustimmungen:
    0
    Beruf:
    IT
    Ort:
    Karlsruhe
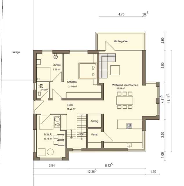
    Danke. Unglücklich sind wir noch mit der Anordnung im Schlafzimmer, die hätten wir schon gerne wie in unserem scribble und der HWR ist viel zu klein, da müssen neben der HT rein: Wama, Trockner, Bügelbrett, Trockenständer nd mind. 1m SChrank -und das barrierefrei zugänglich.
     
  4. #84 Gast036816, 21.04.2015
    Gast036816

    Gast036816 Gast

    grundrisse sind jetzt besser.

    mich würden die ansichten und ein schnitt interessieren, scheint ein dominantes dach zu werden!
     
  5. #85 Frau Maier, 21.04.2015
    Frau Maier

    Frau Maier

    Dabei seit:
    28.01.2015
    Beiträge:
    1.116
    Zustimmungen:
    1
    Beruf:
    Dipl.-Ing.
    Ort:
    Bodensee
    Naja, zeig mir den, der stundenlang in einem hässlichen HWR steht und bügelt. Das macht man am Bügelbrett im Wohnzimmer, Küche oder sonst wo, aber kaum einer im HWR (außer da steht eine Bügelpresse oder sonst einer dieser Bügelautomaten). Von daher ist der HWR groß genug.
     
  6. #86 bral0011, 22.04.2015
    bral0011

    bral0011

    Dabei seit:
    12.02.2015
    Beiträge:
    100
    Zustimmungen:
    0
    Beruf:
    IT
    Ort:
    Karlsruhe
    Also wir machen das so... wegen Rollstuhl soll auch das Wäschehandling möglichst zentral erfolgen.
    Und selbst wenn ich Bügeln unberücksichtigt lasse bleiben da abzüglich Heiztechnik/Lüftung ja kaum noch 4 qm.
     
  7. #87 tillfisc, 22.04.2015
    tillfisc

    tillfisc

    Dabei seit:
    19.09.2012
    Beiträge:
    368
    Zustimmungen:
    3
    Beruf:
    Architekt
    Ort:
    Rottweil
    Da hilft nur ganz konkret möblieren, jeden Schrank und den Wenderadius einzeichnen.
    Ich find's persönlich dramatisch, wenn große Teile der EG-Fläche für solch einen untergeordneten Raum draufgehen.
     
  8. #88 tillfisc, 22.04.2015
    tillfisc

    tillfisc

    Dabei seit:
    19.09.2012
    Beiträge:
    368
    Zustimmungen:
    3
    Beruf:
    Architekt
    Ort:
    Rottweil
    ...wie in eurem Scribble:
    damit der Zugang zum barrierefreien Bad nicht quer durch das komplette Schlafzimmer führt?
    Das kriegt man hin:
    - Möblierung Schlafen spiegeln?
    - Besucher-WC geht auch kleiner
     
  9. #89 bral0011, 22.04.2015
    bral0011

    bral0011

    Dabei seit:
    12.02.2015
    Beiträge:
    100
    Zustimmungen:
    0
    Beruf:
    IT
    Ort:
    Karlsruhe
    Wurde leider ignoriert.
    Naja, wir wollen halt alles was uns Eltern betrifft auf einer Ebene haben.
     
  10. #90 bral0011, 29.04.2015
    bral0011

    bral0011

    Dabei seit:
    12.02.2015
    Beiträge:
    100
    Zustimmungen:
    0
    Beruf:
    IT
    Ort:
    Karlsruhe
    Es gibt einen neuen Planungsstand, zu dem wir mit kleinen Änderungen unsere Zustimmung geben können.
    EG_29_klein.jpg
    DG_29_klein.jpg
     
  11. #91 tillfisc, 29.04.2015
    tillfisc

    tillfisc

    Dabei seit:
    19.09.2012
    Beiträge:
    368
    Zustimmungen:
    3
    Beruf:
    Architekt
    Ort:
    Rottweil
    Naja, vorher war's geradlinig und klar strukturiert.
    Jetzt habt ihr lauter Ecken und Versprünge.

    - wenn die Gebäudeform wegen des HWR geändert werden muss - dann wackelt der Schwanz mit dem Hund
    - Die "Fresswarze" ist m.E. unnötig und macht den Raum nicht besser
    - Der minimale Versprung zwischen Schlafen und Wohnen ist unnötig.
    - Erschließung Schlafen/Bad EG finde ich jetzt gut.
     
  12. #92 bral0011, 19.05.2015
    bral0011

    bral0011

    Dabei seit:
    12.02.2015
    Beiträge:
    100
    Zustimmungen:
    0
    Beruf:
    IT
    Ort:
    Karlsruhe
    So nun finalisiert und mit Ansichten, Raumhöhe soll 2,75 m werden. Wir sind zufrieden.
    Grundriss_EG_18.jpg
    Grundriss_DG_18.jpg
    Ansicht_sued_west_18.jpg
    Ansicht_nord_west_18.jpg
    Ansicht_nord_ost_18.jpg
    Ansicht_sued_ost_18.jpg
     
  13. #93 Thomas B, 19.05.2015
    Thomas B

    Thomas B

    Dabei seit:
    17.08.2005
    Beiträge:
    11.181
    Zustimmungen:
    4
    Beruf:
    Dipl.Ing.
    Na, dann ist doch gut!
     
  14. #94 trekkie, 19.05.2015
    trekkie

    trekkie

    Dabei seit:
    11.04.2011
    Beiträge:
    984
    Zustimmungen:
    0
    Beruf:
    Dipl.-Ing.
    Ort:
    Sachsen
    Des Menschen Wille ist sein Himmelsreich - ich hab zwar nicht den ganzen Faden gelesen, sondern nur den letzten Grundriß angeschaut,
    aber wenn mein Schlafzimmereingang unmittelbar neben der Hauseingangstür (Stichwort: Schmutzzone) läge ..., das kann ich mir nicht vorstellen.
    Ich meine ein Rückzugsbereich soll ja auch Geborgenheit vermitteln, so unmittelbar kurz nach dem Schmutzabstreifer der Haustür, will diese da nicht aufkommen.
    Aber jeder tickt anders, das ist auch gut so ;)
     
  15. Taipan

    Taipan

    Dabei seit:
    12.10.2011
    Beiträge:
    5.673
    Zustimmungen:
    3
    Beruf:
    Architekt
    Ort:
    in einem Haus
    Sei doch nicht so böse, ich zweifele doch auch nicht den Sinn dieses komischen Vorsprungs im Wohnzimmer an ...

    Ebensoweinig zweifele ich den unzugänglichen Zugang zum Wintergarten an ...
     
  16. #96 trekkie, 20.05.2015
    trekkie

    trekkie

    Dabei seit:
    11.04.2011
    Beiträge:
    984
    Zustimmungen:
    0
    Beruf:
    Dipl.-Ing.
    Ort:
    Sachsen
    Böse? Bin doch ganz zahm ;) Die anderen Unzulänglichkeiten/Vor-Rücksprunge hab ich gar nicht betrachtet/beachtet, mMn ist das Raumkonzept unlogisch,
    dort sollte angesetzt werden und damit auch die komischen Versprünge begradigt werden, ebenso sollte der Wintergarten so dimesnioniert werden, dass er seinen Namen auch verdient ...
    Im Endeffekt einfach 1x neu komplett überdenken, aber da ich den gesamten faden nicht gelesen habe, schreibe ich das nicht nochmal,
    ich kann mir vorstellen, dass es bereits mehrfach geschrieben wurde. Aber wenn das alles nix hilft, bleibt nur - einfach mal so nen Modell im Maßstab 1:1 bauen ... ;)
     
  17. Taipan

    Taipan

    Dabei seit:
    12.10.2011
    Beiträge:
    5.673
    Zustimmungen:
    3
    Beruf:
    Architekt
    Ort:
    in einem Haus
    Schau dir #79 an ... war schonmal besser ... wenn auch noch nicht gut ...
     
  18. #98 Gast036816, 20.05.2015
    Gast036816

    Gast036816 Gast

    die grundrisse sind immer noch zu verwinkelt, für barrierefrei zu verwinkelt. der versatz zwischen schlafzimmer und wohnraum ist mehr als sinnfrei. die linien im kinderzimmer am erker stellen hoffentlich keinen luftraum über dem essplatz dar!

    der sinn der grundrisse spiegelt sich in den ansichten wieder und die finde ich katastrophal. die breitseite des hauses als giebelseite???

    mein urteil - geht so gar nicht!
     
  19. #99 Jolante, 20.05.2015
    Jolante

    Jolante

    Dabei seit:
    05.02.2014
    Beiträge:
    159
    Zustimmungen:
    0
    Beruf:
    Dipl.-Ing
    Ort:
    Hamburg
    Sind das nicht die Kinderbetten?
     
  20. #100 Gast036816, 20.05.2015
    Gast036816

    Gast036816 Gast

    dann wünsche ich ff beim fenster putzen!
     
Thema: Grundriss barrierefreies EFH. Optimierungspotential?
Besucher kamen mit folgenden Suchen
  1. grundriss gerade Treppe

Die Seite wird geladen...

Grundriss barrierefreies EFH. Optimierungspotential? - Ähnliche Themen

  1. 3 Grundrisse - Bitte um Meinungen

    3 Grundrisse - Bitte um Meinungen: Ich würde hiermit gerne eure Meinung zu diesen drei Grundrissen erfragen - Grundriss 1 und 2 berücksichtigen eine spätere Familienplanung, Plan 3...
  2. Grundrisse Bad und Gäste-WC

    Grundrisse Bad und Gäste-WC: Hallo zusammen, auch auf die Gefahr hin, dass der Grundriss langweilig ist, stelle ich ihn gerne zur Diskussion. Die Rahmenbedingungen: Wände...
  3. Grundriss Stadtvilla (155qm2) - Eure Anmerkungen werden gebraucht!

    Grundriss Stadtvilla (155qm2) - Eure Anmerkungen werden gebraucht!: Hallo zusammen, meine Frau und ich planen bald zu bauen (Grundstück, 760qm2 ist bereits in unserem Besitz). Wir möchten gerne zweigeschossig...
  4. Grundriss Haus

    Grundriss Haus: [ATTACH] [ATTACH] Ich wollte euch mal nach eurer Meinung zu diesen Grundrissplänen unseres Einfamilienhauses fragen? Wie findet ihr diese...
  5. Grundriss EFH Nordgarten - Feedback erwünscht

    Grundriss EFH Nordgarten - Feedback erwünscht: Hallo zusammen, wir sind eine Familie mit zwei Kindern (2+5J) und haben ein Grundstück für den Bau eines EFH (Satteldach, 1 Vollgeschoss)...